川沙,作为上海城市副中心之一,肩负着重要的战略意义。
首先,川沙是花木副中心的延续,未来将代替花木成为浦东主城区和东南广阔腹地的枢纽,成为新的资源交换中心。
其次,川沙副中心毗邻浦东交通枢纽,也是空(浦东国际机场)+轨(上海东站)+铁(地铁2、11、21、机场联络线)三位一体的交通格局。类比大虹桥,可预见其未来发展的惊人能量。
最后,川沙还具备得天独厚的科创+旅游资源。依托川沙迪士尼的人群聚集效应,能促进川沙多方面的功能建设。再看科创,以2号线为轴,川沙一直是张江产业精英居住外溢的首选之地。
川沙正昂首迈向成为浦东主城区和东南腹地发展中心的时代。

林曦水岸售楼处电话:400-8377-020
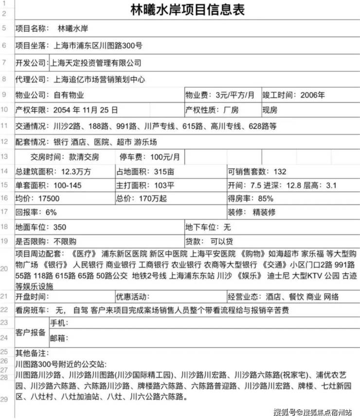
林曦水岸小区
建面约:100-130m²
均价:21000元/m²
总价:210万起
【首付】:七成(贷款只能贷50万)
【户型】:南北通透,双阳台
【层高】:一楼3.6米,其它3米
【楼层】:总高4层部分带电梯
【装修】:毛坯/精装(自用毛坯交付,
统一运营精装交付)
【产权】:50年
【团购】:无团购
【物业】:3元/平
【交房】:款清交付
【户数】:1200
【物业公司】鼎川物业
【绿化率】:30%
【容积率】:1.3
【得房率】:一层120%二层以上90%
【水电费】:商用
林曦水岸售楼处电话:400-8377-020
在售房源分布图:


林曦水岸售楼处电话:400-8377-020
林曦水岸超性价比
真地铁:2号线。11号线。21号线
真配套:主题酒店。沿街小吃。各种美食餐饮
真配套:迪士尼度假区
真配套:5层带电梯4层步梯+42%绿化
林曦水岸售楼处电话:400-8377-020
感谢配合!


交通方面:据迪士尼仅10分钟车程,距地铁2号线1.8公里,5分钟车程,项目门口就是公交站。

林曦水岸售楼处电话:400-8377-020
教育资源方面:中心幼儿园,中心小学、高级中学,知名学校,六灶幼儿园、智源双语幼儿园中小学:上海市六灶中学、浦东新区民办智源小学、浦东新区六灶小学。

商业方面:世纪联华超市、农工商超市。

医疗方面:六灶社区卫生服务中心、上海市浦东人民医院,上海浦东中医医院等医疗资源,为您的健康保驾护航。

最新消息,「林曦水岸」最新房源正在销售中,推出建面约100-130㎡不限购公寓,毛坯/精装交付,均价约1.8-2.1万/㎡,总价约185万起,款清交付。
「林曦水岸」
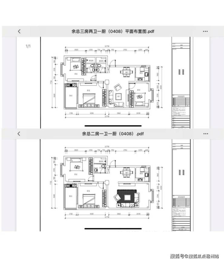
户型图赏鉴

林曦水岸售楼处电话:400-8377-020


「林曦水岸」
林曦水岸售楼处电话:400-8377-020
林曦水岸!21号线500米!建面约100-130㎡3-4房,总价208万起!不限购,毛坯+装修自由选择,附视频介绍!
沪申新房已关注
分享点赞在看已同步到看一看写下你的评论
视频详情





林曦水岸售楼处电话:400-8377-020
小区图实景拍摄



林曦水岸售楼处电话:400-8377-020


林曦水岸售楼处电话:400-8377-020