华润外滩瑞府(营销中心)首页网站-外滩瑞府销售中心(售楼处)外滩瑞府楼盘欢迎您-地址-价格-户型-小区环境-楼盘详情-外滩瑞府交房时间-周边配套-售楼处电话
扫描到手机,新闻随时看
扫一扫,用手机看文章
更加方便分享给朋友
✅✅华润外滩瑞府售楼处电话:400 - 882 - 4258✅✅
✅✅华润外滩瑞府售楼处电话:400 - 882 - 4258✅✅
✅✅华润外滩瑞府售楼处电话:400 - 882 - 4258✅✅
✅✅华润外滩瑞府售楼处电话:400 - 882 - 4258✅✅
二批次一房一价首发:
01、基本信息
地块去年11月27日,华润置地以总价51.36亿元获取,✅✅华润外滩瑞府售楼处电话:400 - 882 - 4258✅✅成交楼面价92934元/平方米,溢价率11.97%,地块中小套型占比40%,装修标准4000元/㎡!
项目力邀大师天团操刀,从建筑到生活全维度高定。
GOA大象设计担纲建筑设计;✅✅华润外滩瑞府售楼处电话:400 - 882 - 4258✅✅渡边智昭负责会所和架空层设计,他是2023 AD 100 中国最具影响力建筑和室内设计师,代表作翠湖天地、汤臣一品;TROP操刀艺文景观设计;室内由W.DESIGN无间设计、李益中精琢...
这支曾塑造多个城市封面的大师团队,聚集在✅✅华润外滩瑞府售楼处电话:400 - 882 - 4258✅✅,共筑外滩新一代标杆住宅。
作为华润置地产品线的皇冠明珠✅✅华润外滩瑞府售楼处电话:400 - 882 - 4258✅✅,「瑞系」自诞生便以钻石级选址标准划定豪宅基因。
从深圳湾的“春笋”旁到北京长安街畔,✅✅华润外滩瑞府售楼处电话:400 - 882 - 4258✅✅每一座瑞府都占据着核心城市最核心的地段。
此次外滩瑞府落子外滩1公里核心圈,✅✅华润外滩瑞府售楼处电话:400 - 882 - 4258✅✅正是华润对「战略稀缺性」的极致践行:非核心不选,非未来不立。
这也是华润置地那么多年来在上海的首座“瑞系”。
由此,便有了“风貌→幕墙→冠冕”的立体生长美学立面,✅✅华润外滩瑞府售楼处电话:400 - 882 - 4258✅✅风貌底盘+秩序感极强的通透立面,昭示性极强!
尤为瞩目的是,建筑立面采用的大面积通透玻璃幕墙设计, ✅✅华润外滩瑞府售楼处电话:400 - 882 - 4258✅✅它如同一幅流动的巨幕画框,不仅最大限度引光入室,更实现了 “移步易景、框景成画”的建筑美学。
室内外空间界限被温柔消弭,无论是社区内的精致园林、✅✅华润外滩瑞府售楼处电话:400 - 882 - 4258✅✅活力场景,还是远方的都市天际线,都成为生活中触手可及、瞬息变幻的风景。
风雨连廊及印象派花园双重归家体系重新定义顶豪生活仪式,✅✅华润外滩瑞府售楼处电话:400 - 882 - 4258✅✅社区大门以约50米长典雅精致市政延展面宣告不凡气度!先锋艺文迎宾区仪式感十足!这便是一场城市精英到生活艺术家的精神转场。
社区核心以约3000㎡沉浸式中央公园重构自然与生活的边界,这里不仅是满足全龄社交、商务会客与儿童探索的多功能活力场域,✅✅华润外滩瑞府售楼处电话:400 - 882 - 4258✅✅更以精心雕琢的轻度假美学,让每一次归家都成为步入度假胜地的仪式。当暮色浸染天际线,漫步于绿意环抱的公园小径,耳畔是潺潺水声与孩童欢笑,✅✅华润外滩瑞府售楼处电话:400 - 882 - 4258✅✅疲惫顷刻消融于草木芬芳与柔风暖光之中。
✅✅华润外滩瑞府售楼处电话:400 - 882 - 4258✅✅
让人眼前一亮的是,景观设计更以印象派艺术史诗为灵感✅✅华润外滩瑞府售楼处电话:400 - 882 - 4258✅✅,独创六大主题花园,将传世名作解构为可游可赏的立体生态空间!有梵高的星空水苑、莫奈的睡莲水湾、马奈的日光草坪、塔贝尔的社交花园、雷阿诺的缤纷花园以及调色板儿童乐园……
✅✅华润外滩瑞府售楼处电话:400 - 882 - 4258✅✅
每一处花园皆以自然为画布、生活为颜料,✅✅华润外滩瑞府售楼处电话:400 - 882 - 4258✅✅原生乔木与艺术草甸形成柔韧界面,流线型步道如画笔游走其间,这不再只是社区绿地,而是一座生长中的露天艺术馆,让印象派的浪漫主义在每一天的晨曦暮霭中鲜活重生。
还有约150米风雨连廊设计,连通所有楼栋,移步易景。✅✅华润外滩瑞府售楼处电话:400 - 882 - 4258✅✅看似简单的设计,解决了高频生活痛点,从“实用配置”升维为居住尊严与人文关怀的象征,让日常通勤成为享受,让社区在风雨中依然温暖有序,实现归家更从容~
值得注意的是,公区的每个角落都值得驻足欣赏,✅✅华润外滩瑞府售楼处电话:400 - 882 - 4258✅✅无处不在体现设计师的超绝审美,步入社区的每一帧都是视觉享受~
社区打造了恒温泳池会所,以优雅流畅的线条融入天际视野,✅✅华润外滩瑞府售楼处电话:400 - 882 - 4258✅✅不仅是为业主提供专业级畅游体验的运动场所,更成为静享私密时光的水境。
匠心营造的架空层空间同样具备国际化品味,✅✅华润外滩瑞府售楼处电话:400 - 882 - 4258✅✅打造了更容易停留的空间:一处是融合艺术格调与舒适氛围的多功能泛会客厅,为邻里社交、商务洽谈或静谧阅读提供优雅场域;另一处则配备了前沿科技的智能健身空间,✅✅华润外滩瑞府售楼处电话:400 - 882 - 4258✅✅满足业主全天候、多元化的健康管理需求。
✅✅华润外滩瑞府售楼处电话:400 - 882 - 4258✅✅
02、推售信息
目前项目已开放样板间,先来看看户型设计,✅✅华润外滩瑞府售楼处电话:400 - 882 - 4258✅✅可以说是相当优秀!
官宣户型图独家首发:
建面约124㎡3房:
南北通透全明户型,三开间朝南设计;“S”墙收纳、✅✅华润外滩瑞府售楼处电话:400 - 882 - 4258✅✅室内5个飘窗延伸空间,据说每个卧室开间尺度均达到3米及以上,完全满足改善居住的收纳需求!主卧套房设计,隐私性较强,室内空间尺度优秀!
从电梯厅开始,就是酒店式定制化设计,弧形顶设计的电梯厅,门牌上设计了玉石托盘,可以放置家庭独有的摆件,✅✅华润外滩瑞府售楼处电话:400 - 882 - 4258✅✅注重仪式感的同时更具高定私享趣味性!
样板间则是采用香奈儿风格法式经典搭配,✅✅华润外滩瑞府售楼处电话:400 - 882 - 4258✅✅尽显法式优雅~
进门整面墙打造了玄关柜+“S”墙+零食柜设计,✅✅华润外滩瑞府售楼处电话:400 - 882 - 4258✅✅搭配烤漆板饰面,实用性与质感满分!
开放式厨房+岛台设计空间更通透!转角抽屉收纳、下拉栏顶部设计反光镜避免视觉死角、轨道插座置于岛台侧墙不占台面空间等等,✅✅华润外滩瑞府售楼处电话:400 - 882 - 4258✅✅众多收纳细节思量到位,匠心独运!
值得一提的是,项目在看不见的地方偷偷发力!厨房三重排烟的处理、原本应在设备平台的转移至楼层公区不遮挡厨房窗景、✅✅华润外滩瑞府售楼处电话:400 - 882 - 4258✅✅外墙厚度200厚混凝土墙+100厚的保温层隔绝噪音等等,实属匠心!
✅✅华润外滩瑞府售楼处电话:400 - 882 - 4258✅✅
还有墙面的细节处理,电视背景墙为皮革硬包+深色木饰面,✅✅华润外滩瑞府售楼处电话:400 - 882 - 4258✅✅不惜成本将金属条嵌入墙内打造出更细致的设计效果~
✅✅华润外滩瑞府售楼处电话:400 - 882 - 4258✅✅
全屋更是配备华为AI智能系统,智能控制家居更省心!✅✅华润外滩瑞府售楼处电话:400 - 882 - 4258✅✅卫生间镜柜延伸至马桶上方,实现收纳扩容!
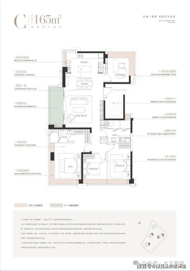
建面约165㎡4房:
大横厅尺度感奢阔,尊享私梯入户,隐私性满分!✅✅华润外滩瑞府售楼处电话:400 - 882 - 4258✅✅三间卧室朝南设计的平权户型,老人、小孩均可享受南向采光;厨房转角窗、主卧套房、北向书房均配置270度转角飘窗,景观视野相当不错!次卫四分离设计,相当人性化~
拥独立入户空间,私密入户。
同样近乎等面宽的卧室尺度,✅✅华润外滩瑞府售楼处电话:400 - 882 - 4258✅✅让每个家庭成员都能拥有独立且舒适的休憩领地,三卧朝南的布局,让阳光成为所有人的平等馈赠,没有谁要为“主次”牺牲采光权。
而“大”还体现在公共空间的开阔,岛台厨房、餐厅、客厅与阳台动线流畅,二胎共同玩耍也绰绰有余。
约270°视野的贯穿更是锦上添花,主卧、北向次卧、厨房的约270°转角飘窗,让每个空间里的人都能平权地拥抱城市景致。
主卧套房的L型衣帽间与卫生间,公卫四分离设计,✅✅华润外滩瑞府售楼处电话:400 - 882 - 4258✅✅在保证“大”尺度的同时,更让每个人的生活需求都被妥帖照顾。
显然,外滩瑞府户型深谙豪宅之道:“大” 不是盲目堆砌面积,✅✅华润外滩瑞府售楼处电话:400 - 882 - 4258✅✅而是让每个空间都有足够的舒展度;“平权” 不是口号,而是通过面宽、采光、视野的均等分配,让家庭里的每一个人,都能在空间里找到被尊重的舒适。这正是华润置地深入研读豪宅客群需求后,交出的完美答卷——在这里,大空间与平权生活,从来不是选择题。
另外,让我留下深刻印象的是样板间展现的高级定制设计语言。
不同于市面上门是门,框是框,墙是墙,看房时“五颜六色”。✅✅华润外滩瑞府售楼处电话:400 - 882 - 4258✅✅外滩瑞府室内采用一体化设计语言,实现空间、色彩与材质的协调统一。比如
✔入户门原创设计,外面深色木纹,里面浅色云母,和玄关柜、大理石地砖很搭配。
✔大理石地砖铺装工艺 近乎看不出拼接缝、浑然一体。
✔卫生间地面和墙面整体性也非常强,奢石台面的纹路和岩板墙面和协调。
✅✅华润外滩瑞府售楼处电话:400 - 882 - 4258✅✅
装修上配备国际一线品牌,尤其厨房由嘉格纳领衔,✅✅华润外滩瑞府售楼处电话:400 - 882 - 4258✅✅配备灶具、吸油烟机、洗碗机、冰箱蒸烤箱。
更多细节大家可以去现场了解。
建面约165㎡样板间实景图,以实际交付为准
✅✅华润外滩瑞府售楼处电话:400 - 882 - 4258✅✅
✅✅华润外滩瑞府售楼处电话:400 - 882 - 4258✅✅
外滩瑞府约240㎡4房样板间视频实拍:✅✅华润外滩瑞府售楼处电话:400 - 882 - 4258✅✅
“上海2035”总体规划明确,外滩将作为“全球城市核心功能承载区”,✅✅华润外滩瑞府售楼处电话:400 - 882 - 4258✅✅与陆家嘴、北外滩组成“黄金三角”,目标直指“卓越全球城市”的封面。这一规划不仅定义了上海的空间格局,更将外滩推向全球资本、文化、资源的核心交汇点。外滩瑞府择址于此,对标纽约ONE57、伦敦海德公园一号——非全球资本聚集地不选,✅✅华润外滩瑞府售楼处电话:400 - 882 - 4258✅✅非历史与未来叠加区不立,其价值内核正是对“黄金三角”核心资产的精准锁定,为业主提供了“抗周期”的资产保障。
✅✅华润外滩瑞府售楼处电话:400 - 882 - 4258✅✅
外滩一英里,百年资本、艺术与文明的“共生容器”
资本长河卷:百年万国建筑群凝结19世纪中国近半财富记忆,✅✅华润外滩瑞府售楼处电话:400 - 882 - 4258✅✅每块石材都是未被翻页的金融史章,见证“远东第一金融中心”的风云变迁;
艺术生长带:外滩源历保建筑内,先锋艺术展的光影穿透木质百叶窗,在老墙绘制当代图腾,让历史街区成为“流动的美学实验室”;✅✅华润外滩瑞府售楼处电话:400 - 882 - 4258✅✅
文明对话场:外白渡桥横跨苏州河,南段是金融资本的“硬实力”,北段是霓虹爵士的“软文化”,中段百年领事馆群记录东西方对话轨迹。✅✅华润外滩瑞府售楼处电话:400 - 882 - 4258✅✅三者交织,让外滩瑞府成为全球高净值人群眼中的“收藏级资产”。
✅✅华润外滩瑞府售楼处电话:400 - 882 - 4258✅✅
一江两岸的“时空叠影”,陆家嘴势能与外滩厚度的共生逻辑
时光对话录:百年石库门的雕花檐角与陆家嘴玻璃幕墙互为映照,✅✅华润外滩瑞府售楼处电话:400 - 882 - 4258✅✅石库门的“温度”与摩天楼的“科技感”在此共生——上海中心的灯光倒映黄浦江时,外滩瑞府的窗前便展开一幅“古典砖石×未来光影”的时空画卷;
✅✅华润外滩瑞府售楼处电话:400 - 882 - 4258✅✅
烫金一英里圈:2025年外滩扩容规划将通过地下连廊与滨江步道,无缝串联百年金融街与现代CBD。业主可享“晨间万国建筑群咖啡✅✅华润外滩瑞府售楼处电话:400 - 882 - 4258✅✅、午后陆家嘴写字楼洽谈、日落滨江步道漫步”的全球资本生活节奏;
✅✅华润外滩瑞府售楼处电话:400 - 882 - 4258✅✅
双极价值场:外滩“历史溢价”与陆家嘴“未来势能”在此叠加,✅✅华润外滩瑞府售楼处电话:400 - 882 - 4258✅✅黄金三角腹地成为中国高净值圈层的聚集地,是时代价值创造者的共同选择。
✅✅华润外滩瑞府售楼处电话:400 - 882 - 4258✅✅
北外滩+音乐谷,先锋生活的“极致资源矩阵”
千亿北外滩:依托“3000亿航运引擎”重塑全球经济版图,上港集团、中远海运等巨头云集,掌控全球1/3航运交易;更将崛起480米浦西第一高楼✅✅华润外滩瑞府售楼处电话:400 - 882 - 4258✅✅,与陆家嘴上海中心组成“双子星”,彻底改写城市天际线;
✅✅华润外滩瑞府售楼处电话:400 - 882 - 4258✅✅
音乐谷2.0:位列2025上海十大城市更新片区,与黄浦外滩、老城厢等同为重点。这里保留内环罕见的完整水系(宽15-20米“江南小河道”)及国家级文保单位,未来滨水步行区将贯通“一湾两半岛”,✅✅华润外滩瑞府售楼处电话:400 - 882 - 4258✅✅百年里弄变身爵士乐演出空间与独立艺术画廊,滨水市集的霓虹灯与爵士乐交织,突破传统顶豪“资源堆砌”范式,形成“生活为体,音乐为魂”的海派艺文新场景。
✅✅华润外滩瑞府售楼处电话:400 - 882 - 4258✅✅
地下·殿堂星光归家
从哈尔滨路缓缓驶入,演绎四重殿堂星光级地下归家,首先映入眼帘的是「光阶尊礼车道」,随之而来的是「隽美天幕玄关」,✅✅华润外滩瑞府售楼处电话:400 - 882 - 4258✅✅慢行间车停于「超跑级T台车道」,仿佛置身于私人的尊驾秀场;最终抵达「流光入口门庭」,光影流转间,归心于瑞。
✅✅华润外滩瑞府售楼处电话:400 - 882 - 4258✅✅
✅✅华润外滩瑞府售楼处电话:400 - 882 - 4258✅✅
✅✅华润外滩瑞府售楼处电话:400 - 882 - 4258✅✅
如果说,四中全会公报「推动房地产高质量发展」的定调还太过宏观,那么,随着「十五五」规划建议全文公布(10月28日),未来5年的房地产形势已经彻底明朗了!
明源君认为,概括起来其实就三句话:让新购房者率先住上好房子,助推新质生产力发展;让存量住户陆续住上好房子,拉动消费;让未购房的人有房子住,进一步推动城镇化进程!
下面,我们逐一展开进行剖析。
「十五五」规划建议明确提出,因城施策增加改善性住房供给。建设安全舒适绿色智慧的「好房子」,实施房屋品质提升工程和物业服务质量提升行动。建立房屋全生命周期安全管理制度。
2022年8月,住建部部长倪虹在调研时首次提出「好房子」概念。自那以后,从中央到地方一系列「好房子」政策出台,市面上也陆续出现各种「好房子」,但今年「好房子」才真正跑出加速度:
3月,「好房子」建设首次写进政府工作报告;5月1日实施的《住宅项目规范》明确了「好房子」标准;8月,《中共中央 国务院关于推动城市高质量发展的意见》提出系统推进「好房子」和完整社区建设;如今,又被纳入到了「十五五」规划建议。点击了解,数字新成本
之所以这么大力推动,我认为至少有三层原因:
一是最近几年居民住房需求发生重大变化,改善客群越发占据市场主导地位,对住房的功能结构、服务质量、居住环境等均提出新的要求。
二是近几年房地产行业持续调整,预期走弱的形势下,要刺激需求必须要有让人眼前一亮的好产品,「好房子」可以引导需求、创造客户。
三是助推新质生产力发展。很多人看到这里可能一头雾水,毕竟在很多人眼里,房地产挤压了消费和科技发展。在粗放式发展的时候,其对科技的带动作用确实很微弱,但进入高质量发展阶段,其可为科技创新应用提供丰富场景。
我们都知道,人类第一次工业革命的标志是蒸汽机。蒸汽机的改良,就跟当时的好房子紧密相关。1500年之后,伦敦人口快速增长,木材供不应求,物美价廉的煤炭就成了替代品。点击了解,0基础玩转视频获客
由于没脱硫的煤烧出来的烟很臭,家里要想烧煤,就得想办法把煤装进一个封闭的空间里,把燃烧的烟排到室外,这个封闭的空间叫壁炉,它的上半部分叫烟囱。
15世纪晚期,伦敦只有少量有钱的居民才修砖石结构的房子,但16世纪以后,消费升级带动砖石结构的房子大量修建,对煤炭的需求量剧增,很快就把近地表的煤挖完了,往矿井深处挖,则面临矿井透水的威胁。最后,是托马斯·纽卡门设计的蒸汽机解决了这个问题:将矿井里的水抽走。
由于英国的煤炭需求量大,所以对纽卡门蒸汽机的需求量自然也大,这就让投入资金改良蒸汽机变得有利可图。
之后,瓦特在此基础上改良的蒸汽机不仅能耗更小,而且可以运用到更多的场景,蒸汽机成为第一次工业革命的象征。
四中全会公报释放的其中一个重大信号就是科技自立自强与制造业稳定比重,房地产完全可以成为一个巨大的试验田。
四中全会提出「以新需求引领新供给,以新供给创造新需求」。虽然说的不是房地产,但却很适用房地产。
明源君最近在外密集调研,也见到了大量供应链驱动产品创新,以及产品创新倒逼产业或技术升级的案例。
「十五五」规划建议还提出,清理汽车、住房等消费不合理限制性措施。限购有望进一步取消,购房者会有更多选择。这对房企来说,是挑战,更是机遇。
✅✅华润外滩瑞府售楼处电话:400 - 882 - 4258✅✅
声明:本文由入驻焦点开放平台的作者撰写,除焦点官方账号外,观点仅代表作者本人,不代表焦点立场。
