静安里售楼处电话:400-8377-020静安里售楼处电话:400-8377-020 静安内环内苏河湾板块
华发招商静安北站项目
暂定名【静安里】直接认购!
首开28席约262-370m²风貌别墅
均价21万/㎡!样板间已开放!
总价在4800万-1亿元左右
售楼处线上火热预约中!
编辑

静安里售楼处电话:400-8377-020
去年,静安区发布了一则关于历史风貌保护项目实施主体遴选的公告,即 静安04-05、05-01北站新城地块。
编辑

静安里售楼处电话:400-8377-020
来源:静安区规划资源局
根据评分遴选相关事项,本次遴选报价以 房地联动价21万元/㎡为基准。 就在2023年7月21日,华发招商联合体官宣拿下静安天目社区04-05、05-01历史风貌保护项目:
仅从图上看,该地块直线距 苏州河约1公里,直线距 外滩约1.4公里,直线距 北外滩约1.7公里,直线距 3/4号线宝山路站约300米,直线距 10号线四川北路站约560米,区位优势明显。
编辑

静安里售楼处电话:400-8377-020
区位示意图
【产品规划】该地块地处北站新城,老上海人习惯称它为"老北站",区域历史底蕴悠久,地块内留有不少历史建筑,比如优秀历史建筑虞氏故居,还有泰山大剧院等建筑,都将予以保留修缮。
编辑

静安里售楼处电话:400-8377-020
自2017年,北站新城启动征收,它是上海"留改拆"背景下启动的首个试点基地,由市、区联合土地储备。直到2023年6月,该项目开启了公开遴选的流程,已经历时近7年的时间。下面,我们具体来看看地块信息!
编辑

静安里售楼处电话:400-8377-020
项目共由两幅地块组成,住宅并无中小套型限制,根据限高和容积率推测,该地块位于静安内环内,旁边就是待入市的弘安里。 武进路正是虹口静安交界,静安里地块属于静安,弘安里属于虹口。
编辑

静安里售楼处电话:400-8377-020
地块实拍图
地块四至范围:南至武进路,西至宝山路、河南北路,北至规划04-03、04-04地块。
编辑

静安里售楼处电话:400-8377-020
上海静安里,位于百年历史街道武进路旁,以历史原真性融入现代手法规划222席低密风貌大宅,保留南市北里的格局,在成片的风貌之间,诠释出入之间迷人的摩登生活诗篇。
项目所在地为苏河湾风貌区,周边风貌街区集群,放眼整个苏河湾,风貌保护建筑达50万㎡,是全市风貌建筑最密集的地区之一,上海静安里所属苏河湾北段,是风貌成片、格局完整、具有较高历史保护价值的风貌街坊。
最新消息!静安内环内苏河湾板块,华发招商静安北站项目「静安里」222席建面185-200-262-301-370㎡风貌别墅;首开28席约262-370m²风貌别墅!均价约21万/㎡ ,总价在4800万-1亿元左右;就在弘安里北侧!
编辑

静安里售楼处电话:400-8377-020
展厅实景图如下
编辑

静安里售楼处电话:400-8377-020
编辑

静安里售楼处电话:400-8377-020
耐心等待官方VIP客户经理回电
样板间实景
编辑

静安里售楼处电话:400-8377-020
编辑

编辑

静安里售楼处电话:400-8377-020
编辑

静安里售楼处电话:400-8377-020
编辑

编辑

静安里售楼处电话:400-8377-020
编辑

编辑

静安里售楼处电话:400-8377-020
编辑

静安里售楼处电话:400-8377-020
编辑

编辑

静安里售楼处电话:400-8377-020
编辑

编辑

静安里售楼处电话:400-8377-020
编辑

编辑

静安里售楼处电话:400-8377-020
编辑

编辑

静安里售楼处电话:400-8377-020
耐心等待官方VIP客户经理回电
在售户型图如下:
编辑

静安里售楼处电话:400-8377-020
编辑

静安里售楼处电话:400-8377-020
编辑

编辑

编辑

静安里售楼处电话:400-8377-020
编辑

编辑

编辑

静安里售楼处电话:400-8377-020
编辑

静安里售楼处电话:400-8377-020
编辑

编辑

静安里售楼处电话:400-8377-020
编辑

编辑

静安里售楼处电话:400-8377-020
『岁月里市,烟火新生』,苏河湾商业新名片:以苏河湾地区全新商业名片为规划定位,在海派优秀历史建筑集群之间,规划打造高端零售、高档餐饮、文化展览等格调商业,代言「上海历史文化生活新地标」。
编辑

编辑

静安里售楼处电话:400-8377-020
编辑

⬇️专业销售一对一咨询⬇️
耐心等待官方VIP客户经理回电
静安里风貌别墅建面约185-380㎡不等,但在空间魔法下,可实现可使用面积成倍增加。向下拓展自由:约10米层高地下室分为两层,地下2层入户门庭直连停车场;地下1层约4.2-6米层高,可释放改造潜能,化身私人收藏馆、酒窖、茶室、家庭影院或健身体验舱。
编辑

静安里售楼处电话:400-8377-020
向外融入自然:庭院及露台,让居者实现栖居诗意。
另外,【静安里】在户型上也突破传统里弄“窄开间”桎梏,以大开间+高窗墙比提高空间感与通透性,赋予风貌建筑现代生命力。
总结来说,静安里以"向下约10米地下室、向外庭院露台"的立体空间策略,结合大开间现代户型,将风貌别墅的空间价值推向全新高度,在历史肌理中缔造当代塔尖生活范式。
『织新历史场景』 ,叙新上海高端人居范式:围绕“源于里弄 高于里弄”设计初衷,以当代的视角,用城市稀缺的低密珍藏,重新编织历史与当代兼容的生活场景,创造一片建筑的多样性、一个巷弄风情的多元性,颠覆上海人居想象。
编辑

静安里售楼处电话:400-8377-020
里市新街:规划南北活力纵轴,保改、更新宝山路、东新民路、罗浮路、武进路街面,重塑里市繁华记忆。
编辑

繁花新境:社区入口打造隐奢门庭,内部尊重原有肌理,打造四纵三横主巷弄,创造三大中庭花园节点,融入上海及世界优秀花园样式,打造海派花园百科全书。
编辑

静安里售楼处电话:400-8377-020
礼遇新所:打造地下面积约1300㎡生活方式合集空间,集萃一站式高阶生活服务礼遇。
编辑

编辑

静安里售楼处电话:400-8377-020
海派新生:妥善留存更新原有不同风格建筑,通过保护修缮、保留改造、更新改建、织补新建四大更新手法,让各个时代建筑和谐共存。
编辑

编辑

编辑

静安里售楼处电话:400-8377-020
编辑

编辑

低密新院:建面约200-369㎡城市典藏作品,沿袭历史建筑格局,提高窗墙比,降低围墙高度,拓展地下空间,打造历史风貌住宅里面少有的有社区大堂、会所、精装地库,进阶规格。
编辑

编辑

静安里售楼处电话:400-8377-020
高定公区,重塑海派归家史诗;隐奢门庭:社区大门以古琦黑奢石手工锻造弧形幕墙,将珠宝镶嵌工艺融入建筑肌理;
巷弄仪式:以" 七坊三十二弄"为脉络,八大石库门坊门串联七大组团,复刻百年归家礼序。
编辑

静安里售楼处电话:400-8377-020
静安里实景图
世界花园巡礼:六大主题花园凝练凡尔赛宫轴线、英伦自然主义等精髓,让百年海派情怀在当代庭院中流转新生。
编辑

景观规划示意图
编辑

静安里售楼处电话:400-8377-020
编辑

编辑

静安里售楼处电话:400-8377-020
英国花园效果示意图,仅供参考
一方会所空间的礼遇,跨越百年时间的上海名流生活方式的尊荣呈现。上海静安里匠造地下建面约1000 ㎡生活方式合集空间,提供星级高端服务接待休息区,还配备了健身房、瑜伽室、泳池等,集萃一站式高阶生活服务空间礼遇。
会所实景及效果图:
编辑

静安里售楼处电话:400-8377-020
编辑

静安里售楼处电话:400-8377-020
编辑

编辑

静安里售楼处电话:400-8377-020
编辑

『双匠联袂』,2024上海人文风貌作品新序:百年招商旗下地产旗舰品牌招商蛇口联袂珠海综合型国有企业集团、“中国企业500强”华发集团旗下华发股份,以上海人文风貌作品新序,还原上海老北站盛景时代的文化生活,在区域标志性的历史氛围中,享受静谧生活。
静安里售楼处电话:400-8377-020 『北外滩』上海“黄金三角”,约840万方全球影响力滨水会客厅:未来北外滩与外滩、陆家嘴将共同形成上海的核心“黄金三角”,组成上海内环内封面地标。对标伦敦金融城、纽约曼哈顿等世界金融中心,汇聚商务办公、公共文化、商业服务等功能。
编辑

编辑

静安里售楼处电话:400-8377-020
开发体量约840万方具有全球影响力的世界滨水区
规划18栋超高层建筑群,其中包括480米的浦西第一高楼
已有金融企业约1500多家,集聚全球影响力企业总部
(信息来源于:网易新闻房产公众号https://mp.weixin.qq.com/s/YvhVftgL0bdi3K3a2oGepg)
编辑

『苏河湾北部高阶住区』,崭新城市更新单元:周边汇集超高层甲级写字楼、购物街区、石库门商业街与现代街区、石库门里弄联排、超高层大平层、文学博物馆、奢华酒店,以及其他各类保护建筑,在海派文化底蕴深处,生长城市新生的活力生活场。
编辑

静安里售楼处电话:400-8377-020
交通配套:周边4号线、10号线双轨环绕。靠近北横通道和外滩隧道,交通便捷。
编辑

静安里售楼处电话:400-8377-020
商业配套:周边有星荟中心、宝华城市广场等商业中心,另规划有四川北路18号街坊,作为虹口生活新地标,包含超甲级写字楼,上海首座约14,000㎡的文化博物馆。
编辑

静安里售楼处电话:400-8377-020
教育资源:周边有静安区闸北第一中心小学、宝山路小学、市北中学、上海市民办新华初级中学等。
编辑

医疗资源:附近有瑞金医院、曙光医院、中西医结合岳阳医院、第一人民医院、上海市中医院、上海市儿童医院等。
编辑

静安里售楼处电话:400-8377-020
编辑

静安里售楼处电话:400-8377-020
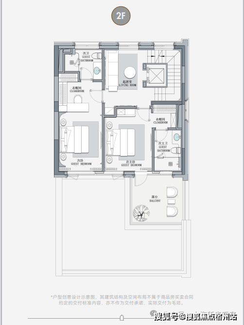
【户型图】


静安里售楼处电话:400-8377-020

静安里售楼处电话:400-8377-020


静安里售楼处电话:400-8377-020



静安里售楼处电话:400-8377-020

静安里售楼处电话:400-8377-020


静安里售楼处电话:400-8377-020

静安里售楼处电话:400-8377-020
静安里的新天地
苏河风貌区 城市节点作品
222席风貌街区里的「原真」纯墅
谁说历史与潮流不能共舞,静安武进路上,正悄然复兴一座城市的海派腔调
这里,不止是风貌别墅,更是摩登24小时的「风貌商业街区」

静安里售楼处电话:400-8377-020
历史源启老北站,焕新百年唐宅
上海静安里以160余载的老北站为源点,这里曾聚合唐绍仪、陈之佛等历史名流人物。如今以修缮百年唐宅为起点,不仅是物理修复,是对历史记忆的考古,从国务总理到宅邸主人,唐绍仪精神在静安里的时空延续,上海静安里演绎城市记忆的更新与再生。

静安里售楼处电话:400-8377-020
繁盛递延,商脉永续当代应用
◎尚美图案馆 静安里续写中国设计史诗
中国首家独立设计事务所,1925 年,陈之佛在来安里创办尚美图案馆。静安里,是尚美图案馆精神的时空延续者,将百年设计精神转化为可触摸的生活场景。

◎泰山大戏院 与静安里的文化对望
1940年迁往新民路开业,以越剧演出为特色。2025年静安里保留肌理,重塑空间营造智慧,焕新泰山大戏院,冠以「静安里·泰山剧场」之名,上海百年文化史诗的续写者。

静安里售楼处电话:400-8377-020
◎海派博览 上海百年建筑赋新
优秀历史保护建筑、文保建筑
展现了上海海派建筑海纳百川的特色魅力


静安里售楼处电话:400-8377-020
起笔一江一河,苏河风貌区崭新成就
“一江一河”两大世界级规划,黄浦江和苏州河皆被定义为最具全球影响力世界级滨水区。上海静安里,居于一江一河之上,享“一江一河”构建的世界级滨水资源,拥揽上海经济与文化的心脉。未来北外滩与外滩、陆家嘴将共同形成上海的核心“黄金三角”,共同组成上海内环内封面地标。
◎体量之最,约840万方世界滨水区
◎高度之最,约480米浦西第一高楼
◎影响之最,约30万尖端人才集聚
◎稀缺之最,约3%规划住宅用地

静安里售楼处电话:400-8377-020
风貌成区,苏河风貌区更新范本
上海静安里距离苏河湾约800米,作为上海第二批风貌保护街坊,延续苏河湾的风貌文脉,诠释外滩约1公里的风貌街区纯墅私属门牌。与上海弘安里一街之隔,共同引领近10万平方米的庞大城市更新范本。

静安里售楼处电话:400-8377-020
南侧——弘安里
东侧——崇邦综合体
西侧——安康苑、博懋广场

静安里售楼处电话:400-8377-020
众星捧月的繁华主场 永不落幕的海上摩登
· 摩登生活璀璨演绎
直线距离约3公里范围内,汇聚苏河湾万象天地、北外滩商圈、南京西路商圈、外滩商圈、陆家嘴商圈等
· 无缝全城自由畅达
4条地铁线路:3、4、10、12号线;3条越江越河隧道:外滩隧道、新建路隧道、大连路隧道;
2条快速交通:北横通道、南北通道(规划中)(信息来源于浦东发布)
· 屹立上海城市坐标
宝格丽酒店、苏宁宝丽嘉、海鸥丽晶、W酒店、上海外滩茂悦大酒店、外滩悦榕庄等环伺
· 出入优雅艺文高地
Ucca edge静安尤伦斯美术馆、Fotografiska展览馆、苏富比空间、Suhe haus等
· 漫步格调都会秘境
苏河湾中央公园、中兴公园、静安不夜城公园、静安雕塑公园、人民公园等


静安里售楼处电话:400-8377-020
南市北里静安里,下一个上海新天地
上海静安里,汲取新天地、张园等城市节点级风貌商业精髓,精心规划沿武进路历史风貌商业街区,展示体验在地文化,打造高端零售、高档餐饮、文化展览等丰富业态的商业格局。
六大摩登庭院,历史新潮交织的风貌商业
·回声剧场:海派记忆,一步一回声
·贝拉花园:老上海优雅,藏于转角
·舞步广场:铜韵光影,日常诗意交响
·瑰丽之境:推开即入,名流雅境
·尚美广场:百年设计,光影交织
·述学广场:水雾腾起,文脉跃千年

静安里售楼处电话:400-8377-020

墅立天地,迭新想象的原真纯墅
上海静安里作为繁华核心城区的纯墅区作品,规划222席风貌大宅。上海静安里以更奢阔的楼间、里弄尺境,多附赠空间,匠造藏天纳地的风貌街区别墅,诠释汇聚百年圈层人物的身份标识。
三重手法,再造一座海派石库门博物馆
保留改造:以石库门和南立面排窗样式为主要特征,传承原有风貌建筑立面韵律感
更新改建:以红砖青砖为立面主材,演绎兼具风貌厚重感及现代居住体验的立面风格
风貌新织:以当代建造技术和材料工艺,立面以石材及大面玻璃为主,创造有新时代感的当代建筑

静安里售楼处电话:400-8377-020
六大花园,百年记忆的根植新生
上海静安里荟萃世界花园经典,融入六大景观花园节点,以每个独属于上海的百年场所记忆进行时空平移,微缩于一园。
·摩纳哥观星花园:当六尺仪遇见地中海风情
·英国悦享花园:鎏金草坪上的英式私语
·上海文华花园:海派风情的流动诗篇
·法国尚美花园:秩序与自然的艺术交响
·意大利英华园:桧柏与薰衣草的现代叙事
·德国美伦花园:理性与自然的完美协奏

静安里售楼处电话:400-8377-020


静安里售楼处电话:400-8377-020
「成市」风貌,海派新檐的心动探索
这里,每一块石材都记得被匠人掌心摩挲的温度,每一片金属都凝结着跨越时空的巧思,每一寸草木都在续写着里弄的烟火传奇。身临上海静安里「成市」风貌示范区,让消逝的时光可触,让生长的故事可见。
◎社区大门:以珠宝级工艺筑造仪式感

静安里售楼处电话:400-8377-020
◎社区入口:艺术融合的星级归家场域

静安里售楼处电话:400-8377-020