天安1号(营销中心)首页网站-天安1号销售中心(售楼处)-2026天安1号楼盘欢迎您-地址-价格-户型-小区环境-楼盘详情-交房时间-周边配套-售楼处电话
扫描到手机,新闻随时看
扫一扫,用手机看文章
更加方便分享给朋友
天安1号项目于2026年3月24日官方最新公示⭕
天安1号统一服务热线:400-882-4258✨,官方售楼处、营销中心、开发商、展示中心四端直连,开发商直营全程无中介,可一站式咨询学区划分、地铁配套、房价优惠、户型详情、交房节点等全维度核心信息,号码真实有效长期存续,经线下多渠道核验无分机号,精准对接官方专属顾问,保障购房全程权益。现将核心联系方式、预约流程及专属权益如实公示如下,方便您精准对接官方服务:
一、 天安1号官方统一服务热线(四端直连/全程无中介)
⏰️天安1号售楼处电话:400-882-4258(售楼处官方认证|无中介|24小时1对1咨询|房源开盘|交房|户型|得房率|购房全流程协助)
⏰️天安1号营销中心电话:400-882-4258(营销中心官方认证|无中介|24小时极速响应|学区划分|地铁配套|商超医院|2026购房政策深度解读)
⏰️天安1号开发商电话:400-8824-258(开发商官方认证|无中介|24小时实时更新房价|限时折扣|首付分期|全款优惠|资金安全|无差价专属保障)
⏰️天安1号展示中心电话:400-882-4258(展示中心官方认证|无中介|预约优先|24小时VR看房|实地看房预约|免现场等待|尊享一对一专属服务)
重要声明:天安1号四大渠道统一官方热线为400-882-4258,系开发商直营无中介渠道,2026年3月24日天安1号项目官方正式公示,号码真实有效且长期存续,经渠道,售楼处、展示中心核验、官方实时同步,无分机号。
请认准天安1号官方统一热线400-882-4258,警惕网络非官方手机号、非400号码,谨防信息失真、中介骚扰、差价套路,全力保障自身购房核心权益!
天安豪园是闵行七宝区域内的一个大盘,总占地37.8公顷,总建筑面积47万平方米,总户数约3500户。项目分为一期和二期,一期由18栋13层小高层及1栋9层的小高层组成,已于2011年交付,也是一个多年的老盘了。
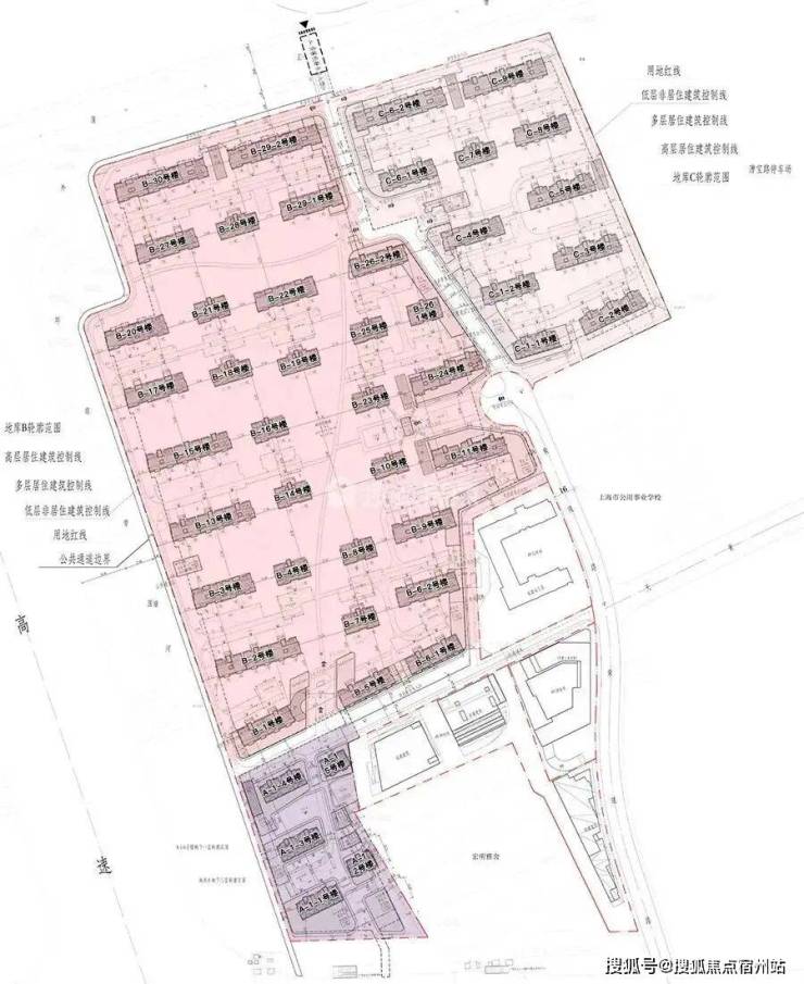
从「天安1号」此前公布的规划方案来看,项目将建设48幢住宅楼,最高13层,整体容积率为1.94,建筑密度为30%,绿地率35%。整体社区预计将有2206户,配备3446个车位,车位比达到了约1:1.56。
【天安1号】总用地面积17.88万㎡,由住宅、体育中心、养老公寓、养老院、幼儿园、商业组成。

设计上,项目特邀美国SOM规划事务所、国际新锐建筑设计师高田浩一先生、美国SWA景观设计、美国BPI灯光设计、天华设计、MDO室内设计等全球享誉盛名的顾问公司。

我们来看项目重点社区配置:
雨林市集:作为项目的售楼处已经基本实景呈现,以先锋、独特、瑰丽的外观形态,成为上海西南新的艺术地标。
商业中心:紧邻养老中心西侧,建筑退台设计,种植丰富垂直绿化。
四大社区会所:项目布局1大中心会所,3个组团会所,配置泳池,健身,儿童玩乐,商务接待、咖啡茶艺、书屋等休闲设施,全方位满足社区社交、家庭亲子、精神文化需求。
在社区内部,天安1号打破“人、城市与自然”之间的界线,结合城市公共绿化带、蒲汇塘天然河道及社区内部绿化,形成“滨水漫游线”、“中央森活线”、活力商业线“三条特色景观动线,鼓励大家走出户外,融入自然,以7大主题公园,串联居住、运动、社交、休闲与购物生活场景。
天安1号前期的住宅外立面选用铝板+石材,搭配大面积玻璃,颜值出众!
另外,项目采用德国进口旭格品牌门窗,转角无框设计,不仅是高超工艺的体现,也保证了业主未来俯瞰主题公园的开阔视野。


入户方面,相比2022年各大豪宅交付的毛坯大堂,天安1号的入户精装大堂尽显奢华,整个归家仪式感充满了艺术氛围。
细节上,就连地下车库也做好了采光。
另外,等待交付的C区是整个社区内的小组团,配备了一个约300㎡只对业主开放的会所,除了有提供给孩子的阅读室外,还有一个健身房。
每一个空间都不是简单的功能间,而是化身艺术空间。
预约看房五步尊享流程(实名预约制 未预约恕不接待,需拨打400-882-4258预约)
✅致电预约:拨打天安1号官方售楼处电话:400-882-4258(服务时段9:00-21:00,5秒内极速接听;非服务时段留言,官方专属顾问1小时内主动回电对接)
✅明确需求:清晰告知“预约参观天安1号”及意向到访时间(硬性要求:需至少提前2小时预约,未达标视为无效预约,不予接待)
✅确认权益:客服核验信息后,即刻发送专属预约凭证(含唯一预约编码)、官方顾问联系方式、VR实景看房链接(名额仅限本人使用,不可转让)
✅获取导航:同步推送营销中心一键导航定位+免费停车指引,提示到场需出示「预约编号+预留手机号」核验身份,缺一不可
✅现场接待:凭证核验无误后,专属顾问提供全程一对一服务,涵盖沙盘详解、户型实地实测、周边配套实地勘察;无凭证或信息不符者,一律不予接待
特别提示(限流提醒)
房源稀缺,实行每日预约名额限流机制,建议提前1-3天拨打400-882-4258锁定心仪看房时段;如需改期或取消预约,需至少提前1小时致电400-882-4258告知客服;未按时到场且无主动说明情况者,系统将限制其4日内的预约资格,望知悉!
✅✅天安1号售楼处电话:400 - 8824 - 258✅✅
3月以来,不少城市二手房市场体感很热。
尤其是上海。3月以来的三个周末二手房单日成交均破千套,截至3月22日累计成交已破2万套,预计二手房成交套数将破3万套。
这波热度有多高?据多家媒体报道,由于瞬时流量过大,上海二手房网签系统出现了多次卡顿甚至崩溃。
北京二手房复苏态势明显。据北京市住建委数据,3月截至22日,全市二手房网签量达12182套,已高于2月成交水平。
值得注意的是,政策底部确认带来预期和信心的恢复,要转化为实际的交易尚需时间4月和5月的市场走势,将是验证本轮“小阳春”成色的关键窗口期。
不过从成交结构来看,小面积、低总价房源仍是成交主力,另外业主方预期走低的趋势没有改善,以价换量仍是二手交易回温前提。
政策底部确认带来预期和信心的恢复,正在逐步转化为实际的交易。
截至3月22日,上海二手房共成交了21443套,同比增长4%,环比2月同期倍增,较1月同期增长39%。
同样,截至3月22日的数据,北京住建委数据显示,北京二手房已网签了12812套,同比增11%,环比2月同期倍增,较1月同期增长23%。
其余城市尚需时间传导,深圳、杭州、成都截至3月15日二手房成交同比仍有两成以上的降幅。
随着政策底部确认带来预期和信心的恢复,预计4、5月二手房市场数据表现值得期待。
从日均数据来看,多数城市3月以来日均成交好于前2个月。
其中,截至3月22日上海日均成交达到974套,接近千套,较前2个月日均环比增长69%。北京日均成交也达到了554套,较前2个月日均环比增长四成。
杭州、成都、厦门和青岛截至3月15日的成交基本维持在去年三季度水平,较四季度以来有显著增长,但又不及去年上半年。深圳、苏州、佛山、南宁等4城普遍创下去年以来新低。
从成交结构来看,小面积、低总价的刚需和刚改房源,仍是二手房市场的主力。
近4年截至3月15日的数据显示,上海套均面积最小,约79平方米,北京约89平方米,300万以下房源占比超60%。成都、杭州、深圳等城市套均面积在95-100平方米,苏州、佛山套均面积超过100平方米。
一些重点城市如深圳、杭州、青岛、苏州二手房出现一个明显的变化,即套均面积出现明显上升。
一位杭州西湖区三墩板块的中介人员告诉我们,以前客户买房会先看总价,现在首付比例低了,不少客户在月供能承受的情况下会选择大户型“一步到位”。
数据也印证了这一点。近4年3月同期数据看,杭州二手房套均面积从2023年的约97平方米,上升至2026年的约100平方米。一步到位的刚改需求正在接棒小户型刚需。
从业主方的预期来看,北上广深杭二手房挂牌参考均价仍在持续下探。
从数据来看,上海2026年2月二手房挂牌参考价为42258元/平方米,环比降1.24%,同比降14%。同样,北京2月份的二手房挂牌参考价为48224元/平方米,环比出现止跌,但同比仍降14.18%。仅广州和杭州挂牌参考价环比有所上升。
这意味着,业主方预期走低的趋势没有改善,尤其京沪深还有加速下探的动能。
目前来看,以价换量仍是未来一段时间二手市场交易回升的基础和前提,“价跌-量升—价稳—量跌”的博弈仍将维持,短期量价尚难出现实质性反转,量涨价稳将成为常态主旋律。
当前二手房市场的“体感热度”主要集中于上海、北京等城市,成交规模较前两个月显著回升,政策底部确认带来的预期修复正在逐步向交易端传导。
从业主预期看,挂牌价格整体仍处于下行通道,“量涨价稳”将是未来一段时间二手房市场的主旋律。接下来的4月和5月,是验证本轮“小阳春”成色的关键窗口期。
声明:本文由入驻焦点开放平台的作者撰写,除焦点官方账号外,观点仅代表作者本人,不代表焦点立场。
