☑️☑️时代之城售楼处电话:400-8377-020☑️☑️ 当今社会,孩子的教育,一直是无数家长重点关注的问题。
而在任何一座城市,优质学校都是稀缺资源。
说起上海教育圈的“四大名校”,堪称沪上教育领域的璀璨明珠,是无数家长学子心驰神往的教育圣地!
而在这其中,位列四大名校之一: 复旦附中 , 2025年6月30日,官宣落子南翔。
2025年6月30日嘉定区教育局与复旦附中签订合作办学协议,双方将在南翔镇合作举办复旦附中嘉定学校。
☑️☑️时代之城售楼处电话:400-8377-020☑️☑️

☑️☑️时代之城售楼处电话:400-8377-020☑️☑️
2025年8月25日,上海官宣新政,沪籍外环外购房不限套数,非沪籍缴满1年社保同样不限套数。
名校落地+政策加持,外环外“三冠王”【时代之城】再次腾飞!

☑️☑️时代之城售楼处电话:400-8377-020☑️☑️
截止目前,项目累计已推售十五个批次,每一次推售,都掀起一股热潮!

☑️☑️时代之城售楼处电话:400-8377-020☑️☑️
项目少量建面约92-136㎡高层
建面约143-177㎡叠墅
均价60186元/㎡,总价475万起!

☑️☑️时代之城售楼处电话:400-8377-020☑️☑️
户型图赏鉴
高层户型图赏鉴


☑️☑️时代之城售楼处电话:400-8377-020☑️☑️

☑️☑️时代之城售楼处电话:400-8377-020☑️☑️

☑️☑️时代之城售楼处电话:400-8377-020☑️☑️
叠墅户型图赏鉴


☑️☑️时代之城售楼处电话:400-8377-020☑️☑️



☑️☑️时代之城售楼处电话:400-8377-020☑️☑️

170m²上叠,南向双阳台+南北双露台:

☑️☑️时代之城售楼处电话:400-8377-020☑️☑️
一般上叠只有一个北向露台+一个南向阳台,仅此而已。
但时代之城雲墅却 有南北双露台+南向双阳台 。 你大可置架秋千、撸猫遛狗,到了周末约上三五好友,来一场派对,也可以胜任太太的闺蜜趴、孩子尽情玩耍的成长空间以及健身空间。
另外,上叠的边套, 其1楼客餐厅以及2楼主卧还带侧边飘窗 ,整个空间几乎是 全景采光面 ,社区的美景一览无余。

178m²中叠,IMAX采光面:

☑️☑️时代之城售楼处电话:400-8377-020☑️☑️
项目的中叠 四开间朝南,超大IMAX的采光面 ,妥妥市区豪宅大平层的尺度感。

☑️☑️时代之城售楼处电话:400-8377-020☑️☑️
另外, 4房4飘窗2阳台的设计 ,整个空间的尺度感、采光通透度都表现的非常出众。
私密性方面, 入户玄关+双套房 的设计,让每个家庭成员都能找到自己独立的空间。
尤其是主卧的套房,不仅有 豪华卫浴,大尺度衣帽间 ,甚至书房、工作室空间就在边上,业主几乎可以做到不出卧室就能享受闲情逸趣。
174m²下叠,挑高的宽绰地下室+公共绿地,真正的别墅享受:

☑️☑️时代之城售楼处电话:400-8377-020☑️☑️
不少经济型叠墅单层走不了几步就要上楼梯了,空间很逼仄。
而项目 下叠单层面积就已经足够宽绰了, 舒适度颇高,这才是改善的意义!


☑️☑️时代之城售楼处电话:400-8377-020☑️☑️
并且,一层步入玄关,迎面便是开阔的 南向全景落地窗 ,将阳光与绿意尽收眼底。
窗外 超大公共绿地 ,不仅是生活空间的延伸,亦是连接自然、放松身心的理想场所。

另外,负一层地下室空间挑高开阔 。
晨练、阅读抑或是家庭聚会;儿童活动场、家庭影院、健身空间抑或是工作室,每个家庭成员的个性化需求都能得到充分满足。 (地下室非精装交付。)

最终,着重一提: 二期叠墅新品不仅是精装,还臻选国际精装品牌奢装,让空间更具实用主义、温暖感和精致感。
土拍回顾及规划
2023年12月15日,上海第四轮土拍二批次中,华润&华发联合体以总价891445万元成交嘉定区南翔镇JDC2-0202单元29-01、31-02、32-01、33-02地块,地块出让面积125339.87㎡,容积率29-01:2.4、31-02:2.4、32-01:2.2、33-02:2.4 。溢价率5.32%,楼板价30015元/㎡, 房地联动价58500元/㎡。
项目四至范围:东至鹤槎路、南至嘉前路-嘉宁路、西至惠亚路-安惠路、北至嘉程路

☑️☑️时代之城售楼处电话:400-8377-020☑️☑️
根据项目规划设计方案显示, 项目拟建38幢5-26F住宅产品,共计2871套

具体经济指标:

☑️☑️时代之城售楼处电话:400-8377-020☑️☑️
根据公示图显示,该项目的4个小板块最高层为项目东南角和西北角的26层高层,共有6栋,高度接近地块限高的80米(77.80米);18层的共有8栋;17层共有6栋;14层共有4栋;13层共有2栋;6层的共有4栋;5层的共有8栋。

独一无二的约30万方国际生活大城
楼市永远都是一代新楼胜旧楼!
因为新房市场更替太快了,尤其在上海,再红的新盘也不过是各领风骚三五月,然后淹没在二手房汪洋的海洋中,被后来的热盘替代。
但有一类产品,总会被市场“铭记”,那就是:大城项目。
首先,大城有能力改变了一整个区域的城市界面、生活模式、居住习惯。
同时,为区域带来数以千计的居住人口,而围绕这些人口将落地大量的教育、商业、生活等配套资源。从而达到对于区域中心再定义的目标。

典型的例子就是新天地的翠湖天地以及虹口的瑞虹新城。这两座大城以大城独有的生活方式,改变了黄浦虹口的居住中心,更创造了一个又一个的房价神话。
整个项目约30万方,由4个纯住宅地块组成,构成了一座以低密大城及互动街区为载体的国际生活大城。

☑️☑️时代之城售楼处电话:400-8377-020☑️☑️
整座大城在地块内部塑造了两条景观轴线:
一条是约300米的连续花园轴;
一条是约600米的日常漫步街区;
不仅对于业主而言,对于整个片区的居民来说,都可以实现:" 从摩登街区漫步到家 "、“穿过连续的景观带进入社区”,建立小半径生活圈的幸福感。
下了地铁穿过南翔的繁华,走进这独属于时代之城的摩登生活圈,仿佛走进了世外桃源。是多少都市人梦寐以求的生活状态。


☑️☑️时代之城售楼处电话:400-8377-020☑️☑️
同时,在项目的街角处还打造了多个口袋公园;实现在社区内外、始终有一种漫步在公园内、大树下的居住方式。

社区内,围绕着叠墅区、小高层区以及高层区,打造了多重生活场景。
例如松弛的微度假酒店水中庭以及年轻人喜爱的水中参与性CLUB构成主题中庭等。
整个项目呈现了一种自然雅奢的生活,配合南翔繁华的配套,真正有一种入则静谧出则繁华的生活氛围。

☑️☑️时代之城售楼处电话:400-8377-020☑️☑️
同时,大量的潮流活力的空间,给业主更多的生活想象。
再加上摩登时尚的社区,时代之城为整个嘉定、整个上海外环带来了一种全新的自然、摩登、便捷的大城生活模式。
这独特的生活模式、静谧的生态居住空间、繁华的生活配套,不仅是业主生活的保障,也是未来项目始终昂扬在二手市场塔尖的底气。

就外立面来说,时代之城就足够诚意。高层/小高层立面采用部分 天青色铝板,搭配大面玻璃开窗(LOW-E玻璃)。这是只有豪宅才拥有的配置。

☑️☑️时代之城售楼处电话:400-8377-020☑️☑️
叠墅立面则 部分采用天青色釉面陶板,同样融合大面玻璃开窗(LOW-E玻璃),更大程度的为业主带来宽绰视野,体验摩登生活。

最令人惊艳的当属,项目还配置了约2500平的奢华会所。这里集健身、游泳、瑜伽、私宴、空中花园等于一体,可以为城市精英带来一次质感生活的全然焕新与高端享受。


☑️☑️时代之城售楼处电话:400-8377-020☑️☑️

生活配套
项目位于嘉定南翔板块,作为南翔3.0发展的核心区域坐拥3km醇熟生活圈。
交通方面:周边三公里坐拥地铁11号线(直线距离陈翔路站约900米)、22号线(规划中)、嘉闵线(建设中)三条轨交,沪翔高速、沪嘉高速、嘉闵高架、沪宁高铁(南翔北站)快速连接全城。
商业方面:上海最大单体商业印象城商圈约34万方、五彩城商圈约4万方、中冶祥腾商圈18万方、南翔老街约14万方、太茂商业广场约5万方......

☑️☑️时代之城售楼处电话:400-8377-020☑️☑️
还有上海第五家山姆会员店已投入运营
1 实景示范区
高品质硬核呈现 每一帧都是大片
在上海的购房者,都见识过华润置地震撼的造城手笔。
16年的大城 华润·中央公园 珠玉在前,称霸南翔品质标杆数十年。凭借着丰富的造成经验,23年与华发集团联合拿下的时代之城地块,旨在打造 约30万方墅境国际社区“微缩城市”。
这15个月里面,呈现的3万方实景示范区,包含了约2000㎡的奢适会所+沿街配套;下沉式庭院与精装大堂;豪宅级的车库设计;社区内的夏荷池与约300米景观带......这座不断兑现的大城,迄今为止 俘获了超1600组客户的心!

☑️☑️时代之城售楼处电话:400-8377-020☑️☑️
实景图,仅供参考

实景图,仅供参考
如今 二期的雲墅实景示范区 已开放,学长抽空去了一次现场,真切地感受到了它的变化。二期现场的状态可以用三个字概括: 太惊艳!

☑️☑️时代之城售楼处电话:400-8377-020☑️☑️
实景图,仅供参考

☑️☑️时代之城售楼处电话:400-8377-020☑️☑️
实景图,仅供参考
从漫步式街区、国际建筑、实景园林,到多元架空层、高定精琢空间等,每一帧都是 大片 。接下来我将按照 归家的动线, 带大家沉浸式地体验一下——
首先映入眼帘的,是转角的一个 步入式的大树会客厅, 体现了 “共享、打开” 的设计理念,非常像安福路的街区,高低错落的韵味。老人可以在树下互相依偎,走走停停,亲密地交流谈话。

☑️☑️时代之城售楼处电话:400-8377-020☑️☑️
实景图,仅供参考
还有一个细节,凳子全部是 纯石材, 任何时间段温度都很适宜,可以随时就坐,体现出“以人为本”的细节。
接下来是千万级别的酒店式高奢门头打造,二期的门头甄选688块珍贵的 白雪公主玉石, 恢弘气派,除了门头,立面和中间的景观亭都沿用大量玉石,彼此之间不再具有割裂感,而是融合打通。

实景图,仅供参考
门口培育名贵树种——80年的 红果冬青, 寓意红红火火。
☑️☑️时代之城售楼处电话:400-8377-020☑️☑️

☑️☑️时代之城售楼处电话:400-8377-020☑️☑️
实景图,仅供参考
继续往里走,映入眼帘的是二期园林景观——绿野仙踪。它拥有 5重立体园林、3大组团、7大森境花园, 精心规划了盒中谧林、盒中丘谷、盒中花园、盒中森活等四大园林体系,仿佛一个 蓝绿臻宝盒。

庭院中遍布着睡莲,从这里往出去像一幅画,高低层次的叠水景观,超大型的原石,还有私密的谈话空间,舒适惬意。

实景图,仅供参考
项目的架空层是看下来最让我惊喜的地方,它拥有健身、儿童、欢聚、阅读等7大功能空间,独树一帜——
首先,区别于传统的归家大堂是一扇简单的门,时代之城做了书吧这样摩登先进的设计;其次,它针对 不同年龄段的客户 做了不同的分类,无论是老年人、儿童,都能够在这里找到生活的乐趣!
通过格子的打造,整个架空层做到“有开有合”。既能够融合自然,与自然进行亲密接触;也能安静下来,品茗一杯咖啡,静心思考。
☑️☑️时代之城售楼处电话:400-8377-020☑️☑️

实景图,仅供参考
约200平左右的归家大堂做了书吧、落客区、咖啡吧,颇有现代摩登风格的感觉。

☑️☑️时代之城售楼处电话:400-8377-020☑️☑️
实景图,仅供参考
开敞式休闲景观区,则以“⽆界⾃然”为线索,临景互动区设置阶梯式观景台,让阳光清风、自然光然,俯拾皆是。

实景图,仅供参考
有一个要特别提及的空间, 漫咖社, 坐在这里,品茗一杯咖啡,看着窗外庭院水景,特别适合打卡拍照,放空冥想,度过悠闲的下午。

☑️☑️时代之城售楼处电话:400-8377-020☑️☑️
实景图,仅供参考

实景图,仅供参考
健身区域,业主在楼下就能满足基础的健身需求.....设施丰富的 儿童区 ,下班之余,可以陪着孩子一起嬉戏游玩,妥妥的“别人家的会所”。

☑️☑️时代之城售楼处电话:400-8377-020☑️☑️
实景图,仅供参考

实景图,仅供参考
☑️☑️时代之城售楼处电话:400-8377-020☑️☑️
此外架空层还有很多细节,比如整体的 挑高整整有5.2m ,妥妥的 豪宅 级别配置;地面 拼花 都是纯手工拼接,摩登现代,打造出移步异景的归家仪式感。在600万级的项目中,真真实实属于 超配!
最后讲讲项目的建筑立面,它采用了 爱马仕同款博斯普鲁斯绿, 这种绿色在中国古文化里面名为 黛青色, 很好地承接了南翔这个板块的 文化底蕴。
叠墅外立面陶板+石材,高层是同色系仿水磨石铝板,不仅成本比普通铝板高,整个颜色也非常现代摩登,符合年轻人的潮流审美。

☑️☑️时代之城售楼处电话:400-8377-020☑️☑️
实景图,仅供参考

实景图,仅供参考
“眼见为实”的产品呈现方式,背后彰显的是华润置地强大的兑现力。如此之用心,对于之前入住的业主也注入 一剂“强心针”, 是妥妥的幸福。
2 92-177㎡全纬度的户型设计
匹配菁英人士的需求
☑️☑️时代之城售楼处电话:400-8377-020☑️☑️
回到产品上,在600-800万级中,各方面都称心如意的产品并不多,「时代之城」是其中最为全面的,产品力非常能打!去年它凭借着遥遥领先的室内收纳设计,引领了一股 “卷室内” 的潮流。
十一批次一共开放了五个样板间,让我们一一看下:
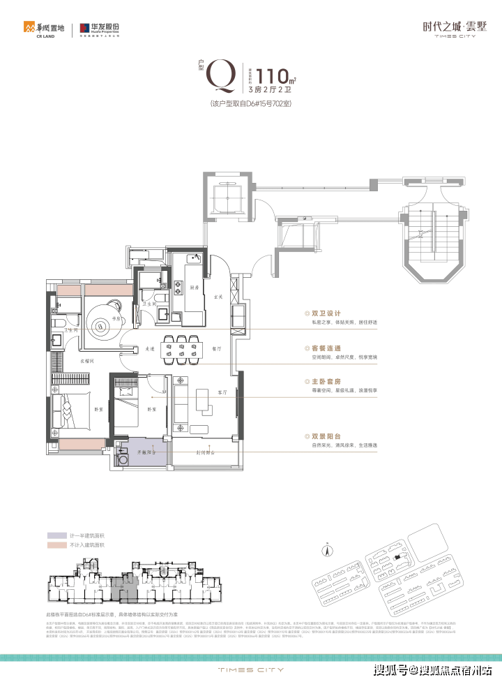
1、92-135㎡高层产品,刚需上车首选!
☑️☑️时代之城售楼处电话:400-8377-020☑️☑️
建面约110㎡的三房两厅两卫,非常适合年轻家庭上车,它的设计风格 偏法式,符合年轻人审美。

☑️☑️时代之城售楼处电话:400-8377-020☑️☑️
实景图,仅供参考
南向双阳台,在原先一个阳台的基础上再加一个开敞阳台 (仅计算一半阳台面积为建筑面积) ,实现客厅与次卧联通,不仅让得房率瞬间提升一个level,视野更敞亮!整体格局方正,南北通透,每个卧室大小宽裕,实现小家的超满足获得感!

☑️☑️时代之城售楼处电话:400-8377-020☑️☑️
户型图,仅供参考
收纳 作为中小户型的一个痛点,在时代之城得到了完美解决,它几乎把小户型所有的收纳都搬进家里——
厨房超大柜体的收纳空间,包括调味拉篮、岛台双面收纳,将厨房空间直接扩容约80%,贴心的 灶前龙头 设计,开火时直接上方接水,非常灵活;
玄关S墙 设计,同样包含MAX巨量收纳;创新性采用了钢琴键收纳,600万级的刚需项目中能享受大几千万的豪宅配置;
主卫的 美妆冰箱 、镜柜收纳、常用物品置物台,可以隐藏90%的卫浴物品......
☑️☑️时代之城售楼处电话:400-8377-020☑️☑️

☑️☑️时代之城售楼处电话:400-8377-020☑️☑️
实景图,仅供参考
同时,这个户型主力总价600万级起,很适合刚需家庭上车!
建面约120㎡的大三房做了一个u型厨房,餐桌可以容纳八人餐桌,双阳台配置+加上所有飘窗都是附赠面积,整体的实用面积可想而知。
S墙的设计, 使得玄关和冰箱得到兼容,凹进去的部分放置 冰箱, 凸出的墙面做成了 钢琴键收纳。

☑️☑️时代之城售楼处电话:400-8377-020☑️☑️
户型图,仅供参考
建面约135㎡的四房是项目的 明星 户型,几乎是一抢而空的状态,采光、视野非常敞亮,南北通透,双阳台还能看到 窗外的中庭景观。
它的收纳亮点:钢琴键烤漆板,玄关处有一个八百库收纳,厨房扩容80%......800多万能买到这样的一个房子,哪怕是在市区买二手房也买不到这么多的赠送面积!

☑️☑️时代之城售楼处电话:400-8377-020☑️☑️
实景图,仅供参考

户型图,仅供参考
总结一下,高层户型可以说在同价位段中,很难再找到比它更出彩的户型了。 南向双阳台+巨量收纳体系+超高水准的精装标准, 几乎榨干每一寸空间,实用性与美观性都拉到了顶!
2、附赠面积超多的叠墅产品,包含地下室+阁楼
1000万级,挤一挤能在市区买个小三房,但是在时代之城,能享受到完全不一样的 生活场景, 有天有地有庭院,还有地下室的美好生活!
加上南翔比较宜居,离市区又很近,非常便利。学长很看好这里的叠墅产品: 居住起来真的舒服!
☑️☑️时代之城售楼处电话:400-8377-020☑️☑️
1
建面约174㎡的下叠

户型图,仅供参考
下叠二期做了改动,一层拥有一个充足的采光面&超级全明的空间,即使是七八月份的上海也丝毫不会闷热潮湿。附赠宽绰 地下室+公共绿地 (实际交付为毛坯) 闲暇时可以在院子里养鱼,种花等等。

☑️☑️时代之城售楼处电话:400-8377-020☑️☑️
实景图,仅供参考
地下室的两个夹层 (作为生活场景示意) ,不仅赠送面积多,还是 三面采光! 挑高开阔,丝毫没有压抑感。

☑️☑️时代之城售楼处电话:400-8377-020☑️☑️
实景图,仅供参考
一楼,客厅到庭院是 全景的落地门窗, 夏日凉风习习,边套下叠还拥有全明餐厅。

实景图,仅供参考
主卧拥有 270度环幕飘窗, 视野和采光优越,配备了高奢卫生间,空间感、尊崇感拉到顶格。

☑️☑️时代之城售楼处电话:400-8377-020☑️☑️
实景图,仅供参考
下叠的总价段在1300-1600万左右,完全能容纳三代同堂的温馨的墅居生活,置业的 终极目标, 一步到位!

教育方面:板块内国际社区规划16块教育用地(涵盖9个幼儿园+2所高中+2所中学+3所小学),上海世外教育附属嘉定云翔小学、中学均坐落于此,复旦附中落地更是引来无数家长的瞩目。
嘉定世外学校

☑️☑️时代之城售楼处电话:400-8377-020☑️☑️
医疗方面:「上海瑞金医院北部院区」三级综合医院、「南翔医院」二级甲等综合医院,以优渥医疗资源,守护业主健康。

☑️☑️时代之城售楼处电话:400-8377-020☑️☑️