所有伟大的城市板块,都经历着从地理存在到文明符号的升华。
而当散点式的地王与明星楼盘不断雕刻局部价格天花板时,其背后实则遵循着一套更为实际且统一的价值叙事—— 稀缺性。
☑️☑️中粮北外滩壹号售楼处电话:400-8377-020☑️☑️
顺着稀缺性这一罗盘,我们便能清晰地洞察,真正的价值灯塔始终锚定于那片不可再生的核心资源: 滨江住宅!
而上海人又恰恰对滨江住宅的要求近乎极致,既要占位城市重要规划点,又要有超出一般豪宅调性的品质,所以滨江住宅一直都是贵奢的代表。

☑️☑️中粮北外滩壹号售楼处电话:400-8377-020☑️☑️
在上海一线滨江板块地图中,陆家嘴,黄浦滨江、徐汇滨江等地新房单价都已突破 19万/㎡ 。今年6批次,北外滩地块也紧随其上,溢价率46.3%,预计售价约 19万/㎡ 左右,成为今年最炙手可热的滨江板块之一。
https://wxa.wxs.qq.com/tmpl/oy/base_tmpl.html
☑️☑️中粮北外滩壹号售楼处电话:400-8377-020☑️☑️
凭心而论,北外滩新房单价卖到19万我一点也不奇怪。
答案显而易见:北外滩一直都是时代的佼佼者,它既是百年前海纳百川的港口,又是今日的世界会客厅,还是上海的未来发展引擎。
所以,当人们以为北外滩新房售价即将冲向19万/㎡、未来买入北外滩将付出巨大经济代价时,一个巨大的历史性机遇, 【中粮北外滩壹号】 出现了!
均价14.38万,总价约3000万起,这个价格无疑是北外滩错过再无的抄底机遇!

中粮大悦城上海第五座壹号系,“世界S湾壹号作品”——【中粮·北外滩壹号】开盘热卖中!
12月21日,项目正式开盘,当日去化7成!

☑️☑️中粮北外滩壹号售楼处电话:400-8377-020☑️☑️
推售建面约185-228㎡天际大平层
过会均价143868元/m²
最低单价11.75万起,总价约2188万
顶层地段+顶层社区+稀缺天际大平层价值,仅90席,错过再无!
成功转定即赠价值80万产权车位1个

☑️☑️中粮北外滩壹号售楼处电话:400-8377-020☑️☑️

☑️☑️中粮北外滩壹号售楼处电话:400-8377-020☑️☑️
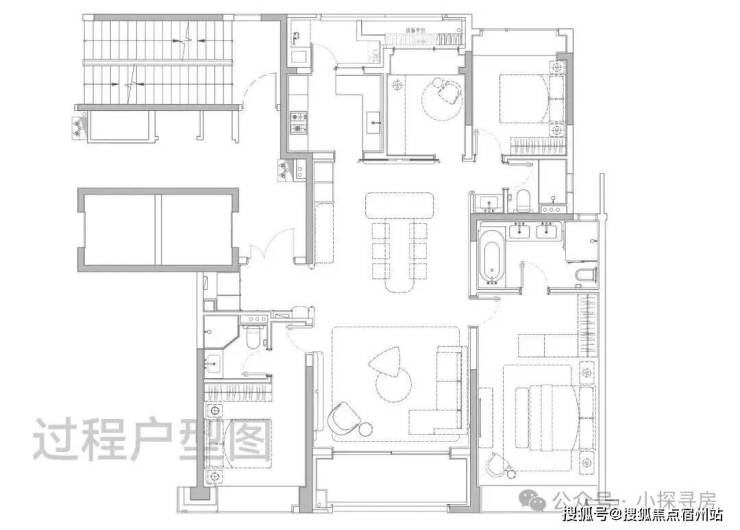
户型图赏鉴
185㎡四房奢阔大宅

☑️☑️中粮北外滩壹号售楼处电话:400-8377-020☑️☑️
准1梯1户设计, 私享电梯厅独立入户,经典 飞机户型,三开间朝南,南北通透, 动静分区,通风采光俱佳。
独立玄关 做足私密性和仪式感; LDKB一体化设计 的客餐厅面积达到约55㎡,方正大气。
主卧套房尺度豪奢,可供业主配置步入式衣帽间,卫生间做到 双台盆+大浴缸+独立淋浴 的顶配,尊崇感十足!
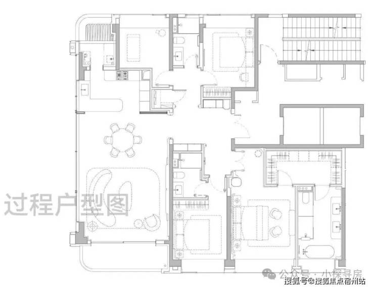
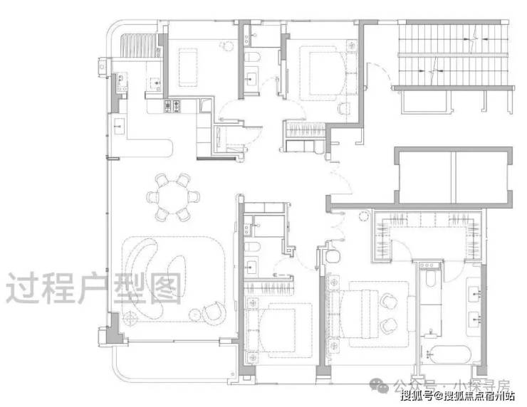
228㎡四房天际大宅

准1梯1户设计, 私享电梯厅独立入户,户型尺度进一步升级,当今顶豪新盘中极为稀缺的四开间朝南。
边厅面积超过50 ㎡,给一家人提供了阔绰的交流空间; 约270°环幕景观设计, 带来极好的采光,并且高区可以直面陆家嘴城市天际线+黄浦江景观,视野相当震撼!
主卧大套房设计带超大主卫和衣帽间 ,面积约50㎡ ,尺度感与市面上近300㎡的顶豪拉平。
室内设计由中国现代室内设计领域的领军人物—— 梁志天亲自打造。
在材质选用上,延续了壹号系的高端标准,大量运用奢石、高难度弧形工艺以及国内外顶尖品牌。
如 宝格丽 大理石打造的西厨岛台、 铂浪高 的净水三合一水龙头和一体式大水槽、 霍尼韦尔 的前置过滤器、全屋软水以及末端净水器系统、来自意大利 法罗力燃气热水器、德国唯宝卫浴、当代龙头及花洒......还有全屋华为智能家居系统 配置。这一套组合,是真正意义上的顶豪序列配置!

☑️☑️中粮北外滩壹号售楼处电话:400-8377-020☑️☑️


☑️☑️中粮北外滩壹号售楼处电话:400-8377-020☑️☑️
土拍回顾及规划
2023年9月5日,大悦城控股上海大区公司通过上海联交所成功竞得上海市虹口区北外滩116街坊地块(即中粮北外滩壹号)。地块位于北外滩红线内,靠近大连路地铁站,与外滩、陆家嘴共同构成上海“黄金三角”。

项目四至范围:东至保定路、hk367-02、hk367-05地块,南至昆明路,西至 hk367-03、hk367-04 地块,北至唐山路。

项目总用地面积约23849.2平方米,容积率1.95,总计容建面4.65万㎡,是上海市中心罕见的无商办、无15%自持住宅、无5%保障房的纯住宅项目。
整体由 一栋24F高层住宅和风貌别墅组成。 高层共90套、产品面积段约180-228m²,风貌别墅共118套,产品面积段约130-350m²,其中主力建面约203-205-230m²(占比约83%)

建筑立面 ,高层主体以 仿红砖陶板+古铜色铝板+白色石材+玻璃幕墙 的高标准结合,来完成建筑的美学表达。

☑️☑️中粮北外滩壹号售楼处电话:400-8377-020☑️☑️
☑️☑️中粮北外滩壹号售楼处电话:400-8377-020☑️☑️
风貌别墅则 复刻海派石库门 的韵味,但不同于大多数风貌别墅的格栅小花窗设计,「中粮·北外滩壹号」大幅增加窗墙比,赋予相对沉闷里的里弄建筑,更通透、更明亮的特质!

公区方面,从归家社区大堂、大堂序厅、以及入户单元大堂一路看过来,体现出一套脉络完整,层层递进的海派顶奢设计语言。


☑️☑️中粮北外滩壹号售楼处电话:400-8377-020☑️☑️

虽然项目仅有208户,仍然通过深挖三层,满配了高达 约1800㎡的私享顶奢会所。按户均占有会所资源计来算,这在当今顶豪圈是顶尖的水平。
会所由全球顶奢酒店设计领域的 标杆——CCD香港郑中设计事务所执笔。 目前看到的效果图,体现出一股醇正的老钱世家风,设计品位远超市场同类豪宅。

☑️☑️中粮北外滩壹号售楼处电话:400-8377-020☑️☑️
社交宴会区内,私宴、茶室与专属酒吧一应俱全,满足业主商务应酬到亲友小聚的各种场景需求。

瑜伽健身区,大幅落地窗引入自然光线,天花的格栅造型,地面的复古拼花木地板,都透出浓厚的海派风情。

恒温泳池更是融入超级垂直花园庭院体系,直接在泳池中做出美轮美奂的景观。

☑️☑️中粮北外滩壹号售楼处电话:400-8377-020☑️☑️
雅集共聚区内,除了常规的阅读,棋牌等功能外,甚至设有一个舞蹈录音室,配置之高,沪上少见。

☑️☑️中粮北外滩壹号售楼处电话:400-8377-020☑️☑️
因为这是中粮大悦城的壹号系,珠玉在前,小编完全不担心会所未来兑现的效果,甚至已经很期待看到未来会所开放展示的那一刻。
景观方面,设计了 「八大主题场景」, 从百年梧桐下的静谧巷道,到充满未来感的艺术庭院,共同构成一个鲜活立体的生活剧场。

生活配套
交通方面: 项目周围环绕三条地铁,步行约360米到4、12号线大连路站,步行约560米到12、19号线(在建)提篮桥站。
地铁出行到人广和陆家嘴都只需要4站。未来,随着在建的南北大动脉19号线贯通,可以直达世博、前滩等多个核心滨江段。

自驾上,项目往北约300米就是北横通道,往南车行约1公里,就是新建路隧道和大连路隧道直达浦东。从项目到陆家嘴、北外滩和外滩都在10分钟左右。

☑️☑️中粮北外滩壹号售楼处电话:400-8377-020☑️☑️
商业方面: 项目出门就是高浓度的国际生活主场,步行可达北外滩来福士(约600米)、瑞虹天地太阳宫(约350米)、白玉兰广场(约1公里),未来还将会兴建全球最火的时尚奢侈品商场之一的SKP。
https://wxa.wxs.qq.com/tmpl/oy/base_tmpl.html

半径3km内,还可以同时覆盖外滩、陆家嘴、苏河湾等“黄金三角”的繁华商业!

☑️☑️中粮北外滩壹号售楼处电话:400-8377-020☑️☑️
教育方面: 周边学府众多,优质教育资源密集。北侧的长青学校是老牌的九年一贯制公办重点,南侧的上海中学国际部是知名民办名校,距离新华初级中学
(常年四校八大预录人数上百),新复兴初级中学,这两所虹口的顶尖民办学校也都在直线3KM内(新房不承诺对口学校,具体以实际为准)。

医疗方面: 周边有复旦大学红房子妇产科医院,守护着每一个家庭的人生重要时刻。、以及三甲新华医院、上海市第一人民医院为健康生活保驾护航。

生态休闲: 周边有22公顷无车漫步区、3.5万平方米航海公园与中央绿地相融,3.4公里滨江休闲岸线

01、基本信息
「中粮北外滩壹号」作为中粮大悦城上海第五座“壹号系”标杆作品,堪称集万千优势于一身、上海高端住宅的典范。是有史以来第一个低密风貌壹号系,也是上海市中心12个历史风貌保护区中唯一一个成片风貌开发地块中的壹号系。
时间往前倒推15年,中粮大悦城围绕上海“一江一河”战略,布局5座壹号系豪宅作品,每一个都是板块标杆豪宅,拥有板块独立定价权!
☑️☑️中粮北外滩壹号售楼处电话:400-8377-020☑️☑️

全新壹号系低密风貌社区
「中粮北外滩壹号」容积率仅1.95,整个社区仅208户,包含90户云端大宅和118户风貌别墅,这样纯粹低密的居住社区在寸土寸金的市中心极为罕见,未来居住舒适度可想而知~

https://wxa.wxs.qq.com/tmpl/oy/base_tmpl.html
☑️☑️中粮北外滩壹号售楼处电话:400-8377-020☑️☑️
其中高层外立面昭示性十足!采用 仿红砖陶板、优美柔和的设计元素、 白色石材窗板以及古铜色金属线条设计,实现海派复古与现代建筑美学碰撞的艺术,颜值满分!

风貌别墅则复刻海派石库门的韵味,分成了三大组团,以当代设计笔法重构门头、放大窗墙比与院落尺度,提升居住舒适度;设计师更以石库门传统格局为骨架注入西洋新古典主义的精致魂魄,辅以Art Deco的现代锋芒,尽显传世级臻藏孤品的贵族基因。

☑️☑️中粮北外滩壹号售楼处电话:400-8377-020☑️☑️
顶豪御用设计天团打造调性十足!
「中粮北外滩壹号」承袭中粮大悦城壹号系顶豪基因,特邀全球豪宅设计天团打造,呈现出中粮壹号系顶豪力作!堪称当下顶豪品质社区匠心之选~

约1800㎡海派高奢立体景观会所
更难得的是,项目并未因地块规模而降低「壹号系」的顶豪标准,反而以突破性的“掘地三层”之魄力 ,专为业主打造约1800㎡的私享顶奢会所。
会所由全球顶奢酒店设计领域的标杆——CCD香港郑中设计事务所亲笔执笔。其精髓在于,将“酒店式的归家礼序”与“俱乐部式的圈层生活”融为一体,让每日“回家的路”,进阶为一场贯穿始终的、极具仪式感的生活体验。

☑️☑️中粮北外滩壹号售楼处电话:400-8377-020☑️☑️
为让公区真正成为业主家庭的延伸与生活聚场,设计团队针对高净值人群的真实生活轨迹,精准定制了全维功能场景:
活力健康区:配备 恒温泳池、专业健身空间与静谧瑜伽室,满足全方位的身心滋养。

社交宴会区:打造了私宴厅、茶室与专属酒吧,从商务酬酢到亲友欢聚,皆能从容应对。

☑️☑️中粮北外滩壹号售楼处电话:400-8377-020☑️☑️
雅集共聚区:奢华的舞蹈录音室与学习阅读等多功能空间,为圈层交流与家庭娱乐提供了理想场域。

从目前已释出的效果图可见,其设计品位远超市场同类豪宅。CCD将其于顶级酒店中积淀的美学功力注入于此,在材质、光影与艺术的交织中,营造出一种不流于表象的、经得起时间品鉴的奢华气韵。

这方藏于地下的心奢之境,不仅是项目硬核实力的彰显,更是为中粮·北外滩壹号的业主,构建了一个真正属于他们的、静谧而尊贵的“第二客厅”。

☑️☑️中粮北外滩壹号售楼处电话:400-8377-020☑️☑️
都市隐奢宅邸的叙事园林
景观设计以「拾光映象」理念,用镜面水景、古木纹石材与艺术雕塑,重构源福里往昔的街巷记忆。
整体规划一横两纵三大轴线, 串联高层住区、文化保护别墅区、新海派风貌别墅区,通过不同设计语言形成“新旧交融”的空间节奏——高层区以现代简约线条演绎都市格调,别墅区则复刻历史肌理并注入现代美学。


特别设计了八大映象典藏场景景观节点,有百年梧桐下的静谧巷道串联各景观节点,还有充满文化积淀的海派艺术庭院等,营造出精致、典雅的高阶生活氛围。

归家仪式感打造上也可圈可点!
通过棋盘式巷弄布局串联公共与静谧区域,利用庭院,露台、下沉式花园等打造多层次空间,营造“建筑可阅读、城市可漫步 ”的高定体验,享受“进退有度”的海派私属生活。

归家社区大堂、大堂廊厅、以及入户大堂都彰显出社区高水准的海派高定设计语言,归家仪式感满满~

☑️☑️中粮北外滩壹号售楼处电话:400-8377-020☑️☑️

☑️☑️中粮北外滩壹号售楼处电话:400-8377-020☑️☑️
左右滑动查看更多
这一切共同构筑了一个将功能、美学与自然无界融合的高品质生活场域,更是都市精英人群未来的丰富生活剧场!
☑️☑️中粮北外滩壹号售楼处电话:400-8377-020☑️☑️
02、推售信息
「中粮·北外滩壹号」即将入市的高层户型建面约185-228㎡纯粹4房,尺度感相当奢阔!高层户型均为两梯两户独立电梯厅配置,隐私性与尊崇感拉满!全落地窗设计,270°环幕大边厅户型相当惊艳!超大窗墙比+双套房格局形成多维观景的极致效果!仅90套,珍藏属性拉满!
约228㎡4房天际大宅
尊崇感、隐私性拉满的二胎家庭改善居住动静分区户型,三代同堂家庭居住也是极度舒适~
独立电梯厅面积约7.5㎡,可作为入户前收纳!
标配子母门,进门双玄关柜+储藏间设计,入户仪式感满满!
约270°环幕大边厅尺度感十足!高区直面陆家嘴城市天际线+黄浦江景观,视野相当震撼!中厨+西厨岛台、客餐厅+阳台面积近约53㎡,不失为一个超棒的家庭休闲空间!
主卧大套房设计带超大主卫和独立衣帽空间,面积约50㎡,尊崇感十足!
次卧套房尺度感优越,还有充足收纳空间和独立卫浴空间~
北向双次卧可作为儿童房和书房使用,功能性满分。

☑️☑️中粮北外滩壹号售楼处电话:400-8377-020☑️☑️
据了解,即将开放的约228㎡样板间,也是一比一兑现实景,精装标准展现超绝产品实力!感兴趣的朋友可以预约参观起来~
例如宝格丽大理石打造的西厨岛台、铂浪高的净水三合一水龙头和一体式大水槽、霍尼韦尔的前置过滤器、全屋软水以及末端净水器系统、来自意大利的燃气热水器品牌法罗力、德国唯宝卫浴、当代龙头及花洒等等顶豪超配精装皆在眼前!甚至还有全屋华为智能家居系统配置, 奢华配置质感十足!

约185㎡4房奢阔大宅
☑️☑️中粮北外滩壹号售楼处电话:400-8377-020☑️☑️
双套房设计的飞机户型,居住舒适度较高,适合三代同堂家庭生活互不影响~
2梯2户设计,私享电梯厅独立入户;
入户玄关设计隐私性更强,独立玄关收纳空间设计人性化;
LDKB一体化设计,大面宽阳台+客厅,空间尺度感十足!
区分生活阳台与景观阳台互不干扰,生活品质感更佳;
卧室全飘窗设计,有效延伸室内空间,增加休闲空间;
主卧配置步入式衣帽空间、双台盆+大浴缸主卫,居住舒适度满分~

03、周边信息
「中粮·北外滩壹号」坐落于虹口北外滩核心历史风貌区,这里与外滩、陆家嘴共同构成上海“黄金三角”,是中心城区最后一块大规模开发的滨水区域,未来板块住宅价值稀缺性不言而喻!

☑️☑️中粮北外滩壹号售楼处电话:400-8377-020☑️☑️
作为上海“世界级会客厅”核心,北外滩总开发体量达840万㎡,规划2035年GDP突破3000亿元。约480米的"浦西第一高楼"北外滩中心已破土而出、约320米的白玉兰广场顶层观景台已开放、北外滩来福士已建成运营……世界会客厅成为举办高端会议会展的"全球会客厅",区域影响力不容小觑!

☑️☑️中粮北外滩壹号售楼处电话:400-8377-020☑️☑️
☑️☑️中粮北外滩壹号售楼处电话:400-8377-020☑️☑️
目前的北外滩已构建起以航运和金融为"双引擎" 的现代化产业体系,已汇集4700余家港航企业、2100余家金融机构,资产管理规模超过8万亿元。已从昔日的"老码头"和"航运一条街",蜕变为一个初具规模的"未来都市发展新标杆"!