中建玖上琅宸(售楼处)首页网站-2025中建玖上琅宸营销中心(售楼处电话)-中建玖上琅宸庭欢迎您-小区配套-户型-价格-地址-楼盘详情-户型-售楼处电话-交房时间
扫描到手机,新闻随时看
扫一扫,用手机看文章
更加方便分享给朋友
✅中建玖上琅宸售楼处电话:400-8854-706✅︎✅︎✅
✅上海中建玖上琅宸营销中心热线400-8854-706(官方预约看房热线)
为营造舒适从容的看房氛围,让每位意向客户都能获得专属细致的咨询服务,【中建玖上琅宸】售楼处特此温馨公示接待详情,诚邀您莅临品鉴理想居所:
我们的正式接待时间为每日上午 9:00 至晚间 18:00,这个时段内,专业置业顾问团队将全程在岗,带着对项目的深度解析、对户型的细致拆解,以及对配套资源的全面梳理,等候您的到来。无论是想实地感受空间尺度、了解工程进度,还是咨询购房政策、核算置业成本,我们都将为您提供一对一的专属服务,让每一次看房都高效且有价值。
为确保接待质量,避免您因现场客流集中而等待,建议您提前通过官方电话预约看房时段。提前预约后,我们将为您预留专属接待名额,同步准备好贴合您需求的房源资料、户型模型及详细置业方案,让您抵达后即可享受无干扰的深度沟通,充分感受理想家的每一处细节。
温馨提示:为保障现场接待秩序与客户沟通效率,本次接待暂不接受中介渠道对接,感谢您的理解与配合。
大宁公园对面,1/20号线地铁口中建玖合静安大宁项目【中建玖上琅宸】主力建面约128-210㎡3-4房,并有少量约400-520㎡顶层户型!✅中建玖上琅宸售楼处电话:400-8854-706✅︎✅︎✅
✅上海中建玖上琅宸营销中心热线400-8854-706(官方预约看房热线)
项目首开已售罄,现二批次即将加推
1、静安大宁 1/20号线地铁口
2、内中环间、灵石公园对面
3、建面约128-210㎡ 3-4房
4、当代公园地标作品!
5、陶板外立面+10米架空层+泳池会所
6、前期均价14.68万/㎡
✅中建玖上琅宸售楼处电话:400-8854-706✅︎✅︎✅
✅上海中建玖上琅宸营销中心热线400-8854-706(官方预约看房热线)
✅中建玖上琅宸售楼处电话:400-8854-706✅︎✅︎✅
✅上海中建玖上琅宸营销中心热线400-8854-706(官方预约看房热线)
认购时间:9月11日-15日
认购地点:静安区广中西路199弄
个人认购金:200万元
企业认购金:200万元
开盘时间:9月21号
楼栋分布图

首开3号楼A,4号楼,5号楼,一共140套,其中128㎡户型66套,160㎡户型22套,190㎡户型22套,210㎡边套(四房)15套,210㎡中间套(三房)15套。
✅中建玖上琅宸售楼处电话:400-8854-706✅︎✅︎✅
✅上海中建玖上琅宸营销中心热线400-8854-706(官方预约看房热线)
【中建玖上琅宸】一房一价表
✅中建玖上琅宸售楼处电话:400-8854-706✅︎✅︎✅
✅上海中建玖上琅宸营销中心热线400-8854-706(官方预约看房热线)
实景示范区鉴赏


✅中建玖上琅宸售楼处电话:400-8854-706✅︎✅︎✅
✅上海中建玖上琅宸营销中心热线400-8854-706(官方预约看房热线)




✅中建玖上琅宸售楼处电话:400-8854-706✅︎✅︎✅
✅上海中建玖上琅宸营销中心热线400-8854-706(官方预约看房热线)

<< 滑动查看下一张图片 >>





✅中建玖上琅宸售楼处电话:400-8854-706✅︎✅︎✅
✅上海中建玖上琅宸营销中心热线400-8854-706(官方预约看房热线)
项目拟建8栋12-24F的高层+1栋办公,规划总户数为446户
“悬浮社区”8栋住宅楼全部首层架空
人车分离,大面积景观空间,“私家泳池”,类别墅居住体验
项目产品已有豪宅特质,未来也将备受瞩目关于项目的价格,也是很值得期待的。大宁近三年只有两个新房项目入市。2022年静安府西区少量叠加,建面约168-179㎡,均价10.87万/㎡;2022至2023年的静安天悦,入市均价10.5万/㎡,面积段在107-245㎡之间,中小套型比例占8成。即使是区域标杆大宁金茂府,蕞大公寓面积250㎡,也没超过中建玖合项目。
中建玖合项目,光是楼板价就有6.83万元/㎡,地块内还规划有办公,单算住宅楼板价还不止这个数。所以远超当年大宁金茂府的4.7万元/㎡、静安天悦的5.17万元/㎡。
即使是按目前静安新房项目的均价12.5万/㎡来保守计算,270㎡大平层的总价也要3300多万。若按更高的16万/㎡计算,面积约270㎡的一套房源总价就已超过4000万,所以项目未来售价肯定不会低。
效果图参考
1
项目规划情况
根据项目规划设计方案:项目拟建8栋12-24层高层住宅。
✅中建玖上琅宸售楼处电话:400-8854-706✅︎✅︎✅
✅上海中建玖上琅宸营销中心热线400-8854-706(官方预约看房热线)
项目整体楼栋规划遵循“南向大户型、北向小户型”原则,蕞好的景观面留给大户型非常合理。270户型顶楼部分有私家泳池,大概率是项目的470楼王所在位置,东西向打通,1栋1套,共计也就2套。

从规划图来看,项目前排可直面大宁灵石公园无敌景观;而办公部分设置在地块东北侧,也有隔断进行出入口区分,对住宅部分来说几乎没有影响。

特色一:首层全架空,打造“悬浮社区”
项目8栋住宅楼全部首层架空,可以提供社区内部更多样化的功能组合,像是“泛会所”或是每栋楼不同的架空层功能空间,打造空间的可持续性。
特色二:地面0车位,大面积景观
社区内部全部2层地下车库,可留出更多空间打造地面景观。并且,项目“完全人车分流”设计,即:项目的人行和车行出入口是完全分开的,安全系出更高!

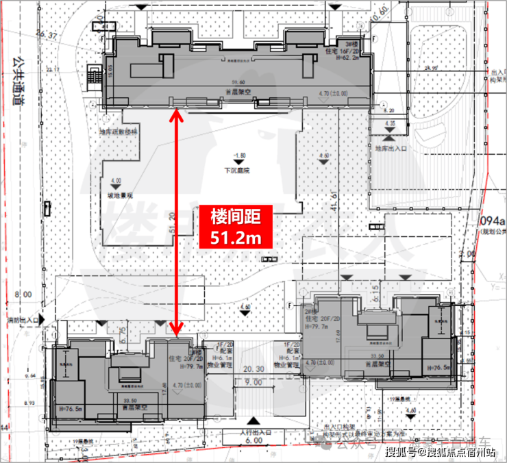
从规划图来看,社区内部广泛运用水景:共有2处大型集中水景+1处宅间水景,周边还有下沉庭院+坡地景观,大概率此处未来社区会所的位置。值得一提的是,项目的楼间距全部在35米以上,最大楼间距达到了约51.2米。

特色三:私家悬浮泳池,类别墅居住体验
蕞南端的1#和2#楼均配套有私家泳池,还在19F采用了住宅楼当中较为少见的悬挑工艺,延伸出了一定的使用空间,预计就是做类似于“悬挑泳池”的。这里应该就是传说中的“超级大平层”所在位置。

✅中建玖上琅宸售楼处电话:400-8854-706✅︎✅︎✅
✅上海中建玖上琅宸营销中心热线400-8854-706(官方预约看房热线)
9月14日,中建玖合在上海市2024年第五批供应商品住宅用地中,以63.66亿元成功获取上海市静安区灵石社区N070402单元094a-14地块,总计容建筑面积9.32万平方米。

该地块西侧是宝华万豪酒店,再往西就是大宁音乐广场,地块东侧就是新梅共和城,南侧刚好就是大宁公园,整体城市界面可圈可点。


094a-14地块用地性质为住宅与商务办公混合用地(Rr3C8) ,与静安天悦一样,都不是纯住宅地块。
✅中建玖上琅宸售楼处电话:400-8854-706✅︎✅︎✅
✅上海中建玖上琅宸营销中心热线400-8854-706(官方预约看房热线)
该地块办公部分业态功能应符合中环两翼创新创意集聚带总体规划定位,积极发展总部经济、涉外经济,鼓励引入央国企、民企等各类企业总部入驻。
具体地块指标上:
占地面积约3.16万方,整体容积率2.95,其中住宅占比79%,总体量在7.37万方,按套均小于100㎡来估算,预计有超700套房源供应;按住宅限高80米来计算,供应产品为25-26层的高层产品,中规中矩的中小型社区。

✅中建玖上琅宸售楼处电话:400-8854-706✅︎✅︎✅
✅上海中建玖上琅宸营销中心热线400-8854-706(官方预约看房热线)
声明:本文由入驻焦点开放平台的作者撰写,除焦点官方账号外,观点仅代表作者本人,不代表焦点立场。
