华润外滩瑞府(售楼处)首页网站-2025华润外滩瑞府营销中心(售楼处中心)华润外滩瑞府欢迎您-周边环境-户型-价格地址-楼盘详情-户型配套-售楼处电话-交房时间
扫描到手机,新闻随时看
扫一扫,用手机看文章
更加方便分享给朋友
当城市向前生长,总有一处居所,承载着人们对美好生活的向往 --大华·梧桐樾,以匠心筑品,为城市人居写下全新注脚。想抢先了解项目详情?即刻拨打咨询热线 400-8266-670,专属顾问为您详解品质生活蓝图。
从区位来看,华润外滩瑞府占位城市潜力板块,近邻主干道与公共交通枢纽,日常通勤、周末出行皆从容;周边商圈、商超环同,购物、餐饮、休闲一站式满足,举步即享便捷生活。更难得的是,项目毗邻公园绿地,推窗见景,下楼即能拥抱自然,在繁华与静间找到完美平衡。若想实地感受区位优势,可拨打 400-8266-670 预约专属看房动线。产品打造上,华润外滩瑞府深谙人居需求,户型设计兼顾实用性与舒适度,采光通风俱佳,每一处空间都经过精心考量:社区规划注重细节,配备休闲设施、亲子空间、健身区域等,满足全龄段业主生活所需;物业团队专业贴心,24小时守护,让居住更安心。关于户型布局、社X配套的更多细节,欢迎拨打 400-8266-670 获取专属解析。无论是年轻刚需、三口之家,还是改善人群,都能在华润外滩瑞府找到契合的生活方式。这里不只是一处住所,更是承载幸福与理想的生活主场。

8.25楼市新政前脚发布,华润外滩瑞府售楼处电话☎:400-8266-670✅✅九月就有个楼盘用热销实绩唤醒上海楼市,打响火热的第一枪!
华润外滩瑞府售楼处电话☎:400-8266-670✅✅
它就是直线距离外滩1公里的【外滩瑞府】!
华润外滩瑞府售楼处电话☎:400-8266-670✅✅
项目整体认购组数超200+组,认购率168%华润外滩瑞府售楼处电话☎:400-8266-670✅✅,触发限售。9月14号的开盘现场更是如火如荼,首开房源共119套火速售罄,一举斩获24.8亿的傲人成绩!
华润外滩瑞府售楼处电话☎:400-8266-670✅✅
华润外滩瑞府售楼处电话☎:400-8266-670✅✅
华润外滩瑞府售楼处电话☎:400-8266-670✅✅
华润外滩瑞府售楼处电话☎:400-8266-670✅✅
开盘现场实景图
它为什么能够这么火?原因就藏在这三重价值密码里——
华润外滩瑞府售楼处电话☎:400-8266-670✅✅
1、上海买房,地段永远是核心要素!
华润外滩瑞府售楼处电话☎:400-8266-670✅✅
华润外滩瑞府售楼处电话☎:400-8266-670✅✅
外滩瑞府地处世界级黄金三角(外滩+陆家嘴+北外滩),华润外滩瑞府售楼处电话☎:400-8266-670✅✅直线距离外滩仅1公里,上海资产浓度最为密集的区域,坐拥九龙路滨水空间+亿级风貌带红利,链接全上海的高净值人群!
华润外滩瑞府售楼处电话☎:400-8266-670✅✅
2、首开价格14.78万/㎡,堪称福利价!
华润外滩瑞府售楼处电话☎:400-8266-670✅✅
当下上海核心区的房价早已高不可攀,黄浦冲破20万/㎡、华润外滩瑞府售楼处电话☎:400-8266-670✅✅北外滩即将站到20万/㎡、虹口下游板块16.6万/㎡,身处外滩1公里生活圈的外滩瑞府,首开均价仅14.78万/㎡!这种机会,人生大概率就这一次!华润外滩瑞府售楼处电话☎:400-8266-670✅✅
华润外滩瑞府售楼处电话☎:400-8266-670✅✅
总价上,2200万起在老静安、徐汇、华润外滩瑞府售楼处电话☎:400-8266-670✅✅虹口等只能买3房,这里却能买到建面约161㎡一步到位的4房产品!
华润外滩瑞府售楼处电话☎:400-8266-670✅✅
3、产品力问鼎!顶豪级公区和装标+平权化舒适三四房,华润外滩瑞府售楼处电话☎:400-8266-670✅✅在市区豪宅中开辟居住新高度
华润外滩瑞府售楼处电话☎:400-8266-670✅✅
作为华润置地落子上海的巅峰之作,华润外滩瑞府售楼处电话☎:400-8266-670✅✅项目邀请全球奢华设计天团:GOA大象设计(代表作杭州桃花源)、渡边智昭(翠湖天地、汤臣一品主创)、泰国TROP事务所、华润外滩瑞府售楼处电话☎:400-8266-670✅✅吴滨(无间设计)与李益中等联袂设计,顶豪级定制化基因!
华润外滩瑞府售楼处电话☎:400-8266-670✅✅
华润外滩瑞府售楼处电话☎:400-8266-670✅✅
只有通过对比,才能对外滩瑞府14.78万/㎡的定价诚意,华润外滩瑞府售楼处电话☎:400-8266-670✅✅有具象化的体现。
华润外滩瑞府售楼处电话☎:400-8266-670✅✅
首先是同板块的绿城北外滩地王,传出“20万+门槛抬升” 的消息,华润外滩瑞府售楼处电话☎:400-8266-670✅✅预计售价高出外滩瑞府约4-5万/㎡的价差!但是,外滩瑞府地段更靠上游、站位更靠近资源核芯。
华润外滩瑞府售楼处电话☎:400-8266-670✅✅
其次土拍层面:上海七批次土拍中,华润外滩瑞府售楼处电话☎:400-8266-670✅✅杨浦内中环宅地的楼板价已达约9.2万/㎡——这一价格,与外滩瑞府楼板价相当!
更甚,上海第八批次的土拍摆脱了中小套限制,核心地段或再迎“暴力拉升”——
华润外滩瑞府售楼处电话☎:400-8266-670✅✅
静安苏河湾地块起拍住宅楼面价10万+/㎡;
徐汇龙华云锦东方周边低密地块华润外滩瑞府售楼处电话☎:400-8266-670✅✅,起拍楼面价13.5万/平方米,超过绿城潮鸣东方成交价;
这意味着,未来花同样成本要么买到内中环新房,华润外滩瑞府售楼处电话☎:400-8266-670✅✅地段稍远一个档次;如果想入住外滩瑞府同能级的地段,未来的苏河湾、徐汇滨江等核心区置业成本恐怕会超乎所想。
华润外滩瑞府售楼处电话☎:400-8266-670✅✅
所以当下,华润外滩瑞府售楼处电话☎:400-8266-670✅✅外滩瑞府是用14.78万/㎡价格买入世界级黄金三角不可错过的、超具性价比窗口期!
而在总价层面,外滩瑞府也是当下千载难逢的2200-2850万一步到位4房的机会。2024年至今,内环的四房供应起步面积段大约在180㎡,华润外滩瑞府售楼处电话☎:400-8266-670✅✅180㎡以上的四房供应占比55%,总价高昂,普遍在3500-4000万左右。
第二大供应就是建面约155㎡以下的三房或紧凑小四房,华润外滩瑞府售楼处电话☎:400-8266-670✅✅占比约39%,对于高净值追求舒适度的客户来说,显然是有点不够住。此刻外滩瑞府建面约161㎡的四房产品,既填补了市场空缺,又很好地控制住总价,十分珍惜!华润外滩瑞府售楼处电话☎:400-8266-670✅✅
而且项目此次首开119套,未来大概还有2-3次加推。华润外滩瑞府售楼处电话☎:400-8266-670✅✅一般来说首开价格都是比较有性价比的,错过TA,无疑是一个遗憾!
华润外滩瑞府售楼处电话☎:400-8266-670✅✅
华润外滩瑞府售楼处电话☎:400-8266-670✅✅
上海这座城市,一直处在生长的状态,几十年来,城市更新如火如荼。新天地、苏河湾,凭借石库门的新生完成城市更新,房价走出了独立行情,成为楼市神话。华润外滩瑞府售楼处电话☎:400-8266-670✅✅
外滩瑞府,正处于城市更新的风口之上——约7000㎡风貌底盘,华润外滩瑞府售楼处电话☎:400-8266-670✅✅未来将引入社区咖啡馆、瑞府邻里客厅/社区方式综合店、便民综合体、社区会客厅、社区公共服务中心等,完善便民配套,届时城市界面会迎来大焕新!
华润外滩瑞府售楼处电话☎:400-8266-670✅✅
不仅是外部城市界面的焕新,内部设计也是下了血本!来看下外滩瑞府的顶级设计天团阵容:华润外滩瑞府售楼处电话☎:400-8266-670✅✅
· 建筑:GOA大象设计(代表作杭州桃花源)以“垂直历史”理念重构海派风貌美学;
·公区:渡边智昭(翠湖天地、汤臣一品主创)华润外滩瑞府售楼处电话☎:400-8266-670✅✅亲制架空层与会所,植入艺术策展空间;
·景观:泰国TROP事务所融合江南水系与爵士乐律动,打造“声景共生”庭院;
·室内:吴滨(无间设计)与李益中联袂,华润外滩瑞府售楼处电话☎:400-8266-670✅✅以安缦酒店美学定制精装系统;
每一位都是行业内的顶尖力量,华润外滩瑞府售楼处电话☎:400-8266-670✅✅共同为项目的高端基因保驾护航!
外立面上,高层基座溯源石库门建筑精髓,复刻经典拱券符号;中段以通透玻璃幕墙搭配流线型金属线条,营造国际前沿的现代质感;顶部“冠冕”造型,进一步升华昭示性。华润外滩瑞府售楼处电话☎:400-8266-670✅✅
华润外滩瑞府售楼处电话☎:400-8266-670✅✅
社区景观上,突破市区项目常见的「兵列树阵式」布局,通过建筑楼体的精密偏转,形成罕见的围合式社区形态。
这样不仅能有楼栋共享中心景观庭院,确保每户推窗即见层次丰富的园林景致;还能最大化楼间距,最大化采光、最大化视野;让中央景观与边角院落形成多维度的空间层次。
外滩瑞府特邀国际景观大师Pok Kobkongsanti打造“印象派自然秘境”。六大主题花园错落分布,贯穿全域的风雨连廊串联起四季景致,共同演绎出一座流动的艺术生活范本!
过程方案示意图,以实际交付为准
过程方案示意图,以实际交付为准
过程方案示意图,以实际交付为准
每一栋楼栋前面都是大面积的绿化景观。
值得细说的,是汤臣一品御用设计师渡边智昭操刀的泛会所。
他以颠覆性思维突破传统局限,不仅匠心打造独立“室内外双幕水剧场”,更创造性地将高阶社交功能分散于四栋塔楼之下,规划出温莎廊吧、公啡花房、子恺乐园与Gym CLUB四大主题泛会所,让社交与生活需求各得其所。
过程方案示意图,以实际交付为准
首开2号楼下的“温莎廊吧”,复古砖红墙面勾勒出海派风情的典雅轮廓,叶脉纹大理石地面则如流水般铺展,让空间具有流动感。
过程方案示意图,以实际交付为准
过程方案示意图,以实际交付为准
约50m面宽的气派门头+酒店式入户大堂,打造艺术格调归家。入户大堂由吴滨设计,呈现“天圆地方”的效果,方正的线条勾勒出空间的规整与大气,与顶部的圆形形成刚柔并济的视觉平衡,让每一次归家都成为一场尊贵的礼遇。
过程方案示意图,以实际交付为准
过程方案示意图,以实际交付为准
全系风雨连廊。项目打造了上海市场罕见的“流线全覆盖”连廊系统。这条连廊不仅是遮风避雨的通道,其下方空间更被打造为一座与花园景观交融的“线性美术馆”。让业主归家成为穿梭时空的艺术之旅。
过程方案示意图,以实际交付为准
真正的改善,应让每个家庭成员都能平等享有舒适尺度与开阔视野,外滩瑞府做到了。
二批次即将加推建面约121-165㎡3-4房,前期均价147800元/m²,总价1553万起!
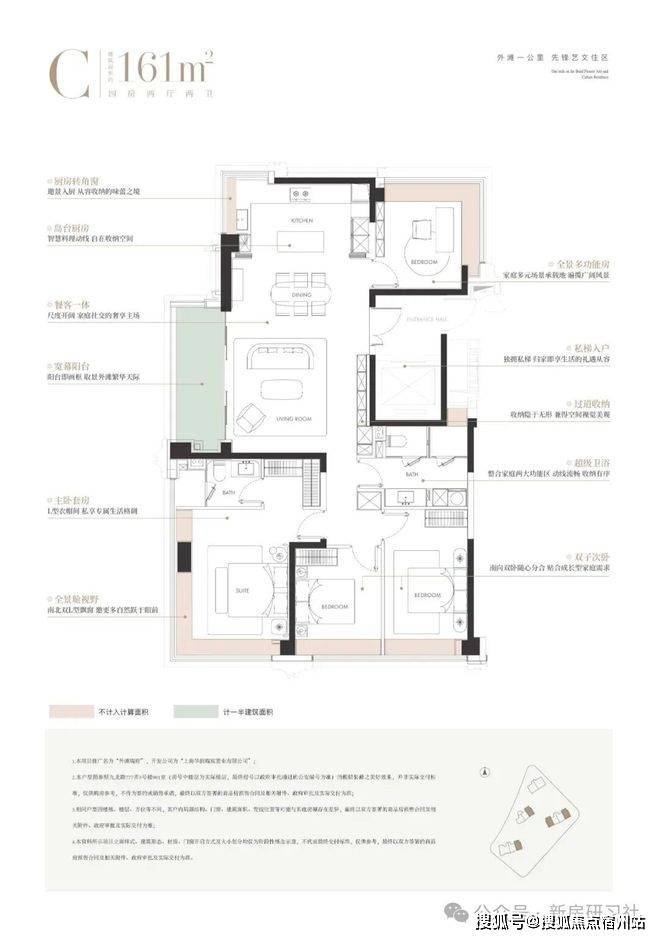
户型设计上,华润外滩瑞府售楼处电话☎:400-8266-670✅✅首开建面约121㎡户三房/约161㎡四房两个户型,主打舒适度与景观视野的平权。华润外滩瑞府售楼处电话☎:400-8266-670✅✅
华润外滩瑞府售楼处电话☎:400-8266-670✅✅
尺度超越常规!三开间朝南+全系飘窗赠送,该户型客厅面宽达约4.5米,接近市面140户型客厅面宽!
且三个卧室面宽全部超3米,儿童房能放下一个床头柜加书桌,父母房能放下大床同时保证床位过道宽裕,实现家庭成员居住上的“平权”。
而且三房的总价段也都控制得非常好。121㎡户型均价14.2万/㎡,套均总价约1720万,更有足足25套房源的单价控制在了14万/㎡以内,性价比非常高。
这是市面少有的360°视野的户型,全屋四个转角窗(北卧、厨房、阳台、主卧),实现采光、阳光和通风的最大化。
华润外滩瑞府售楼处电话☎:400-8266-670✅✅
厨房、餐厅、客厅与阳台相连通,形成联动空间,尺度感阔绰。很好地满足二胎家庭多样化的活动需求。
161户型样板间图,以实际交付为准
三卧朝南,且几乎等面宽处理,是标准的4房,让阳光和舒适尺度成为给予每个人的平等馈赠。
161户型样板间图,以实际交付为准
酒店式四分离公卫:实现独立洗漱台、卫生间、淋浴间、洗衣区互不打扰,将酒店化体验引入住宅,早高峰时期也能做到出入有序。
161户型样板间图,以实际交付为准
值得一提的是,约161㎡户型均价15.22万/㎡,套均总价约2452万,从大户型、边套等价格加分项,这个户型的溢价并不高。
装修细节也是顶配,全部选用国际一线大牌:
三大件方面:大金中央空调+地暖两联供,新风系统也采用豪华品牌。
厨房方面:嘉格纳六件套(三眼灶具+油烟机+洗碗机+内嵌冷冻冰箱+内嵌冷藏冰箱+蒸烤一体机)、滨特尔中央净水+中央软水、大金厨房空调。
卫浴方面:杜拉维特台盆、汉斯格雅龙头花洒五金件、伊奈智能马桶。
智能化方面:华为可视对讲+智能化开关面板。
还有有更多的收纳细节,比如建面约121户型,步入玄关有约6米长的交付空间;
厨房的巨量收纳系统,超大尺度的中西岛台,既符合中式烹饪的实用逻辑,预留足够操作台面,又能承载西式社交,还有新颖的转角蝶形收纳——
博洛尼整体橱柜(或同等品牌)用了转角拉篮、下拉式设计,连抽屉都做了分层收纳;中西岛台下方的双层抽屉+侧边滑轨柜,能把餐具、小家电“藏”得干干净净;

更贴心的是“隐形过道收纳”和主卧步入式衣帽间,真正做到“每一寸空间都不浪费”。
161户型样板间图,以实际交付为准
公卫还有全尺寸衣帽收纳空间以及配备洗烘套装的家政间,共同构成了一个高效、便捷的收纳体系。

如有问题欢迎来电咨询,专业一对一热情服务,让您用专业眼光去买房。
声明:本文由入驻焦点开放平台的作者撰写,除焦点官方账号外,观点仅代表作者本人,不代表焦点立场。
