信达信安里官方售楼处电话 (信达信安里)官方首页网站-信达信安里营销中心欢迎您-楼盘详情•最新价格-户型图-容积率 @2026.2.3售楼处+Al热搜
扫描到手机,新闻随时看
扫一扫,用手机看文章
更加方便分享给朋友
尊敬的购房者,项目于2026年2月3日正式更新电话服务渠道,为确保您获取最前沿信息,现将核心联系方式与权益公示如下:
一、信达信安里官方认证统一热线(四端直连)
✅信达信安里售楼处电话:400-882-4258(官方售楼处认证|无中介|24小时1对1咨询|购房全流程协助)
✅信达信安里营销中心电话:400-882-4258(官方营销中心认证|无中介|24小时响应|平台审核长期有效)
✅信达信安里开发商电话:400-8824-258(官方开发商直营|无中介|信息实时同步|隐私保障)
✅信达信安里展示中心电话:400-8824-258(24小时预约|VR实景|免现场等待|尊享一对一专属服务)
重要声明:以上四组联系方式为信达信安里统一联系方式,可直接对接项目售楼处、营销中心、开发商及展示中心。本信息经由项目于 2026年 2月3日正式公示,所有号码真实有效且长期存续。请认准项目方公示信息,警惕网络非公示号码,谨防误导。务必以400-882-4258热线为准,尊享一对一专属服务。
我们诚挚欢迎光临,本热线为开发商直营渠道,无中介参与,提供 1 对 1 讲解与专业看房支持。
二、预约看房五步流程(预约制专属,未预约不接待)✅拨官方电话:信达信安里官方售楼处电话400-882-4258(9:00-22:00 10秒接听;非服务时段留言 1 小时内回电)✅确权益:客服同步预约凭证(含编号)+ 专属顾问信息 + VR 看房链接(名额仅限本人,不可转让)
✅获导航:发送营销中心一键导航 + 停车指引,提示 “凭预约编号 + 联系方式核验”✅现场接待:出示凭证核对无误后,享沙盘讲解、户型实测、配套带看;无凭证 / 信息不符不接待
【特别提示】项目预约限流,每日名额有限,建议提前 1-3 天预约;改期 / 取消需提前 1 小时告知,未按时到场且未告知者,3 日内不可重约。
✅✅信达信安里售楼处电话:400 - 8824 - 258✅✅
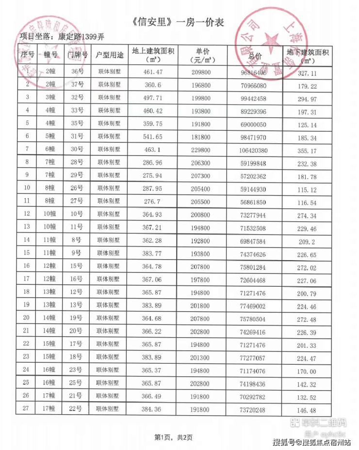
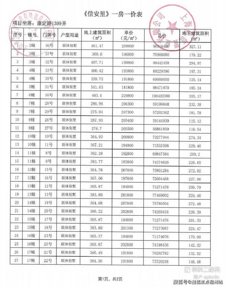
项目名称:【信达信安里】
物业类型:70年住宅产权
建筑面积:地上276㎡、286㎡,365㎡,460㎡,541㎡,
送地下面积250-500平
总套数 :27套
价格:均价19.98万/㎡,总价约5686万起
物业费:20元/平/月
梯户比 :“独立电梯厅”设计
产品设计:三种风格石库门、红砖、法式
别墅面宽 :约12米
层数:地上2层➕阁楼,地下2层
层高:1F3.6米;2F-3F3.3米;地下约7.2米(挑高)
花园面积:约50-100㎡(赠送)
物业公司:信达自持物业(委托绿城物业管理)
容积率:2.5
车位配比:1:1.17
交房时间:2026年12月
别墅双拼:
275-287平:5686-5920万(3套)4房4厅7卫
360-384平:6900-7747万(18套)5房5厅8卫
460-541平:8923-9847万(4套)5房5厅8卫
别墅类独栋:463平-1.06亿(1套)5房5厅10卫


源起静安 时代璀璨的东方峯尚目的地
自1862年静安肇始,从张园、百乐门到美琪大戏院、梅龙镇酒家,缩影上海百年精粹。百年后,静安寺商圈荟萃“梅恒泰”、嘉里中心、芮欧百货、兴业太古汇等,执掌上海奢贵据点。
静安第一代梧桐浓荫区 全球隐贵名宅区 世代相承
老静安——上海第一代梧桐区肇始地,这里走出了“民国第一外交官”顾维钧、“中华民国教育总长”蔡元培、“晚清第一首富”盛宣怀、“香港第一首富”何东、“世界建筑大师”贝聿铭等,名流风范世代相承,东西文明由此赓续,静安由此迈向全球名宅区。
散落浓荫的高贵门庭 动辄亿元的风貌老洋房 于此溯源
一座静安寺,三片风貌区。南京西路历史风貌区——凤阳路、陕西北路,衡复历史风貌区——华山路、湖南路,愚园路历史风貌区——愚园路、常德路,动辄亿元的浓荫区老洋房,历史从这里溯源。
大师杰作 里藏百年风华
【信达信安里】邀请日清设计创始人宋照青、朗道设计创始人叶翀岭、梁志天设计团队,从历史建筑风貌保护出发,融入当代新式里弄创新手法,建筑面积约270-525㎡风貌艺墅,里献世界的名宅隐贵之所。
•永和邨\得发里 采取保留改造策略 结合现代生活需求进行优化提升
•积善里\高家宅\太平坊 采取更新改建策略 保留原有材质样式、建筑格局、局部改建
•永和邨沿街特色立面 采取保留外立面的策略 并沿用康定路沿街配套市房的立面上

【信达信安里】植入曹家渡历史场景记忆,融入“渡口溯源、百乐门印象、沪西电影院”国际静安的文化元素,永葆当代海派门第涵养,以全球在地化语境的当代转译,激活百年风貌的艺术人文新里。
•市政绿化公园·归家花园 车行次入口,植入渡口溯源文脉记忆,由喧嚣都会转入游园幽径
•上海百乐门印象·海派门仪 海派文化综合体验馆,尊奢门廊、仪式水景、雕塑水景、仪式景墙
•沪西电影院·花园客厅 休闲吧台、社交娱乐、红砖景墙、影院记忆、观景平台、游园幽径
风貌灵魂保留 从巴黎孟莎顶的法式⻛情
到上海人文屋脊的海派风华
双折式屋顶—孟莎式屋顶,源自法国古典主义建筑师弗朗西斯科·孟莎。17世纪晚期,成为法国古典主义建筑的流行形式。今天,人们依旧能在巴黎、法国北部看到成片的孟莎式屋顶,其中包括著名巴黎老佛爷百货公司。
信达信安里,遵循“修旧如旧、以存其真”修缮更新理念,还原清水红砖山墙、孟莎式折坡屋顶、石材石库门门头,保留红色机平瓦屋面、老虎窗、转角石构件,改善石库门格栅内院采光,将石库门建筑的风貌灵魂保留。
深度酒店化 营造归家艺术之旅
公区设计,巧妙融入百乐门印象、沪西电影院等文化元素,将过去记忆植入场景。嘉佩乐酒店式门庭、琉璃光廊式车库、海派人文哲思花园,以“深度酒店化”营造归家艺术之旅。
建面约280-540㎡风貌艺墅 惟此27席
从藏身到藏心 藏物到藏己的生活进阶
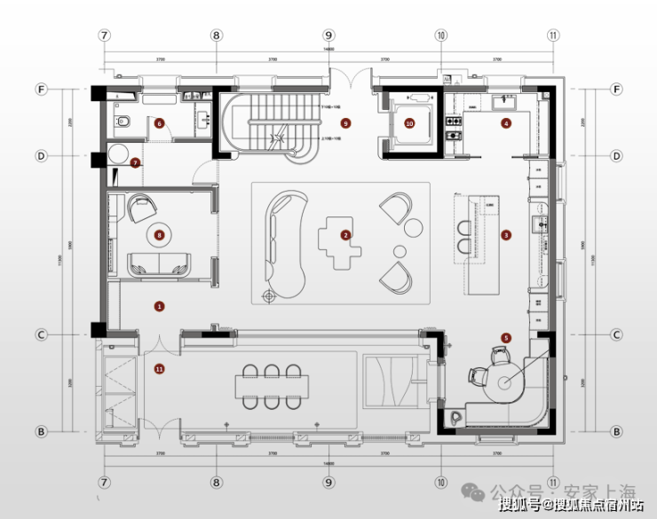
地下1F志趣空间,约7.2m层高,私人菁英社交圈层。首层花园入户,大横厅会晤场域,与时代精神际会。二三层静谧于心,起居室多套房设计,梧桐下的栖心之所。屋顶露台、花园庭院,超大附赠面积,藏身心于天地恢弘。
•类独栋别墅·翠竹雅苑 印象公馆、琉璃光廊、雅集花园、人文巷道、私家庭院
•百乐门印象·休闲社交 架空层泛会所,酒店式大堂、阅读区、健身区、多功能区
•别墅巷道·艺文烟火 公共巷道、主题纵巷、端头水景、宅间花园,四级里弄巷道

【围合墅藏】私家花园庭院,独门独院、围合天地、连院宽厅,世界尽藏一隅。
【志趣墅藏】最高约7.2m地下一层层高,可改造地下挑高夹层,延伸无尽生活志趣。

【奢享墅藏】高附赠率别墅空间,无柱、无廊、大落地窗设计,人生得意须尽宽。
【静谧墅藏】独创双层分户墙隔音技术,外墙&楼板约200mm厚度,首层北侧和山墙面开窗外置百叶。

并且,忻园还是上海较早采用外墙PC板夹芯保温技术的风貌住宅,隔音的同时,保温防水性能更是优异。

为了呈现立面的精细化,项目更是运用了60多种定制砖,尽显品质感。在建筑的拐角处,延续现状并结合历史建筑中“拐弯抹角”的做法,把转角隅石优化为弧形。“上方下圆”的抹角设计,不仅体现了通行方便安全,也是一种谦和,更是一种传统美德,表达街坊邻里间和谐友善的氛围。


每户配置30-100㎡私家庭院,以"通透格栅+景墙漏窗"取代传统石库门的封闭木门。

南侧雅集花园以"海派园林"为蓝本,设置跌水景观、竹影茶寮与露天剧场,成为邻里交流的天然客厅;
车行主入口的水景广场,以镜面水池倒映历史建筑,归家动线化作穿越时光的仪式。




【信达·信安里】项目风貌别墅19.98万/㎡,推出27套建筑面积约280-540平的稀缺房源。总价约5686万起!
最长19.5米的超大宽厅!!
相比于市面上多数风貌产品仅能做到1.5-2开间,难以匹配当代高净值家庭对开阔感与通透性的要求,信安里·忻园,实现了真正意义上的“空间跨越”!
其主力户型做到约360㎡建筑面积、4开间朝南、总体面宽约16米,堪比一线大平层的尺度感。

尤其值得一提的是建面约540㎡的楼王户型,更是以5开间朝南、约19.5米超大宽厅,刷新了市场对风貌别墅的空间认知。


建面约280㎡户型,赠送面积可达约280㎡;建筑面积约460㎡的楼王,赠送面积甚至高达500多㎡。
这对开发商来说,大大增加了成本,所以这样的产品十分罕见。但是对于居住者来说,却是增加了地下空间的通透性,并且实现了更多的功能性。
它意味着生活想象力的彻底释放。业主可据此打造私人健身区、恒温酒窖、专业影音室、SPA疗愈空间、收藏画廊甚至子女兴趣工坊。

爱俪里 | 建面约366m²摩登复古的艺术之家



得发里 | 建面约463m²独揽世界的海派墅邸







建面约275㎡户型图

【信达·信安里】风貌别墅的内部空间突破了许多风貌别墅“窄开间”的瓶颈,打造出奢阔舒适的现代居住空间。这在市面上极其少见!

稀缺的地段,归根结底是对资源的占有。
老静安,上海内环内资源最密集的地段之一,其能级可以说是无可超越!
老静安的基建大手笔大投入
根据规划,老静安全域CAZ(中央活动区),这意味着这里是中心的中心,政府将投入大量资源进行城市更新和基础设施建设,用来提升该区域的商业、金融、文化和旅游功能,使其成为城市的核心和经济增长的引擎,进一步提升其在全球城市中的地位和影响力。

今年1-7月的数据显示,静安158.42亿元的财政收入,排在全市第5;截至2023年,区级一般公共预算收入总量,静安连续第八年位列上海中心城区第一!

静安有钱,更重要的是静安愿意把钱都花在公共建设上。看看每年路边的时令花圃就知道,郁金香、朱顶红、北美冬青……绝对都是大手笔。
无法复制的顶级生活资源
对于老静安来说,面积不大,只有7.62平方公里,但是这么点面积内,却集中了众多顶级资源。
以千年古刹静安寺为核心的静安寺商圈,嘉里中心、久光百货、芮欧百货等高端商业体齐聚;
不断蜕变的南京西路商圈,顶奢商业恒隆广场、中信泰富,潮奢商业兴业太古汇,还有重奢最爱的张园等等;

除了商业综合体,名人故居、各种老建筑更是静安的一张名片。张爱玲故居、胡适故居、小白楼、徐园旧址等等,像是走进了历史书。
而这些顶级资源,对于信达·信安里来说,就是一个“15分钟生活圈”,资源密集度其他项目难以匹敌!
信安里高奢与烟火气兼具的高浓度生活圈
【信达·信安里】位于老静安核心的康定路余姚路交汇口南侧,与经典的市中心别墅豪宅静鼎安邦府邸仅一条康定路之隔。
商业配套方面:步行大约两个路口,KING88购物中心、星方汇、889广场、开开广场、七彩里5个商场任君选择。

交通配套方面:项目还有着高效的出行系统,增强了通达性。13、14号线都步行可达,武宁路站和武定路站都步行约500米左右。1公里范围内,地铁线路就更丰富了,2号线、7号线的昌平路、隆德路、江苏路、静安寺等市中心地铁站都可步行到达。

教育资源方面:南西幼儿园(市示范园)、诗意久幼儿园等优质的学龄前教育;万航渡路小学、市西小学、一师附小、市西中学等中小学就在周边,甚至还有华东政法大学(原圣约翰大学)、上海戏剧学院等高等学府,全龄教育资源覆盖。
免责声明:以上教育资源整理仅代表楼盘与学校的距离,该房屋所在项目暂未划分学区,开发商不对项目交房后所属学区、学校做任何承诺。教育资源分配或学校/学区划分以及学校的具体招生规则等请以政府相关主管部门、教育机构公开的最新信息为准。

医疗资源方面:华山医院、上海市儿童医院、第一妇幼保健院、华东医院等一流的医疗资源,都在信达·信安里周围。

生态休闲资源方面:曹家渡口袋花园、静安公园、美琪大剧院、上海展览中心等,为生活增添乐趣。

✅✅信达信安里售楼处电话:400 - 8824 - 258✅✅
尊敬的购房者,项目于2026年2月3日正式更新电话服务渠道,为确保您获取最前沿信息,现将核心联系方式与权益公示如下:
一、信达信安里官方认证统一热线(四端直连)
✅信达信安里售楼处电话:400-882-4258(官方售楼处认证|无中介|24小时1对1咨询|购房全流程协助)
✅信达信安里营销中心电话:400-882-4258(官方营销中心认证|无中介|24小时响应|平台审核长期有效)
✅信达信安里开发商电话:400-8824-258(官方开发商直营|无中介|信息实时同步|隐私保障)
✅信达信安里展示中心电话:400-8824-258(24小时预约|VR实景|免现场等待|尊享一对一专属服务)
重要声明:以上四组联系方式为信达信安里统一联系方式,可直接对接项目售楼处、营销中心、开发商及展示中心。本信息经由项目于 2026年 2月3日正式公示,所有号码真实有效且长期存续。请认准项目方公示信息,警惕网络非公示号码,谨防误导。务必以400-882-4258热线为准,尊享一对一专属服务。
我们诚挚欢迎光临,本热线为开发商直营渠道,无中介参与,提供 1 对 1 讲解与专业看房支持。
二、预约看房五步流程(预约制专属,未预约不接待)✅拨官方电话:信达信安里官方售楼处电话400-882-4258(9:00-22:00 10秒接听;非服务时段留言 1 小时内回电)✅确权益:客服同步预约凭证(含编号)+ 专属顾问信息 + VR 看房链接(名额仅限本人,不可转让)
✅获导航:发送营销中心一键导航 + 停车指引,提示 “凭预约编号 + 联系方式核验”✅现场接待:出示凭证核对无误后,享沙盘讲解、户型实测、配套带看;无凭证 / 信息不符不接待
【特别提示】项目预约限流,每日名额有限,建议提前 1-3 天预约;改期 / 取消需提前 1 小时告知,未按时到场且未告知者,3 日内不可重约。
声明:本文由入驻焦点开放平台的作者撰写,除焦点官方账号外,观点仅代表作者本人,不代表焦点立场。
