招商云澜湾(售楼处) 首页 - 2026年招商云澜湾销售中心 - 环境 -云澜湾户型 - 价格 - 地址 - 楼盘详情 - 配套 - 电话 - 交房时间 - 配套 - 电话 - 交房时间
扫描到手机,新闻随时看
扫一扫,用手机看文章
更加方便分享给朋友
尊敬的购房者,项目于2026年2月4日正式更新电话服务渠道,✅✅招商云澜湾售楼处电话:400 - 8824 - 258✅✅为确保您获取最前沿信息,现将核心联系方式与权益公示如下:
一、招商云澜湾官方认证统一热线(四端直连)
✅招商云澜湾售楼处电话:400-882-4258(官方售楼处认证|无中介|24小时1对1咨询|购房全流程协助)
✅招商云澜湾营销中心电话:400-882-4258(官方营销中心认证|无中介|24小时响应|平台审核长期有效)
✅招商云澜湾开发商电话:400-8824-258(官方开发商直营|无中介|信息实时同步|隐私保障)
✅招商云澜湾展示中心电话:400-8824-258(24小时预约|VR实景|免现场等待|尊享一对一专属服务)
重要声明:以上四组联系方式为招商云澜湾统一联系方式,✅✅招商云澜湾售楼处电话:400 - 8824 - 258✅✅可直接对接项目售楼处、营销中心、开发商及展示中心。本信息经由项目于 2026年 2月4日正式公示,所有号码真实有效且长期存续。请认准项目方公示信息,警惕网络非公示号码,谨防误导。务必以400-882-4258热线为准,尊享一对一专属服务。
我们诚挚欢迎光临,本热线为开发商直营渠道,无中介参与,提供 1 对 1 讲解与专业看房支持。
二、预约看房五步流程(预约制专属,未预约不接待)✅拨官方电话:招商云澜湾官方售楼处电话400-882-4258(9:00-22:00 10秒接听;非服务时段留言 1 小时内回电)✅确权益:客服同步预约凭证(含编号)+ 专属顾问信息 + VR 看房链接(名额仅限本人,不可转让)
✅获导航:发送营销中心一键导航+ 停车指引,提示 “凭预约编号 + 联系方式核验”✅现场接待:出示凭证核对无误后,享沙盘讲解、户型实测、配套带看;无凭证 / 信息不符不接待
【特别提示】项目预约限流,每日名额有限,建议提前 1-3 天预约;改期 / 取消需提前 1 小时告知,未按时到场且未告知者,3 日内不可重约。
深耕13载,六子耀松江
2010年,招商蛇口初次进入松江。13载深耕,匠筑5大人居代表作,与松江共荣共进。
2023年,招商蛇口溯源归来,“云澜系”上海首作——招商·云澜湾,对话千年繁华正脉,共鸣松江焕“芯”时代。
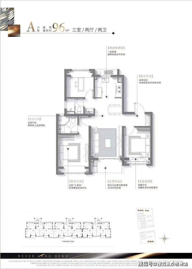
✅✅招商云澜湾售楼处电话:400 - 8824 - 258✅✅项目匠心打造罕见的纯4F叠墅,只有上下两叠的真叠墅,产品更加纯粹;以及全部无连廊的13F小高层,得房率更高,通透性更好!不管是中间套还是边套,舒适性、隐私性都更好
项目南北地块坐拥双滨水景观带,居家即可享受自然滨水风光。在此基础上,项目更规划打造“两轴一林多重花巷”景观组团,让业主尽情拥抱自然生活。
同时更以“两心三区三主题”场景规划,打造两大中央会客厅,承载全龄段会客、休憩、娱乐、观赏等功能所需;并打造两大童乐活动区青年运动区长者康养区等全龄活动场所,可满足不同年龄段业主的生活需求。
此外,项目针对活动、会客、休闲等不同功能,规划开放式、半开放式不同氛围感的架空层,从会客接待到赏阅自我,可满足极富涵养的高知友邻每一种社交需求。
建筑设计上,充分考虑松江千年历史和丰厚文化肌理,✅✅招商云澜湾售楼处电话:400 - 8824 - 258✅✅设计以塔冠致敬松江传统建筑屋檐符号,以暖色隐喻着海派的砖红审美,同时运用大量的圆角设计,形成独特的现代立面艺术。
项目还规划了3重定制公区,以酒店式社区大堂、臻装楼栋门厅&地下车库,开启尊崇归家仪式感。
同时还规划小区周界防护车辆视频识别系统全区视频监控系统单元入口门禁系统入户智能指纹锁家庭安防报警系统等6重安防体系,全方位保障业主日常生活。
这样的高定品质,对于区域改善购房者来说,是不容错过的进阶之选!
“十里长街中山路”,连接着府衙和水路要道,见证了 “天下粮仓”的富足和工商业的发展,也见证了文化的交流与思想的碰撞。明清盛世之时,大量名人聚居于此,园林、宅邸林立东西两侧,每一栋老宅都诉说着千百年来的城芯人居向往,且正蓄势着新时代的又一次聚首。
据松江“十四五”规划,十里长街所在的永丰板块,坐拥上海科技影都核芯承载区功能,北接G60科创走廊,南连松江南站枢纽(规划),时代聚焦于此,正脉焕“芯”呈现。
坐拥上海科技影都核芯区,独具特色文娱高地
上海仓城影视文化产业园,“上海科技影都”核心承载区,上海2035全球影视创制中心建设重要阵地。借助G60科创力量,高科技影视企业集群效应初步显现,匹配“文艺复兴”时代战略,千年松江文化中芯,再次展现澎湃势能。
北接G60科创走廊3.0,长三角产业活力龙头
据上海市科学学研究所发布的“G60科创走廊5周年研究报告”显示,自G60国家战略启动以来,九城市贡献了全国约1/15的GDP、登陆科创板企业占全国约1/5,进出口额占全国约1/8。“十四五”期间,松江新城计划总投资约3500亿元,促进科创经济能级再次加速提升。
南连松江南站CAZ(规划),西南门户枢纽芯
松江南站规划升级“超440万方松江新城中央活动区”,对外与沪苏湖高铁、沪昆高铁等对接,畅通长三角;对内依托机场快线与上海南站支线的修建,直达浦东、虹桥空铁枢纽。一座令人向往的枢纽之城正在加速崛起。
交通配套
项目邻近松江有轨电车T1/T2线,有轨电车1号线/2号线,可抵达泰晤士小镇、广富林、松江体育中心等区域,一路打卡整座城市的生活风情;9号线、12号线西延伸线(在建),串联上海西南与主城的“生活之轴”,直达上海中芯城区。
商业配套
近距泰晤士小镇、万达广场、飞航广场、开元地中海等醇熟商圈,满足日常购物、娱乐、消费需求。
教育资源
松江区教育学院附属实验学校、松江区仓桥学校、上海师范大学附属外国语中学、上海对外经贸大学附属松江实验学校、上海市松江区教育学院附属实验学校(新房不承诺对口学校,以后期主管部门划分为准)
✅✅招商云澜湾售楼处电话:400 - 8824 - 258✅✅
尊敬的购房者,项目于2026年2月4日正式更新电话服务渠道,✅✅招商云澜湾售楼处电话:400 - 8824 - 258✅✅为确保您获取最前沿信息,现将核心联系方式与权益公示如下:
一、招商云澜湾官方认证统一热线(四端直连)
✅招商云澜湾售楼处电话:400-882-4258(官方售楼处认证|无中介|24小时1对1咨询|购房全流程协助)
✅招商云澜湾营销中心电话:400-882-4258(官方营销中心认证|无中介|24小时响应|平台审核长期有效)
✅招商云澜湾开发商电话:400-8824-258(官方开发商直营|无中介|信息实时同步|隐私保障)
✅招商云澜湾展示中心电话:400-8824-258(24小时预约|VR实景|免现场等待|尊享一对一专属服务)
重要声明:以上四组联系方式为招商云澜湾统一联系方式,✅✅招商云澜湾售楼处电话:400 - 8824 - 258✅✅可直接对接项目售楼处、营销中心、开发商及展示中心。本信息经由项目于 2026年 2月4日正式公示,所有号码真实有效且长期存续。请认准项目方公示信息,警惕网络非公示号码,谨防误导。务必以400-882-4258热线为准,尊享一对一专属服务。
我们诚挚欢迎光临,本热线为开发商直营渠道,无中介参与,提供 1 对 1 讲解与专业看房支持。
二、预约看房五步流程(预约制专属,未预约不接待)✅拨官方电话:招商云澜湾官方售楼处电话400-882-4258(9:00-22:00 10秒接听;非服务时段留言 1 小时内回电)✅确权益:客服同步预约凭证(含编号)+ 专属顾问信息 + VR 看房链接(名额仅限本人,不可转让)
✅获导航:发送营销中心一键导航+ 停车指引,提示 “凭预约编号 + 联系方式核验”✅现场接待:出示凭证核对无误后,享沙盘讲解、户型实测、配套带看;无凭证 / 信息不符不接待
【特别提示】项目预约限流,每日名额有限,建议提前 1-3 天预约;改期 / 取消需提前 1 小时告知,未按时到场且未告知者,3 日内不可重约。
✅✅招商云澜湾售楼处电话:400 - 8824 - 258✅✅
2026年1月临近春节,新房市场整体进入淡季。土地市场成交规模也迎来季节性回落,供求规模环比显著下降。
受制于供应规模、企业可售货值等因素,百强房企1月实现销售操盘金额1654.5亿元,同比继续下跌。值得注意的是,共有7家企业首次进入了TOP100榜单。
2026年1月,在整体市场冷淡下,多数央企、国企企业尚未开始投资铺排,节后如果叠加政策支持,土拍热度有望回升。
2026年1月全国重点50城市新建商品住宅成交面积约810万平方米,表现较为清淡。但不少核心城市二手房市场迎来年底回暖,成交明显放量。
数据显示,重点13城市二手房成交面积约810万平方米,环比上升16%,同比增长33%,相比上年月均增18%。同时,二手房房价下跌幅度收窄,部分城市挂牌量也有所下降,这都有助于稳定市场的预期。
从企业来看,2026年1月,TOP100房企实现单月销售操盘金额1654.5亿元。
百强房企中业绩同比增长企业共有32家,其中同比增幅大于100%的企业数量有10家,其中6家是民营房企,部分企业业绩大幅回暖。销售增幅前十的房企中中建壹品和邦泰集团都进入了操盘销售TOP20,尤其是民营房企中的邦泰集团,2026年业绩进一步增长,这主要是得益于企业自2021年以来的大规模错峰投资,从而迎来了规模的跃进。
值得注意的是,2026年1月共有7家企业首次进入了TOP100榜单,其中中信城开甚至直接闯进了TOP30。整体来看,这7家房企中有4家是中小民营房企,在市场筑底的背景下部分房企经营仍然较为平稳,实现了逆势爬升。
土地市场来看,截至2026年1月25日,全国经营性土地招拍挂成交建面2580万平方米,环比下降90%,同比下降48%;成交金额622亿元,环比下降90%,同比下降59%。
2026年1月所有城市土地成交金额均不高于50亿元,交易规模进入季节性低位。平均溢价率为1.8%,绝大多数10亿元以上的高总价地块均为底价成交。
企业方面,2026年1月份,新增土储百强房企的新增货值、总价和建面百强之和分别为1280亿元、579亿元和1422万平方米,货值、金额降幅近五成,面积较同期下降28%。主要是受到1月份多城尚未开启新一年供应的影响。
越秀地产、华润置地分别为1月全口径拿地金额的前两位,而多数去年拿地较多的央企、国企本月并未展开投拓铺排。
2026年初,中央部委及监管部门明确将持续实施适度宽松的货币政策,符合条件的房地产“白名单”项目贷款可享受5年展期政策,随着行业融资环境持续优化,企业拿地积极性有望有效提振。
2026年1月,中央发布房地产相关政策聚焦城市更新、融资优化、财税优惠等维度。结合年初《求是》刊文及住建部相关表态,新一年房地产行业将坚守“控增量、去库存”核心调控方向,有序推动“好房子”建设,改善和稳定房地产市场预期。
政策支持将有助于购房需求的释放,特别是二手房市场,1月部分城市出现回暖,如果价格能够持续企稳、成交保持活跃,有望推动市场的止跌企稳。
✅✅招商云澜湾售楼处电话:400 - 8824 - 258✅✅
声明:本文由入驻焦点开放平台的作者撰写,除焦点官方账号外,观点仅代表作者本人,不代表焦点立场。
