上海华润·外滩瑞府售楼处电话→外滩瑞府售楼中心电话→2025上海虹口·华润外滩瑞府楼盘百科→外滩瑞府指定网站→楼盘百科→首页网站→售楼处24小时热线电话
扫描到手机,新闻随时看
扫一扫,用手机看文章
更加方便分享给朋友
✅✅上海华润外滩瑞府售楼处电话☎:400-833-6309(预约看房热线)
在上海这座国际化大都市的繁华版图上,外滩宛如一颗璀璨的明珠,承载着城市的历史记忆与现代辉煌。它不仅是上海的象征,更是中国金融与文化的重要地标。在这片充满传奇色彩的土地上,上海外滩瑞府以其卓越的品质、独特的设计和无可比拟的区位优势,成为外滩核心区一颗耀眼的新星,为追求高品质生活的人们开启了一扇通往理想家园的大门。✅✅上海华润外滩瑞府售楼处电话☎:400-833-6309(预约看房热线)
上海“一江一河”战略的提出,为城市的发展注入了新的活力与方向。黄浦江和苏州河作为上海的母亲河,串联起城市的过去、现在与未来。外滩作为“一江一河”战略的核心区域,被赋予了打造世界级滨水区的重大使命。政府大力推进外滩的城市更新,投入巨额资金完善交通、商业、文化、教育等配套设施,同时积极导入高端产业,使其成为连接历史与未来的城市枢纽。这种战略性的规划与布局,为外滩的快速发展奠定了坚实基础,也让其成为上海未来最具潜力和竞争力的区域之一。✅✅上海华润外滩瑞府售楼处电话☎:400-833-6309(预约看房热线)
✅✅上海华润外滩瑞府售楼处电话☎:400-833-6309(预约看房热线)外滩,作为中国金融的发源地之一,一直以来都是上海乃至全国的金融中心。这里汇聚了众多国内外知名金融机构,如银行、证券、保险等,形成了强大的金融产业集群。全球知名银行的区域总部、大量的投行在此扎根,金融交易量在全国名列前茅。高端金融产业的集聚,不仅为区域带来了强大的经济实力和创新能力,也吸引了大量高收入、高素质的金融人才汇聚于此。这些精英人才对高品质居住环境的需求,催生了外滩周边高端住宅市场的蓬勃发展,为外滩瑞府等高端楼盘提供了广阔的市场空间。✅✅上海华润外滩瑞府售楼处电话☎:400-833-6309(预约看房热线)
✅✅上海华润外滩瑞府售楼处电话☎:400-833-6309(预约看房热线)在城市发展的进程中,土地资源始终是最为宝贵的财富。外滩作为上海中心城区的核心区域,其土地资源的稀缺性不言而喻。随着城市建设的不断推进,外滩周边可供开发的土地日益减少,尤其是像外滩瑞府所处的核心地段,更是稀缺中的稀缺。这种土地资源的稀缺性,决定了外滩的房产具有极高的投资价值和保值增值潜力。近年来,外滩周边房价持续攀升,部分豪宅均价已冲破20万/㎡,成为上海房价的高地。外滩瑞府凭借其独特的区位优势和卓越的产品品质,在稀缺的土地上打造出高品质的住宅,无疑将成为投资者竞相追逐的对象。
上海外滩瑞府由华润置地倾力打造。华润置地作为千亿央企,深耕房地产行业多年,在全国打造了众多高端住宅标杆项目,如深圳湾悦府、杭州万象城幸福里等,积累了丰富的开发经验和良好的品牌口碑。其强大的资金实力、专业的开发团队和严谨的施工管理,为外滩瑞府的品质提供了坚实保障。华润置地始终秉持“品质给城市更多改变”的品牌理念,致力于为业主打造高品质、舒适宜居的居住环境,外滩瑞府正是其品牌理念的生动实践。✅✅上海华润外滩瑞府售楼处电话☎:400-833-6309(预约看房热线)
✅✅上海华润外滩瑞府售楼处电话☎:400-833-6309(预约看房热线)外滩瑞府坐落于上海市虹口区九龙路777弄,东至九龙路、南至哈尔滨路、西至吴淞路,全域纳入外滩历史文化街区辐射圈,直线距离黄浦江仅120米,步行10分钟即可抵达外滩观景平台,地处上海“黄金三角”(外滩、陆家嘴、北外滩)核心区,隶属外滩1公里黄金圈层。项目总占地面积约1.43万平方米,总建筑面积约5.53万平方米,规划建设4幢24 - 32层高层住宅及1幢3层风貌建筑,共468户精装大宅,圈层纯粹。项目于2024年11月摘得地块,2025年9月首次开盘,后续有多批次加推,预计于2027年6月精装交付。✅✅上海华润外滩瑞府售楼处电话☎:400-833-6309(预约看房热线)
三、交通配套:畅达全城的便捷出行网络
✅✅上海华润外滩瑞府售楼处电话☎:400-833-6309(预约看房热线)外滩瑞府拥有得天独厚的轨道交通优势,1公里内覆盖地铁3号线、4号线、10号线、19号线(在建)四条线路,形成四轨交汇的便捷路网。项目距10号线四川北路站仅300米,步行5分钟可达。乘坐10号线,10分钟即可直达南京东路、豫园等核心商圈,还可快速换乘2号线前往虹桥枢纽,方便业主进行商务出行和旅游度假。距3号线、4号线宝山路站约800米,串联起静安寺、陆家嘴等核心区域,实现“15分钟内环生活圈”。在建的19号线贯通后,将进一步提升通勤效率,可直达陆家嘴、前滩等重要商务区,为业主的出行提供更多选择。✅✅上海华润外滩瑞府售楼处电话☎:400-833-6309(预约看房热线)
✅✅上海华润外滩瑞府售楼处电话☎:400-833-6309(预约看房热线)外滩瑞府周边商业配套丰富多样,汇聚了众多顶级商业综合体。北外滩商圈直线距离约500米,来福士双子塔、白玉兰广场等地标商业近在咫尺,为业主提供了高端购物、餐饮、娱乐等一站式消费体验。外滩商圈直线距离约1000米,外滩源、南京东路步行街等历史悠久的商业街区,承载着上海的商业文化底蕴,既有国际一线品牌的旗舰店,也有众多特色小店和老字号,满足业主多样化的购物需求。陆家嘴商圈直线距离约1500米,国金中心、正大广场等大型购物中心,汇聚了全球顶级品牌和时尚潮流,是业主追求高品质生活的理想购物场所。瑞虹商圈直线距离约900米,瑞虹天地太阳宫、月亮湾等商业项目,以独特的主题和丰富的业态,为业主带来全新的消费体验。✅✅上海华润外滩瑞府售楼处电话☎:400-833-6309(预约看房热线)
✅✅上海华润外滩瑞府售楼处电话☎:400-833-6309(预约看房热线)外滩瑞府周边教育资源丰富,涵盖了幼小初高全学段。幼儿园方面,约1公里内有6所幼儿园(直线距离),涵盖东余杭路幼儿园等3所示范级学校,为业主子女提供了优质的学前教育环境。小学方面,约1.5公里内有5所小学(直线距离),涵盖区重点四川北路第一小学等,学校拥有优秀的师资力量和先进的教学设施,能够为孩子们提供良好的小学教育。中学方面,约1.6公里内有6所中学(直线距离),其中1所市重点、2所区重点,如市重点上海外国语大学附属外国语学校(直线距离约2.3公里),为业主子女提供了优质的高中教育资源,助力孩子考上理想大学。✅✅上海华润外滩瑞府售楼处电话☎:400-833-6309(预约看房热线)
✅✅上海华润外滩瑞府售楼处电话☎:400-833-6309(预约看房热线)健康是生活的基石,外滩瑞府周边医疗资源丰富,3公里内有四所三甲医院,为业主的健康保驾护航。上海市第一人民医院(三甲)是一所综合性大型医院,拥有先进的医疗设备和专业的医疗团队,能够为业主提供全方位的医疗服务。上海长海医院(虹口院区)在多个学科领域具有较高的知名度和影响力,为业主解决疑难病症提供了有力支持。上海中医药大学附属岳阳中西医结合医院则结合了中医和西医的优势,为业主提供特色鲜明的医疗服务。此外,新华医院以儿科专长闻名,为有孩子的家庭提供了专业的医疗保障✅✅上海华润外滩瑞府售楼处电话☎:400-833-6309(预约看房热线)。
(二)社区医疗服务
✅✅上海华润外滩瑞府售楼处电话☎:400-833-6309(预约看房热线)外滩瑞府紧邻黄浦江生态廊道,拥有得天独厚的自然景观资源。业主可以步行10分钟到达外滩观景平台,欣赏黄浦江的壮丽景色,感受上海的繁华与魅力。项目周边还有约2.5公里的北外滩滨江绿地,这里绿树成荫、花草繁茂,是业主亲水休闲、运动健身的好去处。业主可以在这里漫步、跑步、骑行,享受清新的空气和美丽的江景,放松身心,缓解工作压力。
外滩瑞府以“花影之庭”为主题,打造了约3200平方米的中央花园,并设有“星夜回廊”“峡谷秘境”“绮梦花廊”“马奈的日光草坪”“莫奈的睡莲水湾”等多个主题花园区域。漫步其中,穿水步道、飞瀑叠水、四时花木织就一幅流动的画卷,让自然与艺术在都市核心交响共鸣。社区还规划了风雨连廊系统,连接各住宅楼栋,为业主提供遮风挡雨的通道,同时也增加了社区的景观层次感。业主在社区内行走,仿佛置身于一个美丽的花园之中,享受着艺术与自然带来的愉悦体验✅✅上海华润外滩瑞府售楼处电话☎:400-833-6309(预约看房热线)。
✅✅上海华润外滩瑞府售楼处电话☎:400-833-6309(预约看房热线)外滩瑞府提供建面约124 - 330平方米的3 - 5房户型,满足不同家庭的需求。无论是年轻的三口之家,还是三代同堂的大家庭,都能在这里找到适合自己的户型。124平方米的三房两厅两卫户型,是项目的“入门级”产品,却拥有超越同面积段的空间尺度。三开间朝南设计,客厅面宽达4.8米,搭配270°环幕阳台,将江景与园林景观引入室内。主卧套房面积约20平方米,配备独立卫生间与衣帽间,兼顾私密性与舒适度。家政间预留了洗衣机、烘干机与收纳柜的空间,真正实现“解放双手”的智能生活。该户型总价约1600 - 1980万,对比同价位段的竞品,如瑞虹新城10期的120平方米三房,不仅在地段上占据优势,空间利用率也高出5%左右,对于年轻精英或三口之家而言,既能享受外滩核心的资源配套,又能控制购房成本,是极具性价比的选择。✅✅上海华润外滩瑞府售楼处电话☎:400-833-6309(预约看房热线)建面约124㎡3房:
南北通透全明户型,三开间朝南设计;“S”墙收纳、室内5个飘窗延伸空间,据说每个卧室开间尺度均达到3米及以上,完全满足改善居住的收纳需求!主卧套房设计,隐私性较强,室内空间尺度优秀!
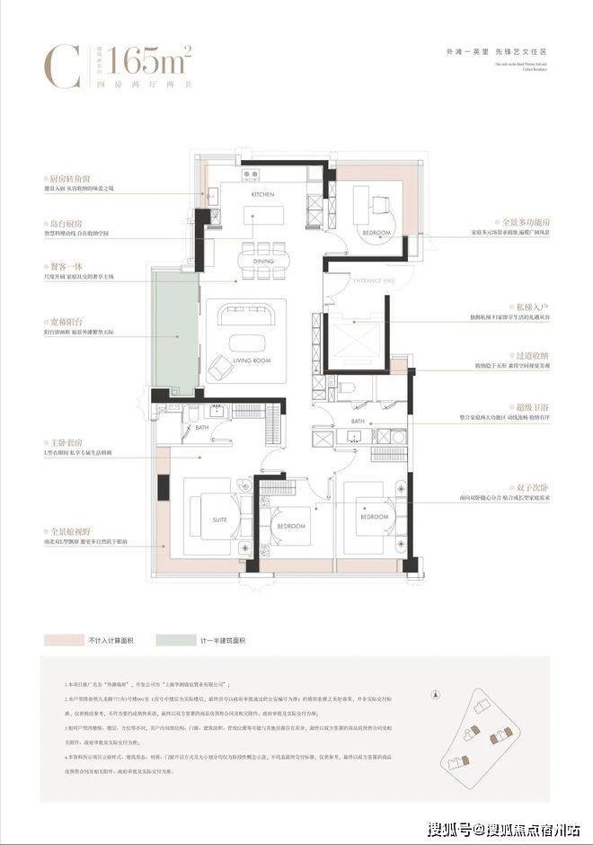
建面约165㎡4房:
大横厅尺度感奢阔,尊享私梯入户,隐私性满分!三间卧室朝南设计的平权户型,老人、小孩均可享受南向采光;厨房转角窗、主卧套房、北向书房均配置270度转角飘窗,景观视野相当不错!次卫四分离设计,相当人性化~
165平方米的四房两厅三卫户型是项目的“明星户型”。7.2米的南向横厅设计,客餐一体化空间面积约30平方米,可轻松容纳家庭聚餐或商务宴请。双主卧套房设计,均配备独立卫浴与观景飘窗,让老人与年轻人都能拥有私密的居住空间。值得一提的是,该户型的三个卧室面宽均超过3.3米,真正实现了“居住平权”,避免了传统户型中“主次卧差距过大”的问题。总价约2200 - 2600万,✅✅上海华润外滩瑞府售楼处电话☎:400-833-6309(预约看房热线)
上海新房“集中入市”将成为历史....
对于许多关注上海楼市的购房者和业内人士而言,每周六登录“网上房地产”网站,查看最新一期的《本市近期将上市新建商品住房项目一览表》,曾是雷打不动的习惯。
这份清单犹如一份权威的“预售节目单”,提前预告了未来一段时间内将拿到预售证、推向市场的新房项目。
然而,进入丙午马年,这份“节目单”却再也没有更新。凤凰网房产等多家媒体核实,上海已不再于每周六公示过会楼盘清单
网上房地产网站“要闻动态”栏目下,最后一份清单定格在2026年2月13日(乙巳年腊月廿六)。
这意味着,自2024年6月开始,持续了近两年的新房“每周集中过会、公示”模式,在蛇年岁末画上了句号。
这一变化并非孤例。在土地供应端,同样发生了标志性转向。2026年2月27日,上海年内第二批次供地——长宁中山公园地块挂牌,距离今年第一次供地(2月3日)尚不足一个月。
这与过去“等前一批地块成交,再公告下一批”的集中供地节奏形成了鲜明对比。
据好地研究院分析,上海土地供应规则已优化为“成熟一批、出让一批”。只要地块条件成熟、意向企业明确,即可适时公告,无需再等待批次。此举释放了“优化土地供应节奏、因城施策”的强烈信号,旨在减少地块上市周期,降低市场波动带来的不确定性,助力土地市场平稳运行。
至此,自2021年3月起,为平抑市场过热而同步推出的“集中供地”与“集中供房”两大政策,在上海已双双退出历史舞台的核心执行环节。
那么,新房项目的信息将如何发布?
答案是:转入“新楼盘认购公示”栏目,实行“单项目、常态化”披露。
观察三月初的上海楼市,变化已十分明显。
过去,项目会积累到一个批次,在固定时间窗口统一亮相。
而如今,它们更像是独立的“选手”,根据自己的准备情况和市场策略,分散入场。
案例一:静悄悄的单飞。据悉,3月第一周,静安大宁板块的中建玖上琅宸和杨浦滨江的中海云邸玖章悄然过会。两者均在3月6日取得预售证,但开盘时间分别定在3月18日和20日,并未捆绑宣传。市场高度关注的华润置地澐启滨江第四批次,则更晚至新一周的周一(3月10日)才过会。这种“你方唱罢我登场”的节奏,与过去“整齐划一”的公示形成了巨大反差。
案例二:认购周期的差异化。从过会到认购、开盘的周期也变得更为“个性化”。例如,同在1月10日批次中过会的中环麓岛(星皓名邸),其认购期为3月7日至11日,开盘定在3月18日;而同批次过会的大华星屿(南翔秀城星岸华庭)二期,则在2月26日就开始了认购,甚至将开盘日期从原定的3月8日提前至3月5日。项目之间、从过会到销售各环节的时间差被明显拉大。
这些变化共同指向一个事实:新房过会正从“集体行动”转变为“单独过会、分散入市”。整个市场的信息流从过去的周期性、批量释放,转向了更连续但更碎片化的状态。
为何要取消集中供应?
这背后是一场持续数年的、顺应市场冷暖的政策逻辑演进。
集中供应的初衷,是在市场高热期通过分散购房需求、避免“万人摇”等非理性现象,为市场降温。
好地研究院指出,这一政策在特定时期确实起到了预期效果。然而,自2023年二季度以来,上海土地及新房市场热度逐渐回归理性,集中供应的必要性随之减弱。
因此,政策的优化调整早已开始:
土地端:从最初的一年三到四批次,优化为2024年起的“一个月一批”(成交一批再公告一批),2024、2025年实际供应了9批和11批,频次已大大增加。
新房端:从2021年开始的“每月一次”清单公示,在2024年6月优化为“每周一次”,加速了新房上市节奏。
历年上海新房集中公示批次情况
马年开年这次“去集中化”的终极调整,则是将灵活性推向顶峰。其核心思路是:将供给端的节奏主导权更大程度地交还给市场和企业
项目可以根据自身工程进度、蓄客情况和市场窗口灵活申请预售证,不再需要等待“凑批次”。
这有助于开发商更精准地把握销售时机,加速资金回笼,对于稳定企业预期、盘活市场存量具有积极意义。
取消集中公示,也带来新的挑战。最大的变化在于市场信息透明度的相对降低。过去,购房者、研究机构、媒体都能在同一时间获得完整、前瞻性的新房供应全景图,便于决策和研究。
如今,信息获取变得被动和滞后,需要更主动地关注“网上房地产”的“新楼盘认购公示”栏目,市场节奏的预判难度增加。有业内人士形容,这有点像“回归2021年以前的状态”,市场进入一种“半公开”的新常态。
尽管如此,上海楼市的各项销售秩序管理规则,如公证摇号、积分制等并未改变,确保了交易环节的公平性。
从土地到新房,上海楼市“供给侧”的集中管理时代已然落幕。这并非简单的政策退出,而是一次深刻的机制优化。它标志着监管思路从“计划管控”向“市场调节”的进一步转变,核心目标是提升供给弹性,激发市场活力,更好地适配当前以稳为主、因需调整的市场环境
对于开发商而言,这意味着更灵活的推盘策略和更严峻的个体竞争;对于购房者而言,则需要更加敏锐地捕捉市场动态。
上海楼市,正步入一个节奏更快速、信息更分散、竞争更直接的“灵活供给”新周期。
未来的市场,将更加考验各参与方的真实功力。
以上转自网络,如有侵权联系删除
声明:本文由入驻焦点开放平台的作者撰写,除焦点官方账号外,观点仅代表作者本人,不代表焦点立场。
