晶采世纪大厦(营销中心)首页网站-晶采世纪大厦销售中心(售楼处)-晶采世纪大厦楼盘欢迎您-地址-价格-户型-小区环境-楼盘详情-交房时间-周边配套-售楼处电话
扫描到手机,新闻随时看
扫一扫,用手机看文章
更加方便分享给朋友
✅晶采世纪大厦售楼处电话:400-8854-706✅︎✅︎✅
✅上海晶采世纪大厦营销中心热线400-8854-706(官方预约看房热线)
营业时间说明售楼处日常营业时间为每日 9:00-18:00,涵盖工作日、周末及法定节假日(特殊日将提前公告)。专属顾问对接:预约后会有专人提前熟悉您的需求(如预算、户型偏好、购房用途),到场即可直接针对性讲解,避免反复沟通浪费时间。
优先体验资源:热门户型样板间、工地实景参观等资源,可通过预约锁定优先时段,不用现场排队等候。
资料提前备好:购房所需的政策解读、楼盘备案信息、付款方案等资料,顾问会提前整理,您到场就能直接查看、提问,决策更高效。
提前预约,体验更优为确保您到店后能获得一对一的专属服务,强烈建议您提前通过售楼处官方电话预约到访时间。预约后,将有专属置业顾问提前准备好您关注的房源资料、项目细节,减少现场等待时间,让您的咨询更有针对性。
静安内环!不限购『晶采世纪大厦』通燃气!面积101-340㎡ 总价900万起 豪装全配 拎包入住南京西路地铁12号地铁口100米
✅晶采世纪大厦售楼处电话:400-8854-706✅︎✅︎✅
✅上海晶采世纪大厦营销中心热线400-8854-706(官方预约看房热线)
繁华的上海市静安区,有一座融合了经典与现代,艺术与商务的殿堂级建筑——晶采世纪大厦。这座由美国A+F建筑设计事务所精心打造的商务地标,不仅以其独特的ART-DECO风格和高端的石材装饰吸引着世界的目光,更以其智能化的管理系统和便捷的交通网络,成为众多企业理想的办公场所。在这里,您可以享受到高品质的商务环境,体验到尊贵的企业形象,更可以便捷地连接全球。晶采世纪大厦,静候您的莅临,共同开启商务新篇章。
✅晶采世纪大厦售楼处电话:400-8854-706✅︎✅︎✅
✅上海晶采世纪大厦营销中心热线400-8854-706(官方预约看房热线)
晶采世纪大厦,位于上海市静安区威海路,于2007年10月竣工。该项目由美国A+F建筑设计事务所精心打造,灵感源自“花园中的OFFICE”,巧妙融合ART-DECO风格,大量采用意大利进口干挂石材及大理石,赋予建筑外立面及电梯厅历久弥新的独特魅力。
✅晶采世纪大厦售楼处电话:400-8854-706✅︎✅︎✅
✅上海晶采世纪大厦营销中心热线400-8854-706(官方预约看房热线)
项目地址:南京西路地铁12号地铁口160米
项目概况:
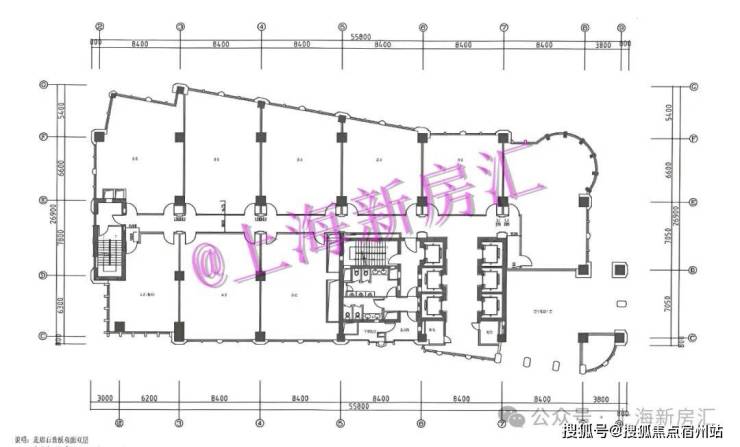
在售户型:101-111.6-154-225-340㎡
标准层高:3.6米
得 房 率:80%
交付标准:精装
在售套数:14套+
产权年限:50年
物业公司:上海同人物业
物 业 费:14元/平・月
水 电 费:电费1.3元/度,水费6块
燃 气:通燃气
停 车 位:1:2
晶采世纪大厦是现代化高级办公楼,地理位置优越交通便利,租金合理,设施齐全,装修现代,是企业领袖精明睿智之选择。晶采世纪大厦房型布局合理,灵活分割可满足各企业人性化的设计追求。
晶采世纪大厦位于上海城市格局中重要的国际商务办公和宾馆接待区之一——静安区威海路,毗邻四季酒店,与恒隆广场、中信泰富等办公楼共同打造南京西路CBD。晶采世纪大厦项目由美国F+A建筑事务所设计,三层挑高艺术大堂。94-1300平方米可自由分割,产权式办公房。楼高25层, 地下三层停车。
✅晶采世纪大厦售楼处电话:400-8854-706✅︎✅︎✅
✅上海晶采世纪大厦营销中心热线400-8854-706(官方预约看房热线)
建筑风格:ART-DECO风格,运用高端石材,展现经典与现代的完美结合。
智能化管理:采用国际先进的自动化管理系统,实现空调、新风、安防等系统的智能管控。
✅晶采世纪大厦售楼处电话:400-8854-706✅︎✅︎✅
✅上海晶采世纪大厦营销中心热线400-8854-706(官方预约看房热线)
✅晶采世纪大厦售楼处电话:400-8854-706✅︎✅︎✅
✅上海晶采世纪大厦营销中心热线400-8854-706(官方预约看房热线)
本项目对面即是有着百年历史的张园(原名为“张氏味莼园”,享有“海上第一名园”的美誉),现已打造成为上海的新城市名片,新的地标商圈;以及在运营的丰盛里商业综合体
✅晶采世纪大厦售楼处电话:400-8854-706✅︎✅︎✅
✅上海晶采世纪大厦营销中心热线400-8854-706(官方预约看房热线)
高架环绕:延安高架、南北高架近在咫尺,距虹桥机场仅25分钟车程。

✅晶采世纪大厦售楼处电话:400-8854-706✅︎✅︎✅
✅上海晶采世纪大厦营销中心热线400-8854-706(官方预约看房热线)
轨道交通:地铁2号线、12号线、13号线交汇,距南京西路站仅100米。
紧邻地标:正北面紧邻百年张园,东北方向为阿丽拉酒店(原四季酒店)及190米高的华润静安中心(在建)、兴业太古汇。
购物街区:西北方向为海派购物街区丰盛里,商业氛围浓厚,配套齐全。
✅晶采世纪大厦售楼处电话:400-8854-706✅︎✅︎✅
✅上海晶采世纪大厦营销中心热线400-8854-706(官方预约看房热线)
项目的东面步行几分钟是兴业太古汇项目以及上海电视台
项目的西面步行十分钟左右是上海展览中心以及静安嘉里中心:
项目的北面步行几分钟即是南京西路商圈:
✅晶采世纪大厦售楼处电话:400-8854-706✅︎✅︎✅
✅上海晶采世纪大厦营销中心热线400-8854-706(官方预约看房热线)
✅晶采世纪大厦售楼处电话:400-8854-706✅︎✅︎✅
✅上海晶采世纪大厦营销中心热线400-8854-706(官方预约看房热线)
声明:本文由入驻焦点开放平台的作者撰写,除焦点官方账号外,观点仅代表作者本人,不代表焦点立场。
