【招商-云澜湾】,烟火中的自然静谧,让美好迭新成诗!
当永丰主城飘出氤氲香气,唤醒沉睡的街巷
当仓城老街在暮色四合之际,诉说岁月的故事。
【招商·云澜湾】,于丰收河岸,以主城难得的双水岸墅居姿态,在城市烟火与自然诗意间,勾勒出改善进阶的理想生活画卷。 ☑️☑️招商云澜湾售楼处电话:400-8377-020☑️☑️

☑️☑️招商云澜湾售楼处电话:400-8377-020☑️☑️
【招商·云澜湾】,踞守中桥港湾与丰收河交汇处,匠心营造一方静谧生态栖居。
这里摒弃刻意雕琢,尽享丰收河岸的温柔馈赠。
滨水栈道蜿蜒舒展,清晨慢跑,清风拂面,傍晚凭栏,看夕阳浸染一河金辉。
周末携家人漫步,听流水潺潺,看孩童嬉戏。

☑️☑️招商云澜湾售楼处电话:400-8377-020☑️☑️
生活的诗意,于每一次呼吸间悄然流淌。作为永丰主城内少有的滨水墅居, 【招商-云澜湾】 不负土地臻贵,低谧设计,兑现滨水生活的静谧与尊荣。

水岸,不仅是迷人的风景线,更是生活舞台的优雅延伸。在【招商·云澜湾】,水岸的闲适意趣被巧妙引入社区深处。南北两大林下会客厅,浓荫蔽日,清风徐来,成为邻里相聚、品茗畅谈的绝佳所在。树影婆娑中,笑语盈盈,情谊在此悄然升温,社区生活洋溢着不息的活力与温情。

☑️☑️招商云澜湾售楼处电话:400-8377-020☑️☑️
归家的路途,亦是心灵的归途。云澜湾深谙此道,以银杏大道铺就归家主轴,开启温暖的序章。
金秋时节,两侧银杏盛装以待,落叶织就一条璀璨的金毯,每一步,都仿佛踏响时光的诗行。
无论是白昼的壮阔,抑或夜晚在柔光映衬下的静谧,皆温柔指引每一位业主,走向那盏等候的灯火。
家的温暖与尊崇,在每一次归家时分,被深刻感知。

☑️☑️招商云澜湾售楼处电话:400-8377-020☑️☑️
【招商-云澜湾】以对生活的自然赤诚之心,匠心筑造
建面约96-100-126㎡3-4房
建面约135㎡-141㎡叠墅
过会均价45769元/m²
高层总价398万起、叠墅总价788万起
认购可享折扣+补贴,今年买今年住(2025年12月)!

☑️☑️招商云澜湾售楼处电话:400-8377-020☑️☑️
户型图赏鉴

建面约96㎡精质三房,一步到位舒适人居: 该户型方正格局、南北通透无连廊,既容纳二人世界的浪漫,也可将三口之家的幸福一并珍藏。
在这里,随心拓展家庭社交空间,孩子们在客厅里玩乐,三五挚友围席对饮,或全家人坐在沙发上观影,其乐融融;
在空间功能的叠加与随心转换中,轻松满足未来居家生活的变化趋势,及家庭成员增长的需求,让欢乐尽情释放。

☑️☑️招商云澜湾售楼处电话:400-8377-020☑️☑️

☑️☑️招商云澜湾售楼处电话:400-8377-020☑️☑️
实景图


☑️☑️招商云澜湾售楼处电话:400-8377-020☑️☑️
建面约100㎡宽厅三房,改善家庭至优选: 在南向三开间的基础上,该户型“创新横向宽厅,营造百平米少有的客厅尺度“打造3.5南向面宽。
餐客公共空间由经典竖厅创新演变为“横向宽厅”,大开间短进深,扩大视觉观感,增加采光面,营造温暖舒适的家庭空间。
家庭成员可处于同一场域,实现更多情感互动,陪伴交流。

实景图

☑️☑️招商云澜湾售楼处电话:400-8377-020☑️☑️

☑️☑️招商云澜湾售楼处电话:400-8377-020☑️☑️
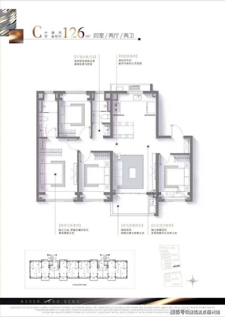
建面约126㎡真四房, 进一步强化功能性,户型方正,四开间朝南,南北通透,南向卧室均带有大飘窗设计,拓宽了室内景观视野的同时,增加了实际空间使用率,有效避免面积浪费。
主卧带独立卫生间,预留了衣帽间空间,私密性加强,保护业主隐私。对于当代二胎家庭来说,是一步到位的首选。
叠加户型图:

建面约135m²上叠 户型的 星空露台 ,可以是孩子探索浩瀚星河的专属基地,满足他们对宇宙的好奇与向往;也可以是太太的 空中花园 ,莳花弄草或呼朋引伴, 在星空下举办烧烤派对 。

☑️☑️招商云澜湾售楼处电话:400-8377-020☑️☑️


☑️☑️招商云澜湾售楼处电话:400-8377-020☑️☑️
建面约141m²下叠 户型, 尊享挑高多功能空间 ,可作为书房,工作室,孩子的童趣空间、私人影院、酒窖等,满足全家人的个性化生活所需,自然流露出高雅不凡的墅居品味。


☑️☑️招商云澜湾售楼处电话:400-8377-020☑️☑️
土拍回顾及规划
2023年7月11日,第二轮土拍,招商蛇口以总价184790万元价格,竞得松江区永丰街道SJC10011单元H02-16、H02-18号地块,地块占地面积45160㎡,容积率1.6,楼板价25574元/㎡,溢价率10%, 房地联动价4.9万/m²

☑️☑️招商云澜湾售楼处电话:400-8377-020☑️☑️
项目四至范围:东至三新路,南至荣乐西路,西至中桥港,北至H02-15地块。
项目由两幅小地块组成(H02-16、H02-18),根据设计方案显示, 项目总共将建17幢4-13F的商品住宅 ,以及1幢配套用房,其中:
H02-16地块(北地块)容积1.66, 拟建5幢13F小高层,6幢多层住宅 (大概率是叠加别墅),共计449套(含保障住房65套)。
H02-18号,容积1.43, 拟建3幢13F小高层,3幢4F多层 ,共计233套房源。两幅地块,高层间最大栋距约34.5米。

自然是天生的设计师。 当繁华的都市满足了人们物质上的需求,却让纯粹而静谧的自然生活变得疏远,如何让都市的生活回归自然的空间,是招商·云澜湾“启幕更好的松江”的设计追求。
☑️☑️招商云澜湾售楼处电话:400-8377-020☑️☑️
项目南北地块坐拥两大滨水景观,依水而建, 与邻为伴,以梦幻油画般的色彩,辉映千年松江古韵,呈现一片更加具象的自然景观。沿着蜿蜒曲折的林下空间漫步,心情随着潺潺河水流动,喧闹与寂静沉淀于此,一帧一画都是惬意。

效果图

自然的情绪在“都荟慢生活园林”中流动: 在园林的构筑中,将城市千年底蕴和当代审美艺术元素融合,营造城市与家庭生活之间自然的过渡地带。
☑️☑️招商云澜湾售楼处电话:400-8377-020☑️☑️
一座“都荟慢生活园林”蕴含了五大主题空间, 滨水的静谧与都市的繁华于此交融,自然的美感被纳入社区的设计中,让生活的感知与触动因自然而起,唤起居者心中的向往与共鸣。
示意图

☑️☑️招商云澜湾售楼处电话:400-8377-020☑️☑️
礼序归家大道,层层过滤喧嚣: 南北地块以不同的归家礼序层层递进,以艺术化呈现具备仪式感的归来空间。 两大主入口各具特色的礼制空间,以雅致艺术的手法,将自然的活力美好与空间的互动场景融合 ,让每一次归来即是心灵的放松与生活的享受。
效果图

林下会客厅,沉浸静谧的社交氛围: 南北地块分别规划“中央组团会客厅”。有随风舒展的阔叶植物和冠树,微风草坪和风雨廊亭,恰到好处的尺度,向林间谧境展开,无论是交谈、会客、还是独处,都会让人沉浸于岛屿谧境的私享情绪中。
效果图

漫步巷道,穿过四季漫步归家: 通过种植不同的主题植物,利用高低错落的布局,于天地间,自由绘成多重意境的大地艺术画,充分展现巷道的四季韵味,在漫步与驻足间,自然的惬意在这里被扩大。
效果图

☑️☑️招商云澜湾售楼处电话:400-8377-020☑️☑️
轻氧运动场,发现生活中的志同道合: 社区内运动社交空间,让需要缓解工作疲劳与压力、渴望身心放松和酷爱健身的成年人,在运动中缓解身心疲惫。
童趣游乐场,守护儿童愉悦成长: 南北地块各打造一处童梦活动区,将游戏的功能融入自然场景,让不同成长阶段的孩子,都可以近距离找到自己喜欢的娱乐天地。特别打造的“植物认知角”,可帮助孩童更好地了解植物,收获自然美育和认知能力。
效果图

☑️☑️招商云澜湾售楼处电话:400-8377-020☑️☑️
以空间艺术,高定入户大堂: 定制品质入户空间,以“情绪体验”为驱动力,让未来业主置身其中,回归到舒适与松弛的状态,在自然而尊崇的仪式中,迈向家的美好。

生活配套
交通方面: 小区门口50m配有有轨电车T1、T2线、长途汽车客运站;4km到9号线醉白池站,自驾沪昆高速,转换沪闵高架、中环、南北高架、内环高架等,可快速到达上海市区,也可通过S32申嘉湖高速,可以快速到达浦东机场。

教育方面: 七大高校+上海师范大学附属外国语中学、松江区仓桥学校、上海对外经贸大学附属松江实交通验学校、第三实验小学、华亭第二幼儿园;私立学校或者国际学校有包玉刚实验学校、松江西外外国语学校、赫德国际学校。

☑️☑️招商云澜湾售楼处电话:400-8377-020☑️☑️
商业方面: 家门口新理想广场、2km泰晤士小镇、2km飞航广场,开车约20分钟可到万达、印象城等大型商圈。

医疗方面: 松江区中心医院、上海市第一人民医院南院(三级甲等)、永丰街道社区卫生服务中心、方塔中医院、松江妇幼保健院(二级甲等)

☑️☑️招商云澜湾售楼处电话:400-8377-020☑️☑️
休闲方面: 永丰城市公园、三新体育场、永丰社区文体中心(在建)、仓城历史文化风貌保护区。

那么 与同板块高层价格持平,却能直接圆梦墅居的 招商云澜湾 无疑是改善客户入主松江城区错过不再有的天赐良机!
更重要的是,《安家上海》重点安利这个项目的原因也很简单,就是这项目 2025年12月就要交房了!目前已经是准现房状态👇

☑️☑️招商云澜湾售楼处电话:400-8377-020☑️☑️

☑️☑️招商云澜湾售楼处电话:400-8377-020☑️☑️

这也让项目变得非常简单,所有优势劣势直接来现场一目了然!
松江主城 约1.6低密墅区
『招商·云澜湾』
叠加别墅
⬆️145m²上叠,总价900万起
⬇️154m²下叠,总价1004万起
高层房源
89㎡三房两厅两卫,448万起
98㎡三房两厅两卫,507万起
130㎡四房两厅两卫总价725万起
已是准现房,社区已实景呈现!
☑️☑️招商云澜湾售楼处电话:400-8377-020☑️☑️
户型分布如下👇🏻

扫码进入官方报名通道,直接预约
⬇️专业销售一对一咨询⬇️
首先项目是 四层上下双叠的产品 ,没有中叠。比起市面上大多数的6叠更加纯粹更加低密,视野也更加开阔!!
其次无论上叠还是下叠全部 具备4房的功能性,甚至有3卫配置,足以适配当下越来越多的二胎或三代同堂家庭!
再次在尺度设计上, 宽境横厅、套房主卧等 全部安排上,将大宅的不凡气度体现的淋漓尽致!
同时,在灵动空间上,项目 下叠附带层高约5.2米地下室 ,足以盛放全家人的个性爱好。 上叠则附带南北双露台 ,独乐时,抬头观星,低头赏花;众乐时,好友齐聚,尽兴私趴!

☑️☑️招商云澜湾售楼处电话:400-8377-020☑️☑️
Part 1
占位松江主城核心地段
人文底蕴、丰盛配套、规划红利尽在掌握!
众所周知,松江是上海之根,而“十里长街中山路”又是松江繁华的缩影!
招商云澜湾正位于十里长街旁,占据千年繁华正脉,人文底蕴深厚!
而这样的成熟地段必然又是配套丰盛之地!
☑️☑️招商云澜湾售楼处电话:400-8377-020☑️☑️
交通方面,项目周边既有松江有轨电车T1/T2线,可抵达泰晤士小镇、广富林、松江体育中心等区域,一路打卡整座城市的生活风情;又有9号线串联上海西南与主城的“生活之轴”,直达上海中芯城区!

☑️☑️招商云澜湾售楼处电话:400-8377-020☑️☑️
位置示意图,仅供参考
商业方面,项目近邻泰晤士小镇、万达广场、飞航广场、开元地中海等醇熟商圈,足以满足业主吃喝玩乐购一站式消费需求。

医疗方面,项目直线距离三甲综合医院——松江第一人民医院仅约3.5km,距离松江区妇幼保健院仅约2.4km;距离松江区中心医院仅约2.7km,满足家人全方位健康护理需求。(数据来源:百度地图测距)

☑️☑️招商云澜湾售楼处电话:400-8377-020☑️☑️
教育资源方面,松江老城是松江已投入使用优质基础教育资源集中的区域,项目周边有松江区第三实验小学、上海师范大学附属外国语中学、上海对外经贸大学附属松江实验学校、上海市松江区教育学院附属实验学校等。
(免责声明:周边学校等相关教育设施仅为介绍周边已建、在建或规划教育资源,并不承诺为划片学区,学校划分以官方公示为准。)

☑️☑️招商云澜湾售楼处电话:400-8377-020☑️☑️
便捷的交通和繁华的配套,让住在招商云澜湾的业主生活品质与住在主城区无异。但 松江得天独厚的生态优势 是主城区无法比拟的。
项目占位中桥港湾、近距永丰城市公园、思鲈园、醉白池、方塔园等生态园林资源,佘山国际森林公园轻松而至!
人人欣羡的诗和远方、都市快节奏上班族向往的绿色自然,成为了招商云澜湾业主生活的日常美好!

☑️☑️招商云澜湾售楼处电话:400-8377-020☑️☑️
当然,当下显然还未是项目的价值顶点!
据松江“十四五”规划,十里长街所在的永丰板块, 坐拥上海科技影都核芯承载区功能,北接G60科创走廊,南连松江南站枢纽(规划),时代规划红利汇聚,项目未来前景可期!


☑️☑️招商云澜湾售楼处电话:400-8377-020☑️☑️
示意图,仅供参考
Part 2
容积率仅约1.6低密墅区
央企招商松江迭代升级之作!
在如今的房地产大背景下,购房者对品牌的要求越发苛刻。
而招商云澜湾由 百年央企招商蛇口 倾力打造,无论是安全性还是品质感都值得信赖!
要知道,早在2003年,百年央企招商蛇口就已进驻松江,如今深耕20载,七子耀松江,相信没有哪家开发商比招商更懂松江!
而且位于 松江正脉的 招商云澜湾是央企招商最新迭代升级之作!
☑️☑️招商云澜湾售楼处电话:400-8377-020☑️☑️

项目叠墅效果图
首先是项目得天独厚的天赋:容积率仅约1.6低密滨水墅质社区!
在对居住环境研判的报告显示:容积率每降低0.1,就意味着楼间距增加5米、被邻居吵到的机会减少20%、小区路面拓宽0.2米、社区新增100棵大树等等……所以低容积率能享受的居住体验感和高容积率完全不是一个层次!
据统计,今年4个批次土拍合计75块地,只有12块地的容积率在1.6及以下,占比约12%!而这些宅地再分散到全市16个区,一个区数年也未必轮得到一块!
容积率仅约1.6 的招商云澜湾无疑就是板块天生的置换链塔尖住宅,墅质社区营造的舒适感、尊贵感错过再难有!
更难得是,项目还是 双水系环抱 的滨水社区!
☑️☑️招商云澜湾售楼处电话:400-8377-020☑️☑️
而且为了放大地段天赋,项目规划了东高西低的社区配置,别墅和高层的业主都能享受双水系环绕的自然景观。

项目效果图
其次来看项目创新打造的都荟慢生活园林景观!
项目景观风格采用了都荟慢生活园林风,为了更契合松江江南古韵的文化气质,打造了 “两轴一林多重花巷” 的景观配置!
☑️☑️招商云澜湾售楼处电话:400-8377-020☑️☑️
· 两轴景观: 为了提升业主归家的仪式感,项目南地块塑造了尊贵高雅的三重归家礼序,西侧公共通道通往北地块,打造了人文浪漫的银杏景观大道。
· 一林: 依托贯穿小区的天然水系打造的滨水景观林。千年松江府配上水杉,更显古朴宁静,漫步林下,宛如穿行在水墨之间。
· 多重花巷: 别墅片区在多个楼栋前都规划了不同主题的花巷,营造私密恬静的墅境,更有曲径通幽的自在。
另外,项目社区还规划有两座 “中央会客厅” 、三大 “主题架空层” 、和三大 “全龄活动空间“ ,让邻里之间有了更多的互动场所和机会,也让各年龄段业主都能在家门口找到独属的乐趣!
☑️☑️招商云澜湾售楼处电话:400-8377-020☑️☑️

项目效果图
最后来看项目高颜值的美学建筑立面!
在缤纷静谧的社区之间,矗立是项目高颜值的建筑立面!
项目建筑融合塔冠形象致敬松江传统建筑屋檐符号,采用温暖的金属色搭配柔和的浅米色,呈现出与众不同的温暖色系,玻璃是更大化的玻璃占比,使视觉上更统一,同时增加室内采光开阔景观视野。 这是 松江主城新的城市天际线,也是业主未来身份的象征!
☑️☑️招商云澜湾售楼处电话:400-8377-020☑️☑️

项目效果图
项目首开房源中除了前文提到的四叠产品,还有建面约96-126㎡3-4房, 总价约335万起,无疑是刚需客户买进松江主城的好机会!
而且项目的户型设计水准是真的高!我们一个一个来解读:

☑️☑️招商云澜湾售楼处电话:400-8377-020☑️☑️
项目建面约96㎡3房是市面上更受欢迎的飞机户型!
相比现在常见的动静分区房型,飞机户型优势在于:
· 房间分列两侧,互相之间独立,能保证各自隐私不被打扰;
· 实现真正的南北通透,三开间超南+餐客厨阳台中轴一直线;
· 户型内部没有长过道,浪费面积少。
除了格局上设计巧妙,该户型也做到了主卧套房,舒适度和私密性都可圈可点!

☑️☑️招商云澜湾售楼处电话:400-8377-020☑️☑️
项目建面约100㎡3房2卫仍然是优秀的飞机户型,但实现该面积段少见的 大面宽横厅设计!
横向宽厅的好处是可以有更多的南向采光,阳光更充足。此外,给客厅可以弹性软分隔的方式,分出一个开放式书桌的空间,提供了选择性。

☑️☑️招商云澜湾售楼处电话:400-8377-020☑️☑️
该户型做到了同面积段罕见的 四开间朝南+四房设计,南向IMAX级景观面 ,卧室阳光满溢,功能性也拉满。
一般来讲现在做4房,普遍需要140㎡以上,而招商云澜湾用一个非常经济的面积实现4房2卫一步到位。功能性十足的同时也不失舒适性, 主卧南向大面宽+贯穿南北 ,主人起居之间沐浴充足阳光,与清风相伴。
项目装标除了必备的三件套, 洗碗机、玄关柜 全部是交付标准,户内客餐厅卧室交付时均配置 墙布。 主卫额外配置 卫洗丽 ,呈现的居住品质比起市区项目也不遑多让。
综上所述, 如果看好上海的发展,新的增长极五个新城无疑值得优选选择,其中发展成熟配套丰盛的松江新城更是不可不看!
☑️☑️招商云澜湾售楼处电话:400-8377-020☑️☑️
而现在,招商云澜湾给出的是同板块高层价格直接圆梦墅居的天赐良机,怎么看都没有错过的理由,且买且珍惜!