保利虹桥和著售楼处(2025保利虹桥和著最新)楼盘详情-保利虹桥和著房价-户型-周边配套-开盘时间

搜狐焦点宿州站 2025-09-02 15:16:37
用手机看
扫描到手机,新闻随时看

扫一扫,用手机看文章
更加方便分享给朋友

保利虹桥和著售楼处电话/地址☎:400-833-6309(预约热线)√√

上海嘉定保利虹桥和著售楼处电话/地址☎:400-833-6309(预约热线)√√

保利虹桥和著营销中心位置/热线☎:400-833-6309(看房专线)√√

温馨提示:提前预约来电预约专业一对一热情服务,看房尊享内部优惠折扣!

(已认证)欢迎致电咨询预约看房优惠信息,郑重承诺:开发商旗下销售团队全程营销策划,房源信息真实有效!

北虹桥门户 双轨交

步行约200米14号线

建面约94-128㎡3-4房

类一梯一户海派精奢国际住区

名校旁、精奢国际住区

均价55986元/㎡

上虹桥板块迎来重磅利好,教育资源直接大升级。

12月19日,嘉定区与上海师范大学举行深化教育合作签约。上海师范大学拟在江桥镇倾力打造一所公办九年一贯制学校和一所公办幼儿园,为江桥北虹桥地区教育版图再添重彩。保利虹桥和著售楼处电话/地址☎:400-833-6309(预约热线)√√

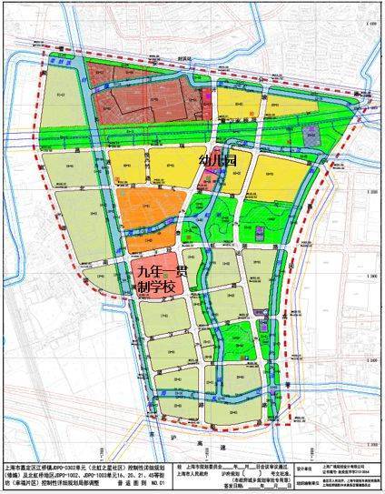
上师大附属九年一贯制落地选址北虹之星14-01地块,上师大附属幼儿园落地选址北虹之星08-06地块,还将纳入上海师范大学嘉定基础教育集团。

此外,双方还将探索创新优秀干部的区校共育机制,上海师范大学将委派优秀年轻干部到嘉定区教育局或基层单位任职、挂职,为嘉定教育高质量发展注入新的活力。

此举将大幅提升江桥地区的教育资源能级,完善北虹桥教育版图,为区域发展带来全新活力和发展机遇。

保利虹桥和著售楼处电话/地址☎:400-833-6309(预约热线)√√

◼1.拿地信息◼1.拿地信息◼2.板块规划目前已开启线上预约看房

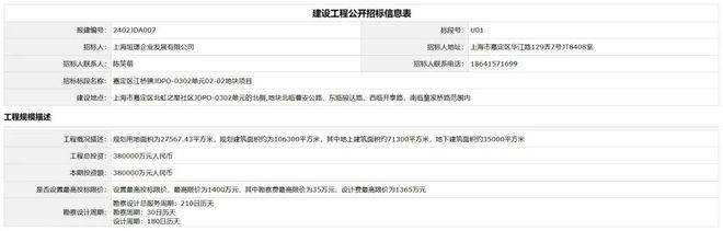
2024年7月,上海市规划和自然资源局发布公示,以协议方式出让嘉定区江桥镇JDP0-0302单元02-02地块(城中村改造项目)。

公示发布后不久,上海市建设工程交易服务中心随即发布了该地块的建设工程公开招标信息。

保利虹桥和著售楼处电话/地址☎:400-833-6309(预约热线)√√

嘉定区江桥镇JDP0-0302单元02-02地块建设工程公开招标信息

招标人上海垣璟企业发展有限公司,为上海地产集团旗下企业。

该地块是北虹之星社区的首发住宅地块,属于“上虹桥·城市更新区”的西区,这里将打造一座功能复合、绿色低碳、全龄友好的国际社区。

地块位置图

项目所在地块位于嘉定江桥的腹地,紧邻地铁14号线封浜站,周边配套设施比较齐全。

地块四至:东至骏达路、南至童家桥路,西至开泰路,北至绿华浦。

地块面积:27600平方米,容积率为2.5,建面约6.89万平方米。

项目规划设计方案已公示,拟建8幢18层高层住宅,预计将推出建面约94-104-128㎡,正在火爆认筹中。

今年4月18日,上海一批次土拍,浙江交投&象屿以总价37.78亿元竞得普陀区桃浦社区H6街坊H6-5地块,成交楼板价44450元◼

江桥北虹桥作为嘉定区“十四五”乃至更长时期发展的重要增长极和强力引擎,规划中已经明确将全力打造成为承载虹桥国际中央商务区主导功能,链接辐射长三角的创新经济集聚区、中央商务配套区和高品质国际化社区。

保利虹桥和著售楼处电话/地址☎:400-833-6309(预约热线)√√

在功能布局上,整个江桥将呈现“一核聚能、一带润城、三轴联动、四区共荣”的北虹桥全新城市空间格局,积极承载虹桥国际中央商务区“大科创”功能,以创新经济、总部经济为特色,打造数字新经济、生命新科技、低碳新能源、汽车新势力产业链融合生态集群。

北虹桥城市空间格局示意(图:江桥北虹桥)

在规划设计上,全新北虹桥开发地区遵循“以人为本、产城融合、多元包容、活力共享”的理念,对土地进行规划调整、整体提升、功能再造,着力打造“产城融合示范区、三生融合体验区、政企合作样板区”。

保利虹桥和著售楼处电话/地址☎:400-833-6309(预约热线)√√

江桥北虹桥地区的快速发展和繁荣,变得更加确定!

其实在去年,江桥为配合规划而打造的三大标杆性项目建设“一城、一湾、一区”均已提速。

“一城”:上海临港嘉定科技城

总面积约2.75平方公里,规划可建商办超20万m²;围绕科技创新、商贸流通和咨询服务三大重点行业,大力发展创新经济、总部经济和数字经济。

“一湾”:虹桥新慧总部湾

总建筑面积37万㎡,嘉定“五型经济” 的重要承载区,绿色开放、生态和谐、名企林立的总部集聚标杆地。

然而,这两个项目规模其实都不算大,根本原因还是受制于土地的捉襟见肘。

然而,这两个项目规模都受制于土地的捉襟见肘,规模不算大。真正能形成质变的,就是“一区”——“上虹桥·城市更新区”,其中就包括了西区北虹之星社区和东区幸福产业片区!

2023年10月,《嘉定“上虹桥·城市更新区”规划》正式发布,北虹桥商务区“一城、一湾、一区”规划中,

“一区”的规划更清晰了——未来将成为大虹桥乃至上海甚至整个长三角的创新经济集聚区、中央商务配套区和高品质国际化社区,引领赋能大虹桥和长三角。

“上虹桥·城市更新区”由嘉定区与上海地产集团共同推进,采用整体开发模式,品质和界面将得到更大的保障。项目一期占地面积约2500亩,分为东西两个片区。

西区规划约1100亩土地,整体规划为“一轴两心,五区连网”,着力打造功能复合、绿色低碳、全龄友好的国际社区。这个片区包含了幼儿园、国际学校、九年一贯制学校的规划用地,大量的公共绿地及水系资源,增加了生态宜居的标签。

“上虹桥·城市更新区”西区效果图

东区规划约1400亩土地,整体架构为“一核、一带、两轴、多组团”,聚焦商务研发功能。

“上虹桥·城市更新区”东区效果图

目前,嘉定区已构建“1+4+N”产业政策体系,尤其在契合北虹桥发展的创新经济、总部经济等方面给予支持。

同时,“上虹桥·城市更新区”还享有虹桥、张江、临港、嘉定四重政策区的叠加优势,在产业、科创、财税、人才等方面均享有最优方案。

“上虹桥·城市更新区”效果图

进入官方预约看房通道

案场销售会第一时间与您联系

有兴趣的朋友

预约参观/详细咨询保利虹桥和著售楼处电话/地址☎:400-833-6309(预约热线)√√

3.小区规划建设

项目的立面设计,充分汲取经典海派建筑元素,让经典穿越时空,历久弥新。与自然亲密无间的互动场景,为家庭自在生长多一份洞见,约160米的中央花园轴,将社区空间更多让渡于景观。内部最大约45米的楼栋间距,让生活私密而阳光充足,自然风能够自由灵动穿梭于楼栋之间,是天然的“新风系统”。

保利虹桥和著售楼处电话/地址☎:400-833-6309(预约热线)√√

保利在“和字系”基础上全面迭代升级,无论是外立面、公区、景观、装标,从不满足于单个指标的升级,而是每一次都带来一整套完整的生活理念重塑。

可以说,从设计感、细节处理,再一次惊艳了北虹桥,惊艳了整个上海楼市。究竟能做出什么样的产品力?不妨让我们一起期待!

正如加缪所言,“这世上如果还有一样东西,人们总是渴望获得,那就是人与人之间的温情。围绕“精奢人文+摩登烟火”理念,打造更时尚、更具烟火气的国际社区。上海嘉定保利虹桥和著售楼处电话/地址☎:400-833-6309(预约热线)√√

保利虹桥和著营销中心位置/热线☎:400-833-6309(看房专线)√√温馨提示:提前预约来电预约专业一对一热情服务,看房尊享内部优惠折扣!

(已认证)欢迎致电咨询预约看房优惠信息,郑重承诺:开发商旗下销售团队全程营销策划,房源信息真实有效!

北虹桥门户 双轨交

步行约200米14号线

建面约94-128㎡3-4房

类一梯一户海派精奢国际住区

名校旁、精奢国际住区

均价55986元/㎡

入户的第一眼,决定归家心情的愉悦程度。当你穿过约100米沿街酒店式落客礼仪大门,就能找到某家奢华酒店的影子。地下地上双装修入户大堂,礼遇归家的每一步风景。

采用高级灰+香槟金铝板线条构建美学立面,颜值出众且审美在线,仅凭这个外立面就知道业主对美和艺术的追寻不一般。

保利虹桥和著售楼处电话/地址☎:400-833-6309(预约热线)√√

社区大门—私影花园—共享聚场—森林课堂—芳华聚场,每一步都能享受到移步异景的欢愉感,四季变迁的风景是生活的主角,社区也不只是绿化景墙的堆砌,而是满足趣享乐活的全龄场域保利虹桥和著售楼处电话/地址☎:400-833-6309(预约热线)√√。

行走之间、一呼一吸之间,以全龄化体系构建多元架空层,打造重体验、全维度、有温度的社区“第二客厅”。

在产品打造上更是不遗余力,展示了大虹桥很难见到的大尺度和高使用率。

以首开建面约94/104/128㎡三种户型为例,每一户都享受全明独立电梯厅,类一梯一户的居住体验!这么做相当于将室内玄关外置,大大提升居住隐私性的同时,无形中还增加了使用面积,要知道以往只有豪宅才有这样的配置,但在保利虹桥和著却能轻松享受。保利虹桥和著售楼处电话/地址☎:400-833-6309(预约热线)√√

超大窗墙比,更使其充满空间的张力,以突破极值的姿态全面刷新家庭对于采光、通风、视野和开敞尺度感的追求标准。

◼4.户型鉴赏

保利虹桥和著售楼处电话/地址☎:400-833-6309(预约热线)√√

LDKB客餐厨阳台一体化设计整个南向三开间面宽拉伸到约9.7米,升维更轩阔的公区会客厅。飞机户型的空间排布,空间充裕但不浪费,将每一平米更大化利用。主卧套房私享衣帽空间,独立卫浴,270°转角瞰景飘窗,仪式尊贵和私密精致得到了细心呵护,缔造主人舒缓自在的生活日常。

建面约94平 3房2厅2卫

建面约104平 3房2厅2卫卫浴干湿分离设计,让家中的每一位成员,居住的舒适度更上一个台阶!从户型图就能看到,这个房型是南向大面宽的设计,三开间面宽达到了约10.3米,赋予居所大气磅礴的空间感与层次感。百平米的不将就三房,实现房间数量及空间尺度的均好平衡,保证一家人舒适相处又各有天地,可以满足两口之家的改善起步,三口之家的其乐融融,三代同堂的多人口居住需要保利虹桥和著售楼处电话/地址☎:400-833-6309(预约热线)√√。

保利虹桥和著售楼处电话/地址☎:400-833-6309(预约热线)√√

建面约128平 4房2厅2卫建面约128㎡四房,无论从尺度感、稀缺性,都是市场上炙手可热的爆款产品!以四房两厅两卫的格局,将居住感与品味融合,即便用“一劳永逸”来形容,也完全不夸张。四开间朝南面宽约13米,实现IMAX影院级视野,空间感妥妥豪宅级。X+1可变空间,让每一位家人都有专属空间,盛放生活的百变想象。尤其是主卧大套房安排上独立衣帽间+独卫,配上270度的转角飘窗,一扇窗就是一幅流动的四季自然画。

保利虹桥和著售楼处电话/地址☎:400-833-6309(预约热线)√√

甄选高标准精装

项目配置是全方位的,其不仅呈现在空间格局,更深藏在室内每一个关乎品位与体验的细节。保利虹桥和著售楼处电话/地址☎:400-833-6309(预约热线)√√

整体日立空调地暖两联供、迈迪龙单向流新风、滨特尔末端净水、唯宝台盆、高仪龙头等,国际知名装修品牌,覆盖到了生活的方方面面。

主卫智能一体马桶、顶喷花洒等配置齐全,玄关柜整体交付,诠释有温度的精致人居,更多细节就留待各位现场发掘。

◼5.周边生活配套

保利虹桥和著售楼处电话/地址☎:400-833-6309(预约热线)√√

上虹桥 CAZ-北虹之星,以“4+1”特色规划,打造富有海派城市风貌与生态自然格调的新一代国际社区,伴随国际化教育升级与重磅轨交连通,奢适生活焕新而来。

保利虹桥和著售楼处电话/地址☎:400-833-6309(预约热线)√√

● 双轨交汇:

【地铁14号线——超级换乘枢纽 】

步行约200米至地铁14号线封浜站,可与1、2、3、4、6、7、8、10、11、13、15、18号线等多条地铁线路实现换乘。

保利虹桥和著售楼处电话/地址☎:400-833-6309(预约热线)√√

【地铁嘉闵线(在建中)——南北走向“黄金走廊”】

近地铁嘉闵线乐秀路站(在建中),约3站直达虹桥(以政府规划为准),加速链接虹桥商务区、七宝、莘庄等重要区域。

● 近13号线金运路站——纵横城芯5大区

纵横普陀区、静安区、黄浦区,通达南京西路、淮海中路、新天地等地

保利虹桥和著售楼处电话/地址☎:400-833-6309(预约热线)√√

● 嘉闵高架——南北动脉

“三横三纵”的交通布局是上海核心区域的重要网络,三横包括曹安公路、京沪高速和沪嘉高速;三纵则由嘉闵高架、中环高架和外环高速构成。其中嘉闵高架作为上海“三横三纵”重要南北动脉,接轨虹桥商务区,高效连接上海各区。

保利虹桥和著售楼处电话/地址☎:400-833-6309(预约热线)√√

【商业】潮流精粹

约1.5公里维乐城

约3.5公里江桥万达广场

北虹之星 约1.4万方社区商业(规划中)

上虹桥东片区 约7.6万方万佛寺商圈(规划中)

保利虹桥和著售楼处电话/地址☎:400-833-6309(预约热线)√√

【教育】国际文脉

1座国际化特色民办学校(规划)

1座九年一贯制公办学校(规划)

2座幼儿园(规划)

保利虹桥和著售楼处电话/地址☎:400-833-6309(预约热线)√√

【自然】都会谧境

U型廊:约150亩迎虹湖(规划中)

一字川:约1700米滨河水岸(规划中)

绿野谷:约1500米/200亩 线性公园(规划中)

案场销售会第一时间与您联系

有兴趣的朋友

保利虹桥和著售楼处电话/地址☎:400-833-6309(预约热线)√√

预约参观/详细咨询

上海嘉定保利虹桥和著售楼处电话/地址☎:400-833-6309(预约热线)√√

保利虹桥和著营销中心位置/热线☎:400-833-6309(看房专线)√√温馨提示:提前预约来电预约专业一对一热情服务,看房尊享内部优惠折扣!

(已认证)欢迎致电咨询预约看房优惠信息,郑重承诺:开发商旗下销售团队全程营销策划,房源信息真实有效!

北虹桥门户 双轨交

步行约200米14号线

建面约94-128㎡3-4房

类一梯一户海派精奢国际住区

名校旁、精奢国际住区

均价55986元/㎡

上海社保新规,缴费15年提升至20年.

近期,人力资源社会保障部发布通知,2025年退休人员养老金将调整。

不少朋友都很关心在上海退休的规定,小编整理了一些官方相关的政策,一起来看详情。

01

在职人员领取养老金的条件是什么?

享受养老保险待遇的退休人员应同时具备以下条件:

1、达到国家规定的法定退休年龄;

2025年1月1日起,原法定退休年龄为60周岁的男职工和原法定退休年龄为55周岁管理、技术岗位的女职工,法定退休年龄每四个月延迟一个月,分别逐步延迟至63周岁和58周岁;原法定退休年龄为50周岁工人岗位的女职工(不包括事业单位在编的干部身份的女职工),法定退休年龄每二个月延迟一个月,逐步延迟至55周岁。

弹性退休:职工达到最低缴费年限,可以自愿选择弹性提前退休,提前时间最长不超过3年,且退休年龄不得低于女职工50周岁、55周岁及男职工60周岁的原法定退休年龄。职工达到法定退休年龄,所在单位与职工协商一致的,可以弹性延迟退休,延迟时间最长不超过3年。

注:可通过中国政府网、人力资源社会保障部网站和公众号、国家社保公共服务平台、电子社保卡等平台的法定退休年龄查询小程序,查询自己的法定退休年龄。

2、单位和本人按规定缴纳养老保险费;

3、缴费年限及视作缴费年限累计符合最低缴费年限要求。

(2029年12月31日前,职工按月领取基本养老金最低缴费年限扔为15年,2030年1月1日起,最低缴费年限每年提高六个月,由15年逐步提高至20年。)

注:缴费年限包括1992年底以前参加工作的连续工龄和1993年1月以后的实际缴费年限。连续工龄是指职工参加工作,在一个单位或若干单位工作,按规定前后可以连续或合并计算的工作时间。

4、符合国家关于养老待遇领取地确定为本市条件的。

小编为大家简单归纳一下沪籍或非沪籍想要在上海退休

需要满足:

✅达到法定退休年龄

✅按规定缴费并达到最低缴费年限

✅养老待遇领取地在上海的

很多人不清楚怎么确定养老待遇领取地,来看详细解答继续了解如何确定。

02

如何确定养老保险待遇领取地?

跨省流动就业的参保人员达到待遇领取条件时,应当在待遇领取地办理养老金申领手续。

确定基本养老保险待遇领取地遵循以下4个规定:

1、基本养老保险关系在户籍所在地的,由户籍所在地负责办理待遇领取手续,享受基本养老保险待遇;

2、基本养老保险关系不在户籍所在地,而在其基本养老保险关系所在地累计缴费年限满10年的,在该地办理待遇领取手续,享受当地基本养老保险待遇;

3、基本养老保险关系不在户籍所在地,且在其基本养老保险关系所在地累计缴费年限不满10年的,将其基本养老保险关系转回上一个缴费年限满10年的原参保地办理待遇领取手续,享受基本养老保险待遇;

4、基本养老保险关系不在户籍所在地,且在每个参保地的累计缴费年限均不满10年的,将其基本养老保险关系及相应资金归集到户籍所在地,由户籍所在地按规定办理待遇领取手续,享受基本养老保险待遇。

案例分析

✅1、陈先生户籍地在安徽,他一直在上海打拼并缴纳社保,在上海建立了基本账户。到达退休年龄时,陈先生在上海累计缴费年限为20年,他在哪里领取养老金?

答:根据上述第2条规定,陈先生在上海缴费满10年,他在上海享受基本养老保险待遇。

✅2、吴女士户籍地在江苏,她曾在安徽工作7年、上海工作8年、广东工作6年,并且都建立了基本账户,工作期间在当地参保缴费。退休时,她在哪里领取养老金呢?

答:根据上述第4条规定,吴女士在各参保地缴费都没满10年,所以她在户籍所在地江苏享受基本养老保险待遇。

03

退休年龄怎么查?

线上查询服务渠道

(1)人力资源社会保障部网站;

(2)国家社会保险公共服务平台;

(3)全国人社政务服务平台;

(4)电子社保卡;

(5)掌上12333App。

线下方式

参保人员还可以通过拨打12333咨询服务热线、前往社会保险经办机构服务窗口等线下方式,查询本人法定退休年龄。04

退休年龄具体怎么确定?

✅退休年龄规定如下:

根据《全国人民代表大会常务委员会关于实施渐进式延迟法定退休年龄的决定》,同步启动延迟男、女职工的法定退休年龄。用十五年时间:

✅逐步将男职工的法定退休年龄从原六十周岁延迟至六十三周岁;

✅将女职工的法定退休年龄从原五十周岁、五十五周岁分别延迟至五十五周岁、五十八周岁。

01男职工延迟法定退休年龄对照表

点击放大查看

02

女职工延迟法定退休年龄为55周岁对照表

03女职工延迟法定退休年龄为50周岁对照表

05

关于养老金的相关问答

社保每缴满5年,养老金就进一档?

不是。

按现行的养老金计发办法,企业职工养老保险待遇水平由个人缴费年限(含视同缴费年限)、退休时本市上年度全口径城镇单位就业人员月平均工资、缴费基数、个人账户累计本息储存额、养老金计发月数等要素综合计算所得,没有固定的档次之分

来源:上海人社局官网

原文:https://rsj.sh.gov.cn/tmsztc_17502/20250402/t0035_1431656.html

之前在单位参保,现为灵活就业,养老保险怎么算?

根据相关规定,参保人员流动就业,养老保险权益累计计算。也就是说,参保人原来有单位,后来以灵活就业人员身份参保,前后的缴费年限、个人账户储存额累计计算,不管您在哪里干,养老保险接着算。

灵活就业与企业职工退休后的养老金计算方法有区别吗?

灵活就业人员以个人身份自愿参保,缴费由个人承担,企业职工参保缴费,由个人和企业共同承担。

虽然缴费比例、缴费基数确定办法与单位职工不同,但是灵活就业人员和单位职工参加的都是职工基本养老保险,因此退休时养老待遇计发办法是一样的,没有区别

月养老金=基础养老金+个人账户养老金

基础养老金= (当地上年度在岗职工月平均工资+本人指数化月平均缴费工资) /2X缴费年限 x1%

个人账户养老金=个人账户累计储存额/计发月数

根据目前的养老金计发办法,养老金标准按照“多缴多得、长缴多得、晚领多得”原则,根据累计缴费年限、缴费水平、退休年龄、退休时上年度全省(市)城镇单位就业人员月平均工资等参数综合确定。

06

如何办理养老保险关系跨省转移接续?

参保人员可以登录“国家社会保险公共服务平台”、“掌上12333”APP等平台,申请办理企业职工养老保险关系转移。详细的操作指南如下:

国家社会保险公共服务平台

第一步:登录“国家社会保险公共服务平台”(网址:http://si.12333.gov.cn),在网站首页选择“养老保险”栏目下的“企业职工养老保险关系转移申请”。

第二步:在左侧功能栏中,选择“企业职工养老保险关系转移申请”,进入办理页面。

第三步:录入申请人的基本信息和转移信息等,然后点击“申请”,转移接续的申请就完成啦。

⚠️小贴士

对于新就业所在地和原参保所在地的正确选择很重要,直接影响后续转移接续的经办是否成功,务必准确填写相关信息哦。

“掌上12333”APP

第一步:打开“掌上12333”APP,登录后点击下方的“服务”, 找到“社保转移申请”功能并点击进入。

第二步:录入个人基本信息和转移信息等,最后提交申请。

声明:本文由入驻焦点开放平台的作者撰写,除焦点官方账号外,观点仅代表作者本人,不代表焦点立场。