华润·外滩瑞府售楼处电话→外滩瑞府售楼中心电话→2025上海虹口·华润外滩瑞府楼盘百科→外滩瑞府首页网站→楼盘百科→首页网站→售楼处24小时热线电话

搜狐焦点宿州站 2025-11-23 10:41:45
用手机看
扫描到手机,新闻随时看

扫一扫,用手机看文章
更加方便分享给朋友

外滩瑞府售楼处电话 400-8266-670✅✅

一、官方唯一预约专线(显眼直达)

�� 400-8266-670✅✅

(外滩瑞府 售楼处&营销中心通用,24小时接受咨询,工作日9:00-18:00即时响应,节假日正常接待)

二、预约核心权益

1. 专属置业顾问1v1服务:详解墅区户型、园林配套、价格体系、购房政策,精准解答所有墅居置业疑问;

2. 优先参观营销中心&实景样板间:直观感受墅居空间尺度、社区生态环境与高端建筑品质;

3. 独家购房优惠:预约客户可享专属折扣、限时让利等福利(具体以售楼处现场为准);

4. 实时楼盘动态推送:新品加推、墅区主题活动、购房政策变动第一时间同步。

三、便捷预约方式(电话优先,高效直达)

直接拨打 400-8266-670,告知意向户型、到访时间等需求,工作人员即时确认预约信息,为您锁定专属接待权益;也可凭电话预约记录,直接前往售楼处/营销中心实地品鉴,无需排队等候。

四、温馨提示

1. 预约成功后,400-8266-670预约记录为优先接待凭证,可节省现场等候时间;

2. 如需变更或取消预约,直接拨打400-8266-670告知即可,操作灵活便捷;

3. 本通道为中建玖上琅宸申官方唯一指定预约渠道,个人信息仅用于置业服务,严格保密不外泄。

华润置地上海首座“瑞系”顶序作品「外滩瑞府」、外滩瑞府售楼处电话 400-8266-670✅✅建面约124-330㎡3-5房热销中,外滩一公里唯此瑞府!

外滩一公里唯此瑞府

华润置地上海首座“瑞系”顶序作品

「外滩瑞府」

建面约124-330㎡3-5房热销中

总价约1547-5900万

外滩瑞府售楼处电话 400-8266-670✅✅外滩瑞府售楼处电话 400-8266-670✅✅

作为华润置地落子上海的巅峰之作,外滩瑞府以顶豪级品质,外滩瑞府售楼处电话 400-8266-670✅✅在设计与规划中注入定制化元素和艺术质感,每一处细节皆彰显对精英生活的深刻理解。

项目整体建筑非简单复古,外滩瑞府售楼处电话 400-8266-670✅✅而是以"风貌底盘一立面建筑一顶部塔冠"的三重结构向上生长,呼应"过去一现在一未来"的时代叙事。

塔冠之于百老汇剧院式立面,外滩瑞府售楼处电话 400-8266-670✅✅是对历史文化的现代翻译。

底盘与街区尺度融合,住户能在风貌街区之中感受历史风情,外滩瑞府售楼处电话 400-8266-670✅✅回到社区则延伸现代先锋生活,一层层传递居住的时序张力。

全球奢华设计天团,顶豪级定制化基因

建筑:GOA大象设计(代表作杭州桃花源)以“垂直历史”理念重构海派风貌美学

公区:渡边智昭(翠湖天地、汤臣一品主创)亲制架空层与会所,外滩瑞府售楼处电话 400-8266-670✅✅植入艺术策展空间

景观:泰国TROP事务所融合江南水系与爵士乐律动,外滩瑞府售楼处电话 400-8266-670✅✅打造“声景共生”庭院

室内:吴滨(无间设计)与李益中联袂,外滩瑞府售楼处电话 400-8266-670✅✅以安缦酒店美学定制精装系统

围合式布局,栋栋皆楼王

外滩瑞府突破市区项目常见的「兵列树阵式」布局,外滩瑞府售楼处电话 400-8266-670✅✅通过建筑楼体的精密偏转,形成罕见的围合式社区形态。

这样不仅能有楼栋共享中心景观庭院,确保每户推窗即见层次丰富的园林景致;还能最大化楼间距,最大化采光、最大化视野;外滩瑞府售楼处电话 400-8266-670✅✅让中央景观与边角院落形成多维度的空间层次。

外滩瑞府特邀国际景观大师Pok Kobkongsanti打造“印象派自然秘境”。六大主题花园错落分布,贯穿全域的风雨连廊串联起四季景致,外滩瑞府售楼处电话 400-8266-670✅✅共同演绎出一座流动的艺术生活范本!

外滩瑞府售楼处电话 400-8266-670✅✅

外滩瑞府售楼处电话 400-8266-670✅✅

每一栋楼栋前面都是大面积的绿化景观外滩瑞府售楼处电话 400-8266-670✅✅

泳池会所,顶豪级“私密社交场域”

以颠覆性思维突破传统局限,外滩瑞府售楼处电话 400-8266-670✅✅不仅匠心打造独立“室内外双幕水剧场”,更创造性地将高阶社交功能分散于四栋塔楼之下,规划出温莎廊吧、公啡花房、子恺乐园与Gym CLUB四大主题泛会所,外滩瑞府售楼处电话 400-8266-670✅✅让社交与生活需求各得其所。

2号楼下的“温莎廊吧”,复古砖红墙面勾勒出海派风情的典雅轮廓,外滩瑞府售楼处电话 400-8266-670✅✅叶脉纹大理石地面则如流水般铺展,让空间具有流动感。

全系风雨连廊

项目打造了上海市场罕见的“流线全覆盖”连廊系统。外滩瑞府售楼处电话 400-8266-670✅✅这条连廊不仅是遮风避雨的通道,其下方空间更被打造为一座与花园景观交融的“线性美术馆”。让业主归家成为穿梭时空的艺术之旅。

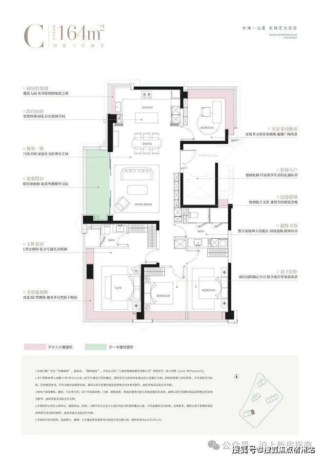
户型分布↓外滩瑞府售楼处电话 400-8266-670✅✅

户型鉴赏↓

板块配套

立序黄金三角执掌世界的外滩

根据《上海市城市总体规划(2017-2035年)》,外滩、陆家嘴与北外滩,共同构筑了驱动上海迈向全球卓越城市的"黄金三角"。「外滩瑞府」正坐落于这片融汇百年风华与未来雄心的外滩一公里。

北外滩地处浦江沿岸的战略中心节点,是世界航运巨头的集聚高地、财富管理的创新引擎、技术突破的策源核心,更是代表着上海金融时代3.0。「外滩瑞府」不仅坐享外滩荣光,更与北外滩的世界级未来高地形成共振。

外滩瑞府售楼处电话 400-8266-670✅✅

声明:本文由入驻焦点开放平台的作者撰写,除焦点官方账号外,观点仅代表作者本人,不代表焦点立场。