龙盛湾上 (售楼处) 官方网站 - 龙盛湾上销售中心 - 环境 - 户型 - 价格 - 地址 - 楼盘详情 - 配套 - 电话 - 交房时间 - 配套 - 电话 - 交房时间
扫描到手机,新闻随时看
扫一扫,用手机看文章
更加方便分享给朋友
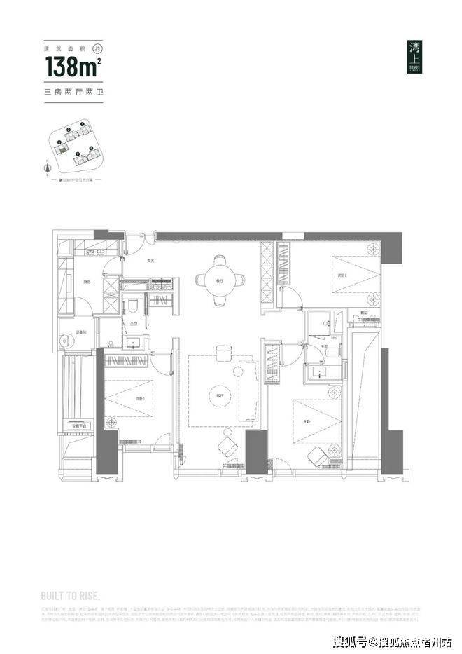
建面约138㎡3房2厅2卫✅✅龙盛湾上售楼处电话:400 - 882 - 4258✅✅
138㎡户型方正,在视觉上显得宽敞大气,功能分区合理,空间利用率高,三开间朝南,确保了室内充足的自然采光。主卧套房设计,全屋配置了充足的收纳空间,并通过设计做到了三个房间与两个卫生间的全明,✅✅龙盛湾上售楼处电话:400 - 882 - 4258✅✅为居住者提供了更为舒适的生活体验。
✅✅龙盛湾上售楼处电话:400 - 882 - 4258✅✅

(项目实景图)
建面约194㎡3房2厅3卫✅✅龙盛湾上售楼处电话:400 - 882 - 4258✅✅
边套户型横厅设计,客厅约5.3米的面宽保证了空间的尺度感,客厅及南侧卧室的大面积落地窗,加上北面大面积飘窗,约270度的采光+视野,保证了室内充足的自然光线。两南一北的卧室布局,尽可能把南向尺度给到卧室,✅✅龙盛湾上售楼处电话:400 - 882 - 4258✅✅提高居住的舒适性。宽敞的步入式衣帽间,主卫双台盆和宽敞的淋浴区,每一个清晨都是感官的享受,每一个夜晚都是身心的彻底放松。
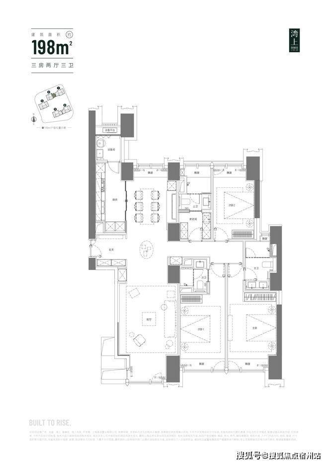
建面约198㎡3房2厅3卫
三开间朝南,标准动静分离户型,进门十字中轴,✅✅龙盛湾上售楼处电话:400 - 882 - 4258✅✅南北通透,客餐厅有足够长的纵深,极大提高了生活舒适感。主卧和次卧双套房设计,室内5飘窗1阳台,更增加了198户型的空间延展度。未来还可以根据家庭结构的变化,自行改造室内空间布局。
建面约210㎡3房2厅3卫✅✅龙盛湾上售楼处电话:400 - 882 - 4258✅✅
✅✅龙盛湾上售楼处电话:400 - 882 - 4258✅✅
建面约248㎡4房2厅3卫
建面约248㎡4房2厅3卫更是别出心裁!是今年上海豪宅市场首次出现的定制户型,龙盛为业主定制了2+1+1房,3+1房,✅✅龙盛湾上售楼处电话:400 - 882 - 4258✅✅及纯4房三种自由交付选择,满足了现代家庭多元化的居住需求。
该户型将西厨、岛台、餐厅、客厅进行一体化打造,能够大大增强家庭成员之间的互动;西面大面积落地窗搭配北面大面积飘窗,✅✅龙盛湾上售楼处电话:400 - 882 - 4258✅✅实现270度的宽阔城市视野。
龙盛湾上一期于今年5月开盘,首开房源216套,✅✅龙盛湾上售楼处电话:400 - 882 - 4258✅✅产品建面约149-210公寓,均价约13.3万/㎡。开盘当日劲销48.6亿,共售出205套,去化率约95%。
✅✅龙盛湾上售楼处电话:400 - 882 - 4258✅✅
✅✅龙盛湾上售楼处电话:400 - 882 - 4258✅✅
内环内新房均价破17w
✅✅龙盛湾上售楼处电话:400 - 882 - 4258✅✅今年内环重磅事件:新房均价突破17w+大关,并且销售情况都十分震撼!中海顺昌玖里17.2w的均价,200亿货值当天售罄!同样内环内的「龙盛·湾上」一期才13.3w/㎡,✅✅龙盛湾上售楼处电话:400 - 882 - 4258✅✅价格优势突出!(数据来源于网上房地产,仅供参考)
数据来源于网上房地产,仅供参考
苏河湾板块价格洼地!
「龙盛·湾上」所在的苏河湾板块,次新房挂牌均价势头依旧迅猛,普通次新房的链家挂牌均价在15w/㎡左右,而品质次新豪宅已经达到18.8w/㎡以上,而「龙盛·湾上」一期均价仅约13.3w/㎡,✅✅龙盛湾上售楼处电话:400 - 882 - 4258✅✅与其品质相当的次新豪宅相比存在约66%的倒挂率。(数据来源于链家网,截止于5月17日,仅供参考)
「龙盛·湾上」身处苏河湾板块内,自带不凡商业底盘+刷新静安城市天际线的地标级办公楼,可以预见的是,✅✅龙盛湾上售楼处电话:400 - 882 - 4258✅✅未来这里的生活方式必将是高效、精致又别具一格~
约55w方地标综合体:博懋广场✅✅龙盛湾上售楼处电话:400 - 882 - 4258✅✅
项目自身处于约55.2万方博懋广场城市地标综合体内,其中包含一栋约320米超高层塔楼,一栋约150米副塔楼及裙房商业建筑,石库门商业街区,✅✅龙盛湾上售楼处电话:400 - 882 - 4258✅✅三栋约150米超高层住宅及低密风貌别墅,集合了高端办公、奢华酒店、摩登商业、精品住宅等多元业态。
其中,超高层主塔楼约320米,未来建成后将成为静安第一高楼新地标,✅✅龙盛湾上售楼处电话:400 - 882 - 4258✅✅也为浦西地区带来一个全新的标志性建筑。
主塔顶端引入国际奢华酒店品牌瑰丽,✅✅龙盛湾上售楼处电话:400 - 882 - 4258✅✅也是上海首家瑰丽酒店(拟引入)。
对于这种国际顶尖酒店品牌选址于此,✅✅龙盛湾上售楼处电话:400 - 882 - 4258✅✅一方面得益于苏河湾“一江一河”的独特地理位置,另一方面不得不提到项目的开发商:龙盛。
✅✅龙盛湾上售楼处电话:400 - 882 - 4258✅✅
做为深耕苏河湾的豪宅专家,✅✅龙盛湾上售楼处电话:400 - 882 - 4258✅✅龙盛不仅打造了福新里等高端改善标杆住区,还是一个专注苏河湾的城市运营商。
不同于别的开发商,龙盛所秉承的城市运营,✅✅龙盛湾上售楼处电话:400 - 882 - 4258✅✅是通过好的空间吸引好的内容打造好的邻里,形成一个良性循环,带来区域价值的体现。
目前板块内我们熟知的法拉利亚太定制中心、法拉利意特展厅、Liaigre、苏富比空间、Poltrona Frau等国际顶尖资源,✅✅龙盛湾上售楼处电话:400 - 882 - 4258✅✅背后的推手都是龙盛。

凭借龙盛在苏河湾多年深耕的运营实力与对创新资源的卓越整合能力,✅✅龙盛湾上售楼处电话:400 - 882 - 4258✅✅我们有理由相信,龙盛亦将在博懋广场地标综合体项目中会有更加亮眼的表现。
✅✅龙盛湾上售楼处电话:400 - 882 - 4258✅✅
“一江一河”世界级滨水中央活动区
✅✅龙盛湾上售楼处电话:400 - 882 - 4258✅✅根据“上海2035规划”,苏河湾板块划入中央活动区,未来将与陆家嘴、外滩等共同承载上海参与全球竞争的核心功能。
在上海“一江一河”十四五规划中,苏河湾是“十四五”期间上海重点建设的板块。2023年市政府工作报告提出:着力优化城市空间格局,✅✅龙盛湾上售楼处电话:400 - 882 - 4258✅✅打造城市发展新的增长极。
加强中央活动区功能复合,推动苏河湾等区域打造世界级滨水区。“十四五”期间,苏河湾功能区将通过推动总部经济中心建设、焕活历史文化底蕴魅力等举措,努力打造成为世界级滨水中央活动区、✅✅龙盛湾上售楼处电话:400 - 882 - 4258✅✅世界级“城市会客厅”。
✅✅龙盛湾上售楼处电话:400 - 882 - 4258✅✅
正在进行大规模城市更新的苏河湾,✅✅龙盛湾上售楼处电话:400 - 882 - 4258✅✅必将成为上海未来的高端产业聚集地,也或将成为魔都“超高层建筑最密集的区域”。
未来将建成约10栋“超高天际建筑”,其中至少有2栋建筑高达300米以上,其中一栋规划建筑高度更是达到320米,✅✅龙盛湾上售楼处电话:400 - 882 - 4258✅✅与目前“浦西第一高楼”白玉兰广场一样高,就是龙盛湾上地块内主塔博懋广场!
苏河湾,坐落于苏州河北岸,根据苏州河的流向,✅✅龙盛湾上售楼处电话:400 - 882 - 4258✅✅亦即苏州河之左岸。而在规划中,苏河湾被定位为“上海文化左岸”。
“左岸”一词,源自巴黎塞纳河左岸,如今已成为城市公共活力的象征,✅✅龙盛湾上售楼处电话:400 - 882 - 4258✅✅苏河湾作为上海的新“左岸”,承载着相似的城市文化使命。
如果说,塞纳河左岸犹如巴黎艺术生命的脉搏;✅✅龙盛湾上售楼处电话:400 - 882 - 4258✅✅那苏州河左岸则浓缩着上海文化的精华。
✅✅龙盛湾上售楼处电话:400 - 882 - 4258✅✅
内环内高密度生活配套资源✅✅龙盛湾上售楼处电话:400 - 882 - 4258✅✅
✅✅龙盛湾上售楼处电话:400 - 882 - 4258✅✅项目坐拥苏河湾,板块内的苏河湾中心万象天地、静安大悦城商业早已成为地区商业中心,步行可至,周边直线距离3km范围覆盖市中心各大顶层地标商圈、文化设施、生活配套资源相当丰富。(百度地图测距)
✅✅龙盛湾上售楼处电话:400 - 882 - 4258✅✅
项目直线距离人民广场仅约1.5公里,外滩、南京东路和南京西路都在2公里范围之内!(百度地图测距)上海大部分核心的城市地标、商业配套和文化资源几乎都步行可至,✅✅龙盛湾上售楼处电话:400 - 882 - 4258✅✅宛如自家的配套!
项目周边南北高架、西藏北路,北横通道环伺,上下班、聚会、旅行处处快人一步。
轨交方面,项目约1公里范围内可选择3/4/8/10/12号线五条轨道交通,✅✅龙盛湾上售楼处电话:400 - 882 - 4258✅✅轻松通达各个城市节点。(百度地图测距)
项目与苏州河直线距离仅约750米,✅✅龙盛湾上售楼处电话:400 - 882 - 4258✅✅距离黄浦江也不到2公里,非常适宜Citywalk或者晨跑。
值得一提的是,在《上海市静安区单元规划》中明确,未来湾上西北侧的上海火车站的铁轨道,规划为约17.5万方城市绿地,✅✅龙盛湾上售楼处电话:400 - 882 - 4258✅✅土地属性调整为市区级文化设施,为未来业主提供一个散步的好去处。
示意图,图源《上海市静安区单元规划》
苏河湾作为上海工商业的发源地,项目周边的历史底蕴也非常丰富,✅✅龙盛湾上售楼处电话:400 - 882 - 4258✅✅坐拥四行仓库、慎余里、天后宫、上海总商会旧址等约50万方保留保护建筑、17个风貌保护街坊,体量超越了新天地与田子坊的总和!
除了历史底蕴之外,✅✅龙盛湾上售楼处电话:400 - 882 - 4258✅✅项目周边还环绕着上海博物馆、上海大剧院等文化资源,以及尤伦斯当代艺术中心、上海苏富比空间、外滩艺术馆、外滩美术馆、上海展览中心等艺术空间,艺术文化氛围也是相当浓厚。
✅✅龙盛湾上售楼处电话:400 - 882 - 4258✅✅
无论是摩登的商业、自然的风光、历史的厚重,✅✅龙盛湾上售楼处电话:400 - 882 - 4258✅✅还是文化的瑰丽,都在这里得到了完美的融合。
✅✅龙盛湾上售楼处电话:400 - 882 - 4258✅✅
稳楼市三个字,这一次是和城市更新放在一起。
原话是这么说的——
要深入实施城市更新行动,把城市更新和消除隐患、稳楼市等工作结合起来,扎实推进好房子建设和房地产高质量发展。
城市更新、消除隐患、稳楼市是核心工作,目标是推进好房子建设和房地产高质量发展。
在中央经济工作会议召开前,重提稳楼市,这本身就释放了一个重要信号。
意味着稳楼市依然是当下关于房地产的核心工作模块和态度主张。
围绕着这个核心工作和态度主张,具体会发生什么?这个可以去看看过去出现稳楼市字眼时的政策变化和倾向。
稳楼市,最早出现在去年12月9日的中央政治局会议里,要求“稳住楼市股市”,去年12月份,为了稳楼市,12月份相继出台了契税优惠的减免和扩围,增值税减免政策、房票安置、购房补贴等多项政策。
在今年的3月份,稳楼市和股市被写入了政府工作报告,今年3月份全国楼市迎来了不错的小阳春。楼市的政策框架始终按照去年9.24松绑以来的节奏进行落地。多地随后出台了稳楼市的政策。
而现在,时隔8个月之后,再次提出稳楼市,还是在政策频出的12月份,这就不禁让人心怀期待。
2
不少人已经在期待下一轮荡气回肠的救市了,希望能来上炸弹级的大招让房价迅速止跌回升。外面小作文已经传的满天飞,但是越是这个时候越要保证清晰和冷静。
重提楼市,并不一定意味着非得有惊天地泣鬼神的大招,也不意味着哐哐哐的几板斧往下砸,而是相当于稳楼市变成了关于房地产长期坚持的系统性的工作之一。
要注意这次稳楼市的语境,是和城市更新、消除隐患出现在一起,是为了房地产的高质量发展。
所以,它对稳的含义强调,并不只是价格上的止跌回稳,还包含了一层安全的含义。
这个安全,得分为两层看。
一个是房地产行业的安全性发展。
结合最近一段时间关于龙头房企发生的一系列事情,这些都是为了房地产安全做的出清和排雷。房地产的出清已经持续好几年,今年的出清是把最后的淤血和脓给挤出来。挤出来之后,这个行业才能够健康的发展。
另一个是居住安全性。
再次强调稳楼市,消除隐患,是重申居住安全的意识,和刚刚发生过的香港大火有关。香港大火实在让人痛心,痛心之外,更需要警醒,因为内地不少房子也逐渐进入到老龄化阶段。
根据相关数据,截止到2024年,内地房龄超过30年的建筑占比高达35%,涉及到城乡住房总建筑面积高达230亿m²。
这不是一个小数目。
所以这一次的稳楼市必定要和城市更新绑定在一起,和好房子、房地产新模式发展结合起来。
这并不是说房价不需要稳了。相反,稳房价依然是非常重要的一个课题。
根据国家统计局的数据,能够看出来今年房地产趋势的变化。
今年1-10月份,全国房地产开发投资73563亿元,同比下降了14.7%,其中住宅投资下降了13.8%。新建商品房销售面积同比下降6.8%,销售额下降9.6%。
销售额比销售面积下降幅度更深,意味着价格还在下降通道。
刚刚过去的11月份,按照中指公布的百城房价指数,全国100个城市新建住宅平均价格为17036元/m²,环比上涨0.37%,同比上涨2.68%。与此同时,全国100个城市二手房平均价格为13143元/m²,环比下跌0.94%,同比下跌了7.95%。
房价仍然处在下降的通道,并且速度并没有减弱。这样的一个现实告诉我们,稳楼市中,稳房价依然是需要的,并且还是个比较重要且艰巨的任务。
3
稳楼市中,既然稳房价仍然是现实的需要,那接下来无非是怎么稳的问题了。
现在都是2025年的12月,绑在房地产身上的各项限制性政策已经能去的都去了。从2022年以来,房贷利率的下调都来了好几轮。再往下稳房价,还有哪些措施可以使用呢?
关于这个问题,11月份发生的一件事可以作为一个重要的信号。
房地产的收储有了重大的突破。
这个突破口发生在广州。就在11月18日,广州开启了第二轮房地产收储。相较于以往的收储,这一次广州的收储做了3个大的变革。
收储的条件放宽了。从“已取得竣工联合验收意见书”变成了“已取得竣工联合验收意见书或项目纳入保交楼攻坚战且主体已经封顶、剩余工程量不大的在建未售商品房”,这意味着未建成的期房也可以纳入收储的范围。
“房屋建筑面积在90平以下”变成了“房屋建筑面积原则上在90平以下”,多了两个字,就多了收储房源的空间。
本次集中报名征集结束后,接受持续常态化报名征集。说明收储工作逐渐的进入到常态化的房地产系统中。
广州的收储,宣告了收储进入到了第二个阶段,成为了常态化的房地产工作。收储是减少房子的库存,进而影响到房子的供给和需求。
房子的库存量近一年以来持续在减少,根据国家统计局的数据,截止到10月末,待售商品房库存面积75606万方,比9月末减少了322万方,其中住宅库存面积减少了292万方。
这是一场渐进式的去库存。虽然房地产仍未触底,但是一些还算积极的因素也在一点点积攒和发酵。
还有一个重要的变化,来自于房价和利率的调整。房价的调整,提升了各个城市的租售比,而房贷利率近几年以来的下调,又让买房被月供的压力在向租房交租金的压力靠近。
不要小看这个变化。当租金和月供逐渐接近甚至相等时,房价的触底就指日可待了。
现成的例子就是香港的楼市。
香港的楼市今年3月以来持续回暖,多项关键指标已经连续7个月改善。截止到11月,香港私宅售价指数比年初上涨1.14%,创了近年以来的高峰。
香港楼市之所以回暖,原因比较多,但是里面有个很关键的原因是香港的租金回报率持平甚至超过了房贷利率,实现了供房和租房持平,甚至比租房压力更轻松的状况。
而内地不少城市随着房价调整,月供和租金也正在接近,甚至有些房子已经做到了还月供比交租金更轻松。
以此来看,未来一年,房价的触底不远了。
✅✅龙盛湾上售楼处电话:400 - 882 - 4258✅✅
声明:本文由入驻焦点开放平台的作者撰写,除焦点官方账号外,观点仅代表作者本人,不代表焦点立场。
