越秀外滩樾 (售楼处) 官方网站 - 越秀外滩樾销售中心 - 环境 - 户型 - 价格 - 地址 - 楼盘详情 - 配套 - 电话 - 交房时间 - 配套 - 电话 - 交房时间
扫描到手机,新闻随时看
扫一扫,用手机看文章
更加方便分享给朋友
越秀外滩樾 售楼处电话:400-8266-670✅✅
越秀外滩樾 营销中心:400-8266-670✅✅
越秀外滩樾 ,央企实力打造品质好房,城芯核芯地段,交通便捷畅达全城,周边商超、学校、医疗、公园等配套一应俱全,满足日常衣食住行全需求。匠心打造舒适户型,空间利用率高,动静分区合理,采光观景俱佳;社区物业服务贴心周到,安防系统完善,为业主保驾护航,安家更放心,置业优选越秀外滩樾 ,好房不等人,诚邀莅临品鉴!
便捷预约流程,轻松看房选好房
1. 电话直通:拨打上海售楼处电话400-8266-670✅✅,一键预约看房,全程无任何隐形消费;
2. 专人对接:信息登记后,专属顾问快速联系,精准匹配需求,发送详细楼盘资料;
3. 灵活约时:根据您的作息敲定看房时间,专属时段专属服务,避免拥挤;
4. 实景品鉴:到场即可参观沙盘、样板间,顾问细致讲解房源亮点、配套详情,客观答疑;
5. 贴心跟进:看房后专属顾问实时同步房源动态、购房优惠,有任何疑问随时响应,置业无忧。
预约小提示
1. 到访请携带身份证件,方便登记入园;
2. 每日预约名额有限,先约先得,避免跑空;
3. 售楼处地址可咨询顾问,全程指引,轻松抵达。
百年匠造+科技豪宅,总价约4500万起!「越秀外滩樾」正在热销中!推出建面约238-338㎡叠墅!
越秀外滩樾 售楼处电话:400-8266-670✅✅
越秀外滩樾 营销中心:400-8266-670✅✅
最新消息,百年匠造+科技豪宅,总价约4500万起!「越秀外滩樾」正在热销中!推出建面约238-338㎡叠墅!
⛩项目名称:「越秀外滩樾」
👑项目简介:虹口北外滩低密风貌住宅
🗣最新动态:正在热销中
📍区域板块:虹口北外滩
🏠产品介绍:推出主力建面约238-338㎡叠墅 总价约4500万起
🛍️商业配套:1km左右就有集购物、餐饮、娱乐休闲、办公及服务式公寓为一体的综合商业体——瑞虹天地
🏫学校配套:2km内就有虹口区第二中心小学、华东师大一附中实验小学、华东师大一附初中等
🚇交通配套:地铁4、10、19号线换乘站海伦路站约600米
🏥医疗配套:三公里内四所三甲医院(新华医院、复旦大学附属妇产医院、上海市第一人民医院、上海东方医院)
地块位于虹口区嘉兴路街道,区域居住氛围浓厚,配套成熟。
【立体交通|无界畅达世界擎动城市脉搏】
全城畅达:
约360米新建路隧道(直线距离),快速直达陆家嘴CBD;
约670米外滩隧道(直线距离),直达外滩金融商业街以及老码头;
约150米北横通道(直线距离)贯通全城,快速通达虹桥机场/虹桥火车站;
约2.4公里大连路隧道(直线距离),直达浦东东方路、世纪大道、八百伴商业圈
四轨交汇:
轨交4/10号线海伦路站约850m(直线距离),3站南京东路,6站新天地。
(*交通路网示意图,仅供参考。本区位图仅用于本小区地理方位示意,非实际地图,相关信息并非按比例缩放。)
【核心商圈|高阶商业配套国际摩登领潮】
商业配套方面项目约2公里内,多元繁华构筑封面商业圈
北外滩商圈直线距离约500米;
外滩商圈直线距离约1000米;
陆家嘴商圈直线距离约1500米;
瑞虹商圈直线距离约900米;
(*商圈距离示意图,仅供参考。本区位图仅用于本小区地理方位示意,非实际地图,相关信息并非按比例缩放。)
【高端医疗|优质三甲医院护航健康生活】
三公里内四所三甲医院,全生命周期护航
新华医院(儿科专长);
复旦大学附属妇产医院;
上海市第一人民医院;
上海东方医院(血管外科专长);
【学府荟萃|全龄教育培优一脉书香传承】
幼儿园:约1公里内6所幼儿园(直线距离),涵盖东余杭路幼儿园等3所示范级学校;
小学:约1.5公里内5所小学(直线距离),涵盖区重点四川北路第一小学;
中学:约1.6公里内6所中学(直线距离),1所市重点、2所区重点。一路之隔上海虹口二中心小学(在建中),约2.3公里市重点上海外国语大学附属外国语学校(直线距离)*施教区及就学政策以教育部门规划为准
2.5公里北外滩滨江绿地(约800m直达),四川北路公园、和平公园、鲁迅公园3大公园环伺,于滨江和城市低密绿芯之间,肇启当代诗意生活传序。
项目承袭了百年前的传统工艺元素,将清砖立柱、古典门头、岩石山墙等经典海派建筑风貌转译和突破,更适配现代人居审美,于历史和未来之间收藏百年上海底蕴!

保留历史肌理的老砖为基底,项目们以现代陶艺重译传统,研发陶砖。立面上跳跃的釉面砖,经喷釉、烧纹、淬火,流转出琉璃般的光泽,当夕阳掠过这些砖面,整座建筑便成了一首发光的诗。
越秀外滩樾的公区庭院非常精致,其精心打造充满禅意的山水庭院。
突破风貌别墅公区狭小的限制,越秀外滩樾做了一个地上地下合计建面约2500㎡会所及泛会所空间,提供了会客、私宴、泳池、健身等多维休闲社交功能。
更通过堆坡造景和下沉庭院,以山水隐奢之境,塑造沉浸式大师美学体验。
一石一木,一水一庭,尽是自然落笔。晨露未晞时,薄雾轻笼庭院;暮色四合处,斜阳漫染白墙。所谓大隐于市,不过如此!
目前市面上大多数风貌别墅受限于指标,普遍采用超高层+别墅的高低配组合。客户花了买别墅的钱,却享受不到应有的生活质感。反观越秀外滩樾,妥妥的容积率1.3纯墅区,纯粹的墅居氛围非常难得。
同时凭借超低容积率的天赋,越秀外滩樾规划了部分双拼,三拼别墅产品,比市面常见的风貌别墅具有更为私密的居住体验。
项目地上3层,自带庭院。一楼的庭院,将是你栽花听雨的江南;三楼的露台,将是你仰望星空的避风港,在越秀外滩樾,自然将不是风景,而是生活本身。
项目最高约6.15米的地下挑高空间,可作私人艺廊、品茗禅室,或是一场永不散场的沙龙。
另外,项目的弧形玻璃引天光入画,落地窗将四季裁成框景。一扇窗,一面墙,皆是与世界的温柔对话。此刻,上海不再是远方,而是你窗前的晨昏,院里的四季。
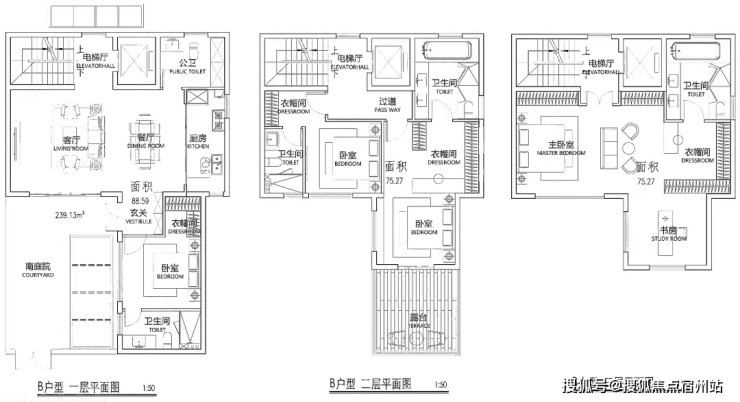
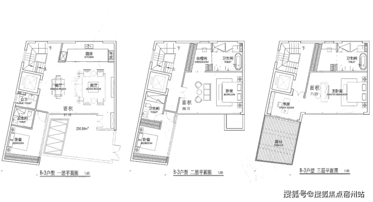
仅48套低密风貌别墅(双拼/三拼),地上3层、地下2层,层高3.2-3.9米、地下挑空6.15米,户户带30-80平私家庭院、观景露台。建面约238平、305平、318平、338平米,售价19.5万/平;






项目实景图

项目实景图
项目实景图
项目实景图
项目实景图
项目实景图
项目实景图
项目实景图
项目实景图
项目实景图
项目实景图

项目实景图
越秀外滩樾 售楼处电话:400-8266-670✅✅
越秀外滩樾 营销中心:400-8266-670✅✅
售楼处电话:400-8266-670
【售楼处预约热线】(一对一热情服务)
看房请务必致电与销售确认时间,仅预约客户可享受开发商内部优惠,专属新房预约奖!
售楼处电话:4008266670【售楼中心热线】营销中心热线400-826-6670售楼处地址400-8266-670,楼盘项目全面介绍,本电话为开发商提供线上预约售楼电话,楼盘项目全面介绍(包含楼盘简介,均价,房价,现房,期房,别墅,叠墅,大平层,价格,楼盘地址,户型图,交通规划,备案价,备案名,项目配套,样板间,开盘时间,认筹时间,楼盘详情,售楼处电话,最新消息,最新详情,周边配套,一房一价,最新进展等详情咨询)楼盘详情丨价格丨更多优惠丨机不可失丨欢迎致电丨诚邀品鉴!售楼处位置丨特价房丨工抵房丨剩余房源丨户型图丨最新消息丨免责声明:将文章内容综合来源于网络、只作分享,版权归原作者所有!!如有侵权, 请联系我们, 我们第一时间处理如有问题欢迎来电咨询,专业一对一热情服务,让您用专业眼
声明:本文由入驻焦点开放平台的作者撰写,除焦点官方账号外,观点仅代表作者本人,不代表焦点立场。
