静安里(售楼处电话) 官方 - 静安里销售中心 - 环境 - 户型 - 价格 - 地址 - 楼盘详情 - 配套 - 电话 - 交房时间 - 配套 - 电话 - 交房时间
扫描到手机,新闻随时看
扫一扫,用手机看文章
更加方便分享给朋友
上海静安里售楼处电话:400-833-6309(静安里官方售楼处电话)静安内环内苏河湾板块
上海【静安里】售楼处电话:400-833-6309(静安里官方售楼处电话)静安里官方电话:400-833-6309(静安里售楼处最新电话)静安里官方售楼处电话:400-833-6309✔(静安里官方售楼处预约看房热线)
上海静安里售楼处电话:400-833-6309(静安里官方售楼处电话)
上海静安里售楼处电话:400-833-6309(静安里官方售楼处电话)
上海静安里售楼处电话:400-833-6309(静安里官方售楼处电话)
注意事项:为保证接待质量,请出发前进行预约,避免案场没有销售接待;也可提前1-3天预约销售;
注意事项:为保证接待质量,请出发前进行预约,避免案场没有销售接待;也可提前1-3天预约销售;上海静安里售楼处电话:400-833-6309(静安里官方售楼处电话)
如有问题欢迎来电咨询,专业销售一对一热情服务,让您用专业眼光去买房。
【楼盘详情丨特价房源丨户型分析丨项目介绍丨在售房源丨样板间丨周边配套】
直接认购!
在售约262-370m²风貌别墅
纯别墅社区 !样板间已开放!
总价在4200万-1亿元左右
参观看房请提前线上预约!
上海静安里售楼处电话:400-833-6309(静安里官方售楼处电话)
去年,静安区发布了一则关于历史风貌保护项目实施主体遴选的公告,即静安04-05、05-01北站新城地块。

上海静安里售楼处电话:400-833-6309(静安里官方售楼处电话)
来源:静安区规划资源局
根据评分遴选相关事项,本次遴选报价以房地联动价21万元/㎡为基准。就在2023年7月21日,华发招商联合体官宣拿下静安天目社区04-05、05-01历史风貌保护项目:
仅从图上看,该地块直线距苏州河约1公里,直线距外滩约1.4公里,直线距北外滩约1.7公里,直线距3/4号线宝山路站约300米,直线距10号线四川北路站约560米,区位优势明显。上海静安里售楼处电话:400-833-6309(静安里官方售楼处电话)
区位示意图上海静安里售楼处电话:400-833-6309(静安里官方售楼处电话)
【产品规划】该地块地处北站新城,老上海人习惯称它为"老北站",区域历史底蕴悠久,地块内留有不少历史建筑,比如优秀历史建筑虞氏故居,还有泰山大剧院等建筑,都将予以保留修缮。
上海静安里售楼处电话:400-833-6309(静安里官方售楼处电话)
自2017年,北站新城启动征收,它是上海"留改拆"背景下启动的首个试点基地,由市、区联合土地储备。直到2023年6月,该项目开启了公开遴选的流程,已经历时近7年的时间。下面,我们具体来看看地块信息!
上海静安里售楼处电话:400-833-6309(静安里官方售楼处电话)
项目共由两幅地块组成,住宅并无中小套型限制,根据限高和容积率推测,该地块位于静安内环内,旁边就是待入市的弘安里。武进路正是虹口静安交界,静安里地块属于静安,弘安里属于虹口。上海静安里售楼处电话:400-833-6309(静安里官方售楼处电话)

地块实拍图上海静安里售楼处电话:400-833-6309(静安里官方售楼处电话)
地块四至范围:南至武进路,西至宝山路、河南北路,北至规划04-03、04-04地块。
上海静安里售楼处电话:400-833-6309(静安里官方售楼处电话)
上海静安里,位于百年历史街道武进路旁,以历史原真性融入现代手法规划222席低密风貌大宅,保留南市北里的格局,在成片的风貌之间,诠释出入之间迷人的摩登生活诗篇。
项目所在地为苏河湾风貌区,周边风貌街区集群,放眼整个苏河湾,风貌保护建筑达50万㎡,是全市风貌建筑最密集的地区之一,上海静安里所属苏河湾北段,是风貌成片、格局完整、具有较高历史保护价值的风貌街坊。
最新消息!静安内环内苏河湾板块,华发招商静安北站项目「静安里」222席建面185-200-262-301-370㎡风貌别墅;二批次加推约200-370m²风貌别墅!均价约21万/㎡ ,总价在4200万-1亿元左右;纯别墅社区 直接定!参观看房请提前线上预约!上海静安里售楼处电话:400-833-6309(静安里官方售楼处电话)
上海静安里售楼处电话:400-833-6309(静安里官方售楼处电话)
⬇️专业销售一对一咨询⬇️
耐心等待官方VIP客户经理回电
展厅实景图如下上海静安里售楼处电话:400-833-6309(静安里官方售楼处电话)
上海静安里售楼处电话:400-833-6309(静安里官方售楼处电话)
上海静安里售楼处电话:400-833-6309(静安里官方售楼处电话)
⬇️专业销售一对一咨询⬇️
耐心等待官方VIP客户经理回电
样板间实景
上海静安里售楼处电话:400-833-6309(静安里官方售楼处电话)
上海静安里售楼处电话:400-833-6309(静安里官方售楼处电话)
上海静安里售楼处电话:400-833-6309(静安里官方售楼处电话)
上海静安里售楼处电话:400-833-6309(静安里官方售楼处电话)
上海静安里售楼处电话:400-833-6309(静安里官方售楼处电话)
上海静安里售楼处电话:400-833-6309(静安里官方售楼处电话)
上海静安里售楼处电话:400-833-6309(静安里官方售楼处电话)
上海静安里售楼处电话:400-833-6309(静安里官方售楼处电话)
⬇️专业销售一对一咨询⬇️
耐心等待官方VIP客户经理回电
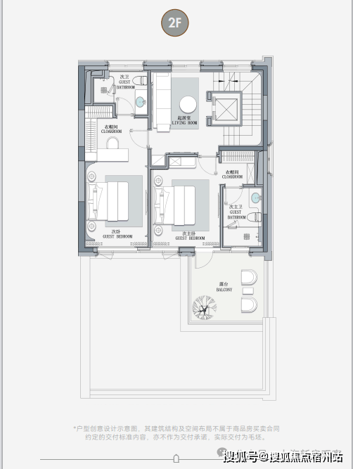
在售户型图如下:






上海静安里售楼处电话:400-833-6309(静安里官方售楼处电话)

上海静安里售楼处电话:400-833-6309(静安里官方售楼处电话)

上海静安里售楼处电话:400-833-6309(静安里官方售楼处电话)

上海静安里售楼处电话:400-833-6309(静安里官方售楼处电话)



上海静安里售楼处电话:400-833-6309(静安里官方售楼处电话)
上海静安里售楼处电话:400-833-6309(静安里官方售楼处电话)
『岁月里市,烟火新生』,苏河湾商业新名片:以苏河湾地区全新商业名片为规划定位,在海派优秀历史建筑集群之间,规划打造高端零售、高档餐饮、文化展览等格调商业,代言「上海历史文化生活新地标」。
上海静安里售楼处电话:400-833-6309(静安里官方售楼处电话)静安内环内苏河湾板块
上海【静安里】售楼处电话:400-833-6309(静安里官方售楼处电话)静安里官方电话:400-833-6309(静安里售楼处最新电话)静安里官方售楼处电话:400-833-6309✔(静安里官方售楼处预约看房热线)
⬇️专业销售一对一咨询⬇️
耐心等待官方VIP客户经理回电
静安里风貌别墅建面约185-380㎡不等,但在空间魔法下,可实现可使用面积成倍增加。向下拓展自由:约10米层高地下室分为两层,地下2层入户门庭直连停车场;地下1层约4.2-6米层高,可释放改造潜能,化身私人收藏馆、酒窖、茶室、家庭影院或健身体验舱。上海静安里售楼处电话:400-833-6309(静安里官方售楼处电话)
上海静安里售楼处电话:400-833-6309(静安里官方售楼处电话)
向外融入自然:庭院及露台,让居者实现栖居诗意。
另外,【静安里】在户型上也突破传统里弄“窄开间”桎梏,以大开间+高窗墙比提高空间感与通透性,赋予风貌建筑现代生命力。
总结来说,静安里以"向下约10米地下室、向外庭院露台"的立体空间策略,结合大开间现代户型,将风貌别墅的空间价值推向全新高度,在历史肌理中缔造当代塔尖生活范式。
『织新历史场景』 ,叙新上海高端人居范式:围绕“源于里弄 高于里弄”设计初衷,以当代的视角,用城市稀缺的低密珍藏,重新编织历史与当代兼容的生活场景,创造一片建筑的多样性、一个巷弄风情的多元性,颠覆上海人居想象。
上海静安里售楼处电话:400-833-6309(静安里官方售楼处电话)
里市新街:规划南北活力纵轴,保改、更新宝山路、东新民路、罗浮路、武进路街面,重塑里市繁华记忆。
上海静安里售楼处电话:400-833-6309(静安里官方售楼处电话)
繁花新境:社区入口打造隐奢门庭,内部尊重原有肌理,打造四纵三横主巷弄,创造三大中庭花园节点,融入上海及世界优秀花园样式,打造海派花园百科全书。
礼遇新所:打造地下面积约1300㎡生活方式合集空间,集萃一站式高阶生活服务礼遇。
上海静安里售楼处电话:400-833-6309(静安里官方售楼处电话)
上海静安里售楼处电话:400-833-6309(静安里官方售楼处电话)
海派新生:妥善留存更新原有不同风格建筑,通过保护修缮、保留改造、更新改建、织补新建四大更新手法,让各个时代建筑和谐共存。上海静安里售楼处电话:400-833-6309(静安里官方售楼处电话)
上海静安里售楼处电话:400-833-6309(静安里官方售楼处电话)上海静安里售楼处电话:400-833-6309(静安里官方售楼处电话)
上海静安里售楼处电话:400-833-6309(静安里官方售楼处电话)
低密新院:建面约200-369㎡城市典藏作品,沿袭历史建筑格局,提高窗墙比,降低围墙高度,拓展地下空间,打造历史风貌住宅里面少有的有社区大堂、会所、精装地库,进阶规格。
高定公区,重塑海派归家史诗;隐奢门庭:社区大门以古琦黑奢石手工锻造弧形幕墙,将珠宝镶嵌工艺融入建筑肌理;
巷弄仪式:以"七坊三十二弄"为脉络,八大石库门坊门串联七大组团,复刻百年归家礼序。

静安里实景图
世界花园巡礼:六大主题花园凝练凡尔赛宫轴线、英伦自然主义等精髓,让百年海派情怀在当代庭院中流转新生。
景观规划示意图上海静安里售楼处电话:400-833-6309(静安里官方售楼处电话)

英国花园效果示意图,仅供参考
一方会所空间的礼遇,跨越百年时间的上海名流生活方式的尊荣呈现。上海静安里匠造地下建面约1000 ㎡生活方式合集空间,提供星级高端服务接待休息区,还配备了健身房、瑜伽室、泳池等,集萃一站式高阶生活服务空间礼遇。
会所实景及效果图: 上海静安里售楼处电话:400-833-6309(静安里官方售楼处电话)
上海静安里售楼处电话:400-833-6309(静安里官方售楼处电话)
上海静安里售楼处电话:400-833-6309(静安里官方售楼处电话)
上海静安里售楼处电话:400-833-6309(静安里官方售楼处电话)
『双匠联袂』,2024上海人文风貌作品新序:百年招商旗下地产旗舰品牌招商蛇口联袂珠海综合型国有企业集团、“中国企业500强”华发集团旗下华发股份,以上海人文风貌作品新序,还原上海老北站盛景时代的文化生活,在区域标志性的历史氛围中,享受静谧生活。
『北外滩』上海“黄金三角”,约840万方全球影响力滨水会客厅:未来北外滩与外滩、陆家嘴将共同形成上海的核心“黄金三角”,组成上海内环内封面地标。对标伦敦金融城、纽约曼哈顿等世界金融中心,汇聚商务办公、公共文化、商业服务等功能。 上海静安里售楼处电话:400-833-6309(静安里官方售楼处电话)


开发体量约840万方具有全球影响力的世界滨水区
规划18栋超高层建筑群,其中包括480米的浦西第一高楼
已有金融企业约1500多家,集聚全球影响力企业总部 上海静安里售楼处电话:400-833-6309(静安里官方售楼处电话)
(信息来源于:网易新闻房产公众号https://mp.weixin.qq.com/s/YvhVftgL0bdi3K3a2oGepg)
上海静安里售楼处电话:400-833-6309(静安里官方售楼处电话)
『苏河湾北部高阶住区』,崭新城市更新单元:周边汇集超高层甲级写字楼、购物街区、石库门商业街与现代街区、石库门里弄联排、超高层大平层、文学博物馆、奢华酒店,以及其他各类保护建筑,在海派文化底蕴深处,生长城市新生的活力生活场。 上海静安里售楼处电话:400-833-6309(静安里官方售楼处电话)
上海静安里售楼处电话:400-833-6309(静安里官方售楼处电话)
交通配套:周边4号线、10号线双轨环绕。靠近北横通道和外滩隧道,交通便捷。
商业配套:周边有星荟中心、宝华城市广场等商业中心,另规划有四川北路18号街坊,作为虹口生活新地标,包含超甲级写字楼,上海首座约14,000㎡的文化博物馆。 上海静安里售楼处电话:400-833-6309(静安里官方售楼处电话)
上海静安里售楼处电话:400-833-6309(静安里官方售楼处电话)
教育资源:周边有静安区闸北第一中心小学、宝山路小学、市北中学、上海市民办新华初级中学等。
上海静安里售楼处电话:400-833-6309(静安里官方售楼处电话)
医疗资源:附近有瑞金医院、曙光医院、中西医结合岳阳医院、第一人民医院、上海市中医院、上海市儿童医院等。
上海静安里售楼处电话:400-833-6309(静安里官方售楼处电话)
静安内环内【静安里】在售建面约200-369m²风貌别墅上海静安里售楼处电话:400-833-6309(静安里官方售楼处电话)静安内环内苏河湾板块
上海【静安里】售楼处电话:400-833-6309(静安里官方售楼处电话)静安里官方电话:400-833-6309(静安里售楼处最新电话)静安里官方售楼处电话:400-833-6309✔(静安里官方售楼处预约看房热线)
声明:本文由入驻焦点开放平台的作者撰写,除焦点官方账号外,观点仅代表作者本人,不代表焦点立场。
