【项目优势】
1:奢华大平层,15米超宽开间,闹中取静。
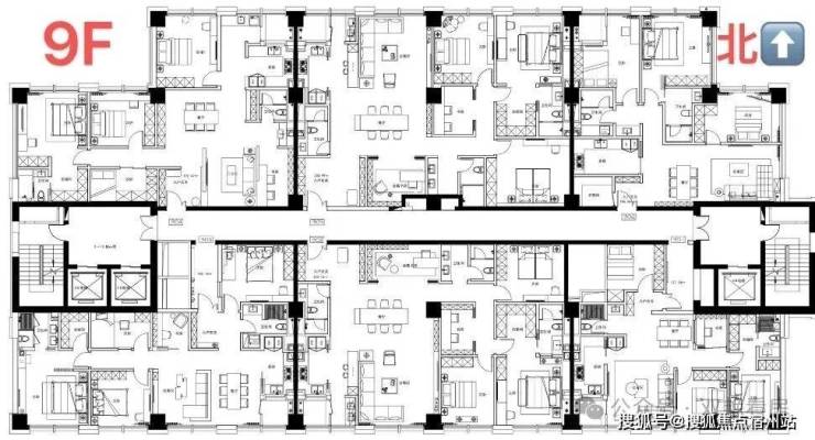
2:房型多样化,3房4房5房
3:精装修高端配置,部分搭配品牌软装
4:3梯4户,3梯6户
5:不限购,不限贷。50年产权
6:4轨环绕3号线,1号线,(20号线,19号线规划中),多条环线贯穿整个上海各个区域。
7:城中心中环旁,繁华地段,价值洼地,周边生活商业、教育、医疗等生活配套齐全;
【物业类型】:50年产权,2010 年竣工 2010 年竣工
【建筑总高】:19层
【可售楼层】:9F 17F 18F
【产品面积】:192㎡-233-198-282㎡
【总价】 :518 万--888 万
【交付标准】:精装修
【交付时间】:现房,款清交房
【水费】 :5元 【电费】:1元
【车位费】:600元月
【车位配比】:1:1
【交通】地铁:地铁3号线、1号线,20号19号线规划中
公交:875路、762路、874路,876路等……
中环线,南北高架1公里,逸仙路高架1.5公里,到达陆家嘴30分钟
机场:虹桥机场、浦东机场
【生活配套】
500米内东明生活广场,肯德基、星巴克、全家,正育生鲜中心菜场。
1.5公里:曲阳百联购物中心,盒马鲜生,上海协信星光广场……
【医疗配套】
上海市第四人民医院,上海中医药大学附属岳阳中西医结合医院、上海建工医院、上海长海医院虹口院区,上海曲阳医院等
【教育配套】
私立学校:上海外国语大学外国语学校,上海市民办丽英小学
虹口实验幼儿园分园、凉城第二小学、凉城第三小学、江湾初级中学、复兴高级中学等

海天豪园售楼处电话:400-8377-020






海天豪园售楼处电话:400-8377-020






海天豪园售楼处电话:400-8377-020






海天豪园售楼处电话:400-8377-020