中粮北外滩壹号售楼处24小时电话-楼盘详情-小区环境-容积率(上海)中粮北外滩壹号【2025】房价详情
扫描到手机,新闻随时看
扫一扫,用手机看文章
更加方便分享给朋友
所有伟大的城市板块,都经历着从地理存在到文明符号的升华。
而当散点式的地王与明星楼盘不断雕刻局部价格天花板时,其背后实则遵循着一套更为实际且统一的价值叙事——稀缺性。
上海【中粮北外滩壹号】售楼处电话;400-833-6309【预约】
顺着稀缺性这一罗盘,我们便能清晰地洞察,真正的价值灯塔始终锚定于那片不可再生的核心资源:滨江住宅!
而上海人又恰恰对滨江住宅的要求近乎极致,既要占位城市重要规划点,又要有超出一般豪宅调性的品质,所以滨江住宅一直都是贵奢的代表。
在上海一线滨江板块地图中,陆家嘴,黄浦滨江、徐汇滨江等地新房单价都已突破19万/㎡。今年6批次,北外滩地块也紧随其上,溢价率46.3%,预计售价约19万/㎡左右,成为今年最炙手可热的滨江板块之一。上海【中粮北外滩壹号】售楼处电话;400-833-6309【预约】
凭心而论,北外滩新房单价卖到19万我一点也不奇怪。
答案显而易见:北外滩一直都是时代的佼佼者,它既是百年前海纳百川的港口,又是今日的世界会客厅,还是上海的未来发展引擎。
所以,当人们以为北外滩新房售价即将冲向19万/㎡、未来买入北外滩将付出巨大经济代价时,一个巨大的历史性机遇,【中粮北外滩壹号】出现了!
均价14.38万,总价约3000万起,这个价格无疑是北外滩错过再无的抄底机遇!
中粮大悦城上海第五座壹号系,“世界S湾壹号作品”——【中粮·北外滩壹号】12月11日开启认购!
推售建面约185-228㎡天际大平层上海【中粮北外滩壹号】售楼处电话;400-833-6309【预约】
过会均价143868元/m²,总价约2188万
最低单价11.75万起!
顶层地段+顶层社区+稀缺天际大平层价值,仅90席,错过再无!
认购时间:2025年12月11日-2025年12月15日
认购金:268万元上海【中粮北外滩壹号】售楼处电话;400-833-6309【预约】
上海【中粮北外滩壹号】售楼处电话;400-833-6309【预约】
感兴趣的朋友赶紧来看
避免大客流影响服务质量、影响到您的参观体验
上海【中粮北外滩壹号】售楼处电话;400-833-6309【预约】
仅接受预约参观,感谢您的理解与支持!
上海【中粮北外滩壹号】售楼处电话;400-833-6309【预约】
即可预约 莅临品鉴预约后请耐心等待案场销售联系
目前仅接待预约客户
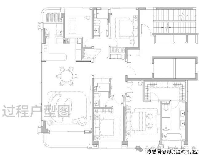
户型图赏鉴
185㎡四房奢阔大宅
准1梯1户设计,私享电梯厅独立入户,经典飞机户型,三开间朝南,南北通透,动静分区,通风采光俱佳。
独立玄关做足私密性和仪式感;LDKB一体化设计的客餐厅面积达到约55㎡,方正大气。上海【中粮北外滩壹号】售楼处电话;400-833-6309【预约】
主卧套房尺度豪奢,可供业主配置步入式衣帽间,卫生间做到双台盆+大浴缸+独立淋浴的顶配,尊崇感十足!
228㎡四房天际大宅
准1梯1户设计,私享电梯厅独立入户,户型尺度进一步升级,当今顶豪新盘中极为稀缺的四开间朝南。上海【中粮北外滩壹号】售楼处电话;400-833-6309【预约】
边厅面积超过50㎡,给一家人提供了阔绰的交流空间;约270°环幕景观设计,带来极好的采光,并且高区可以直面陆家嘴城市天际线+黄浦江景观,视野相当震撼!上海【中粮北外滩壹号】售楼处电话;400-833-6309【预约】
主卧大套房设计带超大主卫和衣帽间,面积约50㎡,尺度感与市面上近300㎡的顶豪拉平。上海【中粮北外滩壹号】售楼处电话;400-833-6309【预约】
室内设计由中国现代室内设计领域的领军人物——梁志天亲自打造。
在材质选用上,延续了壹号系的高端标准,大量运用奢石、高难度弧形工艺以及国内外顶尖品牌。
如宝格丽大理石打造的西厨岛台、铂浪高的净水三合一水龙头和一体式大水槽、霍尼韦尔的前置过滤器、全屋软水以及末端净水器系统、来自意大利法罗力燃气热水器、德国唯宝卫浴、当代龙头及花洒......还有全屋华为智能家居系统配置。这一套组合,是真正意义上的顶豪序列配置!
上海【中粮北外滩壹号】售楼处电话;400-833-6309【预约】
上海【中粮北外滩壹号】售楼处电话;400-833-6309【预约】
土拍回顾及规划
上海【中粮北外滩壹号】售楼处电话;400-833-6309【预约】
2023年9月5日,大悦城控股上海大区公司通过上海联交所成功竞得上海市虹口区北外滩116街坊地块(即中粮北外滩壹号)。地块位于北外滩红线内,靠近大连路地铁站,与外滩、陆家嘴共同构成上海“黄金三角”。
项目四至范围:东至保定路、hk367-02、hk367-05地块,南至昆明路,西至 hk367-03、hk367-04 地块,北至唐山路。上海【中粮北外滩壹号】售楼处电话;400-833-6309【预约】
项目总用地面积约23849.2平方米,容积率1.95,总计容建面4.65万㎡,是上海市中心罕见的无商办、无15%自持住宅、无5%保障房的纯住宅项目。
整体由一栋24F高层住宅和风貌别墅组成。高层共90套、产品面积段约180-228m²,风貌别墅共118套,产品面积段约130-350m²,其中主力建面约203-205-230m²(占比约83%)上海【中粮北外滩壹号】售楼处电话;400-833-6309【预约】
建筑立面,高层主体以仿红砖陶板+古铜色铝板+白色石材+玻璃幕墙的高标准结合,来完成建筑的美学表达。上海【中粮北外滩壹号】售楼处电话;400-833-6309【预约】
风貌别墅则复刻海派石库门的韵味,但不同于大多数风貌别墅的格栅小花窗设计,「中粮·北外滩壹号」大幅增加窗墙比,赋予相对沉闷里的里弄建筑,更通透、更明亮的特质!上海【中粮北外滩壹号】售楼处电话;400-833-6309【预约】
公区方面,从归家社区大堂、大堂序厅、以及入户单元大堂一路看过来,体现出一套脉络完整,层层递进的海派顶奢设计语言。上海【中粮北外滩壹号】售楼处电话;400-833-6309【预约】
上海【中粮北外滩壹号】售楼处电话;400-833-6309【预约】
上海【中粮北外滩壹号】售楼处电话;400-833-6309【预约】
上海【中粮北外滩壹号】售楼处电话;400-833-6309【预约】
顺着稀缺性这一罗盘,我们便能清晰地洞察,真正的价值灯塔始终锚定于那片不可再生的核心资源:滨江住宅!
而上海人又恰恰对滨江住宅的要求近乎极致,既要占位城市重要规划点,又要有超出一般豪宅调性的品质,所以滨江住宅一直都是贵奢的代表。
虽然项目仅有208户,仍然通过深挖三层,满配了高达约1800㎡的私享顶奢会所。按户均占有会所资源计来算,这在当今顶豪圈是顶尖的水平。上海【中粮北外滩壹号】售楼处电话;400-833-6309【预约】
会所由全球顶奢酒店设计领域的标杆——CCD香港郑中设计事务所执笔。目前看到的效果图,体现出一股醇正的老钱世家风,设计品位远超市场同类豪宅。
社交宴会区内,私宴、茶室与专属酒吧一应俱全,满足业主商务应酬到亲友小聚的各种场景需求。上海【中粮北外滩壹号】售楼处电话;400-833-6309【预约】
瑜伽健身区,大幅落地窗引入自然光线,天花的格栅造型,地面的复古拼花木地板,都透出浓厚的海派风情。上海【中粮北外滩壹号】售楼处电话;400-833-6309【预约】
恒温泳池更是融入超级垂直花园庭院体系,直接在泳池中做出美轮美奂的景观。
雅集共聚区内,除了常规的阅读,棋牌等功能外,甚至设有一个舞蹈录音室,配置之高,沪上少见。上海【中粮北外滩壹号】售楼处电话;400-833-6309【预约】
因为这是中粮大悦城的壹号系,珠玉在前,小编完全不担心会所未来兑现的效果,甚至已经很期待看到未来会所开放展示的那一刻。上海【中粮北外滩壹号】售楼处电话;400-833-6309【预约】
景观方面,设计了「八大主题场景」,从百年梧桐下的静谧巷道,到充满未来感的艺术庭院,共同构成一个鲜活立体的生活剧场。
生活配套
上海【中粮北外滩壹号】售楼处电话;400-833-6309【预约】
交通方面:项目周围环绕三条地铁,步行约360米到4、12号线大连路站,步行约560米到12、19号线(在建)提篮桥站。
地铁出行到人广和陆家嘴都只需要4站。未来,随着在建的南北大动脉19号线贯通,可以直达世博、前滩等多个核心滨江段。
上海【中粮北外滩壹号】售楼处电话;400-833-6309【预约】
自驾上,项目往北约300米就是北横通道,往南车行约1公里,就是新建路隧道和大连路隧道直达浦东。从项目到陆家嘴、北外滩和外滩都在左右。上海【中粮北外滩壹号】售楼处电话;400-833-6309【预约】
商业方面:项目出门就是高浓度的国际生活主场,步行可达北外滩来福士(约600米)、瑞虹天地太阳宫(约350米)、白玉兰广场(约1公里),未来还将会兴建全球最火的时尚奢侈品商场之一的SKP。上海【中粮北外滩壹号】售楼处电话;400-833-6309【预约】
半径3km内,还可以同时覆盖外滩、陆家嘴、苏河湾等“黄金三角”的繁华商业!
教育方面:周边学府众多,优质教育资源密集。北侧的长青学校是老牌的九年一贯制公办重点,南侧的上海中学国际部是知名民办名校,距离新华初级中学
(常年四校八大预录人数上百),新复兴初级中学,这两所虹口的顶尖民办学校也都在直线3KM内(新房不承诺对口学校,具体以实际为准)。上海【中粮北外滩壹号】售楼处电话;400-833-6309【预约】
医疗方面:周边有复旦大学红房子妇产科医院,守护着每一个家庭的人生重要时刻。、以及三甲新华医院、上海市第一人民医院为健康生活保驾护航。上海【中粮北外滩壹号】售楼处电话;400-833-6309【预约】
生态休闲:周边有22公顷无车漫步区、3.5万平方米航海公园与中央绿地相融,3.4公里滨江休闲岸线上海【中粮北外滩壹号】售楼处电话;400-833-6309【预约】
上海【中粮北外滩壹号】售楼处电话;400-833-6309【预约】进行官方线上预约通道尊享团购优惠
所有伟大的城市板块,都经历着从地理存在到文明符号的升华。
而当散点式的地王与明星楼盘不断雕刻局部价格天花板时,其背后实则遵循着一套更为实际且统一的价值叙事——稀缺性。
上海【中粮北外滩壹号】售楼处电话;400-833-6309【预约】
顺着稀缺性这一罗盘,我们便能清晰地洞察,真正的价值灯塔始终锚定于那片不可再生的核心资源:滨江住宅!
而上海人又恰恰对滨江住宅的要求近乎极致,既要占位城市重要规划点,又要有超出一般豪宅调性的品质,所以滨江住宅一直都是贵奢的代表。
在上海一线滨江板块地图中,陆家嘴,黄浦滨江、徐汇滨江等地新房单价都已突破19万/㎡。今年6批次,北外滩地块也紧随其上,溢价率46.3%,预计售价约19万/㎡左右,成为今年最炙手可热的滨江板块之一。上海【中粮北外滩壹号】售楼处电话;400-833-6309【预约】
凭心而论,北外滩新房单价卖到19万我一点也不奇怪。
答案显而易见:北外滩一直都是时代的佼佼者,它既是百年前海纳百川的港口,又是今日的世界会客厅,还是上海的未来发展引擎。
所以,当人们以为北外滩新房售价即将冲向19万/㎡、未来买入北外滩将付出巨大经济代价时,一个巨大的历史性机遇,【中粮北外滩壹号】出现了!
均价14.38万,总价约3000万起,这个价格无疑是北外滩错过再无的抄底机遇!
中粮大悦城上海第五座壹号系,“世界S湾壹号作品”——【中粮·北外滩壹号】12月11日开启认购!
推售建面约185-228㎡天际大平层上海【中粮北外滩壹号】售楼处电话;400-833-6309【预约】
过会均价143868元/m²,总价约2188万
最低单价11.75万起!
顶层地段+顶层社区+稀缺天际大平层价值,仅90席,错过再无!
认购时间:2025年12月11日-2025年12月15日
认购金:268万元上海【中粮北外滩壹号】售楼处电话;400-833-6309【预约】
上海【中粮北外滩壹号】售楼处电话;400-833-6309【预约】
感兴趣的朋友赶紧来看
避免大客流影响服务质量、影响到您的参观体验上海【中粮北外滩壹号】售楼处电话;400-833-6309【预约】
仅接受预约参观,感谢您的理解与支持!
上海【中粮北外滩壹号】售楼处电话;400-833-6309【预约】
即可预约 莅临品鉴预约后请耐心等待案场销售联系目前仅接待预约客户
户型图赏鉴
185㎡四房奢阔大宅
准1梯1户设计,私享电梯厅独立入户,经典飞机户型,三开间朝南,南北通透,动静分区,通风采光俱佳。
独立玄关做足私密性和仪式感;LDKB一体化设计的客餐厅面积达到约55㎡,方正大气。上海【中粮北外滩壹号】售楼处电话;400-833-6309【预约】
主卧套房尺度豪奢,可供业主配置步入式衣帽间,卫生间做到双台盆+大浴缸+独立淋浴的顶配,尊崇感十足!
228㎡四房天际大宅
准1梯1户设计,私享电梯厅独立入户,户型尺度进一步升级,当今顶豪新盘中极为稀缺的四开间朝南。上海【中粮北外滩壹号】售楼处电话;400-833-6309【预约】
边厅面积超过50㎡,给一家人提供了阔绰的交流空间;约270°环幕景观设计,带来极好的采光,并且高区可以直面陆家嘴城市天际线+黄浦江景观,视野相当震撼!上海【中粮北外滩壹号】售楼处电话;400-833-6309【预约】
主卧大套房设计带超大主卫和衣帽间,面积约50㎡,尺度感与市面上近300㎡的顶豪拉平。上海【中粮北外滩壹号】售楼处电话;400-833-6309【预约】
室内设计由中国现代室内设计领域的领军人物——梁志天亲自打造。
在材质选用上,延续了壹号系的高端标准,大量运用奢石、高难度弧形工艺以及国内外顶尖品牌。
如宝格丽大理石打造的西厨岛台、铂浪高的净水三合一水龙头和一体式大水槽、霍尼韦尔的前置过滤器、全屋软水以及末端净水器系统、来自意大利法罗力燃气热水器、德国唯宝卫浴、当代龙头及花洒......还有全屋华为智能家居系统配置。这一套组合,是真正意义上的顶豪序列配置!
上海【中粮北外滩壹号】售楼处电话;400-833-6309【预约】
顺着稀缺性这一罗盘,我们便能清晰地洞察,真正的价值灯塔始终锚定于那片不可再生的核心资源:滨江住宅!
而上海人又恰恰对滨江住宅的要求近乎极致,既要占位城市重要规划点,又要有超出一般豪宅调性的品质,所以滨江住宅一直都是贵奢的代表。
买房须知的18个常识
1、查看五证,所谓五证就是指《国有土地使用证》、《建筑用地规划许可证》、《建筑工程规划许可证》、《建筑工程施工许可证》和《商品房预售许可证》。
2、买房其实选择口碑好的开发商很有必要。一般好的开发商资质高、资金充足。
3、评估购房能力,对于刚需族来说,由于他们的经济能力有限,所以都会采取贷款的方式买房。而贷款每个月需要交一定数额的月供,为了保证生活质量不受影响,避免断供的风险,小编建议月供的数额最好控制在总收入的50%以内。
4、选户型,挑选户型时,首先要看户型的朝向。朝向优劣的顺序依次为:正南、东南、东、西南、北、西。
5、选楼层,中间层房屋的空气质量相较于低层更好,出行较高层更方便,可以说是折中。
6、很多购房者认为,当下房价过高,所以买房时,一般会在同等区域、同等地段选择价位便宜的楼盘。正确的做法是多学习选房知识,关注户型好坏,房屋质量等干货。
7、莫心急,年轻人置业时,不宜好大喜贵,应抛弃置业必须一步到位的思想,根据自身所能承受的范围,作出合理的决策。
8、看优惠,对于开发商给出的优惠,要多打听,多分析,多判断,不要盲目追风。
9、不可一味买大,看房一定要综合考虑,不可片面。首先是面积,面积以适用为原则,不可为大而大。
10、看规划,买房当然要挑楼盘,挑小区,挑户型,但是也不能只看房子,还要看房子的位置。毕竟,决定房子价值最大的因素便是地段,建议在购置房产时,要切记紧跟城市发展的方向。
11、看价格,价格挑选比较个人承受范围、交通状况、社区环境、户型结构等条件衡量楼盘价格。
12、小区环境,小区景观、绿化、配套等与生活密切相关,更是楼盘质量的体现。
13、避免极端层,顶层和底层不建议买,底层不仅容易潮湿,发霉,滋生蚊子,光线也不好,顶层一到大夏天,不仅闷热,不透气,还容易漏水。
14、远离设备层,设备层是专门供水,供电的中间楼层,要是常年居住在设备层的附近的话,不仅机器设备的噪音把人折磨得无法休息,连机器的辐射也会影响人的身体健康。
15、考虑孩子问题,买地产要考虑孩子路上的安全问题,尽量选择距离近的房子。这样可以给孩子节约大量的时间,让孩子有充裕的时间学习和休息。
16、物业,不同的物业公司所做的服务千差万别,物业公司能否尽善尽美地完成自己的任务牵扯到小区的整体质量。
17、购房定金,定金对买受人是极为不利的,使买受人在签约的时候处于不利的境地,买受人往往在定金不退的压力下,违心地接受开发商的不平等条款。
18、签认购书,认购书基本条款要约定详细,对所要购买的房屋的主要情况在认购书中予以约定。条款内容约定要合法有效,要求开发商提供作为正式签约的商品房买卖合同文本。
内行人买房的“5句口诀”
内行人买房可简单概括为“5句口诀”,即“一看地段、二看配套、三看楼层,四看户型,最后看价格”。
1、一看地段
内行人买房首先看的是地段,华人首富李嘉诚也说过:“决定房地产价值的因素,第一是地段,第二是地段,第三还是地段。”虽然这个地段论更适合用于投资房产,但是不得不说刚需买房选择区域(地段)也很重要。因为好地段的房产保值或升值的空间更大,购房风险相对城市偏远郊区较小,就算未来房价暴跌,首先下跌的也是地段较偏的房产,地段好的房产房价一般都是最后下降的。
2、二看配套
买房绝对不能忽视楼盘内部和周边的配套设施,不然小区的配套设施不完善,不仅孩子读书不方便,甚至连你想吃个饭,看个病都很麻烦。好小区内部和周边的配套设施就相对完善一些,不仅水、电、燃气、煤气、宽带、停车场、公共厕所、多功能儿童活动空间、园区休闲场所、物业公司等内部配套设施能满足业主的日常居住需求,周边还有便利店、菜市场、食品店、药店、小型超市、学校、公交站点或者地铁站点等多功能服务配套满足业主以及孩子的衣食住行的更高需求。
3、三看楼层
不同的楼层,房子的通风采光、视野景观以及业主的私密性、居住舒适度,甚至噪音污染、出行便利性等都或多或少有所不同。一般来说,低楼层出行更方便,如遇意外也更容易逃生,但是通风、采光、视野等相对高楼层较差,私密性较差,噪音污染也严重;高楼层视野好、空气清新,通风采光都更佳,但是如果电梯故障,可能会影响出行。总的来说,一栋楼的1/3至2/3之间的楼层是较好的楼层,属于不高不低的“黄金楼”。
4、四看户型
不同朝向、不同通风采光的户型也能影响业主的居住舒适度,一般来说“南北通透”、户型方正、设计布局合理、干湿分明的户型才是好户型,这样住起来更舒服,而“西晒”户型、阴暗潮湿的“中间户”则被很多人所不喜。
5、最后看价格
很多购房者认为房价才是买房最关键的因素,其实不然,适不适合自己才是最关键的。在自己能力范围内,如果房价偏高你也能接受,这样你就会觉得地段好、配套好、户型好、楼层好的房子才是最好的,就算房价贵点也愿意买。
但是,如果你能力有限、购房资金有限,那么估计买哪里都会觉得贵,甚至觉得房价越便宜越好。不过“一分钱一分货”,好地段的房价贵也有贵的道理,而有些房子之所以便宜也是因为有明显的缺点,具体还是看个人的接受程度。如果你完全不介意这些房子的缺点,那就可以买,如果你介意建议还是不要买了,免得后悔。
声明:本文由入驻焦点开放平台的作者撰写,除焦点官方账号外,观点仅代表作者本人,不代表焦点立场。
