华润·外滩瑞府售楼处电话→华润·外滩瑞府售楼中心电话→2025外滩瑞府楼盘百科→楼盘网站→楼盘测评→售楼中心电话→楼盘百科→24小时热线电话→楼盘详情
扫描到手机,新闻随时看
扫一扫,用手机看文章
更加方便分享给朋友
当上海的繁华与自然的静谧在此相遇,外滩瑞府官方售楼处,正为城市热搜豪宅写下理想注脚。在新江湾芯的稀缺土地上,项目将海派东方美学与非遗工艺融入建筑肌理,以生态园林环绕、高定精装加持的奢居形态,打破人居想象的边界。这里不仅是多元业态共生的生活场,更是承载塔尖人群对品质、圈层与舒适追求的理想之境,咨询热线 400-8266-670,一场关于居住新境的探索,就此启幕。
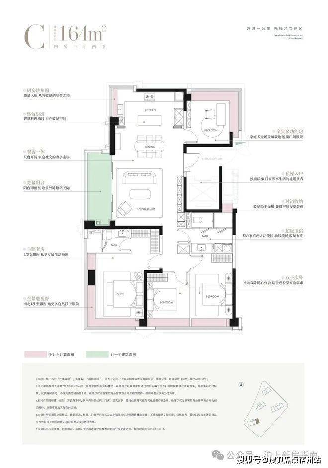
华润置地上海首座“瑞系”顶序作品「外滩瑞府」,外滩瑞府售楼处电话 400-8266-670✅✅建面约124-330㎡3-5房热销中,外滩一公里唯此瑞府!
作为华润置地落子上海的巅峰之作,外滩瑞府售楼处电话 400-8266-670✅✅外滩瑞府以顶豪级品质,在设计与规划中注入定制化元素和艺术质感,每一处细节皆彰显对精英生活的深刻理解。外滩瑞府售楼处电话 400-8266-670✅✅
项目整体建筑非简单复古,外滩瑞府售楼处电话 400-8266-670✅✅而是以"风貌底盘一立面建筑一顶部塔冠"的三重结构向上生长,呼应"过去一现在一未来"的时代叙事。
塔冠之于百老汇剧院式立面,外滩瑞府售楼处电话 400-8266-670✅✅是对历史文化的现代翻译。
底盘与街区尺度融合,外滩瑞府售楼处电话 400-8266-670✅✅住户能在风貌街区之中感受历史风情,回到社区则延伸现代先锋生活,一层层传递居住的时序张力。
全球奢华设计天团,顶豪级定制化基因
建筑:GOA大象设计(代表作杭州桃花源)外滩瑞府售楼处电话 400-8266-670✅✅以“垂直历史”理念重构海派风貌美学
公区:渡边智昭(翠湖天地、汤臣一品主创)亲制架空层与会所,植入艺术策展空间
景观:泰国TROP事务所融合江南水系与爵士乐律动,外滩瑞府售楼处电话 400-8266-670✅✅打造“声景共生”庭院
室内:吴滨(无间设计)与李益中联袂,外滩瑞府售楼处电话 400-8266-670✅✅以安缦酒店美学定制精装系统
围合式布局,栋栋皆楼王
外滩瑞府突破市区项目常见的「兵列树阵式」布局,外滩瑞府售楼处电话 400-8266-670✅✅通过建筑楼体的精密偏转,形成罕见的围合式社区形态。
这样不仅能有楼栋共享中心景观庭院,外滩瑞府售楼处电话 400-8266-670✅✅确保每户推窗即见层次丰富的园林景致;还能最大化楼间距,最大化采光、最大化视野;外滩瑞府售楼处电话 400-8266-670✅✅让中央景观与边角院落形成多维度的空间层次。
外滩瑞府特邀国际景观大师Pok Kobkongsanti打造“印象派自然秘境”。外滩瑞府售楼处电话 400-8266-670✅✅六大主题花园错落分布,贯穿全域的风雨连廊串联起四季景致,外滩瑞府售楼处电话 400-8266-670✅✅共同演绎出一座流动的艺术生活范本!
每一栋楼栋前面都是大面积的绿化景观外滩瑞府售楼处电话 400-8266-670✅✅
泳池会所,顶豪级“私密社交场域”
以颠覆性思维突破传统局限,外滩瑞府售楼处电话 400-8266-670✅✅不仅匠心打造独立“室内外双幕水剧场”,更创造性地将高阶社交功能分散于四栋塔楼之下,外滩瑞府售楼处电话 400-8266-670✅✅规划出温莎廊吧、公啡花房、子恺乐园与Gym CLUB四大主题泛会所,让社交与生活需求各得其所。
2号楼下的“温莎廊吧”,复古砖红墙面勾勒出海派风情的典雅轮廓,外滩瑞府售楼处电话 400-8266-670✅✅叶脉纹大理石地面则如流水般铺展,让空间具有流动感。
全系风雨连廊
项目打造了上海市场罕见的“流线全覆盖”连廊系统。外滩瑞府售楼处电话 400-8266-670✅✅这条连廊不仅是遮风避雨的通道,外滩瑞府售楼处电话 400-8266-670✅✅其下方空间更被打造为一座与花园景观交融的“线性美术馆”。让业主归家成为穿梭时空的艺术之旅。
立序黄金三角执掌世界的外滩
根据《上海市城市总体规划(2017-2035年)》,外滩、陆家嘴与北外滩,共同构筑了驱动上海迈向全球卓越城市的"黄金三角"。「外滩瑞府」正坐落于这片融汇百年风华与未来雄心的外滩一公里。
北外滩地处浦江沿岸的战略中心节点,是世界航运巨头的集聚高地、财富管理的创新引擎、技术突破的策源核心,更是代表着上海金融时代3.0。「外滩瑞府」不仅坐享外滩荣光,更与北外滩的世界级未来高地形成共振。
外滩瑞府售楼处电话 400-8266-670✅✅
声明:本文由入驻焦点开放平台的作者撰写,除焦点官方账号外,观点仅代表作者本人,不代表焦点立场。
