华润·外滩瑞府售楼处电话→外滩瑞府售楼中心电话→2025上海虹口·华润外滩瑞府楼盘百科→外滩瑞府首页网站→楼盘百科→首页网站→售楼处24小时热线电话
扫描到手机,新闻随时看
扫一扫,用手机看文章
更加方便分享给朋友
外滩瑞府售楼处电话☎:400-826-6670(预约看房热线√√)
外滩瑞府售楼处电话/地址☎:4008266670【售楼中心已认证√√】
售楼处电话☎:400-8266-670【售楼处预约热线】(一对一热情服务)
看房请务必提前致电销售确认时间,只有预约客户才能享受开发商提供的内部优惠以及专属的老客户推荐奖励!我们提供专业的一对一热情服务,助您以专业视角挑选理想的房产。

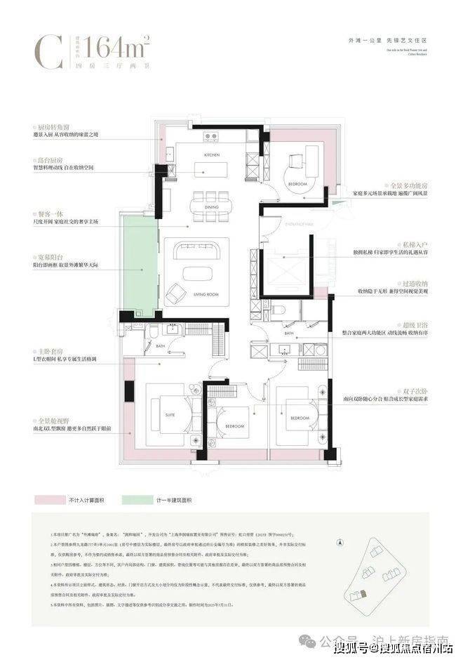
华润置地上海首座“瑞系”顶序作品「外滩瑞府」,外滩瑞府售楼处电话 400-8266-670✅✅建面约124-330㎡3-5房热销中,外滩一公里唯此瑞府!
作为华润置地落子上海的巅峰之作,外滩瑞府以顶豪级品质,外滩瑞府售楼处电话 400-8266-670✅✅在设计与规划中注入定制化元素和艺术质感,每一处细节皆彰显对精英生活的深刻理解。
项目整体建筑非简单复古,外滩瑞府售楼处电话 400-8266-670✅✅而是以"风貌底盘一立面建筑一顶部塔冠"的三重结构向上生长,呼应"过去一现在一未来"的时代叙事。
塔冠之于百老汇剧院式立面,外滩瑞府售楼处电话 400-8266-670✅✅是对历史文化的现代翻译。
底盘与街区尺度融合,住户能在风貌街区之中感受历史风情,外滩瑞府售楼处电话 400-8266-670✅✅回到社区则延伸现代先锋生活,一层层传递居住的时序张力。
全球奢华设计天团,顶豪级定制化基因
建筑:GOA大象设计(代表作杭州桃花源)以“垂直历史”理念重构海派风貌美学
公区:渡边智昭(翠湖天地、汤臣一品主创)亲制架空层与会所,外滩瑞府售楼处电话 400-8266-670✅✅植入艺术策展空间
景观:泰国TROP事务所融合江南水系与爵士乐律动,外滩瑞府售楼处电话 400-8266-670✅✅打造“声景共生”庭院
室内:吴滨(无间设计)与李益中联袂,外滩瑞府售楼处电话 400-8266-670✅✅以安缦酒店美学定制精装系统
围合式布局,栋栋皆楼王
外滩瑞府突破市区项目常见的「兵列树阵式」布局,外滩瑞府售楼处电话 400-8266-670✅✅通过建筑楼体的精密偏转,形成罕见的围合式社区形态。
这样不仅能有楼栋共享中心景观庭院,确保每户推窗即见层次丰富的园林景致;还能最大化楼间距,最大化采光、最大化视野;外滩瑞府售楼处电话 400-8266-670✅✅让中央景观与边角院落形成多维度的空间层次。
外滩瑞府特邀国际景观大师Pok Kobkongsanti打造“印象派自然秘境”。六大主题花园错落分布,贯穿全域的风雨连廊串联起四季景致,外滩瑞府售楼处电话 400-8266-670✅✅共同演绎出一座流动的艺术生活范本!
外滩瑞府售楼处电话 400-8266-670✅✅
外滩瑞府售楼处电话 400-8266-670✅✅
每一栋楼栋前面都是大面积的绿化景观外滩瑞府售楼处电话 400-8266-670✅✅
泳池会所,顶豪级“私密社交场域”
以颠覆性思维突破传统局限,外滩瑞府售楼处电话 400-8266-670✅✅不仅匠心打造独立“室内外双幕水剧场”,更创造性地将高阶社交功能分散于四栋塔楼之下,规划出温莎廊吧、公啡花房、子恺乐园与Gym CLUB四大主题泛会所,外滩瑞府售楼处电话 400-8266-670✅✅让社交与生活需求各得其所。
2号楼下的“温莎廊吧”,复古砖红墙面勾勒出海派风情的典雅轮廓,外滩瑞府售楼处电话 400-8266-670✅✅叶脉纹大理石地面则如流水般铺展,让空间具有流动感。
全系风雨连廊
项目打造了上海市场罕见的“流线全覆盖”连廊系统。外滩瑞府售楼处电话 400-8266-670✅✅这条连廊不仅是遮风避雨的通道,其下方空间更被打造为一座与花园景观交融的“线性美术馆”。让业主归家成为穿梭时空的艺术之旅。
立序黄金三角执掌世界的外滩
根据《上海市城市总体规划(2017-2035年)》,外滩、陆家嘴与北外滩,共同构筑了驱动上海迈向全球卓越城市的"黄金三角"。「外滩瑞府」正坐落于这片融汇百年风华与未来雄心的外滩一公里。
北外滩地处浦江沿岸的战略中心节点,是世界航运巨头的集聚高地、财富管理的创新引擎、技术突破的策源核心,更是代表着上海金融时代3.0。「外滩瑞府」不仅坐享外滩荣光,更与北外滩的世界级未来高地形成共振。
外滩瑞府售楼处电话 400-8266-670✅✅
声明:本文由入驻焦点开放平台的作者撰写,除焦点官方账号外,观点仅代表作者本人,不代表焦点立场。
