龙光天曜
临港滴水湖核心102片区
|||||||| 地理位置 ||||||||
龙光天曜位于临港滴水湖核心102片区,地理位置优越,是临港主城区的重要组成部分。
周边生活
户型装修
价格与发展
PART 1
周边生活
☑️☑️龙光天曜售楼处电话:400-8377-020☑️☑️
项目周边交通便利,临近S2沪芦高速、申港大道、两港大道等城市主动脉,且未来规划有多条轨交线路,如经过申港大道的蓝色线路和临港市区线红色线路,出行十分便捷。

☑️☑️龙光天曜售楼处电话:400-8377-020☑️☑️
在生活配套方面,项目自身规划有建面约13万方海洋主题购物中心、零售折扣店、大型商超、墅质综合住区以及约100米酒店等丰富业态,满足居民的购物、休闲、娱乐等需求。此外,周边还有百联临港生活中心、宜浩晶萃商圈、港城新天地一、二期、金辉商业广场等已开业的商业中心,进一步丰富了居民的生活选择。

☑️☑️龙光天曜售楼处电话:400-8377-020☑️☑️
教育资源丰富是龙光天曜的一大亮点。项目所在区域聚集着从幼儿园到小学、初中、高中再到大学的全龄段教育配套,一共18所学校,还有耀华、上中等优质民办学校,为孩子提供优质的教育环境,满足不同家庭的教育需求。

☑️☑️龙光天曜售楼处电话:400-8377-020☑️☑️
生态休闲方面,项目周边有城市公园等绿地景观,为居民提供了休闲散步的好去处,提升了居住的舒适度和幸福感。

☑️☑️龙光天曜售楼处电话:400-8377-020☑️☑️
PART2
户型和装修
「户型介绍 」
龙光天曜项目在售建面约85㎡、95㎡、105㎡、117㎡、133㎡等多种户型,涵盖高层和叠墅产品,满足全年龄段家庭的需求。高层户型设计合理,空间利用率高,采光和通风效果良好。例如,85㎡户型紧凑实用,适合小家庭或年轻夫妇;95㎡、105㎡户型则功能分区明确,适合三口之家或三代同堂;

117㎡、133㎡户型更是提供了更为宽敞舒适的生活空间,适合改善型家庭。叠墅产品则更具特色,提供了更多的居住私密性和舒适度,适合追求高品质生活的家庭。

☑️☑️龙光天曜售楼处电话:400-8377-020☑️☑️
「装修介绍 」
龙光天曜项目为精装交付,采用新加坡现代极简美学为基调,外立面采用米白色与高级灰主色调,搭配大面积三玻两腔材质玻璃,不仅提升了建筑的美观度,还增强了节能环保效果。

在内部装修上,预计会采用知名品牌建材,打造现代化、精致化的居住空间,以满足业主对高品质生活的需求。虽然具体的装修细节尚未公布,但从项目的高品质定位来看,装修风格可能会偏向现代简约或轻奢风,注重空间的合理利用与功能的多样性。

☑️☑️龙光天曜售楼处电话:400-8377-020☑️☑️
「居住人群 」
龙光天曜的居住人群主要分为以下几类:
一是周边产业的高端人才。临港作为上海重点发展的区域之一,吸引了大量高端产业和人才入驻。龙光天曜凭借其优越的地理位置和高品质的社区规划,能够满足这些高端人才对居住品质的要求,为他们提供舒适的居住环境。

二是改善型家庭。随着家庭结构的变化或对居住环境的更高要求,原本居住在周边普通住宅小区的家庭会选择升级到像龙光天曜这样品质更高、配套更完善的社区,享受更舒适的居住体验。

☑️☑️龙光天曜售楼处电话:400-8377-020☑️☑️
三是投资客。临港作为国家战略重点发展区域,具有较大的增值潜力。一些投资者看好该区域的发展前景,选择在此购置房产,以期未来获得房产增值带来的收益。

「地理位置的历史与周边文化积淀 」
临港滴水湖核心102片区作为新兴的开发区,虽然历史相对较短,但承载着上海未来发展的战略意义。这里将打造成集商业、住宅、教育、文化等多功能于一体的现代化城区。虽然没有悠久的历史和众多的历史人物,但作为临港新片区的重要组成部分,102片区将见证临港从一片滩涂发展成为国际化大都市的全过程,具有独特的现代城市文化底蕴。

☑️☑️龙光天曜售楼处电话:400-8377-020☑️☑️
PART 3
周边价格对比
龙光天曜整体均价约33000元/㎡,高层产品总价约245万起,叠墅产品价格更高。由于龙光天曜地处临港滴水湖核心地段,产品为高品质高层及叠墅,在产品定位与品质上相对周边普通住宅项目具有一定优势,预计其价格会在周边房价基础上有一定的上浮,但具体价格还需以开发商实际开盘定价为准。

☑️☑️龙光天曜售楼处电话:400-8377-020☑️☑️
综上所述,龙光天曜凭借其优越的地理位置、高品质的产品、丰富的周边配套以及良好的未来发展前景,成为临港区域内的优质楼盘项目。无论是对于自住的改善型购房者还是投资者来说,都具有较大的吸引力,有望在未来成为临港的标杆性住宅项目之一。

「龙光天曜」
临港滴水湖核心102片区
建面约85-137㎡高层&叠加
均价3.4万元/㎡ 总价约245万起
无需积分 直接下定
线上预约有折扣优惠 切莫错过
售楼处火热预约中

☑️☑️龙光天曜售楼处电话:400-8377-020☑️☑️
☑️☑️龙光天曜售楼处电话:400-8377-020☑️☑️
临港核心『龙光天曜』约89-137㎡高层&叠墅火热热销中!临港新片区的价值洼地 附脑图
ai房已关注
分享点赞在看已同步到看一看写下你的评论
视频详情
项目基础信息
【开发商】:上海君栩置业有限公司
【项目占地】:50万方
【建筑面积】:4.8万方
【体量】:夏蕴光里261套
【建筑面积】:85㎡/95㎡/105㎡/117㎡/133㎡
【层高】:16层洋房;17层高层,叠加别墅
【装修】:装修
【梯户比】:两梯四户
【单价】:3.15万左右
【总价】:245—647万
【绿化率】:35%左右
【容积率】:2.2-2.5
【交房时间】:准现房
【物业费】:待定
【车位配比】1:1.12

☑️☑️龙光天曜售楼处电话:400-8377-020☑️☑️
城市公园 规划学区 邻里中心
【龙光·天曜】是临港滴水湖核心区少有的墅质住区,住宅部分由4个子地块构成,包含高层和叠加两种产品,尤其叠加是临港主城极为稀缺的产品,且大户型占到整个项目的35%以上。

☑️☑️龙光天曜售楼处电话:400-8377-020☑️☑️
【龙光·天曜】整盘过会均价为3.1万/㎡,在整个临港过会新盘里价格是最低的,要知道这是包含叠加的价格,算下来高层价格更具“性价比”。

售楼处实景
在住宅产品打造上 【龙光·天曜】以新加坡现代极简美学为基调,外立面采用米白色与高级灰主色调,搭配大面积三玻两腔材质玻璃,打造临港特色住区。

☑️☑️龙光天曜售楼处电话:400-8377-020☑️☑️
项目效果图
同时作为建面约50万方大城,整个地块还有城市公园、规划小学、邻里中心...等相关配套,可以说业态丰富,生活便利,是临港主城区少见的大城。

社区配套图

☑️☑️龙光天曜售楼处电话:400-8377-020☑️☑️
社区效果图
项目在售详情
整个项目在售 建面约89-128㎡的3~4房,以及建面约117-133㎡叠墅,满足全年龄段家庭所需。


☑️☑️龙光天曜售楼处电话:400-8377-020☑️☑️
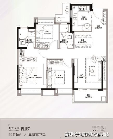
高层户型图▼


☑️☑️龙光天曜售楼处电话:400-8377-020☑️☑️

☑️☑️龙光天曜售楼处电话:400-8377-020☑️☑️

☑️☑️龙光天曜售楼处电话:400-8377-020☑️☑️
样板间实景图▼



☑️☑️龙光天曜售楼处电话:400-8377-020☑️☑️


☑️☑️龙光天曜售楼处电话:400-8377-020☑️☑️
叠墅户型图▼


☑️☑️龙光天曜售楼处电话:400-8377-020☑️☑️

龙光天曜叠墅样板房实拍图
项目区位配套
国家战略+人才磁场,已然成为临港现有标签。2035中对于临港的规划相当于再造一个浦东!临港配套资源跨越式升级,接轨世界。刚满2岁的自贸区临港新片区从不缺少关注的目光。

☑️☑️龙光天曜售楼处电话:400-8377-020☑️☑️
示意图
【龙光·天曜】就位于商住教示范区的门户核心位置,从上海市区自驾来临港,经S2沪芦高速(已全程免费)下闸道进入申港大道,首先映入眼帘的就会是滴水湖首个天际坐标——龙光蓝鲸世界百米酒店。这个酒店也是【龙光天曜】建面约50万方综合住区的商业配套部分。

龙光蓝鲸世界百米酒店效果图
【龙光·天曜】北面的主干道申港大道仿佛临港“延安高架”,自西向东串联起百米高度的蓝鲸世界、临港行政中心、约200米的临港中银金融中心,以及滴水湖东侧约480米滨海地标,“一轴多芯”形成临港独一无二的滨海城市天际线。

☑️☑️龙光天曜售楼处电话:400-8377-020☑️☑️
示意图
商住教示范区作为临港主城区开发较成熟的区域,百联临港生活中心、宜浩晶萃商圈,港城新天地一、二期,金辉商业广场,均已开业,但商业体量均较小,龙光蓝鲸世界建设可以说把整个商住教示范区商业能级提升到一个新的高度。

而龙光打造建面约50万方旗舰综合体,涵盖建面约13万方海洋主题购物中心,零售折扣店,大型商超,墅质综合住区,以及约100米酒店。

☑️☑️龙光天曜售楼处电话:400-8377-020☑️☑️
示意图
整个购物中心以“潮流、时尚、年轻”为理念,集一线高端品牌,涵盖了社交娱乐、亲子休闲、购物餐饮等主题消费。
将包括全球生鲜超市、潮牌、时尚餐饮、天台酒吧、巨幕影院、KTV、电竞馆等,融合了创新型书店、电玩乐园、美妆集合点等新型业态(具体业态与品牌以签约和开业为准)。
效果图

可以说这样的商业中心打破传统的购物、休闲、饮食为主的满足城市需求的商业格局,融入更过场景体验,无疑蓝鲸购物世界中心的打造将为临港带来更多元化的商业中心和又一网红打卡圣地!

☑️☑️龙光天曜售楼处电话:400-8377-020☑️☑️
轨道交通方面:临港新片区16号线、申港大道、两港大道等城市主动脉已通车,还规划建设3条国铁、6条市域铁以及5条中运量公交,快步连接上海城央和其他重要区域。
近日,临港新片区全境交通规划(草案)图中显示,102片区未来会有两条轨交。一条经过申港大道(图中蓝色线路),可能的站点是申港大道枢纽,位于申港大道上,沪城环路与水华路之间;另一条是临港市区线(图中红色线路),设有水华路站。

☑️☑️龙光天曜售楼处电话:400-8377-020☑️☑️
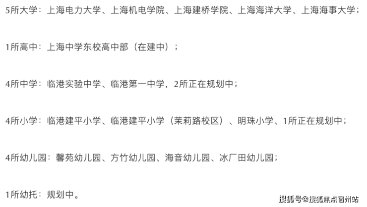
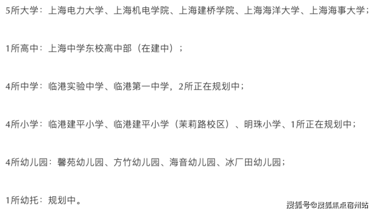
教育资源方面:这里聚集着从幼儿园到小学、初中、高中到大学全龄段的教育配套,一共18所学校!另外,还有耀华、上中等优质民办!
在102,从幼儿园读到大学,并非不可能!国内、国际升学路线任你选~

☑️☑️龙光天曜售楼处电话:400-8377-020☑️☑️
项目一房一价表

☑️☑️龙光天曜售楼处电话:400-8377-020☑️☑️

☑️☑️龙光天曜售楼处电话:400-8377-020☑️☑️

☑️☑️龙光天曜售楼处电话:400-8377-020☑️☑️

☑️☑️龙光天曜售楼处电话:400-8377-020☑️☑️
THANKS