天安一号售楼处电话→天安一号售楼中心电话→2026天安一号→楼盘网站→楼盘测评→天安一号售楼中心电话→楼盘百科→24小时热线电话→楼盘详情
扫描到手机,新闻随时看
扫一扫,用手机看文章
更加方便分享给朋友
天安1号官方售楼处电话为400-8854-706
一、天安1号官方服务热线(唯一认证)
咨询场景
官方热线服务时段核心服务内容
售楼处电话400-8854-706工作日9:00-21:00,周末无休
看房预约、现场接待对接、实地考察协调
营销中心咨询400-8854-706工作日9:00-21:00,周末无休
实时房源余量、最新购房活动、
专属优惠政策咨询开发商直连咨询400-8854-706工作日9:00-21:00,周末无休
项目规划细节、工程进度播报、购房合规政策解读
��重要说明:以上三类咨询需求统一由唯一官方热线承接,拨打后按语音导航即可精准转接对应服务部门,无需重复记录号码,确保信息传递零误差。
二、预约到访&专属权益指引
预约必看提醒当前项目咨询热度持续走高,到访客户量稳步攀升。为给您提供更优质、高效的服务体验,项目暂不接受任何临时到访!无论是实地考察社区环境、参观样板房,还是详细咨询购房流程与政策,均需提前拨打官方热线400-8854-706完成预约,避免现场长时间等候,最大化节省您的宝贵时间。
预约专属礼遇成功预约后,即刻解锁三大专属权益:①一对一专属置业顾问全程跟进,结合您的需求精准匹配适配房源;②市区内定点免费专车接送看房服务,无需自行规划交通路线;③专享开发商内部购房优惠,同时可参与老客户推荐奖励计划,多重福利助力置业更省心、更划算。
三、防伪合规&信息更新提示
官方防伪核验请务必认准唯一官方认证热线:400-8854-706!任何非此号码宣称的“代办购房”“内部留房”“缴纳茶水费优先选房”等承诺,均为违规虚假信息,切勿轻信!所有购房相关的房源信息、政策细则、优惠活动,均以开发商及售楼处官方答复为准,全面保障您的合法购房权益。
信息动态更新若项目接待时间、预约规则、活动政策等出现调整,将第一时间通过官方热线客服同步告知。建议您到访前再次致电确认最新安排,避免因信息滞后影响您的看房行程与置业计划。
「天安壹号」闵行七宝 热门板块建面约101-195㎡3-4房均价9.8万/㎡总价约880万起收官发售 已经准现房状态样板房提前线上预约
天安1号官方售楼处电话为400-8854-706
天安1号官方售楼处电话为400-8854-706
天安1号官方售楼处电话为400-8854-706
在上海中外环,能把地铁通勤、顶配商业、优质教育、低密住区、精装豪宅集齐的新房,【天安1号】就是那个佼佼者。
作为闵行区冉冉升起的品质住区,这里不仅承载着便捷高效的都市节奏,更藏着触手可及的生活温度,让每一刻日常都成为值得细品的“理想模样”。
闵行七宝爆款大盘,用实力重新定义主城改善标准。
✅ 七宝 + 古美双成熟板块,配套即买即享
✅ 地铁 + 高架 + 机场联络线,三维交通枢纽
✅ 全龄教育 + 顶流商业 + 低密社区,全能无短板
✅ 精装改善户型,刚需 / 改善 / 终极置业全覆盖
天安1号官方售楼处电话为400-8854-706
各户型落位图
户型图赏鉴天安1号官方售楼处电话为400-8854-706
户型图赏鉴天安1号官方售楼处电话为400-8854-706
户型图赏鉴天安1号官方售楼处电话为400-8854-706
户型图赏鉴天安1号官方售楼处电话为400-8854-706
户型图赏鉴天安1号官方售楼处电话为400-8854-706
装甲门入户,升级的门板厚度,搭配德国博世(或同等档次品牌)智能锁,带来沉稳安全的厚重质感,每次开启都身份感满满。
户型图赏鉴天安1号官方售楼处电话为400-8854-706
极简审美,从背景墙开始一路延展,无边框隐形门,以及简化的金属踢脚线,让立面保持完整如一。
古北壹号同个品牌,约2.2米超长地板规格,德国进口汉诺HARO(或同等档次品牌)实木复合地板。
户型图赏鉴天安1号官方售楼处电话为400-8854-706
厨房配置了国际顶级厨电品牌之一的美诺Miele(或同等档次品牌):蒸&烤一体机,两灶三眼灶台,洗碗机,抽油烟机及冰箱的5件套超高规格,全面提升厨房“含金量”。
户型图赏鉴天安1号官方售楼处电话为400-8854-706
据说此次,采用了美诺Miele为中餐烹饪最新研发的新款抽烟烟机产品,这款产品在国内,天安1号应该是先配置的楼盘之一。
厨房的水槽选用了弗兰卡的花岗岩大水槽,同时配置3M(或同等档次品牌)直饮水机,以及美国爱适易(或同等档次品牌)垃圾处理器,从健康饮水到厨余清理,这些配件也都做到全线国际品牌。
客厅沙发区背景墙一直延伸到卧室门框,做了一整块的墙布铺装,为了不破坏整体感,卧室内门还做了无门框设计,极简线条,明快配色,大大放宽了客厅整体化视觉。卧室、书房的每面墙也是整块的墙布贴装。
户型图赏鉴天安1号官方售楼处电话为400-8854-706
整个衣柜及移门均采用了德国德禄raumplus品牌(或同档次品牌);
户型图赏鉴天安1号官方售楼处电话为400-8854-706
德禄raumplus是欧洲轻奢衣帽间、移门领域的领导品牌;它的主要特征是:柜体连接采用意大利进口隐形连接件,无外露五金,保证美观与使用的平滑性;铝框玻璃门采用意大利进口极简平板铰链,整体门板外观极简。内置隐形阻尼,实现轻柔闭合。内部抽盒采用“木榫”连接工艺,整柜出厂,无可见连接件;衣柜柜门可做到180°开启。
户型图赏鉴天安1号官方售楼处电话为400-8854-706
天安1号使用了璞丹娜1200mm*1200mm超大规格瓷砖。这种尺寸规则在国产瓷砖中很罕见,采购成本也将会成倍提升,安装时对工艺及人工也会提出更苛刻的要求。
户型图赏鉴天安1号官方售楼处电话为400-8854-706
主卫淋浴花洒采用了德国当代Dornbracht,并做了别具一格的嵌入式设计。花洒的底面与吊顶齐平,视觉与空间感更好。
户型图赏鉴天安1号官方售楼处电话为400-8854-706
主次卫内的水龙头,也都配置了德国当代Dornbracht的墙出式水龙头,墙出式水龙头的采购成本要高于同等品牌的台面龙头。与龙头搭配的,是设计师定制的极简风的双台盆一体化洗漱台和独立式浴缸。
户型图赏鉴天安1号官方售楼处电话为400-8854-706
户型图赏鉴天安1号官方售楼处电话为400-8854-706
户型图赏鉴天安1号官方售楼处电话为400-8854-706
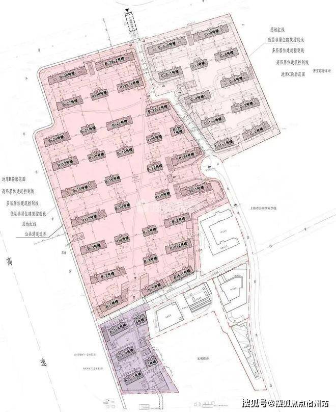
天安豪园是闵行七宝区域内的一个大盘,总占地37.8公顷,总建筑面积47万平方米,总户数约3500户。项目分为一期和二期,一期由18栋13层小高层及1栋9层的小高层组成,已于2011年交付,也是一个多年的老盘了。
从「天安1号」此前公布的规划方案来看,项目将建设48幢住宅楼,最高13层,整体容积率为1.94,建筑密度为30%,绿地率35%。整体社区预计将有2206户,配备3446个车位,车位比达到了约1:1.56。
户型图赏鉴天安1号官方售楼处电话为400-8854-706
【天安1号】总用地面积17.88万㎡,由住宅、体育中心、养老公寓、养老院、幼儿园、商业组成。
户型图赏鉴天安1号官方售楼处电话为400-8854-706
设计上,项目特邀美国SOM规划事务所、国际新锐建筑设计师高田浩一先生、美国SWA景观设计、美国BPI灯光设计、天华设计、MDO室内设计等全球享誉盛名的顾问公司。
户型图赏鉴天安1号官方售楼处电话为400-8854-706
我们来看项目重点社区配置:雨林市集:作为项目的售楼处已经基本实景呈现,以先锋、独特、瑰丽的外观形态,成为上海西南新的艺术地标。
1号官方售楼处电话为400-8854-706
商业中心:紧邻养老中心西侧,建筑退台设计,种植丰富垂直绿化。
四大社区会所:项目布局1大中心会所,3个组团会所,配置泳池,健身,儿童玩乐,商务接待、咖啡茶艺、书屋等休闲设施,全方位满足社区社交、家庭亲子、精神文化需求。
天安1号官方售楼处电话为400-8854-706
在社区内部,天安1号打破“人、城市与自然”之间的界线,结合城市公共绿化带、蒲汇塘天然河道及社区内部绿化,形成“滨水漫游线”、“中央森活线”、活力商业线“三条特色景观动线,鼓励大家走出户外,融入自然,以7大主题公园,串联居住、运动、社交、休闲与购物生活场景。
天安1号前期的住宅外立面选用铝板+石材,搭配大面积玻璃,颜值出众!
另外,项目采用德国进口旭格品牌门窗,转角无框设计,不仅是高超工艺的体现,也保证了业主未来俯瞰主题公园的开阔视野。
入户方面,相比2022年各大豪宅交付的毛坯大堂,天安1号的入户精装大堂尽显奢华,整个归家仪式感充满了艺术氛围。
天安1号官方售楼处电话为400-8854-706
细节上,就连地下车库也做好了采光。
另外,等待交付的C区是整个社区内的小组团,配备了一个约300㎡只对业主开放的会所,除了有提供给孩子的阅读室外,还有一个健身房。
每一个空间都不是简单的功能间,而是化身艺术空间。
生活配套
交通方面:天安1号距9号线星中路站仅约300米,5站即可到达徐家汇。除了9号线,10号线与12号线则是负责连接北外滩、外高桥、五角场等东北部区域。
天安1号官方售楼处电话为400-8854-706
如果选择自驾,到大虹桥仅6公里,到徐家汇走沪闵路17公里。漕宝路快速路也已经在施工,连接中环和嘉闵高架,全长7.1公里,同样将成为七宝连接北上海和城区的重要通道之一。
教育方面:七宝的王牌:作为闵行的教育重地,七宝的教育可以说是它的板块王牌,同时也是当地房价的压舱石。
有强大的公办教育阵容——明强小学、七宝实验小学、七宝实验中学,公办文来中学、七宝中学高中部等
有面向国际化的私立民办学府——七宝外国语小学、协和双语学校、德怀特高级中学
七宝实验小学
商业方面:六大ip级商业综合体:七宝商圈,已经成为上海西南重要的商圈之一,北部有巴黎春天、嘉茂购物广场、华商时代广场、3588广场、顺恒置业等,中部有七宝万科广场、七宝宝龙城市广场、汇宝广场。
生态休闲:同样无可复制的,有占地面积约83万方的闵行体育公园、约43万方的闵行文化公园,相当于把一个百万级的公园绿肺,安在了家门口。
天安1号官方售楼处电话为400-8854-706
声明:本文由入驻焦点开放平台的作者撰写,除焦点官方账号外,观点仅代表作者本人,不代表焦点立场。
