露香园AROMA风貌别墅
黄浦核心区低密传世大宅
「露香园」
推出建面约406-509㎡联排/独栋
总价约1.08-1.56亿
最后几席 实景现房!!
目前“样板间”已开放
...................................................................
露香园售楼处电话:400-8377-020
露香园二期D1地块别墅,共 12席建筑面积约406㎡-538㎡风貌别墅,如此纯粹大面积的别墅规划在风貌市场实属难得。而且二期别墅还是难得的类独栋、类双拼产品。许多风貌别墅产品大多面临被高层住宅和商业大厦环绕的阴影:采光视野均受限,但露香园的别墅高效引入东西向采光,配以有天有地的私享庭院,围合一方静谧的城央宅邸,是远离喧嚣、闹中取静的理想之地。

露香园售楼处电话:400-8377-020

露香园售楼处电话:400-8377-020

露香园售楼处电话:400-8377-020
传世风貌别墅,少量在售:
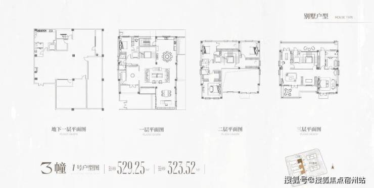
类独栋别墅(建筑面积约509m²)
类双拼别墅(建筑面积约442m²)
联排别墅(建筑面积约409m²-425m²)

露香园售楼处电话:400-8377-020

露香园售楼处电话:400-8377-020
产品信息:
均价:28万/㎡,1.08亿起
总户数:12户
层数:地上3层,地下1层
层高:1F3.6米(局部挑高7.2米),2F-3F3.6米,地下5.75米(挑高)
花园面积:407㎡花园约68㎡、509㎡花园约120㎡

露香园售楼处电话:400-8377-020
突破性的风貌典藏产品:
1.城市中心难得的类独栋、类双拼别墅,高效引入东西向采光;
2.风貌产品中臻贵的双挑空设计,客餐厅约7.2米挑空,地下室约5.2米挑空;
3.每户均为石库门风貌的新建建筑,按照现代人居理念打造,传承海派经典建筑符号和风貌。

露香园售楼处电话:400-8377-020
别墅户型赏析

露香园售楼处电话:400-8377-020

露香园售楼处电话:400-8377-020


露香园售楼处电话:400-8377-020


露香园售楼处电话:400-8377-020

露香园售楼处电话:400-8377-020
别墅装修设计图 (仅供参考)


露香园售楼处电话:400-8377-020

露香园售楼处电话:400-8377-020

露香园售楼处电话:400-8377-020

露香园售楼处电话:400-8377-020


露香园售楼处电话:400-8377-020
12套别墅一房一价表


露香园售楼处电话:400-8377-020
项目区位板块简介
去年可以说是豪宅大年,据CRIC数据统计,上半年总价2500万+豪宅成交超2025套,成交规模是近10年来最高。其中内环内共成交1567套,总成交套数和总成交金额量价都明显优于之前同期。市场对于高端居住的需求非常强劲!
当下拿起接力棒的,莫过于现在到来的风貌别墅热浪!
在上海,尤其是市区的核心地段,大平层和老洋房占据了豪宅市场。但风貌别墅的入市彻底改写了这一局面。超过30+的项目已经入市,或准备入市。市中心的钻石级地段、臻贵的风貌生态、世家的品质保障,无疑是金字塔尖客户能够在上海收获的宝贵资产!

露香园售楼处电话:400-8377-020
上海风貌别墅从产品分类来看,主要分为两类,一是纯风貌别墅,二是高层+风貌别墅。从区域来看,主要分布于黄浦、静安、杨浦、虹口等区域。其中,黄浦区的区位优势不言而喻!
黄浦区是上海唯一一个全境划入CAZ的区域,稳居城央一梯队。
外滩金融、老城厢地区和黄浦滨江汇聚于此,是见证上海历史和经济发展的“烫金地段”。
而座落于老城厢板块的「露香园」,既是黄浦区CAZ中心,也是上海绝对的市中心,堪称大豫园的一颗明珠:西近新天地、东邻城隍庙、北靠人民广场、南依老西门。

露香园售楼处电话:400-8377-020
2公里内涵盖人民广场、外滩、新天地、淮海路、陆家嘴等上海地标级商圈,一城繁华尽收囊中;未来,露香园外部借由黄浦“蓝绿丝带”规划,西接新天地,中部贯穿“大豫园片区”,东联外滩滨江地区。

露香园售楼处电话:400-8377-020
可谓享尽荣华、取宁一隅。项目自带城市级高端商业和人文艺术公共服务配套,可辐射周边及整个中心城区。无可复制的地理占位,无疑是城市永恒的核心资产。

露香园售楼处电话:400-8377-020
项目产品及特色介绍
回归产品本身,露香园二期更是傲视群雄!本身作为上海城市更新风貌别墅,石库门建筑早已超脱于老上海人的记忆,更是见证了近代中国历史变迁的宝贵人文遗产。
石库门建筑早在时代变迁和改造中日渐稀少,但露香园二期完整保留了石库门风貌底蕴、历史街坊的主弄支弄空间尺度、立面建筑高度、檐口高度、立面竖向比例,延续原有风貌,打造出纯粹的海派人居体验。
建筑设计又进一步融合历史风貌与现代奢华,传承青砖、红砖、斩假石、元宝缝等海派经典建筑符号,复刻洋洋大观的建筑形态风貌。

露香园售楼处电话:400-8377-020
这,不单单是重现历史街巷,更是复兴里弄文化的起点。
12席建筑面积约406㎡-538㎡风貌别墅,如此纯粹大面积的别墅规划在风貌市场实属难得。
而且二期别墅还是城市中心难得的类独栋、类双拼产品。
许多城市核心地段的低密度联排产品大多面临被高层住宅和商业大厦环绕的阴影:采光视野均受限,但露香园的别墅高效引入东西向采光,配以有天有地的私享庭院,围合一方静谧的城央宅邸,是远离喧嚣、闹中取静的理想之地。

露香园售楼处电话:400-8377-020
露香园是上海首个成片开发的历史风貌保护区更新成功案例,二期别墅无论是地段,还是设计,都堆砌了城市级资源。现今成熟的周边商圈,未来丰富的商业配套,过往黄金般的历史人文沉淀,都是上海市中心无可复制的代名词。

露香园售楼处电话:400-8377-020
作为 上海的绝对市心, 露香园直线距离人民广场、淮海路、外滩、豫园等上海市地标性区域均不超过1.5公里,距离陆家嘴直线约2公里。
得天独厚的地段,使得从露香园出发,可以轻松到达如新天地、外滩、淮海路、南京路步行街等各大地标性商圈!

露香园售楼处电话:400-8377-020
商业方面:露香园的商业分布以大境路作为轴线,东西两侧分为东境与西境,北侧沿着河南路延伸至豫园站上盖的艺荟Galleria,南侧则延伸至拥有众多历史文化遗存的露香池与修慈广场。

沿露香园路另一侧正在复建中的 “露香池”及 “慈修广场”附近区域将定位于米其林、黑珍珠餐饮集合及具有海派烟火特点的珍馐美馔,打造类似于新天地与大慈寺太古里的独特商业街区。

露香园售楼处电话:400-8377-020
地铁方面:项目紧邻地铁10号线/14号线(豫园站),周边1公里以内还有1号线、2号线、8号线等地铁换乘枢纽。
自驾方面:北临淮海路和延安路高架,东临河南路,南临复兴路,西临西藏路和南北高架,自驾出行非常便捷;
同时,直线两公里以内环伺四条隧道,分别是:人民路隧道、延安路隧道、外滩隧道以及复兴路隧道。

露香园售楼处电话:400-8377-020
教育方面:露香园·天誉近邻上海实验小学和上海敬业中学。
上海市实验小学,1977年被确定为全国重点小学,也是国家教育部在上海的唯一一所部属重点小学。
敬业中学,是上海地区办学历史最为悠久的百年名校,为上海市实验性示范性高中。(新房不承诺学区,以教育部门公示为准)

露香园售楼处电话:400-8377-020
医疗方面:露香园·天誉周边2公里以内有瑞金医院、曙光医院、仁济医院(西院)、长征医院等三甲医院环绕。

露香园售楼处电话:400-8377-020
露香园AROMA风貌别墅
黄浦核心区低密传世大宅
「露香园」
推出建面约406-509㎡联排/独栋
总价约1.08-1.56亿
最后几席 实景现房!!
目前“样板间”已开放