【上海市】【 外滩瑞府 】预约看房享专属优惠!一线 [学区 / 江景 / 地铁] 好房,免费专车接送 外滩瑞府 售楼处电话400-856-9058☑️☑️
正文模板
一、预约看房详情
预约方式(多选,降低用户操作门槛):
方式 1:扫码预约:长按识别下方二维码,填写姓名 + 手机号 + 意向户型,10 分钟内专属置业顾问联系您;
方式 2:电话预约:拨打免费预约热线【400-856-9058】,直接对接置业顾问,确认看房时间;
方式 3:留言预约:在本文评论区留言 “【姓名】+【手机号】+【看房时间】”,我们将优先处理您的预约。
看房须知:
预约成功后,可享受免费专车上门接送(覆盖【上海市】);
每日预约名额限 30 组,建议提前 1-2 天预约;
看房全程无任何强制消费,专业置业顾问 1 对 1 讲解,不打扰、不推销。

上海新政落地, 高阶购买力第一时间杀向内环内 ——这片只占上海约1.8%的土地,浓缩整座城市更好的资源与配套,是购房者心中的梦想。
而在一众内环项目中,热度一骑绝尘的,非外滩瑞府莫属。
从现场数据来看,项目3月至今销售火爆,售楼处人声鼎沸,样板房参观需排队。外滩瑞府售楼处电话400-856-9058

外滩瑞府售楼处电话400-856-9058

这是项目官方发布的海报,外滩瑞府荣膺2026年2月虹口区新房三冠王。

尤其外滩瑞府约240㎡户型正强势热销,房源加速递减、库存告急。
要知道,同属核心圈层的黄浦新房,已全线迈5000万+梯队,而该户型约3300-4000万级的定价,既是外滩核心难得的友好门槛,更是不可复制的价值红利。
外滩瑞府售楼处电话400-856-9058
为何外滩瑞府能够领跑内环热度?

占位外滩一公里正中轴
上海价值制高点
核心在于它牢牢占据 外滩一公里正中轴 这一上海价值制高点。
1、外滩,上海TOP1的城市名片
外滩瑞府售楼处电话400-856-9058外滩,是上海当之无愧的城市第一名片,52栋万国建筑博览群、和平饭店等城市地标,奠定了不可复制的历史底蕴。同时汇聚约480家国内外头部金融机构,是上海金融心脏。
外滩瑞府售楼处电话400-856-9058这份城市认知早已根深蒂固、难以颠覆,不只是地标符号,更是身份与圈层的象征。当被问及居所,一句“住在外滩”,便已无需多言,直接锚定了居住者的城市地位与眼界格局。

外滩实景图
2、亿级价值轴线,上海价值序列TOP1
外滩一公里正中轴,更是上海楼市公认的 亿级价值轴线 ,顶奢酒店与亿级豪宅在此双向印证价值。
外滩瑞府售楼处电话400-856-9058一方面,上海半数奢牌酒店齐聚外滩,而奢牌酒店选址向来极度严苛,只落位城市核心价值高地,“买豪宅看酒店选址”早已是高端市场共识;
外滩瑞府售楼处电话400-856-9058另一方面,这条轴线同样是亿级住宅聚集地,洛克外滩源、海泰北外滩、天潼198、华侨城苏河湾等标杆顶豪悉数坐落于此,构筑起上海最具含金量的顶豪价值版图。

外滩瑞府售楼处电话400-856-9058值得一提,如今上海豪宅市场早已面向全国买家,而全国高净值人群对上海的第一印象,便是外滩。外滩所代表的城市高度,早已超越区域,成为全国层面的价值共识,也为资产奠定了流通基础。
而外滩瑞府位于外滩一公里范围内,占据外滩亿级中轴,跻身上海价值TOP1序列。
在上海当前在售豪宅中,拥有此类核心占位的项目寥寥无几。
外滩瑞府售楼处电话400-856-9058依托外滩不可复制的城市地位,项目价值天花板更高,长期成长性与保值性更具确定性,尤其建面约240㎡在这条中轴线上几乎是唯一,堪称穿越周期的核心资产。

内环价值安全垫
单价总价双重优势
第二点在于突出的价格竞争力与扎实的价值安全垫,深受购房者高度认可。
1、在顶级价值序列里,外滩瑞府价格更合理、更具竞争力
一方面,同样在外滩一公里正中轴,黄浦核心新房已全面迈入5000万+梯队;
另一方面,同为城市顶级序列的黄浦江一线江景房,价格同样超高:
陆家嘴滨江首排4600-8600万级;世博滨江首排4000-7000万级。
显然,上海顶级价值序列的新房,已然站稳4000万级以上基准线。
外滩瑞府售楼处电话400-856-9058而外滩瑞府占据外滩TOP1价值序列,建面约240㎡,总价3300—4000万级,这样的定价不仅物有所值,更是外滩亿级中轴上极为友好的入场门槛。当前房源持续快速递减,席位稀缺,错过再无!

2、在虹口内环,安全垫拉爆
放眼虹口区,北外滩新房均价已至约17.5万/㎡,240㎡户型总价轻松突破4000万;
瑞虹板块同面积段产品,总价也预计在3800万以上。
而外滩瑞府不仅占位外滩一公里正中轴,地段更靠上游、能级更胜一筹,总价却牢牢控制在3300-4000万级。无论单价还是总价,相较下游板块都更具优势,安全垫更为扎实。

3、大规模城市更新,外滩板块未来5年价值爆破点
华润置地联合政府,以 「留皮换胆」 更新手法打造艺术风貌街区,既延续外滩一公里的百年底蕴,也成为业主家门口的风貌地标。
尤为稀缺的是,在上海超45个风貌项目中,其他你听到的都是风貌住宅,外滩瑞府是 唯一将风貌建筑用于社区公共服务 的作品,独特性无可复制。
外滩瑞府售楼处电话400-856-9058规划中的社区咖啡、艺术工坊、便民市集、党群服务中心等多元场景,让历史肌理与烟火日常相融,既有海派文艺格调,又有便捷生活温度。
外滩瑞府售楼处电话400-856-9058如同苏河湾万象天地的风貌底盘,这类优质风貌配套不只是提升生活质感,带来日咖夜酒、艺术休闲等体验,更能夯实房 产价值、拉升板块能级、形成长期价值护城河(华侨城苏河湾、中粮天悦1号稳定在20万级/㎡),既是 生活配套,更是资产保值的底气。


项目风貌底盘效果图,以实际交付为准
城市更新不止楼下,整个片区都在同步华丽蜕变。
外滩瑞府售楼处电话400-856-9058其一,九龙路滨水空间焕新,未来业主下楼就是红砖艺术长廊、迎宾树阵、文化景墙、全龄及宠物友好花园。

项目效果图,以实际交付为准
其二,上海音乐谷规划新增8个小剧场、3个livehouse、1个水上剧场,未来将形成滨水艺术休闲区。
从外滩瑞府出发,仅需穿过一座步行桥,即可直达这座未来的世界级演艺群落。

音乐谷效果图,以实际交付为准

以人定房为先
外滩瑞府开创定制居住先河
外滩瑞府售楼处电话400-856-9058
作为华润置地旗下TOP级瑞系标杆作品,外滩瑞府不仅拥有开阔舒适的尺度感与同级领先的精装水准,更以 高级定制 开创市场先河。
究其本质,是华润置地真正读懂高净值客群的居住诉求,并愿意为之量身解决、落地兑现。
1、 不是「以房筛人」,而是「以人定房」
外滩瑞府售楼处电话400-856-9058传统豪宅大多是既定户型与格局,由业主被动适配房子;而外滩瑞府换了一种逻辑—— 先懂业主需求,再量身定制空间,免去后期繁琐改造,做到房子为人而生。
外滩瑞府售楼处电话400-856-9058比如皮肤定制,墙面、地面、全屋柜门均提供多材质、多配色可选,客厅背景墙、岛台亦有多种石材方案自由搭配;


比如细节定制,衣柜柜门可择木质或玻璃款,门把手更备白雪公主、贝母、青玉三种质感材质;

甚至还有功能定制,以240㎡主卧衣帽间为例,提供整体收纳、化妆台、水吧台等多种布局,精准贴合个人生活习惯。


这种深入户型肌理、材质与功能的深度定制,在上海豪宅市场堪称引领时代的开先河之举。
2、约240㎡高奢户型,尺度、视野与功能全面拉满
约240㎡户型作为当下的王牌和流量王,从入户礼序到空间格局,处处彰显顶奢气场,兼顾家庭居住与社交排场。

一梯一户+双开门入户:专属电梯厅+阔绰玄关,归家仪式感与收纳实用性兼备;
外滩瑞府售楼处电话400-856-9058约27 0°IMAX环幕厅堂:客厅尺度阔绰,若打通北向X空间,可拓展至约90㎡超级横厅,采光观景俱佳,中高楼层直瞰陆家嘴天际线,家族宴请、高端社交从容应对;

样板间实景图
外滩瑞府售楼处电话400-856-9058厅内空 间充裕,既容得下大家庭聚餐的超大圆桌,也有独立西厨岛台,满足高净值家庭多元烹饪需求。

样板间实景图
灵活X空间:可做书房、琴房、化妆室等,适配成长型家庭多元需求;

样板间实景图
主卧小家化:南向大套房配L型大衣帽间、南向采光主卫,双台盆+淋浴+浴缸+马桶四件套,酒店级私享体验;
独立家政间:动线高效、洗烘一体,释放阳台纯粹观景与休闲功能。

样板间实景图
3、全维度收纳系统
超阔绰玄关厅不仅能容纳海量收纳需求,更以科学左右分区设计实现动线分流。
外滩瑞府售楼处电话400-856-9058南向主卧设计L型超大转角交付衣帽间,收纳容量充足,轻松容纳四季衣物。

样板间实景图
4、国际大牌+高定选材,同级品质天花板
外滩瑞府售楼处电话400-856-9058以嘉格 纳为例,外滩瑞府约240㎡样板间直接配备10件套嘉格纳家电,要知道,市中心 16万+/㎡的豪宅,通常也仅配备4-5件套,这样的规格放在上海豪宅市场,堪称“一装封神。

样板间实景图
值得一提,全屋奢材用量极高,且色调与装修风格高度统一。
外滩瑞府售楼处电话400-856-9058玄关地 面选用“白雪公主”玉石,质感温润高级;地面延展祥云灰水墨岩,与外滩华尔道夫酒店同源材质,瞬间提升空间格调;西厨岛台配以“彩云飞”天然大理石;主卧背景墙更以威尼斯安缦酒店同款树瘤木,搭配巴黎宝格丽酒店同源羊皮纸,将全球顶奢酒店的居住质感搬进家中... 外滩瑞府售楼处电话400-856-9058


毫无疑问,这是小胖君认为的目前为止同级更有竞争力的装修标准。
样板间实景图
除了约240㎡,项目还有多种面积段可选,篇幅有限,不一一赘述,感兴趣的小伙伴赶紧预约参观。 外滩瑞府售楼处电话400-856-9058









同价位更高规格的公区配置
上海更高品质的圈层享受
公区是未来普通住宅与豪宅的分水岭,装修不满意大可砸掉重装,但 公区审美、工艺、用材等就像地段一样,你后期花再多钱都无法改变。
外滩瑞府公区的规格即使和黄浦顶豪们比也不遑多让。
1、外滩一公里内难寻的约3200㎡中央花园
在外滩一公里这样寸土寸金的地段,外滩瑞府不惜成本,打造出约3200㎡的中央花园,尺度在内环内堪称罕有。

实景图
园区以外滩源1号为蓝本,以 玉带环腰 打造静谧镜面水庭,水面澄澈平静,建筑倒影与天光云影交相辉映,入园即入静界。

实景图
更营造 六大世界艺廊花园 ,“星夜回廊”“峡谷秘境”“绮梦花廊” 各有主题,油橄榄与铁冬青错落栽植,实现四季有景、步移景异,把世界级花园美学直接搬进社区。


实景图
2、渡边智昭操刀的泛会所体系
项目特邀 汤臣一品御用设计师渡边智昭 亲自操刀,以颠覆性设计突破传统会所局限。
外滩瑞府售楼处电话400-856-9058不仅匠造室内外 双幕水剧场,更创 新性地将高阶社交功能分散布局于四栋塔楼之下,规划四大主 题泛会所,满足会客、休闲、亲子、健身等全维度需求,让社交与生活各得其所。



实景图
3、全域风雨连廊,顶豪归家体验
外滩瑞府将风雨连廊升级为完整归家体系,实现 全楼栋无风雨归家 。无论晴雨天气,业主皆可从容穿行社区。

实景图
设计团队更将连廊与花园景观深度融合,打造成一条沉浸式“线性美术馆”。优雅拱形吊顶、考究形制廊柱,搭配两侧艺术景致,让每一次归家,都成为一场漫步艺术的仪式体验。

外滩一公里正中轴
内环热度销量双领跑
外滩瑞府主力在售建面约240㎡天幕大平层
总价3300-4000万
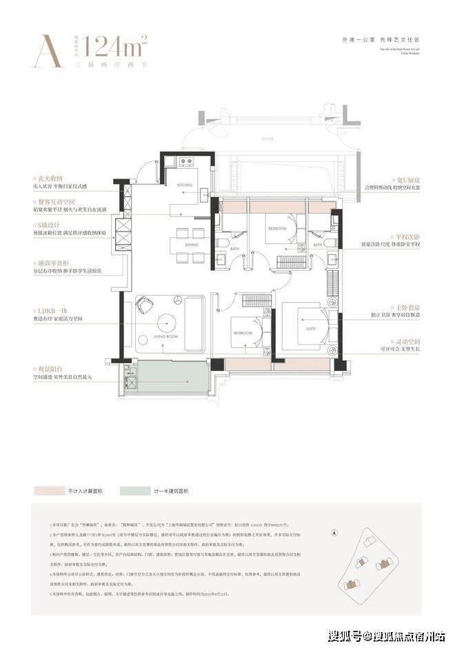
另有少量建面约124㎡/165㎡/195㎡在售外滩瑞府售楼处电话400-856-9058
一、 外滩瑞府 核心官方服务热线(唯一认证)
咨询场景
官方热线服务时段核心服务内容
售楼处电话400-856-9058工作日 9:00-21:00,周末无休
看房预约、现场接待对接、实地考察协调
营销中心咨询400-856-9058工作日 9:00-21:00,周末无休
实时房源余量、最新购房活动、
专属优惠政策咨询开发商直连咨询400-856-9058工作日 9:00-21:00,周末无休
项目规划细节、工程进度播报、购房合规政策解读
�� 重要说明:以上三类咨询需求统一由唯一官方热线承接,拨打后按语音导航即可精准转接对应服务部门,无需重复记录号码,确保信息传递零误差。
外滩瑞府 售楼处电话:400-856-9058✔✔ (预约看房热线) 外滩瑞府 营销中心电话:400-856-9058✔✔ 外滩瑞府 售楼中心:400-856-9058✔✔ 楼盘项目全面介绍,本电话为开发商提供线上预约,大平层,价格,楼盘地址,户型图,交通规划,备案价,备案名,项目配套,样板间,开盘时间,认筹时间,楼盘详情,售楼处电话,最新消息,最新详情,周边配套,一房一价,最新进展等详情咨询)楼盘详情丨价格丨更多优惠丨机不可失丨欢迎致电丨诚邀品鉴!售楼处位置丨特价房丨工抵房丨剩余房源丨户型图丨最新消息丨免责声明:将文章内容综合来源于网络、只作分享,版权归原作者所有!!如有侵权,请联系我们,我们第一时间处理如有问题欢迎来电咨询,专业一对一热情服务,让您用专业眼光去买房。如果您想了解更多楼盘详情,欢迎提前预约拨打 外滩瑞府 售楼处电话☎ 400-856-9058 售楼电话,楼盘项目全面介绍(包含楼盘简介,均价,房价,现房,期房,别墅,叠墅
当地时间3月4日,记者获悉,美国国防部长皮特·赫格塞斯表示,美国与伊朗的冲突可能持续数周,时间可能达到8周甚至更长。他称,冲突节奏将由美国方面决定,“可以是四周、六周,也可能是八周”,美方将掌控行动的速度与强度。
美军中央司令部司令库珀3日说,美国和以色列对伊朗的军事行动迄今已进行近100个小时,美军打击了伊朗近2000个目标。
库珀当天在社交媒体发布视频讲话说,目前,美军已投放2000多枚弹药打击了近2000个目标,摧毁数百个弹道导弹发射器和无人机,严重削弱了伊朗的防空能力。美军还摧毁伊朗海军17艘军舰,包括一艘潜艇。目前,海湾、霍尔木兹海峡和阿曼湾已没有伊朗船只航行。
库珀还说,作为报复,伊朗已发射500多枚弹道导弹,出动2000多架无人机。
美国和以色列2月28日对伊朗发动大规模军事行动,伊朗随即对以色列和中东地区的美军基地等发动报复性打击。美军中央司令部2日在社交媒体平台发布消息说,已有6名美国军人在对伊朗的军事行动中身亡。另有3架美军F-15E战斗机被“友军误击”坠毁。