☑️☑️上海壹号院售楼处电话:400-8377-020☑️☑️黄浦核心老城厢
全新烫金豪宅
【上海壹号院】风貌别墅
风貌别墅面积:250-900平㎡
主力户型350-600㎡
均价约30万/㎡
总价预计6000万-3亿
样板房已经开放预约
首开38套 先到先得 欢迎预约
☑️☑️上海壹号院售楼处电话:400-8377-020☑️☑️

☑️☑️上海壹号院售楼处电话:400-8377-020☑️☑️
上海壹号院风貌别墅
首批次推出38席
房源位于01 ,02, 03 组团区域
建面约250至900平风貌院墅
近期首次开放两套样板间
样板间约为370㎡和590㎡的两个户型

☑️☑️上海壹号院售楼处电话:400-8377-020☑️☑️
—— 预约看房 ——
☑️☑️上海壹号院售楼处电话:400-8377-020☑️☑️

☑️☑️上海壹号院售楼处电话:400-8377-020☑️☑️

01
项目信息
【上海壹号院】位于中华路以东、方浜中路以南、松雪街以西、复兴东路以北,是老黄浦区508-514街坊(亚龙地块)旧城区改造项目。前期高层已售罄,接下来主推风貌别墅。

☑️☑️上海壹号院售楼处电话:400-8377-020☑️☑️
设计方案如下:

☑️☑️上海壹号院售楼处电话:400-8377-020☑️☑️

根据规划,项目总建筑面积约23万方,由6栋14-37层的高层住宅、部分改建保留的联排别墅、合院别墅以及部分配套用房组成。

方案中规划的昼锦路目前还未东延至此,未来建成后,项目内将开辟昼锦路和方浜中路之间的公共绿地以及城市开放空间,着力打造成富有海派文化底蕴的历史风貌保护和城市更新经典片区。

☑️☑️上海壹号院售楼处电话:400-8377-020☑️☑️
项目主要分两个地块,西区地块主打新建高层住宅,总计六幢,其中包含了4套保留改建的别墅产品。


☑️☑️上海壹号院售楼处电话:400-8377-020☑️☑️

☑️☑️上海壹号院售楼处电话:400-8377-020☑️☑️
北区地块区域主打保留建筑,基本为2-3F的联排和合院。


☑️☑️上海壹号院售楼处电话:400-8377-020☑️☑️

02
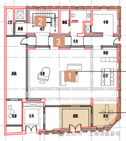
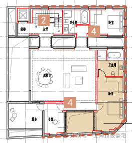
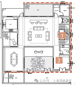
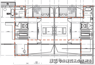
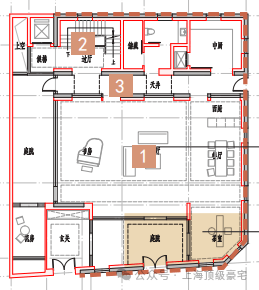
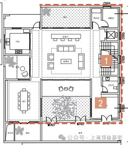
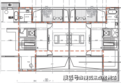
合院户型图
(户型图仅供参考,具体以开发商公示为准)

☑️☑️上海壹号院售楼处电话:400-8377-020☑️☑️

☑️☑️上海壹号院售楼处电话:400-8377-020☑️☑️
部分保留历史建筑的户型平面图👇
(双击可查看大图)
一层

☑️☑️上海壹号院售楼处电话:400-8377-020☑️☑️
二层

☑️☑️上海壹号院售楼处电话:400-8377-020☑️☑️
一层

二层

一层

二层

一层

☑️☑️上海壹号院售楼处电话:400-8377-020☑️☑️
二层

一层

二层

☑️☑️上海壹号院售楼处电话:400-8377-020☑️☑️
一层

二层

☑️☑️上海壹号院售楼处电话:400-8377-020☑️☑️
三层

一层

二层

☑️☑️上海壹号院售楼处电话:400-8377-020☑️☑️
三层

一层平面图

二层平面图

☑️☑️上海壹号院售楼处电话:400-8377-020☑️☑️


☑️☑️上海壹号院售楼处电话:400-8377-020☑️☑️
—— 预约看房 ——
☑️☑️上海壹号院售楼处电话:400-8377-020☑️☑️
上海壹号院风貌别墅
【体量】151套风貌
【本批次】第一批次,38套,分3个组团
【类型】纯合院风貌(毛坯交付)
【面积】250平-900平(主力户型350--600)
【均价】30万+,套均过亿
【户型】每套不同,107个户型(1字型、回字形、C字形、L型、H型……)
【风格】江南园邸、现代主义、街店式、近代装饰……多类型供选择
【层高】3.9/3.6/3.6(大户型为主) 3.6/3.3/3.3(小户型为主)
【赠送】花园、阳台、双露台、大面积地下室、阁楼闷顶高度不一
【巷道】组团,支巷道3米-4.5米
【物业】融创(暂定地上19.8元,地下10元,会所额外收费)
【交房时间】预计2027年12月
上海壹号院的风貌,根据目前仅有的资料,改良了很多:
1. 分支巷道拓宽至3-4米,诸多项目还停留在1-2米;
2. 阳台和露台用格栅确保私密性和开阔性,防止对视;
3. 立体住宅,分层内嵌,采光差的首次开创房子内部做天井,确保全户型全明、每个角落有光
4. 上海风貌层高最高的产品,很多户型层高:地下6.1米,一层3.9米,二层3.6米,三层3.6米
5. 外小内大,保护大户型隐私和品质;
☑️☑️上海壹号院售楼处电话:400-8377-020☑️☑️
6. 很多户型双露台,大户型2-4个花园
7. 壹号院一贯作风,外部点状承重,设计多样性
1) 层高惊艳,上海风貌目前基本都是3.6/3.3/3.3(当然壹号院也有部分是这种层高的),壹号院风貌面积大一点很多都是3.9米的层高,3.9/3.6/3.6,这个配置目前属顶配,地下室也是挑高6.1米,整体空间感尺度不错的;
2) 天井设计,这是上海风貌的首次尝试,部分户型为了达到每一层、每个功能间有好的光线,在整个房子内部,做个采光天井,虽然没看到实地,但还是震撼到了我;
3) 巷道不错,分支巷道能做到3-4.5米,间距可以的。

☑️☑️上海壹号院售楼处电话:400-8377-020☑️☑️


☑️☑️上海壹号院售楼处电话:400-8377-020☑️☑️


☑️☑️上海壹号院售楼处电话:400-8377-020☑️☑️



☑️☑️上海壹号院售楼处电话:400-8377-020☑️☑️
☑️☑️上海壹号院售楼处电话:400-8377-020☑️☑️

☑️☑️上海壹号院售楼处电话:400-8377-020☑️☑️
黄浦核心老城厢
全新烫金豪宅
【上海壹号院】风貌别墅
风貌别墅面积:250-900平㎡
主力户型350-600㎡
均价约30万/㎡
总价预计6000万-3亿
样板房已经开放预约
首开38套 先到先得 欢迎预约
黄浦核心老城厢
☑️☑️上海壹号院售楼处电话:400-8377-020☑️☑️
全新烫金豪宅
【上海壹号院】风貌别墅
风貌别墅面积:250-900平㎡
主力户型350-600㎡
均价约30万/㎡
总价预计6000万-3亿
样板房已经开放预约
首开38套 先到先得 欢迎预约

☑️☑️上海壹号院售楼处电话:400-8377-020☑️☑️
上海壹号院风貌别墅
首批次推出38席
房源位于01 ,02, 03 组团区域
建面约250至900平风貌院墅
近期首次开放两套样板间
样板间约为370㎡和590㎡的两个户型

☑️☑️上海壹号院售楼处电话:400-8377-020☑️☑️
—— 预约看房 ——
☑️☑️上海壹号院售楼处电话:400-8377-020☑️☑️


☑️☑️上海壹号院售楼处电话:400-8377-020☑️☑️
01
项目信息
【上海壹号院】位于中华路以东、方浜中路以南、松雪街以西、复兴东路以北,是老黄浦区508-514街坊(亚龙地块)旧城区改造项目。前期高层已售罄,接下来主推风貌别墅。

☑️☑️上海壹号院售楼处电话:400-8377-020☑️☑️
设计方案如下:


☑️☑️上海壹号院售楼处电话:400-8377-020☑️☑️
根据规划,项目总建筑面积约23万方,由6栋14-37层的高层住宅、部分改建保留的联排别墅、合院别墅以及部分配套用房组成。

☑️☑️上海壹号院售楼处电话:400-8377-020☑️☑️
方案中规划的昼锦路目前还未东延至此,未来建成后,项目内将开辟昼锦路和方浜中路之间的公共绿地以及城市开放空间,着力打造成富有海派文化底蕴的历史风貌保护和城市更新经典片区。

项目主要分两个地块,西区地块主打新建高层住宅,总计六幢,其中包含了4套保留改建的别墅产品。

☑️☑️上海壹号院售楼处电话:400-8377-020☑️☑️


北区地块区域主打保留建筑,基本为2-3F的联排和合院。

☑️☑️上海壹号院售楼处电话:400-8377-020☑️☑️


☑️☑️上海壹号院售楼处电话:400-8377-020☑️☑️
02
合院户型图
(户型图仅供参考,具体以开发商公示为准)

☑️☑️上海壹号院售楼处电话:400-8377-020☑️☑️

☑️☑️上海壹号院售楼处电话:400-8377-020☑️☑️
部分保留历史建筑的户型平面图👇
(双击可查看大图)
一层

二层

一层

☑️☑️上海壹号院售楼处电话:400-8377-020☑️☑️
二层

☑️☑️上海壹号院售楼处电话:400-8377-020☑️☑️
一层

二层

☑️☑️上海壹号院售楼处电话:400-8377-020☑️☑️
一层

二层

一层

☑️☑️上海壹号院售楼处电话:400-8377-020☑️☑️
二层

一层

☑️☑️上海壹号院售楼处电话:400-8377-020☑️☑️
二层

三层

☑️☑️上海壹号院售楼处电话:400-8377-020☑️☑️
一层

二层

☑️☑️上海壹号院售楼处电话:400-8377-020☑️☑️
三层

一层平面图

二层平面图

☑️☑️上海壹号院售楼处电话:400-8377-020☑️☑️


☑️☑️上海壹号院售楼处电话:400-8377-020☑️☑️
—— 预约看房 ——
☑️☑️上海壹号院售楼处电话:400-8377-020☑️☑️
上海壹号院风貌别墅
【体量】151套风貌
【本批次】第一批次,38套,分3个组团
【类型】纯合院风貌(毛坯交付)
【面积】250平-900平(主力户型350--600)
【均价】30万+,套均过亿
【户型】每套不同,107个户型(1字型、回字形、C字形、L型、H型……)
【风格】江南园邸、现代主义、街店式、近代装饰……多类型供选择
【层高】3.9/3.6/3.6(大户型为主) 3.6/3.3/3.3(小户型为主)
【赠送】花园、阳台、双露台、大面积地下室、阁楼闷顶高度不一
【巷道】组团,支巷道3米-4.5米
【物业】融创(暂定地上19.8元,地下10元,会所额外收费)
【交房时间】预计2027年12月
上海壹号院的风貌,根据目前仅有的资料,改良了很多:
1. 分支巷道拓宽至3-4米,诸多项目还停留在1-2米;
2. 阳台和露台用格栅确保私密性和开阔性,防止对视;
3. 立体住宅,分层内嵌,采光差的首次开创房子内部做天井,确保全户型全明、每个角落有光
4. 上海风貌层高最高的产品,很多户型层高:地下6.1米,一层3.9米,二层3.6米,三层3.6米
5. 外小内大,保护大户型隐私和品质;
☑️☑️上海壹号院售楼处电话:400-8377-020☑️☑️
6. 很多户型双露台,大户型2-4个花园
7. 壹号院一贯作风,外部点状承重,设计多样性
1) 层高惊艳,上海风貌目前基本都是3.6/3.3/3.3(当然壹号院也有部分是这种层高的),壹号院风貌面积大一点很多都是3.9米的层高,3.9/3.6/3.6,这个配置目前属顶配,地下室也是挑高6.1米,整体空间感尺度不错的;
2) 天井设计,这是上海风貌的首次尝试,部分户型为了达到每一层、每个功能间有好的光线,在整个房子内部,做个采光天井,虽然没看到实地,但还是震撼到了我;
3) 巷道不错,分支巷道能做到3-4.5米,间距可以的。
☑️☑️上海壹号院售楼处电话:400-8377-020☑️☑️

☑️☑️上海壹号院售楼处电话:400-8377-020☑️☑️


☑️☑️上海壹号院售楼处电话:400-8377-020☑️☑️


☑️☑️上海壹号院售楼处电话:400-8377-020☑️☑️


☑️☑️上海壹号院售楼处电话:400-8377-020☑️☑️

☑️☑️上海壹号院售楼处电话:400-8377-020☑️☑️

☑️☑️上海壹号院售楼处电话:400-8377-020☑️☑️
黄浦核心老城厢
全新烫金豪宅
【上海壹号院】风貌别墅
风貌别墅面积:250-900平㎡
主力户型350-600㎡
均价约30万/㎡
总价预计6000万-3亿
样板房已经开放预约