联仲都悦汇 (售楼处) 首页网站 - 联仲都悦汇销售中心电话 - 环境 - 户型 - 价格 - 地址 - 楼盘详情 - 配套 - 电话 - 交房时间 - 配套 - 楼盘百科
扫描到手机,新闻随时看
扫一扫,用手机看文章
更加方便分享给朋友
在售户型:建面约310-410平米,地上三层地下一层✅✅联仲都悦汇售楼处电话:400 - 882 - 4258✅✅
(地上:一层层高3.6米/二层层高3.4米/三层层高3.4米/地下层高5.4米)
总价:约1400-1800万️
单价:约5万/平米
小区整体商业:10万方(在建)南北双花园90-300平✅✅联仲都悦汇售楼处电话:400 - 882 - 4258✅✅
水电:商水&商电,电1.3元/度,水6元/吨
产权车位:约30万左右✅✅联仲都悦汇售楼处电话:400 - 882 - 4258✅✅
约10.4米大面宽,面积达到55平✅✅联仲都悦汇售楼处电话:400 - 882 - 4258✅✅
送电梯,北进门,南花园,超大地下室
客厅7米落地窗,采光明亮,✅✅联仲都悦汇售楼处电话:400 - 882 - 4258✅✅尽显大气
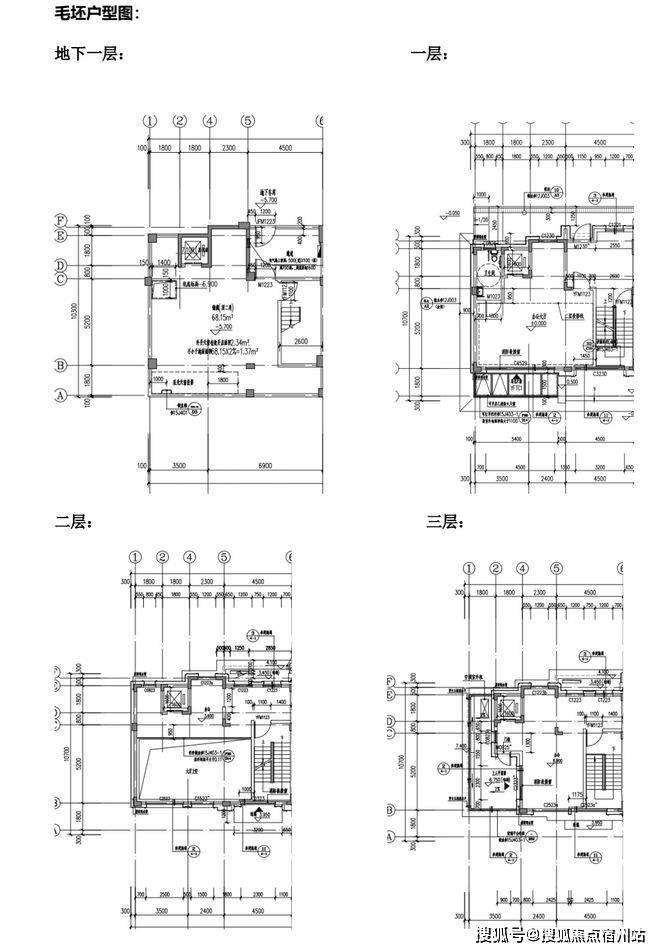
约310平户型图▼
约378~420平户型图▼✅✅联仲都悦汇售楼处电话:400 - 882 - 4258✅✅
约407~441平户型图▼✅✅联仲都悦汇售楼处电话:400 - 882 - 4258✅✅
【联仲·都悦汇】位于闵行马桥旗忠别墅区,✅✅联仲都悦汇售楼处电话:400 - 882 - 4258✅✅旗忠别墅区是上海老牌的富人区,与松江佘山、浦东东郊齐称为沪上三大国际别墅区。✅✅联仲都悦汇售楼处电话:400 - 882 - 4258✅✅上海仅存少量的容积率0.18以下超低密度居住用地中,大多数在马桥旗忠别墅区。
板块以低容积率、生态自然环境和高端国际品牌配置✅✅联仲都悦汇售楼处电话:400 - 882 - 4258✅✅,2010年被列为上海第二批大型居住社区之一。总建面约33万方城市综合体联仲都悦汇位于旗忠板块正核心,紧临网球中心,✅✅联仲都悦汇售楼处电话:400 - 882 - 4258✅✅超10万方市政绿化所环绕。
【联仲都悦汇】同样是低密度别墅区里的一员,✅✅联仲都悦汇售楼处电话:400 - 882 - 4258✅✅背靠绿城玫瑰园,容积率低至1.0。项目贯穿了3条自然水系,分为ABCD四个地块,其中ABC为商住办综合地块,自带商业办公。
交通配套方面:项目距离嘉闵高架元江路出口3公里,✅✅联仲都悦汇售楼处电话:400 - 882 - 4258✅✅毗邻G15、S32等快速主动脉,30分钟大虹桥,50分钟抵达浦东机场,快捷畅达全城。
地铁:5号线华宁路站,剑川路站
公交:马莘专线:联工路站,闵行19路:银春路华宁路站
高速:嘉闵高架、沪金高速、虹梅南路高架 沪昆高速✅✅联仲都悦汇售楼处电话:400 - 882 - 4258✅✅、申嘉湖高速、沪闵高架
高铁:距离上海虹桥枢纽站(高铁、机场)约20km
未来规划:嘉闵线延伸段
(以上数据来源于高德地图)
商业配套方面:项目自带10万方商业,为旗忠唯一的综合性商业配套,其多元化的业态结构,结合旗忠独有的资源,✅✅联仲都悦汇售楼处电话:400 - 882 - 4258✅✅必将带来旗忠全新生活方式。
✅✅联仲都悦汇售楼处电话:400 - 882 - 4258✅✅
✅✅联仲都悦汇售楼处电话:400 - 882 - 4258✅✅
生态资源方面:项目周边有马桥森林公园、✅✅联仲都悦汇售楼处电话:400 - 882 - 4258✅✅旗忠高尔夫球场、旗忠网球中心、韩湘水博园、养云安缦酒店等。
教育资源方面:周边有复旦万科实验学校,德威英国国际学校、斯代文森国际高中、上海美高学校。幼儿园:元祥幼儿园、✅✅联仲都悦汇售楼处电话:400 - 882 - 4258✅✅富杰幼儿园启英幼儿园,大学:上海交通大学、华东师范大学
✅✅联仲都悦汇售楼处电话:400 - 882 - 4258✅✅
✅✅联仲都悦汇售楼处电话:400 - 882 - 4258✅✅
✅✅联仲都悦汇售楼处电话:400 - 882 - 4258✅✅
✅✅联仲都悦汇售楼处电话:400 - 882 - 4258✅✅
9月以来,房地产市场活跃度有所提升,二手房市场呈现同比、环比双升态势,新房市场则呈现分化格局。作为全国楼市“风向标”,北京、上海、深圳等一线城市此前进一步调整优化楼市政策,为房地产市场带来积极预期,加速激发潜在需求。国庆中秋假期,核心城市优质项目保持了一定的热度,北京、上海、深圳等城市新房网签面积同比实现增长。党的二十届四中全会提出,推动房地产高质量发展。房地产市场未来将如何变化?
稳预期仍是关键
今年三季度以来,各地区各部门因城施策,继续出台政策推动房地产市场止跌回稳。据中指研究院监测,截至10月28日,今年有超200个省市县出台政策超510条。由于当前多数城市已放开限制性政策,政策优化频次有所放缓,三季度出台政策超120条,较二季度的175条有所降低。
从政策方向来看,中央及地方主要围绕城市更新、激活需求、优化供给、构建房地产发展新模式等方面释放积极信号并落地具体政策。
8月以来,北京、上海、深圳相继优化调整限购政策,蓄力“金九银十”。具体来看,北京符合条件的居民家庭,在五环外购房不限套数;上海符合条件的居民家庭在外环外购房不限套数,上海青浦区9月19日出台新政,明确社保或个税未满1年的非本市户籍家庭可通过人才绿色通道申报购房资格,放松本区符合条件人才的限购政策;深圳放宽限购区域,符合条件的居民家庭,在非核心区购房不限套数,社保或个税不满1年的非本市户籍居民家庭,在非核心区购房限购2套,盐田区、大鹏新区放开限购。同时,3个城市均明确成年单身人士按照居民家庭执行商品住房限购政策。
另外,上海、深圳明确在利率定价机制方面不再区分首套住房和二套住房,这也可以降低购房利息支出,降低购房成本。
业内专家预计,四季度政策将持续围绕稳定预期、激活需求、优化供给落实支持举措。
中指研究院华南分院研究主管陈雪强认为,预期直接影响购房者的消费意愿和企业的投资情绪,稳定预期是当前推动市场止跌回稳的关键,预计未来将有更多政策举措发力。北京、上海、深圳相继优化限制性政策后,政策仍具备优化空间,如进一步降低首付比例、优化人才限购等;各地预计在房贷利率、公积金贷款、购房补贴等方面继续加大优化力度;加大“房票安置”力度推进城中村改造,释放增量购房需求,也是各地持续落实需求端政策的重要方向。
交易活跃度提升
随着北京、上海、深圳等城市限购松绑,9月重点城市市场活跃度较8月有所提升,传统“金九”热度显现。
中原地产数据显示,9月,北京二手住宅网签15629套,同比上涨17.7%,环比上涨17.2%,创6个月以来新高;新房住宅网签3464套,同比上涨7.04%,环比上涨10.49%。上海二手房网签成交量20389套,环比上涨2.4%,同比上涨27.89%;新房网签成交面积54.5万平方米,环比增长35.9%,同比增长18.5%。深圳一手住宅网签3087套,环比上涨43.5%,同比上涨32.7%;二手住宅网签4546套,环比上涨8.9%,同比上涨42.5%。
不过,10月热度又有所下滑。麟评居住大数据研究院监测,10月(截至10月26日),重点城市二手房、新房成交量分别较去年同期下降25%、28.1%。
中原地产首席分析师张大伟认为,北京、上海、深圳均采用“分区域梯度放松”的限购策略,兼顾市场稳定与需求释放。当前楼市复苏仍处于“政策传导期”,9月数据已显现积极信号,但库存高企、信心不足等问题仍有待解决。从供给端看,上海、成都等城市9月新盘推盘量同比增长20%以上,高端改善性房源占比提升至60%,有望满足差异化需求。从需求端看,二手房“以价换量”仍将持续,核心城市挂牌量有望在2025年四季度保持基本平稳。
深圳贝壳研究院数据显示,深圳楼市新政落地第二周,深圳新房成交热点从“单点爆发”走向“多点开花”。新政落地第一周,贝壳深圳合作门店新房认购项目套均总价为364万元,新政落地第二周套均总价达到470万元,环比上涨29%。
“这一变化背后是消费者出于改善需求开始积极入市。”深圳贝壳研究院院长肖小平分析,新政明确房贷利率不再区分首套住房和二套住房,即购买二套住房也执行首套住房贷款利率3.05%,在这一政策驱动下,有改善需求的群体陆续入场,推动了整体需求向更高品质、更高总价的房源倾斜,最终带动了套均总价上涨。
在杭州,9月有40个项目入市,其中一半是首次开盘,且大多是主城区优质项目,“高端局”竞争激烈。“一线城市已先后放宽楼市限购,这股政策暖风也让市场对杭州后续的政策调整抱有一定期待。”杭州贝壳研究院院长上官剑说,不过,目前开发商推出的房源量较少,基本是小步快走的节奏,市场有一波小行情。
国庆中秋假期核心城市优质项目保持较高热度。“9月底开发商推盘节奏已有所加快,叠加国庆中秋期间房企促销力度加大,推出特价房源、赠送车位、家装补贴以及保价等一系列营销活动,核心城市或优质项目热度较节前有所回升。”中指研究院指数研究部总经理曹晶晶介绍。
✅✅联仲都悦汇售楼处电话:400 - 882 - 4258✅✅
声明:本文由入驻焦点开放平台的作者撰写,除焦点官方账号外,观点仅代表作者本人,不代表焦点立场。
