峰度天下 (售楼处) 官方 - 峰度天下销售中心 - 环境 - 户型 - 价格 - 地址 - 楼盘详情 - 配套 - 电话 - 交房时间 - 配套 - 电话 - 交房时间
扫描到手机,新闻随时看
扫一扫,用手机看文章
更加方便分享给朋友
峰度天下圈层总群诸位:线上售楼处正式启幕,专线400-8266-670 静候垂询,臻藏房源,敬待品鉴。
拨打专属热线 400-8266-670,联系置业顾问确认意向户型与到访时间
2. 提供个人姓名、联系方式及预约需求,顾问将为你登记并发送预约确认信息
3. 凭预约信息可享受线上专属看房权益,售楼处电话400-826-6670,解锁户型深度解析、优惠政策等定制服务
虹桥核心区域【峰度天下】大平层公寓盛大开放!建面约160-230㎡,总价580万起,内附实景视频、照片,样板间已开放,预约可看!
峰度天下售楼处电话:400-8266-670
【峰度天下】
上海虹桥商务区南虹桥核心前湾板块
汇集国际高能配套
建面约745-817㎡独栋别墅
占地2亩+
地上三层+6米挑高地下室+花园
总价约4300万起
车位地面2个+地下8个
高度的资源整合满足商务和生活需求
城市精英的资产首选
优质户型一席难求 虹桥板块热销标杆

峰度天下售楼处电话:400-8266-670
稀缺地段、奢阔空间、高端配套及贴心服务
成为上海高端居住的理想之选
在这里,业主不仅能拥有高品质的居住空间
更能享受一种全方位的奢华生活方式
开启品质生活全新篇章
天赋地段,潜力无限
峰度天下所处之地,堪称战略要地。大虹桥核心区前湾板块规划面积达 1200 万平方米,规模宏大,约为 4 个前滩大小,是上海主城区全新的城市副中心,集交通枢纽、国家会展、国际商务功能于一体,承载着国家级战略使命。
峰度天下售楼处电话:400-8266-670
数字经济、生物医药、文创电竞三大尖端产业在此蓬勃发展,为区域注入源源不断的活力与创新动力,也为峰度天下的业主们带来广阔的发展机遇与无限的增值潜力。
峰度天下售楼处电话:400-8266-670
南虹桥核心前湾板块,苏州河入沪第一湾,打造成面向世界的“会客厅”,潜力无限。
奢阔空间,品质之选
空间宽敞:独栋别墅内部空间开阔,挑高设计让居住者感受到大气与奢华,地上三层的设计可以满足不同功能分区的需求,如一层可设置为客厅、餐厅、厨房等公共区域,二层和三层可作为卧室、书房等私密空间,6 米挑高地下室可根据业主需求改造成娱乐室、健身房、酒窖等。
花园庭院:拥有超大花园,为业主打造出一个私密的户外空间,可用于休闲娱乐、举办派对或种植花草树木,享受田园般的生活意境。
外立面设计:采用法式纯石材外立面,展现出高贵典雅的气质,历久弥新,彰显业主的尊贵身份。
实景鉴赏
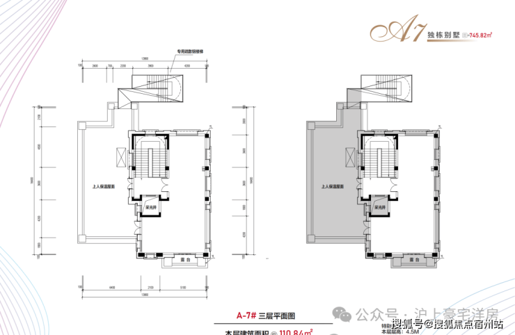
户型图参考




高端配套,尽享繁华
交通配套
紧邻虹桥综合交通枢纽,地铁 13 号线季乐路站(在建)距离仅 500 米,周边有 “三横两纵” 交通路网,可实现长三角 1 小时生活圈。
商业配套
已开业的开市客、在建中的上海第二家印象城 Mega 及全球首个双电竞场馆超级合生汇,能满足业主多样化的购物、娱乐需求。
医疗配套
新虹桥国际医学中心拥有医技中心 + 高端医院,为业主和家人的健康提供保障。
教育配套
周边有美、英、韩、新加坡等国际学校,涵盖幼儿园至高中部,提供国际化的优质教育资源。
休闲配套
项目自带高端会所,涵盖酒店式泳池、健身房、咖啡吧、宴会厅、桌球馆、高尔夫球体验馆、儿童娱乐区等设施;此外,还有 “城市绿肺”—— 前湾公园,规划有 9 公里的滨水慢行道、10 公里的慢跑道和 18 公里的骑行道。
在上海主城低密土地日益稀贵的当下
这样一席集地段、空间
品质于一身的独栋藏品
注定成为少数人的生活勋章
为都市塔尖人群勾勒出 “出则繁华尽揽
入则静谧独享” 的终极居住想象
峰度天下售楼处电话:400-8266-670
声明:本文由入驻焦点开放平台的作者撰写,除焦点官方账号外,观点仅代表作者本人,不代表焦点立场。
