招商时代乐章(营销中心)官方网站-招商时代乐章销售中心(售楼处)-招商时代乐章售楼处电话-电话地址-价格-户型-小区环境-楼盘详情-交房时间-周边配套
扫描到手机,新闻随时看
扫一扫,用手机看文章
更加方便分享给朋友
⭐上海招商・时代乐章 盛世启幕!诚邀全城购房者致电预约,售楼处官方热线全天候为你服务,解锁专属购房福利~
招商・时代乐章 售楼处官方电话:400-8266-670(立享优惠)✔✔✔
☎上海-招商・时代乐章 营销中心专线:400-8266-670(锁定房源·优先选房)★✅✅
24小时看房预约热线:400-8266-670(专属顾问·一对一解答)✔✔
7号线潘广路TOD「招商·时代乐章」「招商中旅·观境」,建面约89-144㎡3-4房热销中,400万级必看品质红盘!
招商·时代乐章售楼处电话400-8266-670✅✅✅
招商蛇口(股票代码:001979)招商·时代乐章售楼处电话400-8266-670✅✅✅属于招商局城市与园区综合开发板块的旗舰企业,企业愿景是成为中国领先的城市和园区综合开发运营服务商。
截至23年底,招商蛇口业务覆盖全球超百个城市和地区,在全国地产行业内综合实力跻身TOP5,招商蛇口2003 年进入上海,招商·时代乐章售楼处电话400-8266-670✅✅✅深耕上海21载,已打造精品项目60余个。
招商蛇口从2017年提出“重返上海”战略,招商·时代乐章售楼处电话400-8266-670✅✅✅到2021年提出“重返上海心”战略,招商·时代乐章售楼处电话400-8266-670✅✅✅招商蛇口上海公司在竞争日益加剧的上海楼市中相继打造了多维度品类的精品项目。
城市更新价值市中心风貌别墅项目--弘安里;
坐落市区核心地段的 7 座玺系高端项目--外滩玺、招商·时代乐章售楼处电话400-8266-670✅✅✅云玺、虹玺、天汇世纪玺、苏河玺、天汇玺、汇元玺;
代表时代青年璀璨生活的璀璨九子--招商虹桥璀璨时代、招商·时代乐章售楼处电话400-8266-670✅✅✅璀璨城市、招商璀璨公馆等
2021年,招商蛇口提出三个转变:
由开发为主转变为开发与经营并重
由重资产转变为轻重资产结合
由同质化竞争转变为差异化发展,大力发展商业运营管理与服务能力
继深圳海上世界、厦门海上世界后,招商·时代乐章售楼处电话400-8266-670✅✅✅打造上海海上世界、璀璨城市等项目,不断布局综合体项目,为城市发展赋能。
连续两年,持续蝉联上海房地产行业“全口径操盘金额、招商·时代乐章售楼处电话400-8266-670✅✅✅权益销售金额、操盘面积”TOP1。(数据来源克而瑞)
四大归家礼遇
酒店感仪式门头
环岛式尊崇落客
迎宾式花园设计
招商·时代乐章售楼处电话400-8266-670✅✅✅
都心自然岛屿
天然水岸玉带环绕,隔离尘嚣
繁星式楼栋布局,栋栋开阔视野
谧境浮屿立体园林,浮岛、水岸、山湖风格的乐园景观
架空层设计将邻里生活与室外风景完美链接
人居美学天际
全画幅开窗视野,质感生活代表
奢雅铝板立面,让建筑自然生长(立面部分材质为铝板装饰)
BLOCK式漫步街区 共创北上海微度假乐园
通过两横三纵⼀贯通设计,招商·时代乐章售楼处电话400-8266-670✅✅✅使街区与社区⽆缝链接,以多元场景与沉浸式的吸引力,招商·时代乐章售楼处电话400-8266-670✅✅✅为客户带来全天候的微度假体验感。
“微度假”线路:顾村公园-热店打卡-网红餐饮-触摸自然-livehoues,从清晨到日落,邂逅N种美好生活方式。
家门口的会客厅:城市中央⼴场等公共空间打造,城市⼼流汇聚的公共客厅,花园场景式商业街区,汇聚潮流所向,家门口的 CITYWALK 。
每位成员都很重要:以市集、宠物、社群、艺⽂展览、儿童活动区、运动区等运营活动,为家门口的附近⽣活点亮灵感,关爱每位家庭成员。
B地块「招商·时代乐章」↓招商·时代乐章售楼处电话400-8266-670✅✅✅
C地块「招商中旅·观境」↓招商·时代乐章售楼处电话400-8266-670✅✅✅
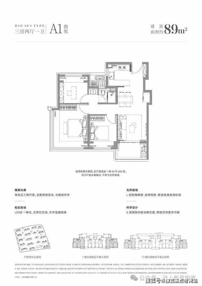
「招商·时代乐章」户型鉴赏↓招商·时代乐章售楼处电话400-8266-670✅✅✅
招商·时代乐章售楼处电话400-8266-670✅✅✅
「招商中旅·观境」户型鉴赏↓招商·时代乐章售楼处电话400-8266-670✅✅✅
占位北上海之心 新顾城核心板块
新顾城定位为上海北部产城相融合、配套高标准、宜居多元化的大型居住社区,以“一核一带四区两园”为框架,打造北上海宜居中心。
TOD 焕新宝山 再造生活新中心
招商时代乐章综合体,地处新顾城规划核心区域,比邻顾村公园,以33万方巨量规划,打造北上海潮流聚集地。
上海北城招商花园城X
作为招商蛇口规模化布局醇熟的产品线,“招商花园城”商业作品持续迭代,目前已布局超过二十座城市。在综合开发模式的引领下,招商以创造性与前瞻性构建“X+商业”模式,融合潮玩、时尚、文旅、游娱、运动、会展、生态等多元业态,向消费者提供更美好的生活体验。
国际大师操刀 共创宝山新一代商业综合体
⼒邀全球 TOD 综合设计⼤师 Beony 操⼑设计,规划约17.5万⽅超级体量,打造新一代商业综合体,更新北上海生活方式。
外立面以解构主义的模块穿插设计手法,打造北上海时尚生活坐标。
从日常生活出发,以故事感的室内设计,带来沉浸式的购物体验。
20+主次力店 共创城市奇幻之旅
潘广路TOD预计引入20+主次力店,在X+商业理念,塑造缤纷场景,创造多元体验,带你开启城市中的奇幻之旅。
人文x生态:超级场景 打卡多元体验
在家门口的“行万里路”:厦门海上世界将自然搬进室内,打造沉浸式空间,引入海洋馆、冰雪世界等IP场景赋能,商场旁的港口邮轮可随时远航,潮汐之眼摩天轮海上日出日落尽收眼底,打造出厦门最亮眼的人文生态场域。
亲子x科技:寓教于乐 探索成长乐趣
在家附近的游乐场:预计打造儿童品牌+亲子公区+数字科技的沉浸式场景,让商场亲子区成为消费者周末的第二个“家”。已开业的浦东森兰花园城,儿童乐园涵盖运动冒险、寓教于乐、儿童健康餐饮,已成为周末小朋友的欢乐聚集地。
潮流x热力:造梦剧场 引爆热力无限
Z世代展现的舞台:潮流与功能并存,全业态丰富日常生活,例如曹路花园城充分利用天台空间,潮流运动与松弛露营强强联合,主题互动空间将屋顶舒适度发挥到极致。
350+全球品牌 共创北上海商娱繁荣
5大灵感空间 共创北上海网红打卡地
以“在地文化基因+异域度假风情+主题场景”融合形式,打造五大灵感空间,为城市注入鲜活能量,打造北上海微度假乐园,满足精致白领打卡以及家庭花式遛娃。
时空晶球:别具匠心的时空晶球,连通室内与室外,驻足仰望,丢掉世俗烦恼。
梦幻森林:螺旋而上的生命之树,都市白领的自然能量充电站。
云境千屿:似繁花生长,似流水潺潺,云境漫步,重燃生活热爱。
踏梦繁花:数字传感地面,科技与艺术相互结合,夜晚由此繁花。
时光之门:融合科技与艺术的独特空间,叩响新一代商业世界之门。
交通配套
项目距7号线潘广路站直线约300米,2站换乘15号线。无缝直达普陀长风、静安寺、古北、上海南站、徐汇滨江以及紫竹高新等多个市区核芯板块。
同时,在远期规划中,宝嘉线也会在潘广路站设置站点。可以说,未来招商时代乐章出门两站后就有三轨交环伺,通勤覆盖市区的范围很广。自驾方面可上外环,出行便利。
商业配套
项目自有商业综合体,龙湖天街商业中心、正大乐城、宝龙广场、旭辉U天地
教育资源
华二宝山实验学校,宝山世界外国语学院、上海世外云尚欧莱幼儿园,另外,根据板块规划显示,在项目周边有规划一幅幼儿园、一幅小学以及一幅初中用地(新房不承诺学区,以政府教育主管部门的最新政策为准
医疗资源
地铁两站就是三甲医院复旦大学附属华山医院宝山院区
生态环境
家门口街角公园,随时随地公园漫步生活
约1.5公里菊盛公园,与城市公园时刻拥抱
约2.8公里直达顾村公园,国家级AAAA景区,自然生态氧吧、景观娱乐、休闲健身、旅游度假,都市罕有的大生态圈,上海短途露营微度假目的地
招商·时代乐章售楼处电话400-8266-670✅✅✅
声明:本文由入驻焦点开放平台的作者撰写,除焦点官方账号外,观点仅代表作者本人,不代表焦点立场。
