最新消息,送100w装修!闵行·商墅 联仲·都悦汇 约310-411㎡法式商
墅!总价约1420万~1800
闵行·旗忠别墅富人区
【联仲·都悦汇】
☑️☑️联仲·都悦汇售楼处电话:400-8377-020☑️☑️
建面310~411㎡商业联排别墅
法式干挂 地上三层 地下一层
带南北双花园90-300㎡
总价约:1420-1800万
实景现房 不限购 通燃气
☑️☑️联仲·都悦汇售楼处电话:400-8377-020☑️☑️
编辑

☑️☑️联仲·都悦汇售楼处电话:400-8377-020☑️☑️
编辑

☑️☑️联仲·都悦汇售楼处电话:400-8377-020☑️☑️
☑️☑️联仲·都悦汇售楼处电话:400-8377-020☑️☑️
感谢配合!
01.项目基本信息
【开发商】:上海联仲置业有限公司
【物业】:上海仲量联行物业管理公司
【容积率】:1.0
【绿化率】:35%
【车位比】:1:2.1
【物业费】:8元/㎡/月
【本次开盘】:14套
【物业类型】:商业联排别墅
【交付标准】:毛坯
【拿地时间】:2014年8月
【交房时间】:2023年6月
编辑

☑️☑️联仲·都悦汇售楼处电话:400-8377-020☑️☑️
在售户型:建面约310-410平米,地上三层地下一层
(地上:一层层高3.6米/二层层高3.4米/三层层高3.4米/地下层高5.4米)
总价:约1400-1800万️
单价:约5万/平米
小区整体商业:10万方(在建)南北双花园90-300平
水电:商水&商电,电1.3元/度,水6元/吨
☑️☑️联仲·都悦汇售楼处电话:400-8377-020☑️☑️
产权车位:约30万左右
编辑

☑️☑️联仲·都悦汇售楼处电话:400-8377-020☑️☑️
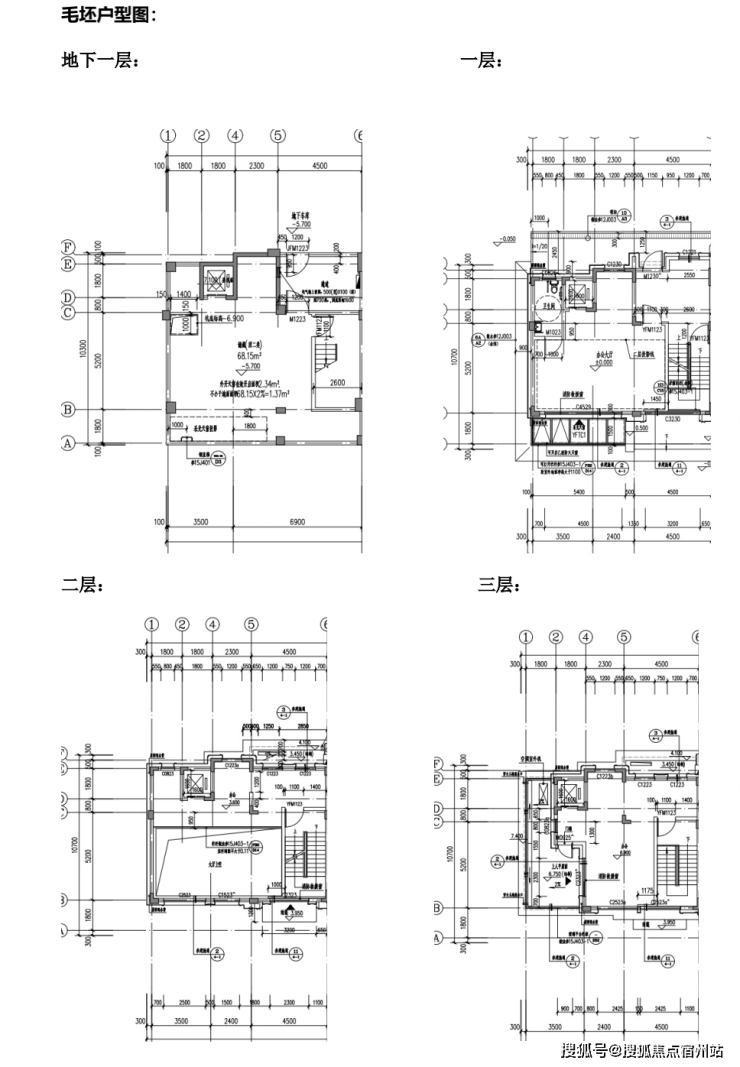
02.户型图及样板间照户
(特殊说明:户型朝向-上南下北)
约10.4米大面宽,面积达到55平
送电梯,北进门,南花园,超大地下室
客厅7米落地窗,采光明亮,尽显大气
约310平户型图▼
编辑

☑️☑️联仲·都悦汇售楼处电话:400-8377-020☑️☑️
约378~420平户型图▼
编辑

☑️☑️联仲·都悦汇售楼处电话:400-8377-020☑️☑️
约407~441平户型图▼
样板间效果图如下:
编辑

☑️☑️联仲·都悦汇售楼处电话:400-8377-020☑️☑️
编辑

编辑

☑️☑️联仲·都悦汇售楼处电话:400-8377-020☑️☑️
编辑

编辑

编辑

编辑

编辑

☑️☑️联仲·都悦汇售楼处电话:400-8377-020☑️☑️
编辑

编辑

☑️☑️联仲·都悦汇售楼处电话:400-8377-020☑️☑️
03.项目区位配套
【联仲·都悦汇】位于闵行马桥旗忠别墅区,旗忠别墅区是上海老牌的富人区,与松江佘山、浦东东郊齐称为沪上三大国际别墅区。上海仅存少量的容积率0.18以下超低密度居住用地中,大多数在马桥旗忠别墅区。
编辑

板块以低容积率、生态自然环境和高端国际品牌配置,2010年被列为上海第二批大型居住社区之一。总建面约33万方城市综合体联仲都悦汇位于旗忠板块正核心,紧临网球中心,超10万方市政绿化所环绕。
编辑

☑️☑️联仲·都悦汇售楼处电话:400-8377-020☑️☑️
【联仲都悦汇】同样是低密度别墅区里的一员,背靠绿城玫瑰园,容积率低至1.0。项目贯穿了3条自然水系,分为ABCD四个地块,其中ABC为商住办综合地块,自带商业办公。
编辑

☑️☑️联仲·都悦汇售楼处电话:400-8377-020☑️☑️
交通配套方面:项目距离嘉闵高架元江路出口3公里,毗邻G15、S32等快速主动脉,30分钟大虹桥,50分钟抵达浦东机场,快捷畅达全城。
编辑

地铁:5号线华宁路站,剑川路站
公交:马莘专线:联工路站,闵行19路:银春路华宁路站
高速:嘉闵高架、沪金高速、虹梅南路高架 沪昆高速、申嘉湖高速、沪闵高架
高铁:距离上海虹桥枢纽站(高铁、机场)约20km
未来规划:嘉闵线延伸段
(以上数据来源于高德地图)
编辑

☑️☑️联仲·都悦汇售楼处电话:400-8377-020☑️☑️
商业配套方面:项目自带10万方商业,为旗忠唯一的综合性商业配套,其多元化的业态结构,结合旗忠独有的资源,必将带来旗忠全新生活方式。
编辑

编辑

编辑

☑️☑️联仲·都悦汇售楼处电话:400-8377-020☑️☑️
生态资源方面:项目周边有马桥森林公园、旗忠高尔夫球场、旗忠网球中心、韩湘水博园、养云安缦酒店等。
教育资源方面:周边有复旦万科实验学校,德威英国国际学校、斯代文森国际高中、上海美高学校。 幼儿园:元祥幼儿园、富杰幼儿园启英幼儿园, 大学:上海交通大学、华东师范大学
闵行·旗忠别墅富人区
【联仲·都悦汇】
建面310~411㎡商业联排别墅
法式干挂 地上三层 地下一层
带南北双花园90-300㎡
总价约:1420-1800万
实景现房 不限购 通燃气
样板房示意图:
编辑

☑️☑️联仲·都悦汇售楼处电话:400-8377-020☑️☑️
编辑

编辑

☑️☑️联仲·都悦汇售楼处电话:400-8377-020☑️☑️
编辑

编辑

☑️☑️联仲·都悦汇售楼处电话:400-8377-020☑️☑️
编辑

编辑

☑️☑️联仲·都悦汇售楼处电话:400-8377-020☑️☑️
编辑

编辑

☑️☑️联仲·都悦汇售楼处电话:400-8377-020☑️☑️
项目实景图:
编辑

编辑

☑️☑️联仲·都悦汇售楼处电话:400-8377-020☑️☑️
编辑

1旗忠墅区“新贵”,容积率仅1.0
联仲都悦汇位于闵行马桥旗忠别墅区,旗忠别墅区是上海老牌的富人区,与松江佘山、浦东东郊齐称为沪上三大国际别墅区。 上海仅存少量的容积率0.18以下超低密度居住用地中,大多数在马桥旗忠别墅区。
编辑

板块以低容积率、生态自然环境和高端国际品牌配置,2010年被列为上海第二批大型居住社区之一。总建面约33万方城市综合体联仲都悦汇位于旗忠板块正核心,紧临网球中心,超10万方市政绿化所环绕。
编辑

联仲都悦汇同样是低密度别墅区里的一员,背靠绿城玫瑰园,容积率低至1.0。项目贯穿了3条自然水系,分为ABCD四个地块,其中ABC为商住办综合地块,自带商业办公。
编辑

☑️☑️联仲·都悦汇售楼处电话:400-8377-020☑️☑️
2 藏品级沿河大联排,仅60席!
项目共分成四个地块,A\B\C地块为商住办综合地块,A、B地块已售罄, 此次取证的是C地块,是三个住宅地块中位置更好的一个,与顶级酒店养云安缦一路之隔。
C地块吸收前期的一些经验优势,打造3.0升级版大联排,品质、材质全方位升级,也是联仲都悦汇住宅部分的收官之作。
编辑

☑️☑️联仲·都悦汇售楼处电话:400-8377-020☑️☑️
建筑延续现代法式风格,外立面全部采用干挂石材,选用更耐用、更美观的花岗岩,首次配备三玻两腔的门窗,更大程度的提升隔音、保温、隔热的效果。
小区入口前广场增加到580平米,给予业主们更尊崇的归家仪式感。
景观绿化结合艺术的氛围打造了“U”型游园路径,九重秘境花园串联全区,游览花园、中心绿化带绿地率均明显提升,品质感翻倍。
编辑

项目主推建面约262-305㎡联排别墅,分为南北入户,均为地上三层,地下两层设计,满足业主们“有天有地有花园”的别墅居住体验!
3 享低密居住环境+高能级配套
联仲都悦汇占位闵行旗忠别墅区核心位置,与周边亿级别墅共享优美环境&高能配套,出则繁华,入则静谧,是对日常生活精准的注解!
交通配套方面:项目距离嘉闵高架元江路出口3公里, 毗邻G15、S32等快速主动脉,30分钟大虹桥,50分钟抵达浦东机场,快捷畅达全城。
编辑

☑️☑️联仲·都悦汇售楼处电话:400-8377-020☑️☑️
商业配套方面:项目自带10万方商业,为旗忠唯一的综合性商业配套,其多元化的业态结构,结合旗忠独有的资源,必将带来旗忠全新生活方式。
编辑

编辑

编辑

☑️☑️联仲·都悦汇售楼处电话:400-8377-020☑️☑️
生态资源方面:项目周边有马桥森林公园、旗忠高尔夫球场、旗忠网球中心、韩湘水博园、养云安缦酒店等。
编辑

☑️☑️联仲·都悦汇售楼处电话:400-8377-020☑️☑️
教育资源方面:周边有德威英国国际学校,斯戴文森国际高中,将提供从小学到高中毕业、全流程最领先的国际教育环境,同时还有两家知名的国际教育学府也在洽谈之中。
编辑

☑️☑️联仲·都悦汇售楼处电话:400-8377-020☑️☑️