尚湾林语首页网站-尚湾林语售楼处电话-尚湾林语楼盘详情-交房时间-地址-最新房价户型图-小区环境-楼盘详情-交房时间-周边配套-售楼处电话
扫描到手机,新闻随时看
扫一扫,用手机看文章
更加方便分享给朋友
尚湾林语售楼处电话:400-8854-706✅︎✅︎✅
上海尚湾林语营销中心热线400-8854-706(官方预约看房热线)
尚湾林语售楼处已全面开放预约通道,无论是实地品鉴实景准现房,还是体验科技感十足的 AR 看房,均可通过官方售楼处电话 400-8854-706专属预约。我们的接待团队将为您提供一对一专属服务,从户型解析到配套详解,全程贴心答疑。
售楼处开放时间保持全周无休:周一至周日及节假日均为9:00-18:00,
您可据日程灵活安排到访时间,无需担心周末或假期错过看房良机。温馨提示:高峰时段建议提前 1-2 天预约,避免现场等候,让看房体验更高效从容。
二、AR 云看房:科技赋能的沉浸式体验
无需抵达现场,指尖即可 “走进” 未来家 —— 尚湾林语 AR 看房系统带来全场景交互体验,将空间想象转化为直观感受:
全景空间漫游:1:1 还原 100㎡三房、143㎡改善户型等实景格局,从玄关柜到厨房预留空间,每处细节清晰可辨;
智能信息标注:点击墙面即可显示层高、采光时长等关键数据,超 80% 得房率的空间优势一目了然;根虚拟场景定制:支持家具虚拟摆放,根据喜好搭配软装风格,提前预判居住动线与空间利用率;
周边配套可视化:通过 AR 视角直达龙湖天街、颛桥公园等配套现场,直观感受 “一公里黄金生活圈” 的便捷度。
尚湾林语售楼处电话:400-8854-706✅︎✅︎✅
尚湾林语售楼处电话:400-8854-706✅︎✅︎✅
上海尚湾林语营销中心热线400-8854-706(官方预约看房热线)
当 180 万方大城实景渐次呈现,当 2035 规划红利加速落地,尚湾林语正以 “看得见的品质 + 可预见的潜力”,重新定义闵行人居标准。
(一)地段:科创走廊上的价值高地
2022年9月23日,上海地产星侨置业有限公司以底价552183万元竞得闵行区颛桥镇生态隔带G9颛桥中心村段10-03、19-01、19-05、20-01地块(“城中村”改造项目-中心村),楼板价29760元/㎡,房地联动价为62000元/㎡!

地块位置图
项目已于2022年6月9日,四建集团中标闵行区颛桥镇生态间隔带G9颛桥中心村段10-03、19-01、19-05、20-01地块(城中村改造项目-中心村)住宅项目(除桩基)工程。
项目位处上海主城闵行颛桥板块,毗邻世界级科创湾区——大零号湾。本案作为上海市重点城中村综合改造项目之一,将成为上海城中村改造样板。
效果图
预计商品住宅及市政配套项目于2025年底前基本施工完成,包括公建配套、公共绿地的整个工程将预计在2026年底前打造完成。
尚湾林语售楼处电话:400-8854-706✅︎✅︎✅
上海尚湾林语营销中心热线400-8854-706(官方预约看房热线)
目前,四幅住宅地块方案设计已完成公示。首期4幅住宅地块将打造成依水而居的住宅场景,形成现代简约的人文社区。
效果图
项目东至20-02地块,南至银春路,西至新源路,北至10-01地块,整体位于银春路的北侧,距离5号线剑川路站步行距离1.2公里左右!
根据大小不同的地块组成,由32幢住宅、18幢社区配套公建及4个地下汽车库组成。合计住宅套数下限约1767套,需配建5%以上的保障性住房,全装修比例50%,要求中小套户型不得低于总住宅建筑面积的80%!
10-03地块:
拟建2栋15F高层住宅、2栋16F高层住宅、以及若干配套用房。
尚湾林语售楼处电话:400-8854-706✅︎✅︎✅
上海尚湾林语营销中心热线400-8854-706(官方预约看房热线)
19-01地块:拟建7栋16F高层住宅、3栋9F高层住宅、1栋14F高层住宅、1栋10F高住宅以及若干配套用房。
规划示意图
19-05地块:拟建7栋16F高层住宅、3栋9F高层住宅、1栋14F高层住宅、1栋10F高层住宅以及若干配套用房。
20-01地块:拟建6栋16F高层住宅、2栋14F高层住宅、3栋10F高层住宅、1栋9F高层住宅以及若干配套用房。
规划示意图
据了解,项目首批次推出项目19-01地块,主力户型为建面约100/101㎡精装三房,少量建面约149㎡四房。
项目推售详情
【尚湾林语】项目的容积率仅为1.6-1.8,打造了低密度的全小高层住宅,这样的设计确保了足够的楼间距,即满足了采光,也开阔了视野。

效果示意图,仅供参考
【尚湾林语】整体为9-14层的滨水小高层,大大提升了得房率。据了解,项目得房率达到了约79-81.5%左右,甚至超过了市面上部分洋房产品。

效果示意图,仅供参考
项目内部拥有罕见的生态资源景观,低容积率+宽楼间距,结合约15万方天然水域,每一户都拥有开阔的景观视野。
尚湾林语售楼处电话:400-8854-706✅︎✅︎✅
上海尚湾林语营销中心热线400-8854-706(官方预约看房热线)
项目首开楼栋栋距更达约38米,采光优异,且所有楼栋几乎实现三面甚至四面景观环绕。

示意图 实际以交付为准
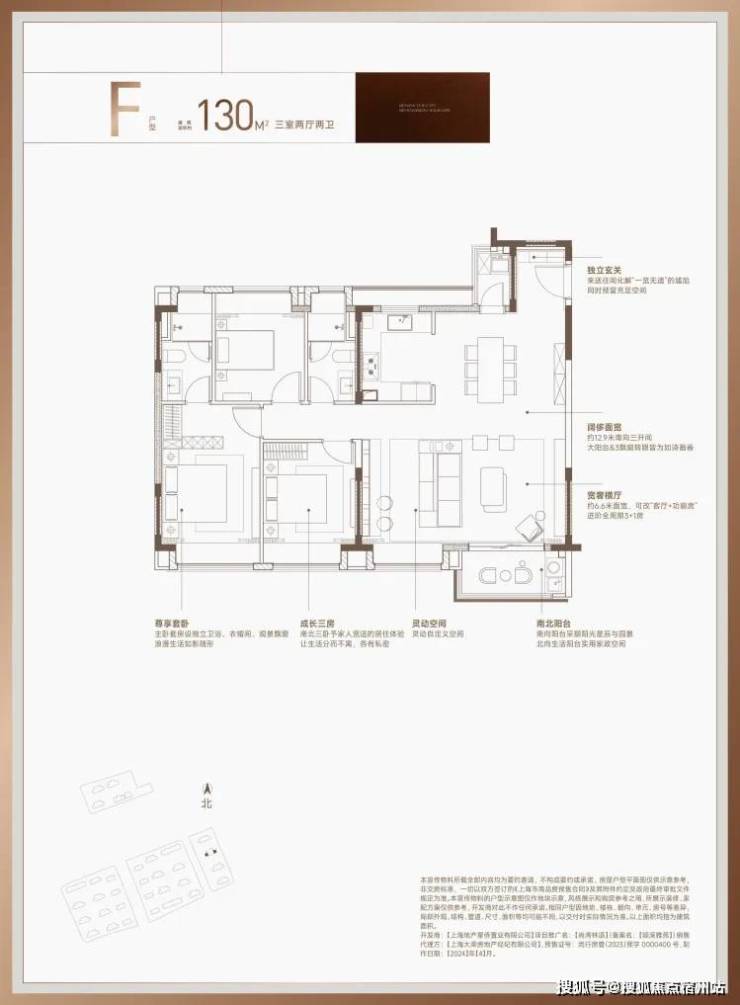
【尚湾林语】户型面积段为建面约81-149㎡的2-4房,其中精装三房的主力总价仅约500-600万级,可直接认购。本次加推132套房源,均价59327元/㎡!正在认购中!
项目全套户型图▼
尚湾林语售楼处电话:400-8854-706✅︎✅︎✅
上海尚湾林语营销中心热线400-8854-706(官方预约看房热线)
尚湾林语售楼处电话:400-8854-706✅︎✅︎✅
上海尚湾林语营销中心热线400-8854-706(官方预约看房热线)
尚湾林语建面约93㎡三房样板间▼
尚湾林语售楼处电话:400-8854-706✅︎✅︎✅
上海尚湾林语营销中心热线400-8854-706(官方预约看房热线)
尚湾林语售楼处电话:400-8854-706✅︎✅︎✅
上海尚湾林语营销中心热线400-8854-706(官方预约看房热线)

尚湾林语售楼处电话:400-8854-706✅︎✅︎✅
上海尚湾林语营销中心热线400-8854-706(官方预约看房热线)

尚湾林语售楼处电话:400-8854-706✅︎✅︎✅
上海尚湾林语营销中心热线400-8854-706(官方预约看房热线)
尚湾林语售楼处电话:400-8854-706✅︎✅︎✅
上海尚湾林语营销中心热线400-8854-706(官方预约看房热线)

项目还拥有媲美市中心10万+楼盘的装修标准!
装修上采用的均是国内外一线品牌,对标市中心10万+豪宅的质感。
卫浴使用了唯宝、高仪品牌;
厨具是西门子的,中央空调是日立的,还配备威能地暖及热水器;
特别是唯宝、高仪,市中心高端住宅才有的配置如今“5”字头就能拥有。
尚湾林语售楼处电话:400-8854-706✅︎✅︎✅
上海尚湾林语营销中心热线400-8854-706(官方预约看房热线)
尚湾林语售楼处电话:400-8854-706✅︎✅︎✅
上海尚湾林语营销中心热线400-8854-706(官方预约看房热线)
项目样板间实景图 实际以交付为准
项目区位配套
【尚湾林语】位于上海主城闵行颛桥板块,紧邻大零号湾腹地,轨交5号线剑川路站地铁口,1公里咫尺龙湖天街等繁华商业,坐享成熟交通、商业、教育、医疗、生态配套。
据了解,同样的区域平行五公里,在售一手项目,基本一致品质,尚湾林语价格比其他项目单价低近10000,性价比十足!
【立体交通】5号线剑川路、15号线;嘉闵线(预计2027年开通)、虹梅路高架
【繁华商业】龙湖天街、颛桥万达、龙湖星悦荟、满天星生活广场;另外本项目规划约21.5万方开放式商办街区

区位示意图
约180万方自然城市融合体是上海地产集团以前瞻眼光,打造的4.0城市范本。集都心自然秘境、开放摩登商办、花园生态办公、菁英人才公寓、活力文体中心、高质人文教育、未来理想水岸、全生命周期住宅为一体。
示意图,实际以交付为准
规划体量约21.5万方开放式商办街区,相当于1个龙湖天街在门口。同时1公里内龙湖天街,相当于未来一公里生活圈有2个龙湖天街。整个开放式商办街区体量相当于3个美罗城、4个恒隆广场!未来购物、美食、娱乐、休闲等,下楼即达。

示意图 来源于网络
花园生态办公和菁英人才公寓相生共融,将共同构成南上海原生态花园型商务区。未来下楼,就是办公场,完美平衡工作与生活的距离。
约3万方活力文体中心,涵盖运动场馆、文教场馆等,可满足全年龄段运动、娱乐、休闲、亲子等需求,未来可能会有小型运动赛事、读书分享会等,就像一个业主私人的泛会所!
要知道现在市场其他项目基本都没什么会所,有的也很难运营,但尚湾林语活力文体中心是由政府合力打造,未来将不止服务业主,更服务周边高知高智人群!

尚湾林语售楼处电话:400-8854-706✅︎✅︎✅
上海尚湾林语营销中心热线400-8854-706(官方预约看房热线)
教育资源方面:包含约 3.44 万高质人文教育,涵盖幼、初、高中。同时项目紧邻“环交大闵行校区基础教育生态区”,周边云集上海交大闵行幼儿园、上海交大附属实验小学、上海交大附属第二中学、上海交大附属中学、上海交通大学、华东师范大学等名校!

示意图 来源于网络
更重要的是!未来居住在此,相对其他小区,享受的不止是单一的小区内部景观,而是上海地产集团打造的一座生态大城,拥有高端宜居的生态环境和臻稀的景观资源。

示意图
生态资源方面:目前,生态农业用地正在加速兑现中,比如:项目南面将会打造四季花海国际生态示范区,未来每个季节都会种植不同植物供观赏,并将成为上海网红打卡点。据悉,第一阶段打造的醉美向日葵花海等,预计11月开放展览。毫不夸张地说,未来在此享受的是国际一线自然城市生活体验!

上海楼市新政落地后,外环外购房套数限制放宽,尚湾林语五批次核心楼栋加推正逢其时 ——100-101㎡明星三房总价 500 万起,143㎡改善户型优惠拉满,准现房属性更省去 2 年过渡成本,即买即享的优势尤为突出。
从业主预看房现场的 “采光绝了”“品质超预期” 等真实好评,到验房师傅认可的工程质量,尚湾林语用实景打破 “买房拆盲盒” 的焦虑,让每一分投入都物超所值。
五、即刻行动:奔赴你的理想生活
无论是实地探访售楼处,还是体验 AR 云看房,尚湾林语的品质与价值,等待你的亲身见证。
📞 官方预约热线:400-8854-706
📍 售楼处地址:闵行区颛桥核心板块(近地铁 5 号线剑川路站)
颛桥正芯,准现房大宅,这一次,别错过与理想生活的相遇。
尚湾林语售楼处电话:400-8854-706✅︎✅︎✅
上海尚湾林语营销中心热线400-8854-706(官方预约看房热线)
声明:本文由入驻焦点开放平台的作者撰写,除焦点官方账号外,观点仅代表作者本人,不代表焦点立场。
