中粮·北外滩壹号售楼处电话→2026中粮·北外滩壹号售楼中心电话→中粮·北外滩壹号楼盘百科→中粮北外滩壹号首页网站→楼盘百科→首页网站→24小时热线电话
扫描到手机,新闻随时看
扫一扫,用手机看文章
更加方便分享给朋友
中粮大悦城上海第五座壹号系,✅✅中粮北外滩壹号售楼处电话:400 - 8824 - 258✅✅“世界S湾壹号作品”——【中粮·北外滩壹号】开盘热卖中!
✅✅中粮北外滩壹号售楼处电话:400 - 8824 - 258✅✅
推售建面约185-228㎡天际大平层
过会均价143868元/m²✅✅中粮北外滩壹号售楼处电话:400 - 8824 - 258✅✅
最低单价11.75万起,总价约2188万
顶层地段+顶层社区+稀缺天际大平层价值,✅✅中粮北外滩壹号售楼处电话:400 - 8824 - 258✅✅错过再无!
准1梯1户设计,私享电梯厅独立入户,经典飞机户型,✅✅中粮北外滩壹号售楼处电话:400 - 8824 - 258✅✅三开间朝南,南北通透,动静分区,通风采光俱佳。
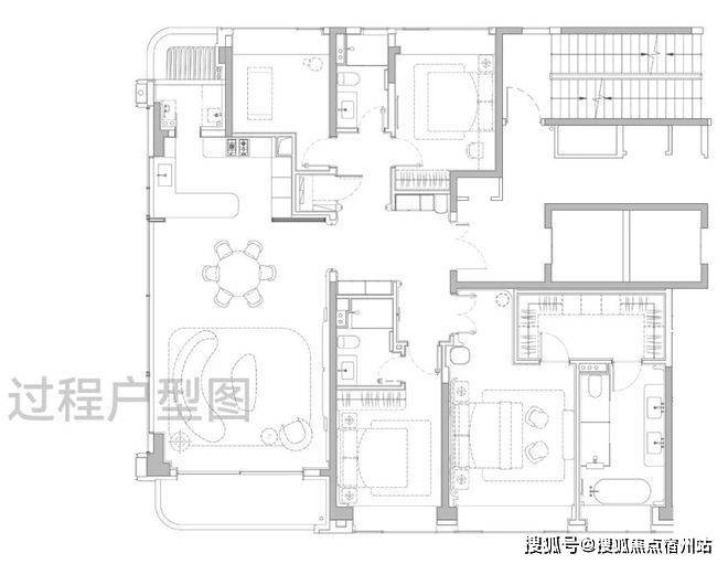
户型图赏鉴
✅✅中粮北外滩壹号售楼处电话:400 - 8824 - 258✅✅
185㎡四房奢阔大宅✅✅中粮北外滩壹号售楼处电话:400 - 8824 - 258✅✅
✅✅中粮北外滩壹号售楼处电话:400 - 8824 - 258✅✅
独立玄关做足私密性和仪式感;LDKB一体化设计的客餐厅面积达到约55㎡,✅✅中粮北外滩壹号售楼处电话:400 - 8824 - 258✅✅方正大气。
主卧套房尺度豪奢,可供业主配置步入式衣帽间,✅✅中粮北外滩壹号售楼处电话:400 - 8824 - 258✅✅卫生间做到双台盆+大浴缸+独立淋浴的顶配,尊崇感十足!
✅✅中粮北外滩壹号售楼处电话:400 - 8824 - 258✅✅
228㎡四房天际大宅
准1梯1户设计,私享电梯厅独立入户,户型尺度进一步升级,✅✅中粮北外滩壹号售楼处电话:400 - 8824 - 258✅✅当今顶豪新盘中极为稀缺的四开间朝南。
边厅面积超过50㎡,✅✅中粮北外滩壹号售楼处电话:400 - 8824 - 258✅✅给一家人提供了阔绰的交流空间;约270°环幕景观设计,带来极好的采光,并且高区可以直面陆家嘴城市天际线+黄浦江景观,视野相当震撼!
主卧大套房设计带超大主卫和衣帽间,面积约50㎡✅✅中粮北外滩壹号售楼处电话:400 - 8824 - 258✅✅,尺度感与市面上近300㎡的顶豪拉平。
室内设计由中国现代室内设计领域的领军人物——梁志天亲自打造✅✅中粮北外滩壹号售楼处电话:400 - 8824 - 258✅✅。
在材质选用上,延续了壹号系的高端标准,✅✅中粮北外滩壹号售楼处电话:400 - 8824 - 258✅✅大量运用奢石、高难度弧形工艺以及国内外顶尖品牌。
如宝格丽大理石打造的西厨岛台、铂浪高的净水三合一水龙头和一体式大水槽、霍尼韦尔的前置过滤器、✅✅中粮北外滩壹号售楼处电话:400 - 8824 - 258✅✅全屋软水以及末端净水器系统、来自意大利法罗力燃气热水器、德国唯宝卫浴、当代龙头及花洒......还有全屋华为智能家居系统配置。这一套组合,是真正意义上的顶豪序列配置!
✅✅中粮北外滩壹号售楼处电话:400 - 8824 - 258✅✅
✅✅中粮北外滩壹号售楼处电话:400 - 8824 - 258✅✅
土拍回顾及规划
✅✅中粮北外滩壹号售楼处电话:400 - 8824 - 258✅✅
2023年9月5日,大悦城控股上海大区公司通过上海联交所成功竞得上海市虹口区北外滩116街坊地块(即中粮北外滩壹号)。地块位于北外滩红线内✅✅中粮北外滩壹号售楼处电话:400 - 8824 - 258✅✅,靠近大连路地铁站,与外滩、陆家嘴共同构成上海“黄金三角”。
项目四至范围:✅✅中粮北外滩壹号售楼处电话:400 - 8824 - 258✅✅东至保定路、hk367-02、hk367-05地块,南至昆明路,西至 hk367-03、hk367-04 地块,北至唐山路。
项目总用地面积约23849.2平方米,✅✅中粮北外滩壹号售楼处电话:400 - 8824 - 258✅✅容积率1.95,总计容建面4.65万㎡,是上海市中心罕见的无商办、无15%自持住宅、无5%保障房的纯住宅项目。
整体由一栋24F高层住宅和风貌别墅组成。高层共90套、产品面积段约180-228m²,风貌别墅共118套,产品面积段约130-350m²,✅✅中粮北外滩壹号售楼处电话:400 - 8824 - 258✅✅其中主力建面约203-205-230m²(占比约83%)
建筑立面,✅✅中粮北外滩壹号售楼处电话:400 - 8824 - 258✅✅高层主体以仿红砖陶板+古铜色铝板+白色石材+玻璃幕墙的高标准结合,来完成建筑的美学表达。
✅✅中粮北外滩壹号售楼处电话:400 - 8824 - 258✅✅
风貌别墅则复刻海派石库门的韵味,但不同于大多数风貌别墅的格栅小花窗设计,「中粮·北外滩壹号」大幅增加窗墙比,✅✅中粮北外滩壹号售楼处电话:400 - 8824 - 258✅✅赋予相对沉闷里的里弄建筑,更通透、更明亮的特质!
公区方面,从归家社区大堂、大堂序厅、✅✅中粮北外滩壹号售楼处电话:400 - 8824 - 258✅✅以及入户单元大堂一路看过来,体现出一套脉络完整,层层递进的海派顶奢设计语言。
✅✅中粮北外滩壹号售楼处电话:400 - 8824 - 258✅✅
✅✅中粮北外滩壹号售楼处电话:400 - 8824 - 258✅✅
✅✅中粮北外滩壹号售楼处电话:400 - 8824 - 258✅✅
虽然项目仅有208户,仍然通过深挖三层,满配了高达约1800㎡的私享顶奢会所。按户均占有会所资源计来算,✅✅中粮北外滩壹号售楼处电话:400 - 8824 - 258✅✅这在当今顶豪圈是顶尖的水平。
会所由全球顶奢酒店设计领域的标杆——CCD香港郑中设计事务所执笔。目前看到的效果图,体现出一股醇正的老钱世家风,✅✅中粮北外滩壹号售楼处电话:400 - 8824 - 258✅✅设计品位远超市场同类豪宅。
社交宴会区内,私宴、茶室与专属酒吧一应俱全,✅✅中粮北外滩壹号售楼处电话:400 - 8824 - 258✅✅满足业主商务应酬到亲友小聚的各种场景需求。
瑜伽健身区,大幅落地窗引入自然光线,天花的格栅造型,✅✅中粮北外滩壹号售楼处电话:400 - 8824 - 258✅✅地面的复古拼花木地板,都透出浓厚的海派风情。
恒温泳池更是融入超级垂直花园庭院体系✅✅中粮北外滩壹号售楼处电话:400 - 8824 - 258✅✅,直接在泳池中做出美轮美奂的景观。
雅集共聚区内,除了常规的阅读,棋牌等功能外,✅✅中粮北外滩壹号售楼处电话:400 - 8824 - 258✅✅甚至设有一个舞蹈录音室,配置之高,沪上少见。
因为这是中粮大悦城的壹号系,珠玉在前,✅✅中粮北外滩壹号售楼处电话:400 - 8824 - 258✅✅小编完全不担心会所未来兑现的效果,甚至已经很期待看到未来会所开放展示的那一刻。
景观方面,设计了「八大主题场景」,✅✅中粮北外滩壹号售楼处电话:400 - 8824 - 258✅✅从百年梧桐下的静谧巷道,到充满未来感的艺术庭院,共同构成一个鲜活立体的生活剧场。
生活配套
交通方面:项目周围环绕三条地铁,✅✅中粮北外滩壹号售楼处电话:400 - 8824 - 258✅✅步行约360米到4、12号线大连路站,步行约560米到12、19号线(在建)提篮桥站。
地铁出行到人广和陆家嘴都只需要4站。未来,✅✅中粮北外滩壹号售楼处电话:400 - 8824 - 258✅✅随着在建的南北大动脉19号线贯通,可以直达世博、前滩等多个核心滨江段。
✅✅中粮北外滩壹号售楼处电话:400 - 8824 - 258✅✅
自驾上,项目往北约300米就是北横通道,往南车行约1公里,就是新建路隧道和大连路隧道直达浦东。从项目到陆家嘴、北外滩和外滩都在10分钟左右。
✅✅中粮北外滩壹号售楼处电话:400 - 8824 - 258✅✅
商业方面:项目出门就是高浓度的国际生活主场,步行可达北外滩来福士(约600米)、瑞虹天地太阳宫(约350米)、白玉兰广场(约1公里),✅✅中粮北外滩壹号售楼处电话:400 - 8824 - 258✅✅未来还将会兴建全球最火的时尚奢侈品商场之一的SKP。
半径3km内,还可以同时覆盖外滩、陆家嘴、苏河湾等“黄金三角”的繁华商业!✅✅中粮北外滩壹号售楼处电话:400 - 8824 - 258✅✅
教育方面:周边学府众多,优质教育资源密集。✅✅中粮北外滩壹号售楼处电话:400 - 8824 - 258✅✅北侧的长青学校是老牌的九年一贯制公办重点,南侧的上海中学国际部是知名民办名校,距离新华初级中学
(常年四校八大预录人数上百),新复兴初级中学,这两所虹口的顶尖民办学校也都在直线3KM内(新房不承诺对口学校,具体以实际为准)。
✅✅中粮北外滩壹号售楼处电话:400 - 8824 - 258✅✅
医疗方面:周边有复旦大学红房子妇产科医院,守护着每一个家庭的人生重要时刻。、以及三甲新华医院、上海市第一人民医院为健康生活保驾护航。
✅✅中粮北外滩壹号售楼处电话:400 - 8824 - 258✅✅
生态休闲:周边有22公顷无车漫步区、3.5万平方米航海公园与中央绿地相融,✅✅中粮北外滩壹号售楼处电话:400 - 8824 - 258✅✅3.4公里滨江休闲岸线
✅✅中粮北外滩壹号售楼处电话:400 - 8824 - 258✅✅
1、什么是房产:房屋产权的简称。
2、什么是地产:是指土地财产。
3、什么是房地产:是房产和地产的总称。
4、什么是房地产业:从事房地产开发、建设、经营、管理以及维修、装饰和服务的综合性产业。
5、什么是房地产开发:是指在依法取得土地使用权的土地上按照使用性质的要求进行基础设施、房屋建筑的活动。
6、什么是土地开发:是将“生地”开发成可供使用的土地。
7、集体土地是指:农村集体所有的土地。
8、征用土地是指:国家为了公共利益的需要,可依照法律规定对集体所有的土地实行征用。
9、什么是土地所有权:是指国家或集体经济组织对国家土地和集体土地依法享有的占有、使用、收益和处分的权能。
10、什么是土地使用权的出让:指国家以协议、招标、拍卖的方式将土地所有权在一定年限内出让给土地使用者,由使用者向国家支付土地使用权出让金的行为。
11、什么是土地使用权转让:是指土地使用者通过出售、交换、赠与和继承的方式将土地使用权再转移的行为。
12、什么是地籍、产籍:是对在房地产调查登记过程产生的各种图表、证件等登记资料,经过整理、加工、分类而形成的图、档、卡、册等资料的总称。
13、 生地是指:不具备开发条件的土地。
14、熟地是指:已完成三通一平(水、电、道路,土地平整)或七通一平,具备开发条件的土地。
15、什么是宗地:是地籍的最小单元,是指以权属界线组成的封闭地块。
16、什么是宗地图:是土地使用合同书附图及房地产登记卡附图。它反映一宗地的基本情况。包括:宗地权属界线、界址点位置、宗地内建筑位置与性质、与相邻宗地的关系等。
17、证书附图是指:房地产后面的附图,主要反映房地产情况及房地产所在宗地情况。
18、什么是物业管理:泛指一切有关房地产开发、经营、商品房销售、租赁及售后服务。
19、什么是业主委员会:是在物业管理区域内代表全体业主实施自治管理的组织。是代表
物业全体业主合法权益的社会团体,其合法权益受国家法律保护。
20、业主委员会是如何产生的:由业主大会从全体业主中选举产生。
21、住房补贴是指:国家为职工解决住房问题而给予的补贴资助。
22、房屋的所有权是指:对房屋全面支配的权利。
23、房地产交易的两种主要形式是:地产交易形式 与 房产交易形式。
24、建筑物是指:人工建造而成的房屋和构筑物。
25、构筑物是指:建筑物中除房屋以外的东西。
26、什么是期房:是指消费者在购买时不具备即买即可入住的商品房。
27、期房是如何介定的:房地产开发商拿到商品房预售许可证开始至取得房地产权证大产证或竣工验收合格可以直接入住使用)为止。
28、什么是预售合同:消费者在购买期房时签定的销售合同。
29、什么是现房:是指消费者在购买时具备即买即可入住的商品房,即开发商已办妥所售的商品房的大产证(或已经竣工验收合格并交付使用)的商品房。
30、什么是毛坯房:房地产商交付屋内只有门框没有门,墙面地面仅做基础处理而未做表面处理的房叫毛坯房。
31、什么是成品房:是指对墙面、天花、门套、地板实行装修。
32、什么是商品房:是指以完全的市场价格向购房者出售的房子。
33、商品房预售是指:在房地产尚未建成以前,房地产的经销商在取得受买人一定数量的定金后,将期房出售给受买人。
34、商品房现售是指:指房地产开发企业将竣工验收合格的商品房出售给买受人。
35、二手房通常指的是:再次进行买卖交易的住房。
36、经济适用房指的是:面向中低收入家庭的普通住宅。
37、例出3种以上的安居房的种类:准成本房、全成本房、全成本微利房和社会微利房。
38、低层住宅的介定:1-3层的住宅。
39、多层住宅的介定:4-6层的住宅。
40、小高层住宅的介定:7-11层的住宅。
41、中高层住宅的介定:12-16层的住宅。
42、高层住宅的介定:16层以上为高层住宅。
43、超高层建筑的介定:总高度超过100米的建筑。
44、商品房的结构是指:房屋主体所使用的施工工艺和用材。
45、钢结构的意思是:承重的主要结构是用钢材料建造的,包括悬索结构。
46、钢混结构的意思是:承重的主要结构是用钢和混凝上建造的。
47、砖木结构的意思是:承重的主要结构是用砖、木材建造的。
48、砖混结构的意思是:主要是砖墙承重,部分是钢盘混凝土承重的结构。
49、框架结构的意思是:以钢筋混凝土浇捣成承重梁柱,再用预制的隔墙分户的结构。
50、开间指的是:一间房屋内一面墙的定位轴线到另一面墙的定位轴线之间的实际距离。
51、进深指的是:一间独立的房屋或一幢居住建筑内从前墙的定位轴线到后墙的定位轴线之间的实际长度。
52、层高指的是:下层地板面或楼板面到上层楼层面之间的距离。
53、净高指的是:下层楼板上表面到上层楼板下表面之间的距离。
54、占地面积指的是:地块的总面积。
55、1亩约等于多少平方米:666.66㎡
56、居住小区总用地指的是什么用地的总和:住宅总用地,公共建筑设施总用地,道路、广场用地、庭院、绿化用地的总和。
57、住宅总用地是指:住宅用地面积的总和。
58、公建总用地是指:小区内部公共建筑占地面积的总和。
59、建筑用地面积的介定:建设用地位置和界线所围合的用地之水平投影面积。
60、建筑基底面积是指:建筑物首层的建筑面积。
61、建筑高度是指:建筑物室外地平面至外墙面顶部的总高度。
62、房屋的基底面积是指:房屋的基底面积是指建筑物底层勒脚以上外围水平投影面积。
63、道路面积是指:小区内宽度大于1.5米道路的面积总和。
64、广场面积是指:停车、回车广场和有铺砌地面的场地面积之和。
65、庭院、绿化面积是指:小区内集中绿化带、小公园,以及公共活动场所等为小区所有居住人员 共同使用权的绿化面积的总和。
66、假山、小池算不算庭院、绿化面积:算。
67、人均总占地面积(㎡/人)的计算公式:人均总占地面积=建筑红线内总用地÷本小区规划居住总人数。
68、人均住宅用地面积(㎡/人)的计算公式:人均住宅用地面积=小区内总住宅用地÷本小区规划居住总人数。
69、总建筑面积是指:小区内住宅、公共建筑、人防地下室面积总和。
70、人防地下室算不算在总建筑面积之内:算
71、住宅建筑面积是指:住宅建筑外墙外围线测定的各层平面面积之和。
72、套建筑面积是指:一套房屋的整体面积。
73、套建筑面积的构成是:套内建筑面积和套分摊的公用建筑面积
74、幢(栋)是指:一座独立的,包括不同结构和不同层次的房屋。
75、架空房屋是指:一般为底层架空,以柱子作为承重支撑物的房屋。
76、夹层是指:位于两自然层之间的楼层,指房屋内部空间的局部层次。
77、技术层的意思是:用作水、电、暖、卫生等设备安装的局部层次。
78、技术层层高在多少以上计算层数:2.20米以上的计算层数。
79、结构转换层是指:建筑物某楼层的上部与下部因平面使用功能不同,该楼层上部与下部采用不 同结构类型,并通过该楼层进行结构转换,则该楼层称为结构转换层。
80、跃层式住宅是指:一套住宅占两个楼层,由户内楼梯联系上下层,上下两层完全分隔。
81、阁楼是指:利用房屋内的上部空间加建的楼层。
82、阁楼层高在多高以上计算面积:2.20米以上。
83、地上层数是指:即房屋的自然层数,指室内地坪±0.00以上的按楼板结构分层的层高在2.20米以上的楼层数。
84、地上层数用什么数表示:自然数。
85、地下层数是指:采光窗在室外地坪以下的,其室内层高在2.20米以上的地下室的层数。
86、地下层数用什么数表示:负数。
87、房屋总层数是指:房屋的地上层数与地下层数之和。
88、地下层数算不算在房屋总层数之内:算。
89、例出3个以上不算在房屋总层数内的建筑层:假层、夹层、阁楼、装饰性塔楼、楼梯间、水箱间。
90、柱廊是指:有顶盖和支柱,供人通行的建筑物,称为有柱走廊,简称柱廊。
91、骑楼是指:底层为有柱廊房,廊道上方建为楼房的一部分。
92、挑廊是指:指二层以上挑出房屋墙体外,有围护结构,无支柱有顶盖的外走廊。
93、门廊是指:建筑物门前有顶盖,有支柱或围护结构的进出通道。
94、门斗是指:支撑建筑物门前顶盖的是实体墙称为门斗。
95、檐廊是指:房屋檐下方两端有支撑墙体无柱的通道。
96、天棚是指:即天篷,有透明顶篷履盖的屋面。
97、晒台又称什么:露台。
98、露台是指:供人室外活动的上人屋面或底层地面伸出室外的有维护无顶盖的台面。
99、阳台是指:有永久性上盖、有围护结构、有台面、与房屋相连、可以供人活动或利用的房屋附属设施。
100、阳台的分类有:封闭式阳台和半封闭式阳台。
✅✅中粮北外滩壹号售楼处电话:400 - 8824 - 258✅✅
声明:本文由入驻焦点开放平台的作者撰写,除焦点官方账号外,观点仅代表作者本人,不代表焦点立场。
