华润外滩瑞府(售楼处)首页网站-华润外滩瑞府销售中心(营销中心)-华润外滩瑞府楼盘欢迎您-小区环境-户型-价格-地址-楼盘详情-周边配套-售楼处电话-交房时间
扫描到手机,新闻随时看
扫一扫,用手机看文章
更加方便分享给朋友
外滩瑞府二批次认购中!楼王1#无界大宅与3#天际光邸传世而来,✅✅华润外滩瑞府售楼处电话:400 - 8824 - 258✅✅建面约124-240㎡,均价14.83万/㎡。
✅✅华润外滩瑞府售楼处电话:400 - 8824 - 258✅✅
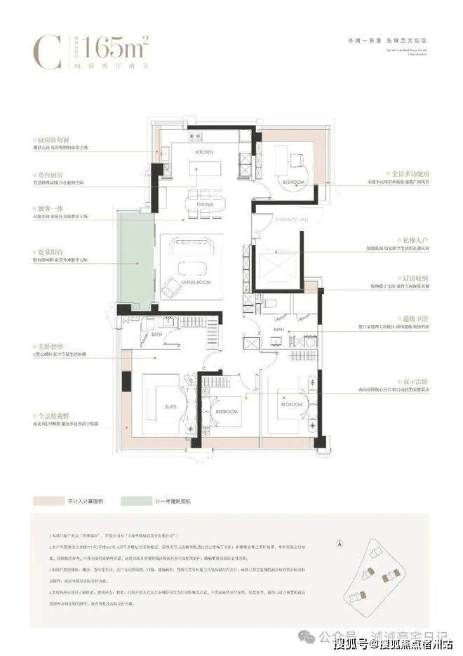
相比一批次,新增建面约195、240㎡户型,附上全套户型图:✅✅华润外滩瑞府售楼处电话:400 - 8824 - 258✅✅
✅✅华润外滩瑞府售楼处电话:400 - 8824 - 258✅✅
✅✅华润外滩瑞府售楼处电话:400 - 8824 - 258✅✅
✅✅华润外滩瑞府售楼处电话:400 - 8824 - 258✅✅
样板间实景✅✅华润外滩瑞府售楼处电话:400 - 8824 - 258✅✅
✅✅华润外滩瑞府售楼处电话:400 - 8824 - 258✅✅
✅✅华润外滩瑞府售楼处电话:400 - 8824 - 258✅✅
✅✅华润外滩瑞府售楼处电话:400 - 8824 - 258✅✅
✅✅华润外滩瑞府售楼处电话:400 - 8824 - 258✅✅
项目实景图如下✅✅华润外滩瑞府售楼处电话:400 - 8824 - 258✅✅
项目位于四平路吴淞路,占地约1.43公顷,容积率3.87,周边拥有九龙路、武进路、四平路、吴淞路 等快速路。
地块属于虹口内环内的嘉兴社区,就在第一人民医院北侧,南侧约200米就是北外滩,北侧即为瑞虹新城,项目直线距10号线四川北路站约400米,是今年虹口区非常重要的一个新房供应。
项目拟建4栋24-32层高层住宅,另有少量风貌住宅和商业。住宅建面约124-240㎡。
4栋住宅一层全部为架空,入口至楼栋间设置有风雨连廊。
小区车行主入口设在了南侧哈尔滨路和东侧九龙路上,可以直接下地库,小区地面无车位,人车分流;人行出入口则位于地块东侧九龙路上,
华润TOP级瑞系,作为华润置地产品线的皇冠明珠,自诞生便以钻石级选址标准划定豪宅基因。
从深圳湾的“春笋”旁到北京长安街畔,每一座瑞府都占据着核心城市最核心的地段。
此次外滩瑞府落子外滩1公里核心圈,正是华润对「战略稀缺性」的极致践行:非核心不选,非未来不立。
这也是华润置地那么多年来在上海的首座“瑞系”。
有别于大多数的市区项目以兵列树阵式的景观设计,外滩瑞府通过建筑楼体的偏转形成了围合式的景观布局,秉持三个最大化,两个最小化(景观最大化,采光最大化,朝向视线最大化;遮挡最小化,影响最小化)。
通过这种创新布局,项目不仅形成连续的中心花园,更因楼栋布局与边界有夹角,自然形成一系列边角院落空间。
尤为难得的是,部分东南高区可看到陆家嘴三件套和北外滩浦西第一高楼的遥相呼应。
全域风雨连廊,外滩瑞府将风雨连廊扩容为完整的归家体系,实现全住宅楼栋无风雨归家,带来顶豪级的归家居住体验。
值得一提,你还将拥有翠湖天地、汤臣一品同款大师设计。
项目力邀大师天团操刀,从建筑到生活全维度高定。
GOA大象设计担纲建筑设计;渡边智昭负责会所和架空层设计,他是2023 AD 100 中国最具影响力建筑和室内设计师,代表作翠湖天地、汤臣一品;TROP操刀艺文景观设计;室内由W.DESIGN无间设计、李益中精琢...
这支曾塑造多个城市封面的大师团队,聚集在外滩瑞府,共筑外滩新一代标杆住宅。
高层基座溯源石库门建筑精髓,复刻经典拱券符号;中段以通透玻璃幕墙搭配流线型金属线条,营造国际前沿的现代质感;顶部“冠冕”造型,进一步升华昭示性。
交通配套:距轨道交通10号线四川北路站0.4公里,商业上,利通广场、壹丰广场、中信广场1933购物中心 都在步行距离范围内;
教育配套:有民办新华初级中学、虹口区中州路第一小学、上海市虹口区第一中心小学、上海市海南中学 ;
医疗配套:临近上海市第一人民医院。
商业配套:利通广场、壹丰广场、中信广场、1933 购物中心等在步行距离内,直线距离北侧瑞虹新城三件套约 1.5 公里。
✅✅华润外滩瑞府售楼处电话:400 - 8824 - 258✅✅
上海黄浦江畔又迎来一个重量级城市更新项目。
瑞安房地产近日宣布,附属公司上海瑞安城市更新建设有限公司与上海陆家嘴集团、上海市浦东新区房地产集团及上海三林资产管理集团达成合营安排,共同开发上海浦东新区三林镇西林村地块。
这一被称为“三林项目”的城市更新计划总建筑面积约72.39万平方米,规划以住宅及商业为主要用途,总投资承诺约91.62亿元。
作为上海有史以来最大的旧改项目之一,三林项目的推进标志着上海城市更新正加快走向多元参与格局。
这场“联姻”汇聚了各方顶尖资源,上海陆家嘴持股40%,上海瑞安城市更新持股39%,上海市浦东新区房地产集团和上海三林资产管理分别持股11%及10%。
市场人士认为,这种多元协作模式能够整合各方核心资源,构建优势互补的协作生态,为上海城市更新树立新的行业典范。国有资本与社会资本的深度携手,不仅重塑三林片区的城市面貌,也将成为上海城市更新进程中的重要里程碑。
重要落子
对瑞安房地产而言,三林项目是其深耕上海战略的又一关键落子。
“三林项目将有助本集团强化城市更新产品线。本集团预期成立合营公司将进一步巩固本集团于上海城市更新领域的领先地位,带来不俗的物业销售收入,并强化本集团的财务状况。”瑞安房地产明确表达了对三林项目的高预期。
值得注意的是,瑞安房地产通过多层持股结构,在合营公司中的实际权益为13.26%。各股东按持股比例出资,上海瑞安城市更新出资35.73亿元,而瑞安房地产的实际资金承诺约为12.15亿元。
对于坚持“看多”上海楼市的瑞安房地产主席罗康瑞而言,此次合作是瑞安轻资产模式下的重要战略布局。
在不久前的中期业绩会上,罗康瑞曾坦言:“市场还在筑底中,瑞安房地产坚持专注上海的发展,以轻资产来经营,保持现金流稳定。”
自2001年以上海新天地为起点深耕上海以来,瑞安房地产已逐步将上海打造成自身最大的资产重镇。
中报数据显示,瑞安房地产今年上半年营业收入20.74亿元,租金及相关收入达17.81亿元,其中78%都来源于上海的物业组合。
但瑞安房地产的剩余的“口粮”已经不多。
截至上半年末,瑞安土地储备的总建筑面积为780万平方米,包括570万平方米的可供出租及可供销售面积,以及210万平方米会所、停车场和其他设施,合共15个项目,分别位于上海、南京、武汉、佛山和重庆五个城市。
“在市场调整真正完成之前,我们将继续以轻资产的模式拓展更多的外部资本和策略性的合作伙伴,来扩大业务规模,扩充土地储备,推动公司的稳健可持续发展。”瑞安房地产行政总裁王颖表示。
这一策略在瑞安今年的项目拓展中得到了体现。2025年上半年,瑞安新增了3个轻资产项目,包括与天安集团合作的“永新里”项目,与永业集团合作的“永年里”管理服务项目以及与上海奉贤区政府合作的贝港城中村项目。
在市场人士看来,三林项目的落地展现了瑞安房地产对上海市场的长期信心,将成为瑞安继虹桥蟠龙天地、召稼楼天地之后,在上海打造的第3座古镇整体开发的“新天地”系列力作,有望成为上海城市更新领域的又一经典之作。
多元协作
三林古镇始建于宋代,至今已有1000多年历史,清晰记录了浦东从“乡野渔村”到“商贸聚落”的演变轨迹。
根据规划,该项目将大力改善居住和商业环境,弥补绿地短缺和基础配套不均衡的短板,充分利用三林老街的历史底蕴和水系资源,打造一条古色古香的滨水商业街,并融入三林刺绣、三林舞龙等非遗文化资源。
瑞安房地产此次与本土国企的深度携手,是上海城市更新从单一开发模式向多元共治格局转变的标志,彰显了国有资本与社会资本协作推动区域价值重塑的重要作用。
具体来看,瑞安房地产凭借上海新天地、瑞虹天地、蟠龙天地等多个标杆项目,积淀了成熟的城市更新全周期运营经验。
陆家嘴集团、浦房集团作为浦东本土国有企业,在资源整合、政策衔接和本地运营方面具备天然优势。
三林资管作为镇属企业,对片区历史文脉、民生需求的深度洞察能够为项目精准落地提供关键保障。
正如中国城市规划学会理事长杨保军所言:“城市更新可持续推进的路径在前几年的探索中已经明朗,重要的是运用市场机制使得政府引导、社会资本、公众参与三部分合起来才能够可持续地推动。”
实际上,类似三林项目组团开发、协同发力的多元合作模式正在上海多点开花。
例如,9月初,总出让金额超500亿元的徐汇东安总价“地王”,开发企业就囊括了中海地产、招商蛇口、徐汇城投、中旅投资等。
8月初,华润置地联合上海南房集团,通过股权转让方式以244.69亿元拿下上海浦东后滩与黄浦区余庆里组合地块资产包。
这种多元参与模式能够有效分散风险,特别是在当前市场环境下,各方整合资源,共同破解开发难题。
业内人士认为,三林项目的合作开发模式能够降低单一企业的资金压力。对瑞安房地产而言,与本地国企合作能够更好地衔接政策、降低风险,以较轻的资产负担参与大型项目。对国有企业来说,引入瑞安房地产的专业开发和运营经验,有助于提升项目品质与价值。
“但合作开发也面临一定挑战。”前述人士认为,多方参与必然增加协调难度,对各方沟通协作机制提出了更高要求。大型城市更新项目周期长、变数多,如何平衡历史文化保护与商业开发、如何满足不同利益相关方的诉求,都是合作方面临的现实问题。
此次瑞安房地产携手三家上海国企,在浦东三林老镇画下一道浓墨重彩的开发线条,也为上海城市更新提供了新思路。三林老街已站在焕发新生的起点,能否成为浦东的下一个“爆点”值得关注。
✅✅华润外滩瑞府售楼处电话:400 - 8824 - 258✅✅
声明:本文由入驻焦点开放平台的作者撰写,除焦点官方账号外,观点仅代表作者本人,不代表焦点立场。
