17街坊的百年新生,苏河首座里弄范本
☑️☑️弘安里售楼处电话:400-8377-020☑️☑️
编辑

☑️☑️弘安里售楼处电话:400-8377-020☑️☑️
弘安里的前身,是名列上海第二批历史风貌街坊的虹口17街坊。它以约1.1的超低容积率为基底,遵循“一街、多组团”的原生肌理:三条南北主弄、多条东西支弄复刻老上海的街巷格局,同时缩减支弄数量、拓宽弄堂宽度,让百年石库门的“上宅下铺”形制重归日常,成为苏州河风貌区首个风貌更新里弄案例。
☑️☑️弘安里售楼处电话:400-8377-020☑️☑️
编辑

☑️☑️弘安里售楼处电话:400-8377-020☑️☑️
从平移、保护修缮到保留改造,弘安里最大限度延续历史脉络:石库门的青砖外墙、红砖腰线、拱券门楣原封保留,老砖、老瓦、老石箍等旧构件嵌入新建筑;屋顶的页顶山花装饰、圆形石材套窗,让百年建筑的风骨与当代生活无缝衔接——这里不是“复刻历史”,而是让历史生长于当下。
编辑

☑️☑️弘安里售楼处电话:400-8377-020☑️☑️
编辑

☑️☑️弘安里售楼处电话:400-8377-020☑️☑️
编辑

编辑

编辑

☑️☑️弘安里售楼处电话:400-8377-020☑️☑️
编辑

☑️☑️弘安里售楼处电话:400-8377-020☑️☑️
青砖里的当代智慧,让经典超越时光
编辑

编辑

☑️☑️弘安里售楼处电话:400-8377-020☑️☑️
岁月磨不去的风貌
藏着时代的革新
百年前,鸿安里以沉稳青砖、错落瓦檐勾勒海派底色;百年后,「传颂300」以“修旧如旧”的匠心延续风貌:青砖叠砌的墙面、斜坡屋顶的轮廓,是上海石库门里弄最原始的记忆符号。
编辑

☑️☑️弘安里售楼处电话:400-8377-020☑️☑️
编辑

☑️☑️弘安里售楼处电话:400-8377-020☑️☑️
而细节里的当代智慧,让经典更适配当下:仿木铝合金窗框替代了旧时木质结构,既保留木纹的温润,又抵御岁月侵蚀;屋顶的老虎窗重新演绎,线条舒展、比例精巧,成为天际线上灵动的风景——青砖仍是那片青砖,却藏着穿越时光的革新。
编辑

☑️☑️弘安里售楼处电话:400-8377-020☑️☑️
编辑

☑️☑️弘安里售楼处电话:400-8377-020☑️☑️
『 静音』 的边界
是对生活的尊重
石库门里弄的烟火气,总伴着“隔墙有耳”的局促。「传颂300」首创“双墙系统”,在联排院落之间各立一墙,双墙之间留以空隙:一墙延续风貌肌理,一墙扩容私域空间,既阻隔声响传递,又化解潮湿侵扰。
类独栋级的隔音处理,让院内的笑语与琴声只限于院内,墙外的喧嚣亦止步于墙外——这不是疏离,而是让亲密有尺度、宁静有界限,重新定义当代里弄的生活边界。
编辑

☑️☑️弘安里售楼处电话:400-8377-020☑️☑️
编辑

从『拥挤』到『舒展』
院巷里的天地
传统里弄的窄巷局促,被「传颂300」彻底改写:科学规划建筑布局,缩减排数、拓宽弄巷,让阳光与风自由穿行;建筑前后间距拉大,院落尺度豁然开朗,每一户都拥有一片可栽花植木、品茶观星的私享天地。
弄不再是过道,而是邻里交往的客厅;院不再是点缀,而是生活的延伸——一巷一院自成格局,却又通过错落的门庭与绿意悄然相连,让石库门的“拥挤”生长为“舒展”,让“市井气”进阶为“专属感”。
编辑

☑️☑️弘安里售楼处电话:400-8377-020☑️☑️
编辑

☑️☑️弘安里售楼处电话:400-8377-020☑️☑️
编辑

编辑

☑️☑️弘安里售楼处电话:400-8377-020☑️☑️
编辑

☑️☑️弘安里售楼处电话:400-8377-020☑️☑️
四层院墅的海派生活,每层都是艺术场域
编辑

☑️☑️弘安里售楼处电话:400-8377-020☑️☑️
「传颂300」样板房以“院藏四季、城景定格、顶层私域、夹层盛境”的四层空间,将海派优雅与当代奢居融于方寸,全球顶尖设计团队CCD(Cheng Chung Design)执笔,以现代美学重构海派生活的内核。
编辑

☑️☑️弘安里售楼处电话:400-8377-020☑️☑️
围合里的自然共生
院落是家的呼吸之始。LDKG阔境厅堂串联客餐厨,客厅与庭院仅一窗之隔,光影随植被摇曳,东方围合的含蓄与西方空间的流动在此平衡。推门即揽巷弄烟火,闭门则拥庭院静谧,家宴的暖意与待客的仪式感,皆与自然同频。
☑️☑️弘安里售楼处电话:400-8377-020☑️☑️
上海弘安里·传颂300丨百年石库门里的海派新院,样板房全球启幕
尚嘉豪宅已关注
分享点赞在看已同步到看一看写下你的评论
视频详情
编辑

☑️☑️弘安里售楼处电话:400-8377-020☑️☑️
新生代的自由天地
这一层是生活的诗意画布。露台延伸出无界视野,苏州河的波光与城市天际线铺陈成画,风与日光在此织就慵懒日常。复古陈设与当代艺术并置,老上海的优雅与新生代的自由碰撞,让每一寸空间都浸满浪漫光阴。
☑️☑️弘安里售楼处电话:400-8377-020☑️☑️
上海弘安里·传颂300丨百年石库门里的海派新院,样板房全球启幕
尚嘉豪宅已关注
分享点赞在看已同步到看一看写下你的评论
视频详情
编辑

☑️☑️弘安里售楼处电话:400-8377-020☑️☑️
独层尊域的从容
整层私域,南北通透,是主人的精神高地。总统套式主卧以仪式感衬显宁静,独立衣帽间、卫浴间的奢配,匹配塔尖的尊崇;书房临光而设,阳光漫过窗棂,思想与光影在此共生,是独处、阅读的理想场域。
☑️☑️弘安里售楼处电话:400-8377-020☑️☑️
上海弘安里·传颂300丨百年石库门里的海派新院,样板房全球启幕
尚嘉豪宅已关注
分享点赞在看已同步到看一看写下你的评论
视频详情
编辑

☑️☑️弘安里售楼处电话:400-8377-020☑️☑️
隐秘里的精神居停
地下夹层,是海派家族的私享盛境。这里可藏酒、展艺、会友,静谧中生长出多元趣味:松弛的休闲区与仪式感的会客区共存,欢聚的热闹与独处的沉静皆能容纳,是家族精神与生活热爱的私藏天地。
编辑

☑️☑️弘安里售楼处电话:400-8377-020☑️☑️
编辑

编辑

☑️☑️弘安里售楼处电话:400-8377-020☑️☑️
石库门里的当代生活,让日常成为美学
编辑

☑️☑️弘安里售楼处电话:400-8377-020☑️☑️
弘安里的生活,从来不止于居住——一街之隔的吴文博会客厅,让「传颂300」的风貌之旅融入当代美学内涵;“雅集六境、风华四艺、画境八园”等主题景观,将海派符号与精致园林相融,构建“巷弄·繁花里”的诗意画境。
编辑

☑️☑️弘安里售楼处电话:400-8377-020☑️☑️
编辑

☑️☑️弘安里售楼处电话:400-8377-020☑️☑️
在这里,艺术与日常无界:漫步巷弄,石库门的拱券与现代装置相映;推门入户,老上海的肌理与当代设计共生——「传颂300」不仅是一处居所,更是当代海派生活方式的精神场域。
编辑

☑️☑️弘安里售楼处电话:400-8377-020☑️☑️
编辑

编辑

编辑

☑️☑️弘安里售楼处电话:400-8377-020☑️☑️
121席风貌院墅,样板房全球预约
编辑

☑️☑️弘安里售楼处电话:400-8377-020☑️☑️
121席的风貌院墅,每一席都是可传世的历史文化资产。「传颂300」样板房现已全球开放,邀您亲临品鉴:在CCD设计的光影与材质间,在石库门的砖缝与院巷的绿意里,重逢海派的繁花巷弄,收藏跨越世纪的城市记忆。
免责声明:本楼书所涉图文资料仅供参考,项目细节以最终买卖合同及政府审批文件为准,开发商保留法律范围内的最终解释权。部分素材源自网络,侵权即删。
弘安里,前身虹口17街坊,名列上海市第二批历史风貌街坊。如今,于原址之上,弘安里在城市更新的进程中涅槃重生,与上海海派文化履迹相承,镌刻石库门的建筑印记,敬献苏河风貌区首个风貌更新里弄案例,传递两个百年的海派文明。
编辑

☑️☑️弘安里售楼处电话:400-8377-020☑️☑️
作为上海内环内罕有的里弄风貌别墅区,以约1.1超低容积率为设计底盘,总体延续原“一街坊、多组团”的风貌特征,三条南北向主弄、多条东西向支弄的总体布局。在保留原始主弄支弄形态的同时,减少支弄数量,加大建筑进深及优化巷弄宽度,符合现代生活方式的需要。
编辑

通过平移、保护修缮、保留改造、更新改建等多种方式,复刻更富里的上宅下铺,重现红砖加石材的同昌里、德年里;沿袭青砖加石材的宝兴里、和乐里、鸿安里,最大限度延续肌理风貌,因屋制宜分级保护,构建一种适宜当代人居的生活叙事。
编辑

☑️☑️弘安里售楼处电话:400-8377-020☑️☑️
回首鸿安里,百年之后仍觉的惊艳。始建于1910年的鸿安里,包含两种里弄类型,早期石库门里弄,以及在1930年代翻建的广式里弄,场地内贯穿南北、排数多达16排,是虹口体量最完整的成片里弄;鸿安里石库门门头造型各异,采用半圆形、长条形砖砌门楣,堪称石库门里弄的基因库与活化石。
编辑

弘安里新组团风貌别墅,缩减整体的排数,拓宽巷弄与庭院的尺度,优化巷弄与檐口的比例,让阳光,风景轻松浸入生活;漫步走过街门楼,踏入巷门,拾步院门,由园入院,沉浸四季的花园之境。
编辑

☑️☑️弘安里售楼处电话:400-8377-020☑️☑️
新组团立面采用大面青砖、局部红砖腰线与仿木铝合金门窗的立面做法,山墙以巴洛克观音兜为原型,顶部用平顶山花装饰,圆形石材窗套气窗装饰;屋面承袭传统小青瓦工艺,更新老虎窗。
编辑

从鸿安里到弘安里,唤醒城市的记忆 ,焕新经典的风貌。
编辑

☑️☑️弘安里售楼处电话:400-8377-020☑️☑️
编辑

☑️☑️弘安里售楼处电话:400-8377-020☑️☑️
编辑

☑️☑️弘安里售楼处电话:400-8377-020☑️☑️
☑️☑️弘安里售楼处电话:400-8377-020☑️☑️
编辑

☑️☑️弘安里售楼处电话:400-8377-020☑️☑️
编辑

☑️☑️弘安里售楼处电话:400-8377-020☑️☑️
编辑

☑️☑️弘安里售楼处电话:400-8377-020☑️☑️
☑️☑️弘安里售楼处电话:400-8377-020☑️☑️
编辑

☑️☑️弘安里售楼处电话:400-8377-020☑️☑️
编辑

☑️☑️弘安里售楼处电话:400-8377-020☑️☑️
编辑

☑️☑️弘安里售楼处电话:400-8377-020☑️☑️
编辑

☑️☑️弘安里售楼处电话:400-8377-020☑️☑️
编辑

☑️☑️弘安里售楼处电话:400-8377-020☑️☑️
编辑

☑️☑️弘安里售楼处电话:400-8377-020☑️☑️
编辑

☑️☑️弘安里售楼处电话:400-8377-020☑️☑️
编辑

☑️☑️弘安里售楼处电话:400-8377-020☑️☑️
← 左右滑动查看项目实景 →
编辑

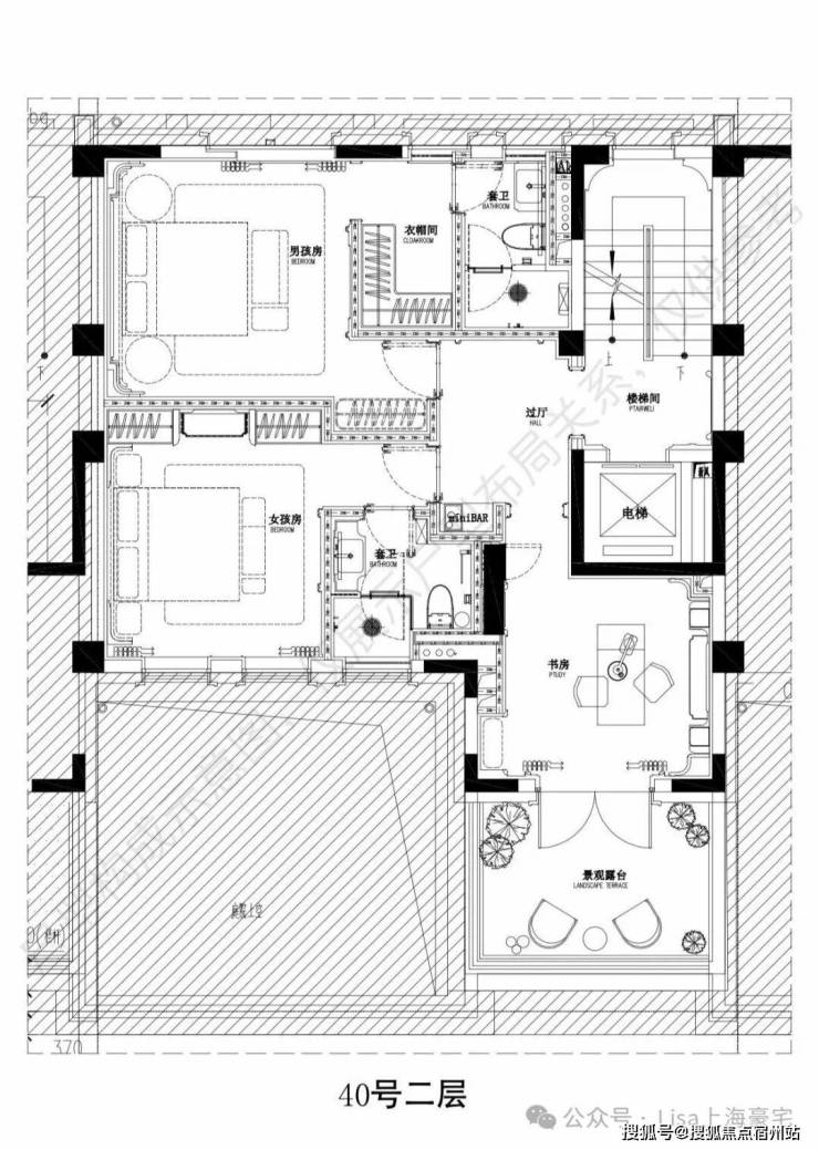
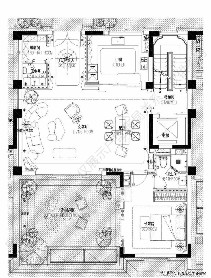
约300㎡· 户型图 参考
编辑

☑️☑️弘安里售楼处电话:400-8377-020☑️☑️
编辑

☑️☑️弘安里售楼处电话:400-8377-020☑️☑️
← 左右滑动查看项目实景 →
编辑

编辑

☑️☑️弘安里售楼处电话:400-8377-020☑️☑️
弘安里,不仅是一个名字,更是一种新海派生活方式,当代家族心向往之的传承珍藏,「传颂300」,为上位者的归心保留为数不多的席位。
编辑

☑️☑️弘安里售楼处电话:400-8377-020☑️☑️
「传颂300」,匹配高净值精英的偏好,讴歌文化与艺术的生活,拒绝堆砌式奢华,以国际视野观照骨子里的情结,现代东方与西方的艺术交融,当代与复古融合,打造仪式感与松弛度,契合当代海派家族生活旨趣,追寻内心自洽的精神场所。
编辑

☑️☑️弘安里售楼处电话:400-8377-020☑️☑️
从院落自然到城市峯景,从日常生活到家族传承,弘安里「传颂300」样板房开放,限量房源压轴上市,风貌传奇续写海派落款。