☑️☑️中粮北外滩一号售楼处电话:400-8377-020☑️☑️中粮·北外滩壹号 NORTH BUND ONE 中粮大悦城上海第五座壹号系
建面约185㎡/228㎡天际大平层
建面约190㎡/210㎡/280㎡海派风貌墅
即将入市,敬请期待
城市展厅【壹号会客厅】现已开放,诚邀参观
☑️☑️中粮北外滩一号售楼处电话:400-8377-020☑️☑️
编辑

☑️☑️中粮北外滩一号售楼处电话:400-8377-020☑️☑️
丨项目基本信息丨
总占地面积:约2.38万㎡
交付标准:高层精装交付,别墅毛坯交付
总户数:208户(90套高层、118套别墅)
首开产品:建面约185㎡/228㎡天际大平层
扫描二维码 预约参观
编辑

☑️☑️中粮北外滩一号售楼处电话:400-8377-020☑️☑️
大悦城控股在上海坚持城市共生,立足“一江一河”城市战略,从陆家嘴的海派复兴到苏河湾畔的人文共生, 从国际前滩探寻城市新生到和平公园的东方意境,中粮大悦城以全球高端人居理念,开启上海“壹号系”的“一江一河”生长之路。
· 2009-中粮·海景壹号
矗立陆家嘴云端,以摩天之姿定义东方天际
· 2015-中粮·天悦壹号
临水苏州河畔,以静谧美学重构都会张力
· 2018-中粮·前滩海景壹号
革新生态人居,以国际视野雕琢未来城脉
· 2021-中粮瑞虹·海景壹号
以新亚洲极简主义,让东方意境栖居时光
编辑

☑️☑️中粮北外滩一号售楼处电话:400-8377-020☑️☑️
编辑

编辑

☑️☑️中粮北外滩一号售楼处电话:400-8377-020☑️☑️
· 世界湾区,全球CAZ
北外滩+陆家嘴+外滩的黄金三角,上海“一江一河”城市战略规划核心段。
编辑

· 840万方城市生长力
4平方公里统一规划的雄心,北外滩以世界会客厅的尺度,重写全球资源配置。
编辑

· 超高建筑群重塑浦西城市天际线
——25年4月,约480米的浦西第一个高楼北外滩中心9根巨型结构柱已跃出地面,进入地上施工阶段,预计2030年完工。
——180米的上市中心正在建设中;2025年2月,上海华贸中心项目主楼规划调整从180米加高至249米,调整规划获批。
——320米的白玉兰广场,263米的来福士双塔、180米友邦金融中心、158米国华金融中心、100米FC金茂广场已投入运行。
此外,北外滩区域还规划了1栋380米建筑,2栋300-320米建筑,9栋200-265米的超高建筑。
从2020年北外滩新元年开始,《北外滩地区控制性详细规划》获批后,虹口区制定了“三年出形象、五年塑功能、十年基本建成”的发展目标,将北外滩定位为“新时代都市发展新标杆”和上海“中心辐射”新引擎。
编辑

☑️☑️中粮北外滩一号售楼处电话:400-8377-020☑️☑️
· 全球菁英的北外滩国际生活区,未来生活的“超维样本”
——22公顷无车漫步区
——3.5万平方米航海公园与中央绿地相融
——3.4公里滨江休闲岸线
编辑

☑️☑️中粮北外滩一号售楼处电话:400-8377-020☑️☑️
编辑

编辑

· 纵横全城 从容畅达
—三轨三隧通达双快速—
4号线大连路站、12号线提篮桥站、19号线提篮桥站(在建中);大连路隧道、新建路隧道、北横通道(快速辐射内环),叠加南北通道(规划中);内环高架、北横通道瞬息接驳。
· 摩登与历史交辉
—商业地标环伺—
北外滩来福士(约600米)、瑞虹天地太阳宫(约350米)、白玉兰广场(约1公里),汇聚全球奢享;
外滩万国建筑群(约2.4公里)、陆家嘴三件套(约2.2公里),于窗前定格经典天际线。
编辑

☑️☑️中粮北外滩一号售楼处电话:400-8377-020☑️☑️
· 自然与健康共生
—生态秘境—
北外滩中央公园(约6公顷)、北外滩滨江绿地(约1.8公里慢跑道)、霍山公园(社区绿肺),推窗见绿,转角遇美;
—医疗配套—
上海市第一人民医院(约1.9公里)、上海交大医学院附属新华医院(约2公里),三甲守护,健康无忧。
编辑

编辑

当黄浦江的百年潮声叩响城市记忆,中粮大悦城上海第五座壹号系,以更厚重的迭代之势,深植海派文化根系,以谦恭之姿对话历史文脉,以全球格局焕新城市界面。
这一次,不仅是「壹号」基因的传承,更是众多领域大师的匠心共著——从空间美学到细节工艺,从功能规划到精神共鸣,以跨界的智慧碰撞,雕琢大悦城控股上海又一封面力作。
编辑

☑️☑️中粮北外滩一号售楼处电话:400-8377-020☑️☑️
· 90席天际大平层
俯揽黄浦江视野,执掌世界S湾的时代潮向。
编辑

· 118席海派风貌墅
重绎石库门风骨,唤醒海派生活的优雅基因。
编辑

虽然项目仅有208户,仍然通过深挖三层,满配了高达 约1800㎡的私享顶奢会所。按户均占有会所资源计来算,这在当今顶豪圈是顶尖的水平。
会所由全球顶奢酒店设计领域的标杆——CCD香港郑中设计事务所执笔。 目前看到的效果图,体现出一股醇正的老钱世家风,设计品位远超市场同类豪宅。
编辑

效果图,仅供参考
社交宴会区内,私宴、茶室与专属酒吧一应俱全,满足业主商务应酬到亲友小聚的各种场景需求。
编辑

☑️☑️中粮北外滩一号售楼处电话:400-8377-020☑️☑️
效果图,仅供参考
瑜伽健身区,大幅落地窗引入自然光线,天花的格栅造型,地面的复古拼花木地板,都透出浓厚的海派风情。
编辑

效果图,仅供参考
恒温泳池更是融入超级垂直花园庭院体系,直接在泳池中做出美轮美奂的景观。
编辑

☑️☑️中粮北外滩一号售楼处电话:400-8377-020☑️☑️
效果图,仅供参考
雅集共聚区内,除了常规的阅读,棋牌等功能外,甚至设有一个舞蹈录音室,配置之高,沪上少见。
编辑

☑️☑️中粮北外滩一号售楼处电话:400-8377-020☑️☑️
效果图,仅供参考
因为这是中粮大悦城的壹号系,珠玉在前,小编完全不担心会所未来兑现的效果,甚至已经很期待看到未来会所开放展示的那一刻。
景观方面,设计了「八大主题场景」,从百年梧桐下的静谧巷道,到充满未来感的艺术庭院,共同构成一个鲜活立体的生活剧场。
编辑

效果图,仅供参考
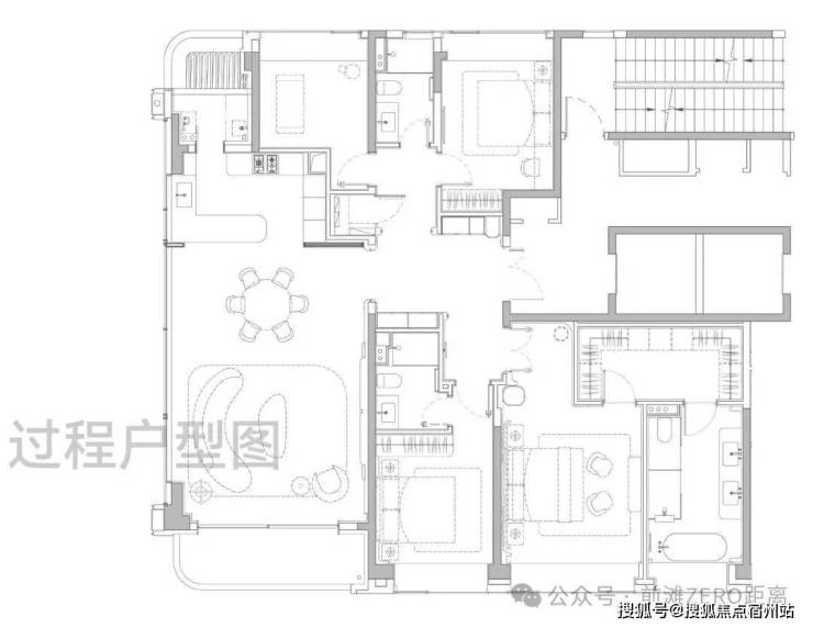
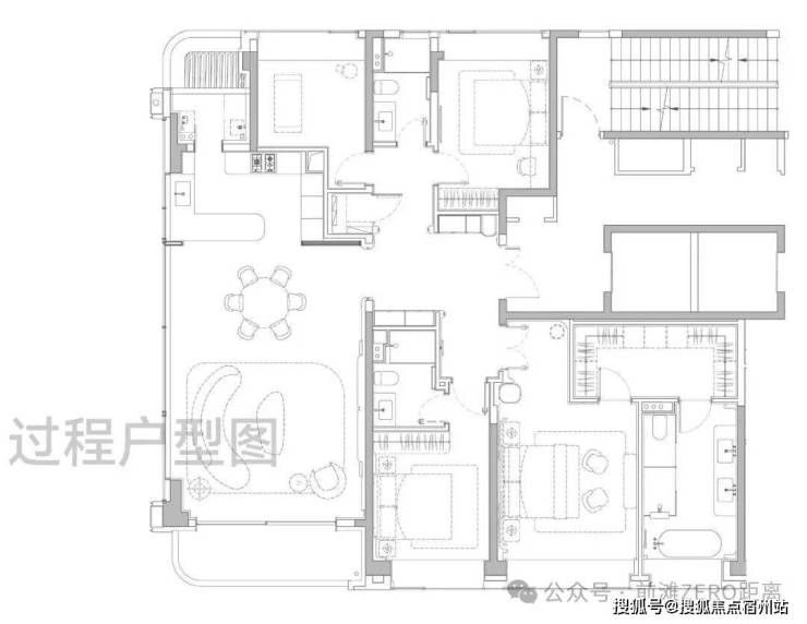
户型方面,即将入市的90套天际大平层圈层纯粹,中间户是185㎡,边户是228㎡,均为四房两厅三卫设计,全系类一梯一户的配置。
扫描二维码 预约参观
编辑

☑️☑️中粮北外滩一号售楼处电话:400-8377-020☑️☑️
示意图,仅供参考
因为南向都是低密风貌的缘故,项目的采光好到离谱了!
参考第三方做的冬至日9:00至16:00间的有效日照时间分析,即使中低区,也都拥有优秀的采光条件,冬至日南向客厅和居室均达到了5小时以上。
这么好的日照,超绝大多数市中心的超高层豪宅想都不敢想。
图源网络,仅供参考
编辑

除了采光,项目的南向景观资源也很能打。低区看风貌城市界面,中区看北外滩建筑群像,部分高区能看 黄浦江景与陆家嘴三件套。
阿斌在网上扒到了项目隔壁一幢公寓,10多层的实拍照片。果然是毫无遮挡, 令人豁然开朗!
编辑

☑️☑️中粮北外滩一号售楼处电话:400-8377-020☑️☑️
图源链家网,仅供参考
再具体看户型,所有90套户型的采光,都有即将入市的90套天际大平层圈层纯粹,中间户是185㎡,边户是228㎡,均为四房两厅三卫设计,全系类一梯一户的配置。
185㎡四房奢阔大宅
户型图为过程稿,以开发商发布为准
编辑

☑️☑️中粮北外滩一号售楼处电话:400-8377-020☑️☑️
准1梯1户设计,私享电梯厅独立入户,经典飞机户型,三开间朝南,南北通透,动静分区,通风采光俱佳。
独立玄关做足私密性和仪式感;LDKB 一体化设计的客餐厅面积达到约55㎡,方正大气。
主卧套房尺度豪奢,可供业主配置步入式衣帽间,卫生间做到双台盆+大浴缸+独立淋浴的顶配,尊崇感十足!
228㎡四房天际大宅
户型图为过程稿,以开发商发布为准
编辑

准1梯1户设计,私享电梯厅独立入户,户型尺度进一步升级,当今顶豪新盘中极为稀缺的四开间朝南。
边厅面积超过50 ㎡,给一家人提供了阔绰的交流空间;约270°环幕景观设计,带来极好的采光,并且高区可以直面陆家嘴城市天际线+黄浦江景观,视野相当震撼!
主卧大套房设计带超大主卫和衣帽间,面积约50㎡,尺度感与市面上近300㎡的顶豪拉平。
室内设计由中国现代室内设计领域的领军人物——梁志天亲自打造。
在材质选用上,延续了壹号系的高端标准,大量运用奢石、高难度弧形工艺以及国内外顶尖品牌。
如宝格丽大理石打造的西厨岛台、铂浪高的净水三合一水龙头和一体式大水槽、霍尼韦尔的前置过滤器、全屋软水以及末端净水器系统、来自意大利法罗力燃气热水器、德国唯宝卫浴、当代龙头及花洒......还有全屋华为智能家居系统配置。这一套组合,是真正意义上的顶豪序列配置!
编辑

☑️☑️中粮北外滩一号售楼处电话:400-8377-020☑️☑️
中粮·北外滩壹号
黄金三角北外滩正核
中粮上海第五座壹号系作品
90套高层+118套海派风貌别墅
首推约185-228㎡4房大平层
均价仅14.38万/㎡!
首开总价仅约2500万起!
已经过会!即将认购!
☑️☑️中粮北外滩一号售楼处电话:400-8377-020☑️☑️
2023年9月,中粮以协议出让方式拿下了虹口区116街坊地块,成为了近两年北外滩红线内最早布局的开发商之一。
也因此,中粮极具战略眼光、先人一步拿地的深远布局,让中粮·北外滩壹号 从北外滩整个区位上来看,都拥有极高的性价比!
同区位直距半径约1.5km范围内,项目北侧的金茂璞元均价 约16.8万/㎡!
与项目直线距离仅约700米左右,绿城潮鸣外滩放风价 约18-20万/㎡!
对比中粮·北外滩壹号仅约14.38万/㎡的价格,无疑是北外滩错过难再有的抄底机遇!
不仅如此,这个单价甚至几乎与远在后滩板块的某楼盘大户型均价持平!
换句话说,你相当于 以买进前滩板块的价格,买入了全球CAZ,世界S湾区、北外滩+陆家嘴+外滩的黄金三角的核心地段,这样的无敌性价比,全上海难觅!
项目首推高层产品,视野极佳,窗外直面黄金三角城市天际线!部分高区房源可以直接俯瞰黄浦江景!
总计仅90套高层大平层,一次性全部推出!约185㎡户型仅46套,约228㎡户型仅44套,绝版稀缺,限量珍藏,错过再无! ☑️☑️中粮北外滩一号售楼处电话:400-8377-020☑️☑️

☑️☑️中粮北外滩一号售楼处电话:400-8377-020☑️☑️
示意图

☑️☑️中粮北外滩一号售楼处电话:400-8377-020☑️☑️
房型图
房型图

中粮壹号系作品发布盛典!
全维度大咖背书!为北外滩塔尖封面!
11月22日,中粮在上海成功举办了“中粮大悦城世界S湾壹号作品全球发布盛典”!
发布会上,中粮大悦城几位高层领导人及实力派专家纷纷出席上台发言,从区位价值到中粮“好房子”体系,从宏观格局到微观细节,全方位进行了权威解读!

☑️☑️中粮北外滩一号售楼处电话:400-8377-020☑️☑️
实景照片
全维度大咖的背书,也印证了中粮在打造“壹号系”作品上的极致产品力与态度:
不妥协、不将就,坚持整合顶尖资源,用心打磨真正代表顶级豪宅的“标杆作品”!
实景照片
1、严苛择址观:非核心不筑,非“一江一河”不筑!
在顶级人居的版图上,地段的价值早已超越简单的区位概念,它是身份、资源与未来潜力的终极背书,中粮深谙此道!
细数中粮大悦城的前4座“壹号系”作品,地理位置分别位于陆家嘴、苏河湾、前滩、瑞虹新城;
随便哪一个拎出来,不是核心,就是热门!
中粮“壹号系”,已然成为房地产界的顶级“奢侈品”符号!
这次的中粮·北外滩壹号直接占位世界湾区,全球CAZ,北外滩+陆家嘴+外滩的黄金三角,上海“一江一河”城市战略规划核心段!

示意图
项目位于北外滩核心商务区与提篮桥风貌区交汇处,既可以享受商务区的繁华配套,又可以感受百年风貌的历史风情!
作为上海乃至全球都极具稀缺性的板块,北外滩的价值正进入快速爆发期!
中粮·北外滩壹号的落地,不仅是对城市稀缺资源的占有,更是以其高端产品力,参与并引领了该区域的价值重塑,为上海顶豪市场提供了新的“壹号答案”!

☑️☑️中粮北外滩一号售楼处电话:400-8377-020☑️☑️
示意图
2、中粮权益,全产业链服务!商场会员、社区服务...专属中粮业主的超级VIP!
与小开发商不同,大的知名品牌开发商的独特优势之一,就是在于可以依托着集团进行整合全产业链资源!
中粮,作为从新中国成立就耳熟能详的名字,其背景有多牛?
TA不仅是与新中国同龄的国务院直属大型央企之一,也是世界五大商之一!
旗下 15 家上市公司,拥有大悦城、福临门、长城(葡萄酒)、蒙牛、可口可乐等 43 个家喻户晓的品牌!
这些早已融入我们日常生活中点点滴滴的品牌,如果都统统服务于中粮的业主,其核爆能力该有多强!
这意味着, 未来“壹号系”的业主,将能享受到直通大悦城商业的会员权益 、中粮品牌的社区服务等等超多的超级VIP服务!

实景照片
3、上万组高净值业主的居住洞察,1800+组业主深访,成就“壹号系”的璀璨!
中粮深知,真正优秀的产品力,绝非闭门造车的凭空想象,而是源于与用户的深入共情与对话!
因此,中粮从过往项目中积累下庞大而忠实的业主群体,他们的居住体验、生活痛点以及对理想居所的憧憬,构成了驱动“壹号系”不断进化,不断向完美靠近的核心动力源!
从这些高净值人群中,中粮与1800+组铁杆业主进行深访与链接,精准洞察了从青年家庭Z世代到成熟家庭的人居需求!
通过细致入微的调研,并从业主的反馈中,对项目进行更深入的产品力优化,终于有了今日耀眼的中粮·北外滩壹号!

实景照片 ☑️☑️中粮北外滩一号售楼处电话:400-8377-020☑️☑️
于是,你会看到中粮·北外滩壹号在产品打造上,与市面上常见的住宅有着本质区别,
由于可以讲的内容比较多,我们从小的点拎几个出来单独聊聊!比如——
1)无缝融入的人性化细节!
以户型的室内空间为例,走进中粮·北外滩壹号的样板间,你所感受到的并非简单奢侈元素的堆砌,而是细致入微、恰到好处的极度舒居体验!

☑️☑️中粮北外滩一号售楼处电话:400-8377-020☑️☑️
样板间实景照片
中粮不仅提前预判了你所需要的各种需求,甚至在你没有想到的地方,TA都为你考虑了十分周全!
最明显的一点就是除了客厅、卧室之外,你在 厨房、卫生间、衣帽间等几乎所有空间都可以看到有出风口,

样板间实景照片
也就是说,这次中粮·北外滩壹号 把中央空调覆盖到了室内的每一个角落,解决了一大波人的居住痛点!
厨房空间除了配备单独的空调之外,同时设置有 智能火宅烟雾报警系统、燃气泄漏警报、漏水警报等实时监控,给业主带来极大安全感!
次卧客房或老人房,则贴心设计 华为AI康养传感器防跌倒功能,以防老人跌倒等等!
这些全部可通过 华为全屋智能家居系统一键掌握,从智能门锁、安防监控、水电煤气实时监测到离家场景一键布防,所有信息清晰反馈至用户手机端,无论身处全球何处,家的状态尽在掌握!
当然,中粮在各种人性化细节上的融入远不止这些,正是这些看似微小的细节升级,背后是中粮对业主声音的极致尊重与高效转化!
2) 决不妥协的严苛选品!
目前市面上的许多项目为了节省成本,在装修标准上,一个户型装标可能用上多达十几种不同的品牌和型号!
而在中粮·北外滩壹号你可以看到,样板间内所采用的品牌统一且聚焦,几乎清一色全球顶尖品牌中的高端系列!
甚至每个卫生间所采用的品牌都是统一型号,没有主卧、次卧之分,完全不做降标!
比如,每间卧室卫生间统一采用 德国唯宝的进口洗手台盆、独立式浴缸,智能马桶,以及 当代龙头、恒温花洒套装,让全屋的卫生间都做到最高标准配置!

☑️☑️中粮北外滩一号售楼处电话:400-8377-020☑️☑️
样板间实景照片
据说,中粮在卫浴设备上曾经在劳芬和唯宝之间再三衡量,光选型就花了 3 个多月,最终定下来唯宝高端系列!
别看这小小一方空间,价值可不菲,光是一个唯宝浴缸,市场价值就高达约9万人民币,其它价值可以尽情自行脑补!
厨房空间同样是顶级装标,主要由国际顶级品牌 嘉格纳厨电设备和 柏丽橱柜系统组成!
嘉格纳厨电,包括了 2 个单眼燃气灶、电磁炉、油烟机、全嵌式洗碗机、嵌入式蒸烤一体机(2025 最新型号)等!

☑️☑️中粮北外滩一号售楼处电话:400-8377-020☑️☑️
样板间实景照片
冰箱选用德国进口的 利勃海尔,并且布局了两个冰箱,均有急速冷冻、急速冷藏功能,选型时特别选品配备 制冰机功能,冰箱容量足足有 约 500 升!

样板间实景照片
柏丽橱柜收纳系统,柜内除了配置进口的锅碗拉篮、调味拉篮,还配置了 进口升降篮、挂门包宝、角柜小怪物、功能抽等,让厨房空间井然有序,用品拿取更加方便!

☑️☑️中粮北外滩一号售楼处电话:400-8377-020☑️☑️
样板间实景照片
3)实用与美观并存的“空间美学”!
中粮·北外滩壹号的另一个出彩部分,就是在“空间美学”上的打造上!
室内采用了大量的弧形工艺,地面、墙面、吊顶随处可见!
不仅弱化了直角的生硬感,同时在视觉上更加柔和,唯一缺点就是打造上费钱费时!
地面采用三种进口大理石拼接,温润如玉的质感,让人脚刚踏进门,这奢贵感就有了!

☑️☑️中粮北外滩一号售楼处电话:400-8377-020☑️☑️
样板间实景照片
左右两侧双玄关柜,精选进口红影木木饰面,嵌入金属线条及木工雕刻的 Artdeco 印记,再加上转角大圆弧造型,极具质感!
高级红影木木饰面所呈现的立体哑光纹理,不仔细看还以为是皮革材质!
单是这入户 玄关空间就达约 11.5㎡(宽 3.1 米,深 3.7 米),尺度比市面上的某些楼盘次卧空间都要大!
平日关闭时看着像墙体,打开就是巨大的隐形储物空间,可以收纳储藏大量日常杂物用品!

☑️☑️中粮北外滩一号售楼处电话:400-8377-020☑️☑️
样板间实景照片
进入客厅是 270°的环幕瞰景空间,可以眺望北外滩乃至陆家嘴美景,玻璃幕墙外的城市天际线可尽收眼底!
整个客厅、餐厅、阳台一体空间尺度高达 约53平方米,尽显豪宅大平层的大尺度奢阔感!

样板间实景照片
主卧套房空间,超大尺度的面宽和纵深带来了 约50㎡(含飘窗)的超级使用空间!

☑️☑️中粮北外滩一号售楼处电话:400-8377-020☑️☑️
样板间实景照片
得益于大尺度的主卧空间,也因此让主卧内自带了一个 巨大的衣帽间,这样的空间尺度,不知道的还以为走进了高档服饰展示厅!

样板间实景照片
4)约1800㎡高奢艺术会所!
在高层的地下空间,项目配置了约1800㎡高奢会所,由国际知名设计院 CCD 设计!
整个会所空间提取并运用石库门过街楼、巴洛克雕花门楣等经典符号,与风貌保护区形成了一致的调性!

☑️☑️中粮北外滩一号售楼处电话:400-8377-020☑️☑️
效果图
功能上配备全维功能场景,包含 恒温泳池,健身瑜伽,舞蹈录音,私宴红酒,学习阅读等众多功能,展现社交、休闲、运动、艺术等多维礼遇生活!

☑️☑️中粮北外滩一号售楼处电话:400-8377-020☑️☑️
效果图
高层仅90户业主,未来将和风貌大宅的业主共享这个完整的会所空间,户均会所使用面积高达约8.65㎡/户!
效果图
社区空间则通过棋盘式巷弄布局串联公共与静谧区域,利用 庭院,露台、下沉式花园等打造多层次空间,营造“建筑可阅读、城市可漫步”的高定体验!
效果图