☑️☑️江湾鸿玺售楼处电话:400-8377-020☑️☑️ 宝山高境,3号线殷高西路站新盘「江湾鸿玺」即将入市!预计将推出套均200㎡大平层!
编辑

☑️☑️江湾鸿玺售楼处电话:400-8377-020☑️☑️
户型图如下:
(仅供参考,最终以实际为准)
建面约200m²4房户型
编辑

☑️☑️江湾鸿玺售楼处电话:400-8377-020☑️☑️
一房一价表如下:
编辑

☑️☑️江湾鸿玺售楼处电话:400-8377-020☑️☑️
说到高境,作为宝山近市中心的板块,一直以来缺乏新房,上一次主力供应要追溯到2015年的泰禾红御,目前该项目是高境乃至整个宝山标杆,部分房源挂牌价9万+/㎡。
回到江湾鸿玺,项目位于殷高路逸仙路路口,其实就是很多人说的高境欣苑二期,在高境欣苑中又开发了一栋楼。
编辑

☑️☑️江湾鸿玺售楼处电话:400-8377-020☑️☑️
编辑

编辑

☑️☑️江湾鸿玺售楼处电话:400-8377-020☑️☑️
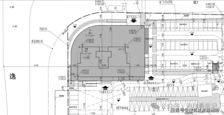
首层为商业配置,未来将引入运动健身、休闲会馆、便利商超等功能设施,物业提供24H管家式服务。
规划设计图:
编辑

☑️☑️江湾鸿玺售楼处电话:400-8377-020☑️☑️
我们放大看:这栋楼共18层,估计2梯2户,据悉首层为商业配置,将来可能引进运动健身、休闲会馆、便利商超等。
还有两套自持,所以可售为32套,户型为建面约200㎡大平层。
编辑

☑️☑️江湾鸿玺售楼处电话:400-8377-020☑️☑️
项目距离3号线殷高西路站仅100米,1公里直达18号线殷高路站,双轨并行锋速通达的时间效率;书香萦绕的教育高地,科创引领、产业先行的核心经济圈。此外,通过逸仙路高架,可以提升通行时效,快速连接五角场合生汇、百联又一城、万达广场、虹口龙之梦等中大型商业综合体。
☑️☑️江湾鸿玺售楼处电话:400-8377-020☑️☑️ 生活配套成熟,项目西侧就是一个商场,吃喝玩乐都能满足,新业坊·源创潮流、精致元素的加持也为板块注入更多活力。
殷高西路上还有永辉、长江国际、景瑞生活广场等,生活很方便。
编辑

☑️☑️江湾鸿玺售楼处电话:400-8377-020☑️☑️
另外,紧邻逸仙高架路+3号线,可能会有一定噪音,同时处于交通要道五岔路口,这里的车流量、人流量非常大,拥堵情况比较严重。
上海房地产已步入自住改善的时代。
宝山作为近市中心的板块,一直以来缺乏新房,上一次主力供应要追溯到2015年的泰禾红御,目前该项目是整个宝山标杆,部分房源挂牌价9万+/㎡。
编辑

☑️☑️江湾鸿玺售楼处电话:400-8377-020☑️☑️
宝山一直以来很缺新盘,上一次推盘要追溯到2015年的泰禾红御,区域内积攒了大量改善需求。如今板块睽违已久的新盘来了:
江湾鸿玺均价已过会!推出32套建面约200㎡大平层,4房3卫格局,也是整个北上海难得的终极改善项目。
编辑

☑️☑️江湾鸿玺售楼处电话:400-8377-020☑️☑️
一方面, 上海土拍取消地价上限之后,对装标等有了高品质的要求,核心地段的珍藏地块接连亮相,新地块普遍高溢价成交,楼面价屡创新高。
尤其是中环沿线,续徐汇滨江之后,长宁天山,静安大宁,杨浦滨江,浦东北蔡、新杨思等区域相续迎来单价“地王”,未来售价不断加码。
不难发现,中环沿线未来起步价格将会是10万+/㎡!
编辑

☑️☑️江湾鸿玺售楼处电话:400-8377-020☑️☑️
区位示意图,数据来源上海土地市场
再来看中环沿线新房价格当前的格局。
规划强势的如徐汇长桥,三林滨江,静安大宁,杨浦滨江等,价格全面突破11万+/㎡。
地段核心的如长宁天山、西郊等,价格普遍在约11.8万+/㎡;
即使是闵行七宝、杨浦长海街道等,价格也普遍在10万/㎡左右。
不难发现, 中环沿线的产品,起步总价至少要千万级,想要买大面积改善户型,总价或将达到2000万左右!
编辑

☑️☑️江湾鸿玺售楼处电话:400-8377-020☑️☑️
区位示意图,数据来源网上房地产
01.
4%的极致稀缺性
真正的限制级藏品
数据统计,2023-2024年,上海二手房市场, 200平以上户型,占比仅4%。而2024年成交的200平二手房里,别墅产品占比超70%,其中绝大部分位于郊区。
编辑

☑️☑️江湾鸿玺售楼处电话:400-8377-020☑️☑️
江湾鸿玺200平以上纯粹大平层豪宅社区,一步到位的改善产品。
200平以上一直都是上海中环至外环内极为稀缺的小众产品。而素有上海大平层豪宅天花板的陆家嘴片区,也仅仅只有汤臣一品、中粮海景壹号、保利one56满足纯200平以上大户型配置。
2025年,上海北中环横空出世一个超级改善楼盘—— 江湾鸿玺。10万+的配套和资源,8万不到的价格。
编辑

☑️☑️江湾鸿玺售楼处电话:400-8377-020☑️☑️
项目位于三号线殷高西路站,作为上海CBD金线,直达内环的核心线路,8站人民广场、9站南京路、10站静安寺,30分钟无缝衔接,便捷直达上海多个核心区CBD。
近中环,轨交旁,只此4%限量级供应,案名首次曝光,预计二季度入市,欢迎品鉴。
02.
200平纯改善住区
全套房主卧
品质方面有三点值得一提:
1、精装高标准:
据悉上海10万+内环新盘才会采取的精雕铝板装甲入户门,甄选全球品牌,耶鲁、博世、唯宝、汉斯格雅等,搭载全屋智能系统,以酒店式标准要营造一个更舒适、更人性化的居家环境。 开发商有很多人性化的考量,可以过来实际感受挖掘。
编辑

☑️☑️江湾鸿玺售楼处电话:400-8377-020☑️☑️
编辑

☑️☑️江湾鸿玺售楼处电话:400-8377-020☑️☑️
编辑

☑️☑️江湾鸿玺售楼处电话:400-8377-020☑️☑️
以上图片为样板间实景图。
2、时尚的底层泛会所服务,项目底层意向配备咖啡厅、洗衣房、健身空间、美容服务等商服功能,为业主提供更便捷精致的生活方式。(配套商服意向业态,最终以实际为准)
编辑

☑️☑️江湾鸿玺售楼处电话:400-8377-020☑️☑️
3、搭载万物梁行高端品牌物业顾问,万科上海在地优势+戴德梁行国际化视野,提供贴心管家式物业服务,7x24h全时守护。
两梯两户设计,将归家尺度感拉满,专属电梯厅、入户玄关,创造更私密、更独立的生活环境。
编辑

03.
仅32席尊贵席位
24小时管家式定制服务
产品打磨上,不惜成本,部分墙面、地面选择高规格石材铺装。4000+/平精装投入,甄选汉斯格雅、博世、科勒等国际名品,只为营造由外及里的尊崇生活体验。
编辑

☑️☑️江湾鸿玺售楼处电话:400-8377-020☑️☑️
真正的奢宅,从来都不会批量生产。 江湾鸿玺仅32席定制级藏品,也将为这32组家庭提供臻享会所。
编辑

☑️☑️江湾鸿玺售楼处电话:400-8377-020☑️☑️
04.
板块信息
江湾,是上海的四大古镇之一,蕴含着深厚的历史底蕴。自南宋初年,江湾镇便已屹立于此,见证了无数历史变迁。从千年古镇“铜江湾”到生态智慧之城“新江湾城”,江湾迈入1.0时代,华丽转型为区域内教育和生态环境的佼佼者。
一脉江湾,溯流北上,结合政府推进南北转型发展,加快高新技术产业的发展,提升区域的经济实力和科技创新能力的要求, 江湾2.0时代赋新登场,将全力打造上海科创中心主阵地。
编辑

☑️☑️江湾鸿玺售楼处电话:400-8377-020☑️☑️
江湾鸿玺地处江湾西大门,位于四区交汇处,地理位置优越。东有新江湾城,南有上海市四大城市副中心——五角场。
编辑

☑️☑️江湾鸿玺售楼处电话:400-8377-020☑️☑️
项目距离3号线殷高西路站仅100米,1公里直达18号线殷高路站,双轨并行锋速通达的时间效率;书香萦绕的教育高地,科创引领、产业先行的核心经济圈。
编辑

☑️☑️江湾鸿玺售楼处电话:400-8377-020☑️☑️
此外,通过逸仙路高架,可以提升通行时效,快速连接五角场合生汇、百联又一城、万达广场、虹口龙之梦等中大型商业综合体。
编辑

☑️☑️江湾鸿玺售楼处电话:400-8377-020☑️☑️
编辑

☑️☑️江湾鸿玺售楼处电话:400-8377-020☑️☑️
距离项目150米处的新业坊·源创是上海市级文化创意产业园区,定位为文创+科创小镇,5万平方商业体量,涵盖超想力亲子乐园、金融休闲及各类中西餐饮业态,已有盒马生鲜、啤酒阿姨、影赏市集咖啡店、华为展厅、上海国际影城等60多家品牌入驻。
为上海购房者提供专业的购房指南
保护您的购房投资安全


☑️☑️江湾鸿玺售楼处电话:400-8377-020☑️☑️
当下,房地产已步入自住改善的时代。
除了更大的居住空间、更高的居住品质、更好的装修标准等产品力的加强, 改善客户想要买入核心地段,那真的要趁早了!
最新消息!
上海中环旁、四轨环绕 江湾鸿玺今日正式开启认购,一房一价表发布:

☑️☑️江湾鸿玺售楼处电话:400-8377-020☑️☑️
自面世以来,项目一直保持着超高人气,有图有真相:


☑️☑️江湾鸿玺售楼处电话:400-8377-020☑️☑️

项目的高人气是必然的,因为这可能是整个上海中环旁建面约200㎡起改善产品门槛级的价格了,真正的错过再无。

☑️☑️江湾鸿玺售楼处电话:400-8377-020☑️☑️
▲ 效果示意图,仅供参考
一方面, 上海土拍取消地价上限之后,对装标等有了高品质的要求,核心地段的珍藏地块接连亮相,新地块普遍高溢价成交,楼面价屡创新高。
尤其是中环沿线,续徐汇滨江之后,长宁天山,静安大宁,杨浦滨江,浦东北蔡、新杨思等区域相续迎来单价“地王”,未来售价不断加码。
不难发现,中环沿线未来起步价格将会是10万+/㎡!

☑️☑️江湾鸿玺售楼处电话:400-8377-020☑️☑️
▲ 区位示意图,数据来源上海土地市场
再来看中环沿线新房价格当前的格局。
规划强势的如徐汇长桥,三林滨江,静安大宁,杨浦滨江等,价格全面突破11万+/㎡。
地段核心的如长宁天山、西郊等,价格普遍在约11.8万+/㎡;
即使是闵行七宝、杨浦长海街道等,价格也普遍在10万/㎡左右。
不难发现, 中环沿线的产品,起步总价至少要千万级,想要买大面积改善户型,总价或将达到2000万左右!

☑️☑️江湾鸿玺售楼处电话:400-8377-020☑️☑️
▲ 区位示意图,数据来源网上房地产
另一方面,在如今普遍约10万+的上海中环沿线,以1500万级的价格就能买建面约200㎡起大4房,目前只有江湾鸿玺一盘。
目前,建面约200㎡以上的改善大户型主要集中在内环内,总价动辄3000万起步,是真正的顶豪产品。
江湾鸿玺主推建面约200㎡豪装大4房,仅有32席位,总价在1500万级,或是中环旁错过不再有的“一步到位”纯改善产品。

☑️☑️江湾鸿玺售楼处电话:400-8377-020☑️☑️
▲ 区位示意图,数据来源网上房地产
另外, 真正的改善产品属于置换塔尖,天生具有臻稀属性。
据链家数据显示,全市建面约200㎡起的改善产品,站在置换链的塔尖,仅有5157套挂牌,占比不足5%,臻稀程度不言而喻。

☑️☑️江湾鸿玺售楼处电话:400-8377-020☑️☑️
▲ 数据来源链家,截止时间2025/4/28
过去两年的二手房市场是非常动荡的, 尤其是2023年二手房成交价剧烈下挫,让不少人丧失买房信心。
但在这样的环境中,建面约200㎡起的大户型却表现得极为坚挺,甚至成交均价抬高了不少。

☑️☑️江湾鸿玺售楼处电话:400-8377-020☑️☑️
▲ 数据来源网上房地产
所以, 论稀缺性和性价比,江湾鸿玺总价1500万级的建面约200㎡豪装大4房,在中环沿线几乎就是独角兽般的存在。
Part.1
上海中环旁+四轨环绕+咫尺五角场,
中环之上的宝藏置业地,质价比极高!
整个高境、淞南、五角场、新江湾等北中环之上的区域,都已断供许久。
今年终于迎来新房供应,但淞南新地块过会价格达到7万左右,而与杨浦、虹口近在咫尺的江湾鸿玺,未来售价仅在7字头,性价比不言而喻!
①中环旁少有的四轨环绕,地段能级超高!
项目周边四轨环绕,目前已有3号线、18号线通勤市区,未来更有19号线(在建)、20号线(在建),通达全城。
项目与3号线殷高西路站咫尺之遥,下楼就是地铁,4站直达虹口足球场!
项目与18号线殷高路站直线距离900米,这条轨交被誉为“换乘王”,1站直达财大,2站复旦,7站杨浦滨江,9站陆家嘴滨江……
18号线沿线云集大量高校、科研单位及科创企业,尤其五角场和杨浦滨江的科创产业正蓬勃向上。
☑️☑️江湾鸿玺售楼处电话:400-8377-020☑️☑️

☑️☑️江湾鸿玺售楼处电话:400-8377-020☑️☑️
▲ 区位示意图,,仅供参考
②与五角场、大创智近在咫尺,近享发展红利。
江湾鸿玺位于宝山、虹口、杨浦三区的交界处,位置相当好,将三区发展红利收入囊中!
项目与五角场商业中心、大创智核心区、新江湾城相距不过3公里,一脚油门即可到达。
未来业主们不用走远,家门口就是高能级配套、科创产业、公园湿地等。

☑️☑️江湾鸿玺售楼处电话:400-8377-020☑️☑️
▲ 区位示意图,仅供参考
五角场是上海十大商业中心之一,与徐家汇、淮海中路、中山公园等齐名。
五角场小巨蛋提供超140万方的消费娱乐场域,汇聚 上海合生汇、上海万达商业广场、百联又一城、悠迈生活广场、五角场NS2地块大型商业广场(规划)、 苏宁电器广场等诸多商业巨头。

☑️☑️江湾鸿玺售楼处电话:400-8377-020☑️☑️
▲ 五角场实景图,仅供参考
根据杨浦区规划,大创智和杨浦滨江、环同济、大创谷一样,是杨浦重点发展的四大区域之一。
这里近些年落地了大量的科创产业,包括:
抖音、哔哩哔哩、叠纸等一批数字经济领军企业;丘成桐上海数学与交叉学科研究院等一批新型研发机构;
耐克、汉高等一批实体经济龙头企业;
科创型企业总部科技人文生态圈-上海科创源建成运营在即。

☑️☑️江湾鸿玺售楼处电话:400-8377-020☑️☑️
▲ 尚浦领世效果图,仅供参考
③中环北抬箭在弦上,地段价值蝶变在即。
军工路快速路新建工程预计今年年内完工,意味中环北抬今年将迈出重要一步, 而长江西路快速路已被列入2025年上海市重大工程清单,预计即将开工。
届时,项目周边不仅有逸仙路高架衔接中环、内环,还有多条快速路,这对于项目出行、板块发展,都大有裨益。

☑️☑️江湾鸿玺售楼处电话:400-8377-020☑️☑️
大创智科创产业、五角场商业中心将带来数以万计的高新高知高智人群,这些人对于衣食住行的需求会加速整个区域的发展。
而区域内产品力更高、位置更好的江湾鸿玺, 真正做到了既有现在,又有未来,业主将一手掌握整个区域的二手房定价权。
Part.2
☑️☑️江湾鸿玺售楼处电话:400-8377-020☑️☑️
超豪华装标+层高3.15米+全明户型,
媲美上海市中心豪宅的产品力!
日前两会,住建部领导说过:中国房地产正在向改善型市场转变, 建设“好房子”将是产业转型发展的新赛道。
随后,住建部 发布国家标准《住宅项目规范》对住宅的层高、得房率、产品力、低密生态、超低能耗有了新标准,5月1日开始实施。
江湾鸿玺深度契合“好房子”标准, 超豪华配置精装标准搭配建面约200㎡宽奢户型,打造匹配“好房子”标准的高品质作品。
①两梯两户、类一梯一户居住体验的大平层,私享独立电梯厅。
出电梯后的空间不仅可以作为私人入户玄关,让你告别空间共享,私密性拉满的同时还增加了 隐形实用面积。
加上入户后的玄关,足以把所有的喧嚣都留在外部。
②约3.15米的墅级层高!
☑️☑️江湾鸿玺售楼处电话:400-8377-020☑️☑️
常规高层层高为2.95米,而江湾鸿玺建面约200㎡产品的层高达到了约3.15米,堪比墅级的空间尺度!

③超豪华装修标准,比肩市中心顶豪!
项目高定奢标严选全球高端旗舰品牌,交付标准包括弗兰卡、唯宝、耶鲁、汉斯格雅、大金、玫瑰岛、博世、书香门地等国内外一线品牌,精致感和奢
☑️☑️江湾鸿玺售楼处电话:400-8377-020☑️☑️
这都是市面上10万/㎡+的豪宅用的。

☑️☑️江湾鸿玺售楼处电话:400-8377-020☑️☑️
项目使用大金的中央空调及地暖、格力空气能全屋循环热水系统、滨特尔的中央净水系统。
精雕铝板装甲入户门,配备 耶鲁智能门锁。
玄关空间非常宽敞,配置有 定制玄关柜,出入更具仪式感。

☑️☑️江湾鸿玺售楼处电话:400-8377-020☑️☑️
▲ 样板间实景图
客餐厅区域, 餐厅、电视背景墙面都是石材的,地面是瓷砖铺就,配置有 定制餐边柜、弗兰卡的水槽和龙头等。

☑️☑️江湾鸿玺售楼处电话:400-8377-020☑️☑️
▲ 样板间实景图
项目厨房使用 方太的灶蒸烤一体机、吸油烟机三件套交付,更有 弗兰卡的水槽、龙头,定制橱柜,诺贝尔的地面、墙面,石英石台面等 。
▲ 样板间实景图
2个博世的内嵌冰箱都是交付标准,一个放在厨房,一个放在客餐厅位置,方便分类储存的需求。

☑️☑️江湾鸿玺售楼处电话:400-8377-020☑️☑️
▲ 样板间实景图
卧室墙面采用局部墙布+局部硬包,地面是 书香门地实木复合地板铺就。

☑️☑️江湾鸿玺售楼处电话:400-8377-020☑️☑️
▲ 样板间实景图
卫生间甄选 唯宝的台下盆、汉斯格雅的龙头+恒温花酒,玫瑰岛的淋浴房,科勒的智能一体马桶+浴缸+浴缸龙头等 , 生活质感肉眼可见。
更有众多人性化细节,包括 加热毛巾架,淋浴屏,定制台盆柜+镜柜等,省去后期定制比价的烦恼。
卫生间地面是瓷砖铺就,台面都是石材的,做到整体美观和实用的结合。


☑️☑️江湾鸿玺售楼处电话:400-8377-020☑️☑️
▲ 样板间实景图
另外,室内搭载 罗格朗全屋智能系统,简化繁琐操作,拒绝科技污染,提供恰到好处的智慧家居解决方案。
④三开间朝南全明户型,室内通透明亮!
建面约200㎡4房2厅3卫户型,做到了 三开间朝南+主卧豪华套房设计+南北通透,保证每个家庭成员都能有自己独立的居住空间,私密性拉满。
LDKB客餐厅一体化设计, 约50㎡超大方正空间,尺度不凡的客厅搭配宽景阳台,将生活的奢度打开!
阳台、客厅、餐厅紧密相连无界连通,空间感、功能性拉满!

☑️☑️江湾鸿玺售楼处电话:400-8377-020☑️☑️
主卧以 豪华套间标准打造,配备独立步入式衣帽间以及双台盆,淋浴区/浴缸双沐浴方式,实用性与豪华兼备。
该户型是“一步到位”的大4房,无论是功能性还是尺度感,是上海改善置换金字塔塔尖的存在,未来纵享长久板块发展红利!
Part.3
双精装大堂+高端物业,
“小而精”社区,只为32席顶豪量身定制!
江湾鸿玺由沪彭集团+宝鸿房产开发,是典型具有海派腔调的“小而精”的社区,品质更具确定性。
项目是17层的独栋楼宇,对标常德公寓、武康大楼等城市地标,以新海派风格打造上海精致生活范本。

☑️☑️江湾鸿玺售楼处电话:400-8377-020☑️☑️
▲ 项目效果图过程稿,仅供参考,以实际发布为准
项目 地上+地下双精装大堂设计,为业主带来尊崇感、仪式感兼备的归家体验。
如果您是车行回家,这个 “奢阔的地下车库”,能给您更加极致的仪式感。
极具艺术感的精装车库, 星空顶+雪山银狐背景墙,打造一场视觉上的感官盛宴。

☑️☑️江湾鸿玺售楼处电话:400-8377-020☑️☑️

☑️☑️江湾鸿玺售楼处电话:400-8377-020☑️☑️
▲ 项目效果图过程稿,仅供参考,以实际发布为准
如果您是步行归家,社区入户大堂完全对标5星级酒店。
约4.75米层高、约32㎡的精装大堂,配置 雪山银狐背景墙,踏入大门就能感受到满满的尊崇感。

☑️☑️江湾鸿玺售楼处电话:400-8377-020☑️☑️
▲ 项目效果图过程稿,仅供参考,以实际发布为准
大堂内配置 泛会所服务,底层意向配备咖啡厅、洗衣房、健身空间、美容服务等商服功能(配套商服意向业态,最终以实际为准),为业主提供更便捷精致的生活方式。
地下1层还有约100㎡的健身会所,无需出门,就能满足业主的健身需求。

☑️☑️江湾鸿玺售楼处电话:400-8377-020☑️☑️
▲ 仅作示意,以最终交付为准
项目搭载 万物梁行高端品牌物业顾问,万科上海在地优势+戴德梁行国际化视野,提供贴心管家式物业服务,7x24h全时守护。