在上海,有一个区域很特殊,那就是宝山。
宝山在过去的5年中,建面约110㎡以下的刚需户型,供应占比近8成!对于改善客户而言,即使想在宝山实现置换,也是有心无力。
☑️☑️招商中旅·观境售楼处电话:400-8377-020☑️☑️
编辑

☑️☑️招商中旅·观境售楼处电话:400-8377-020☑️☑️
示意图仅供参考,数据来源新房U选数据库
但宝山人民想要改善的心情,是非常迫切的。这一点看二手房房价您就明白了:
编辑

☑️☑️招商中旅·观境售楼处电话:400-8377-020☑️☑️
所以,宝山其实在等一个足以颠覆以往、超越以往、足以引领时代的改善新房。
于是,招商中旅·观境应运而来。
招商中旅·观境
主力建面约110-144㎡纯粹改善大宅
同内环豪宅同级别的精装标准
超配酒廊,泳池,健身等功能的星级会所
下沉庭院、架空层、酒店式入口、奢华公区
宝山纯粹改善的会所大宅
01
引领区域迈向改善的塔尖新房
☑️☑️招商中旅·观境售楼处电话:400-8377-020☑️☑️
关于招商中旅·观境的产品力,我认为有几点,对于整个区域甚至是北境而言,是颠覆性革新!
颠覆性的产品力之一:堪比市区豪宅的奢华装修标准!
关于产品力,有一点一定要着重的提一下:招商中旅·观境的装修标准堪比高端豪宅。
具体的,我们来看一下约144㎡房源的精装:
首先,三大件方面:松下或同档次品牌的中央空调和地暖两联供设备、百朗或同档次品牌的新风系统;
厨房方面,西门子或同档次品牌的燃气灶、抽油烟机、蒸烤箱、洗碗机、嵌入式冰箱五件套;
还有细节上的一些配置,例如燃气热水器、末端直饮、凉霸等统统安排上了。
编辑

☑️☑️招商中旅·观境售楼处电话:400-8377-020☑️☑️
创意展示空间实景,仅供参考
编辑

☑️☑️招商中旅·观境售楼处电话:400-8377-020☑️☑️
主次卫方面,唯宝或同档次品牌的台盆;高仪或同档次品牌的台盆龙头、主卫公卫智能马桶;汉斯格雅或同档次品牌的花洒龙头;
细节方面,电视背景墙是定制石材背景墙、主卧的1套衣柜是柏厨或同档次品牌、客厅、卧室的人造石飘窗台、卫生间的岩板飘窗台...
编辑

☑️☑️招商中旅·观境售楼处电话:400-8377-020☑️☑️
整个室内的装修几乎是应有尽有,并且不是一味的品牌堆砌,而是真正在用艺术性、高端审美在构建业主未来的美好生活,这是真正贴心的装修。
颠覆性的产品力之二:酒廊,泳池,健⾝,瑜伽,私宴...酒店式精奢会所!
如今的上海,因为土地有限、能力有限、成本有限等原因。就算放眼2000万+项目,配会所的也就是十之一二(新房U选手工统计)。
而招商中旅·观境不仅打造了一个足够体量的会所,更是在这个会所内,超配酒廊,泳池,健⾝,瑜伽,私宴,棋牌,⾼尔夫等功能空间。
编辑

编辑

☑️☑️招商中旅·观境售楼处电话:400-8377-020☑️☑️
编辑

☑️☑️招商中旅·观境售楼处电话:400-8377-020☑️☑️
以上公区图,泳池,私宴区图仅为参考示意图,材质、分隔、形式等因图面有限,不作为交付依据,具体以实际交付为准,本文图片仅作为推广示意图使用,如涉及版权使用,请版权所有人与我司联系。本资料所布的内容为2024年11月前的信息,有效期30天,本资料不针对任何特定对象,所载全部内容不构成对本项目的邀约或立面材料告知书承诺,本项目的具体情况和交付标准以双方签订的商品房买卖合同及其附件约定及政府最终审批文件规定为准。
试想一下:
夏天,别人在下饺子般的游泳中心“内卷”,而你和家人在小区配套的泳池“躺平”;
别人顶着骄阳、与友人相约在人满为患的咖啡厅,而你和朋友在小区的酒廊中享受静谧,举手投足间尽显品位;
这就是区别,这就是更高端的生活方式。
可见,这不是简简单单的健身房+会客区,该会所从规模、内容、审美到细节上的用料都足以媲美一线豪宅配置,这让招商中旅·观境在该级别拥有独家竞争力。
颠覆性的产品力之三:不仅是用料,更是在审美段媲美沪上豪宅的公区!
从会所跟精装标准中,其实我们就不难体会出项目的公区用料,究竟会有多出彩。
东西太多,我就简单的拎几个点,大家体会一下:
☑️☑️招商中旅·观境售楼处电话:400-8377-020☑️☑️
约70米超大尺度酒店式门庭,光这个大门就运用了仿铜色铝板、奢石、仿铜色金属网、贝金米黄石材等众多昂贵材料。
编辑

☑️☑️招商中旅·观境售楼处电话:400-8377-020☑️☑️
以上公区图仅为参考示意图,材质、分隔、形式等因图面有限,不作为交付依据,具体以实际交付为准,本文图片仅作为推广示意图使用,如涉及版权使用,请版权所有人与我司联系。本资料所布的内容为2024年11月前的信息,有效期30天,本资料不针对任何特定对象,所载全部内容不构成对本项目的邀约或立面材料告知书承诺,本项目的具体情况和交付标准以双方签订的商品房买卖合同及其附件约定及政府最终审批文件规定为准。
酒店式礼品⼤堂,以星级酒店审美融合非遗技艺,辅以奢石用料,这就是豪宅业主才能享受到的生活。
编辑

☑️☑️招商中旅·观境售楼处电话:400-8377-020☑️☑️
下沉式中庭花园,以⽔境、浮岛、密林,构建都市中的谧境。
编辑

☑️☑️招商中旅·观境售楼处电话:400-8377-020☑️☑️
⼊户单元门头延续奢华酒店的美学质感,用奢石、铝板等材料,打造殿堂级的归家仪式感。
编辑

当然,还有招商项目必不可少的星空坡道。
编辑

☑️☑️招商中旅·观境售楼处电话:400-8377-020☑️☑️
整个项目用料之扎实,也只有在市区、千万级豪宅中才能找到竞品,这一点当然难得。
但我想说的,其实并不是用料,而是整个社区的艺术和审美。
上海的住宅太过平淡、太保守,纵使近期不少开发商开始卷公区、车库、精装,但还远远不够。
而招商中旅·观境这次打了个样,以设计艺术品的态度来建造房子,在审美艺术、生活方式上接轨国际前沿,打开了城市高端住宅新奢度。
像这个游艇曲线、鎏⾦塔冠,搭配大窗墙比的立面,势必将成为北境更亮丽的天际线。
编辑

☑️☑️招商中旅·观境售楼处电话:400-8377-020☑️☑️
还有社区门庭悬浮的⽔晶礼盒,⽤纯粹的玻璃BOX打造时尚的城市界⾯。
编辑

☑️☑️招商中旅·观境售楼处电话:400-8377-020☑️☑️
总体而言,项目的公区不是传统“金碧辉煌”的,而是用艺术品味去打造,细节之处用料也颇为考究,颇具高级感。
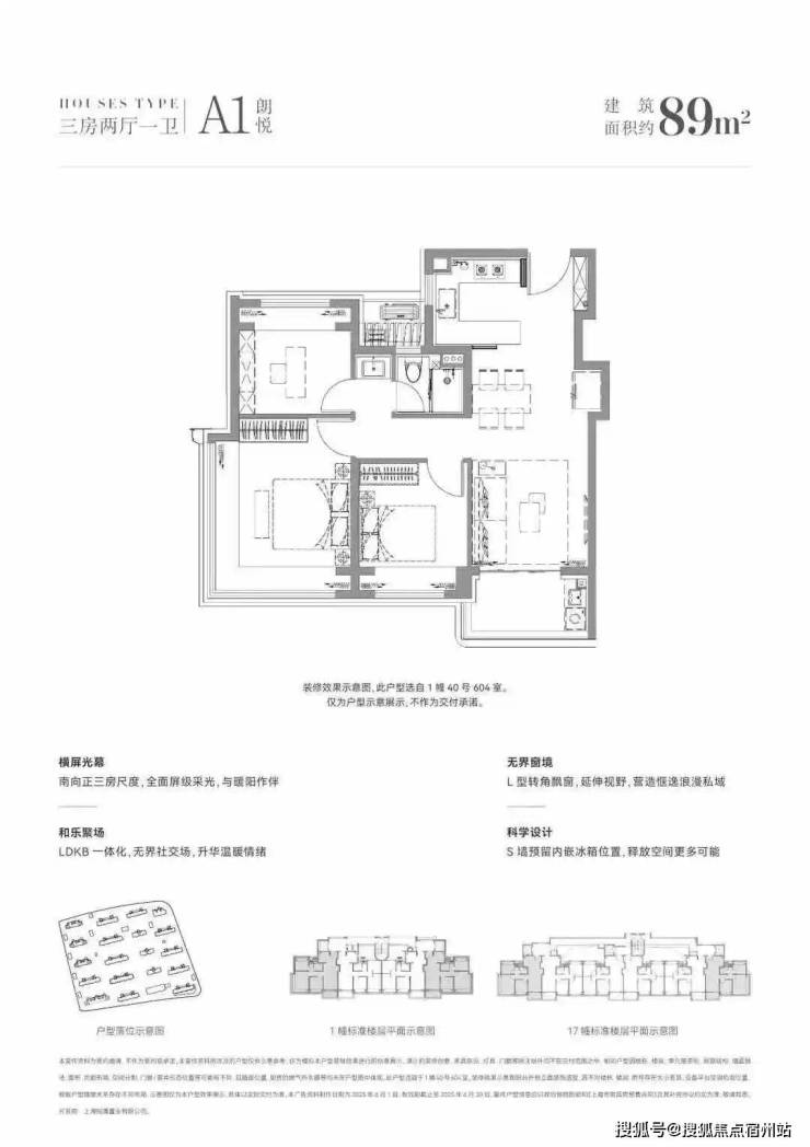
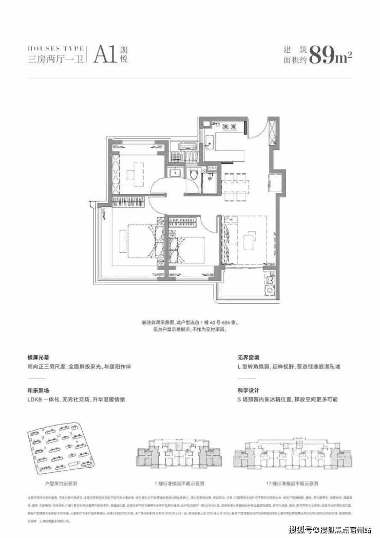
颠覆性的产品力之四:主力建面约110-144㎡,北境未曾有过的纯粹改善!
开头就说过了,宝山近5年的新房供应,建面约110㎡以下的小户型占比约8成。
整个区域,所有新房的主力户型都是约89-120㎡,或约100-130㎡,无一例外。
但招商中旅·观境的主力户型建面约110-144㎡,其中约144㎡的终极改善产品套数占比很高。
这意味着,整个社区拥有非常纯粹的改善圈层。
这样的社区,才能给业主更好的居住体验,才能给孩子更好的居住环境,才能给家里老人更宜居的居住氛围。
更重要的是,项目的户型设计,相当惊艳。
编辑

☑️☑️招商中旅·观境售楼处电话:400-8377-020☑️☑️
编辑

☑️☑️招商中旅·观境售楼处电话:400-8377-020☑️☑️
大横厅+约5.5米面宽的阳台,尺度感惊人。
并且,在撑起气场的同时,也能为生活增添更多的场景想象。
编辑

3房4飘窗1阳台的设计,更是延伸了套内的视野,也增加了实际的居住空间。
尤其是边套约270度的无柱飘窗,更是尺度感和实用性拉满。
编辑

☑️☑️招商中旅·观境售楼处电话:400-8377-020☑️☑️
附创意展示空间实景:
编辑

整个户型是四开间朝南+南北通透的飞机户型。
编辑

☑️☑️招商中旅·观境售楼处电话:400-8377-020☑️☑️
在传统的四房领域,2房朝北几乎是逃不掉的问题,但在招商中旅·观境,做到了三间卧室朝南,并且主卧拥有一个约270度的主卧无柱转角飘窗。
编辑

整个户型的采光、通风、实际使用空间拉满。
细节方面,主卧套房设计,保证了私密性。主卫的双台盆设计更是相当贴心。能实现男女主人共同洗漱的温馨场景。
编辑

☑️☑️招商中旅·观境售楼处电话:400-8377-020☑️☑️
总的来说,从格调、定位、风格、用料、宜居性、社区配套的丰富性..各个角度来看,招商中旅·观境都能称得上是北境的TOP1。
项目以颠覆性的产品入市,势必要引领宝山进入真正的改善时代。
02
北境更庞大的商业群
☑️☑️招商中旅·观境售楼处电话:400-8377-020☑️☑️
潘广路站TOD,出门即商场的潮流生活
一个拥有颠覆性产品力的新房,其地段当然是TOP级。这才真正有改变区域、引领区域步入改善的能力和底气。
招商中旅·观境的地段,占据了整个北境更核心的位置。
首先,这里有北境体量更大、能级更强的商业群。
整个招商中旅·观境步行范围内,享受总体量约25万方的招商花园城X+约14万方的龙湖宝山天街+六块的待开发商办用地。
编辑

示意图仅供参考,数据来源上海发布
什么概念呢?
大宁久光+大宁国际的体量约43万方;
前滩2个太古里的体量约30万方;
真如中海环宇城的体量约32万方;
南翔印象城的体量约33万方;
☑️☑️招商中旅·观境售楼处电话:400-8377-020☑️☑️
这个体量比很多市区的高端商业核心更大。并且,招商花园城X+这座商场的能级,是超乎想象的。
编辑

☑️☑️招商中旅·观境售楼处电话:400-8377-020☑️☑️
整个商场引⼊海洋馆、冰雪世界、恐龙园等 IP 场景赋能,打造沉浸式空间;
预计打造儿童品牌+亲⼦公区+数字科技的沉浸式场景;
预计引⼊国内外品牌超 350 个(最终以实际招商与运营⽅案为准)品牌涵盖多元餐饮、运动健康、亲⼦娱教、娱乐休闲、⽣活配套等全品类,⼀站式满⾜不同家庭不同阶段的⽣活所需。
不只是内容上的丰富,整个商场以“在地⽂化基因+异域度假风情+主题场景”融合形式,打造时空晶球、梦幻森林、云境千屿、踏梦繁花、时光之门五⼤灵感空间。
所以这不仅会是购物、遛娃、娱乐、放松心情的天堂,更会成为沪上的一大知名打卡点。
编辑

大体量+高能级的商圈,能吸引大量居住、工作在周边的人口来此消费、购物、娱乐。
编辑

☑️☑️招商中旅·观境售楼处电话:400-8377-020☑️☑️
示意图仅供参考,数据来源百度地图
长此以往,这里很容易就将形成地区中心,而招商中旅·观境作为TOD之上的住宅,自然而然就成为了地区中心之上的塔尖住宅。
换句话说,即使抛开颠覆以往的产品力,招商中旅·观境依旧能凭借配套和站位成为塔尖住宅。
7号线轨交TOD、双轨交环绕
转身即世界的出行便捷度
作为整个宝山少有的轨交TOD,招商中旅·观境的出行便捷度,同样是上海北区更出彩的。
首先,项目步行可达7号线潘广路站。
沿着轨交向前,上大、真如、静安寺、徐汇、世博等区域都能成为业主的生活圈。
同时,在7号线潘广路站坐2站就能到顾村公园站,换乘15号线能便捷到达长风、长宁、漕河泾,甚至紫竹高新区等多个沪上高能级商务区。
最重要的是,纵观整个北境的轨交站点,还有条件建造TOD、建造轨交盘的土地,寥寥无几甚至不会再有。
也就是说,招商中旅·观境真的错过不再。
堪比豪宅的豪华精装标准
超配酒廊,泳池,健⾝等功能的星级会所
免责声明:
☑️☑️招商中旅·观境售楼处电话:400-8377-020☑️☑️
1.本文为广告,本宣传资料为要约邀请,针对本项目概况进行介绍,仅供参考不作为销售承诺。项目不排除因政府相关规划、规定及开发商未能控制的原因而发生变化,最终以双方签署的正式《上海市商品房预售/销售合同》及其他相关协议文本为准。备案名:新顾城雅逸名庭。开发商:上海招潘置业有限公司、地址:宝山区鄱阳湖路780弄、预售许可证:宝山房管(2024)预字0000417号。
2.关于项目所属片区学校位于项目红线外,其建设进度、师资力量、生源确定等事项均由政府相关主管部门主导。距离为地图直线距离,最终以政府相关主管部门出具的书面文件为准。项目效果图仅供参考,以最终规划审批为准。部分图片来源于网络,仅为示意,如有侵权请联系删除。
北上海TOD精奢人居标杆
7号线潘广路站66万方TOD大城全面进阶
招商中旅·观境
加推89-128㎡产品 共计156套
过会均价48774元/㎡
前期少量110-144㎡3-4房在售
同内环豪宅同级别的精装标准
超配酒廊,泳池,健身等功能的星级会所
下沉庭院、架空层、酒店式入口、奢华公区···
兴趣的小伙伴可扫码对接销售预约咨询
☑️☑️招商中旅·观境售楼处电话:400-8377-020☑️☑️
编辑

☑️☑️招商中旅·观境售楼处电话:400-8377-020☑️☑️
认购时间:8.22-8.24中午
编辑

☑️☑️招商中旅·观境售楼处电话:400-8377-020☑️☑️
欢迎点击下方二维码,预约看房
(预约报名购房额外还可参加团购优惠,等待小助理联系😁)
识别二维码
进入“招商中旅·观境”看房通道
案场销售会第一时间与您联系
预约后请耐心等待案场销售联系
目前仅接待预约客户
01、
基本信息
2024年7月9日,招商蛇口&中旅投资拿下宝山顾村7号线潘广路站旁地块。
楼板价:约22252元/㎡,地块四至范围:东至0314-06 地块(公共绿地),南至0314-06 地块(公共绿地),西至0308-01 地块(公共绿地),北至言观路。
编辑

☑️☑️招商中旅·观境售楼处电话:400-8377-020☑️☑️
流体美学:以设计艺术品的态度来建造房子
项目采用 鎏金塔冠造型,灵感来源于国际邮轮港的曲线,流光美学的外立面,既有辨识度又有质感,是未来业主身份的象征。阳光倾泻而下,在不同光影与环境下,让家成为一件艺术品。
编辑

镜面美学:不仅美观还很实用
整个建筑立面,被大面积的镜面玻璃覆盖,于外赋予建筑如同钻石一般的光感,于内极大地拓宽了室内的视野,让自然光线无拘无束地洒入每一个空间。
编辑

☑️☑️招商中旅·观境售楼处电话:400-8377-020☑️☑️
立面部分,微弧造型,配置超大窗墙比, 非对称线条勾勒经典比例建筑体量,消解了建筑的庄严和冷峻,赋予更强的立体感,犹如画框一般,多了一份艺术沉淀。
编辑

同时,将轻法雅奢的圆润线条贯彻于大门雨棚、入户门头之间,赋予建筑艺术灵动之意,重塑大城人居美学。
编辑

☑️☑️招商中旅·观境售楼处电话:400-8377-020☑️☑️
社区上, 项目享四重酒店式归家
第一重:约70⽶超⼤尺度酒店感门庭,打造酒店般的港湾式落客。
第⼆重:酒店式礼品⼤堂,以星级酒店审美融合⾮遗技艺,每次回家宛如⼊住酒店的check in。
第三重:浮岛⽔庭,下沉式中庭花园,以⽔境、浮岛、密林,构建都市中的谧境。
第四重:⼊户单元门头延续奢华酒店的美学质感。
编辑

招商中旅·观境,带来的不仅仅是美学体验上的升级,本次地块更是配置了约2000㎡的无边际高定会所,带来全方位的奢享升级。
据悉,未来该会所,将成为业主日常休闲的好去处,配置了行政酒廊、无边泳池、健身房和私宴厅等功能。
编辑

想象一下,未来业主下楼即可运动休闲,高端的健身器材,丰富的健身配套,都可以满足业主日常的健康所需;亦或是接纳来客,喝杯咖啡洽谈商务;或者年末预定晚宴等等……
编辑

☑️☑️招商中旅·观境售楼处电话:400-8377-020☑️☑️
多功能场景,足以满足业主的各类需求。要知道,在外环,配置泳池会所的商品房项目,屈指可数,上海星河湾、颛桥紫薇花园……虽然在外环,但这些 配备了泳池会所的楼盘,都是一线豪宅标准。
编辑

酒店级礼序,塑造度假园林生活
酒店级礼序,绝不仅仅是简单说说。招商中旅·观境所做的,是 归家礼制、社区景观等方方面面的全面奢享高定。
先说归家礼制,四重酒店式归家:
第一重,配置约70米宽酒店感门厅,回家的第一眼,就有强烈视觉冲击,港湾式落客,尊贵感油然而生;
编辑

☑️☑️招商中旅·观境售楼处电话:400-8377-020☑️☑️
编辑

第二重,星级酒店式的礼宾大堂,挑高带来的庄重感,每次回家都像来到五星级酒店check in;
编辑

☑️☑️招商中旅·观境售楼处电话:400-8377-020☑️☑️
未来业主出行等车,也完全可以在此稍作等候,奢石的奢华感,辅以温润的灯光,宁静安逸。
编辑

第三重,下沉式的中庭花园,⽔境、浮岛、密林,构建都市中的谧境,摩登的水院,华灯映入水池,映出池底的金光色,雍容华贵,畅享宁静;
第四重,来到入户门厅,奢石铝板塑造厚重感,弧形的屋檐,带来流线型的美感。
编辑

☑️☑️招商中旅·观境售楼处电话:400-8377-020☑️☑️
整一套归家仪式下来,生活的烦忧,统统抛诸脑后,只剩下家的温馨。
☑️☑️招商中旅·观境售楼处电话:400-8377-020☑️☑️
02、
推售信息
招商中旅·观境加推89-128㎡3房,过会均价47466元/㎡,共计156套,前期建面约110-144㎡少量房源在售。
编辑

☑️☑️招商中旅·观境售楼处电话:400-8377-020☑️☑️
编辑

☑️☑️招商中旅·观境售楼处电话:400-8377-020☑️☑️
编辑

☑️☑️招商中旅·观境售楼处电话:400-8377-020☑️☑️
编辑

☑️☑️招商中旅·观境售楼处电话:400-8377-020☑️☑️
编辑

☑️☑️招商中旅·观境售楼处电话:400-8377-020☑️☑️
大横厅+约5.5米面宽的阳台,尺度感惊人。
并且,在撑起气场的同时,也能为生活增添更多的场景想象。
编辑

3房4飘窗1阳台的设计,更是延伸了套内的视野,也增加了实际的居住空间。
尤其是 边套约270度的无柱飘窗,更是尺度感和实用性拉满。
编辑

☑️☑️招商中旅·观境售楼处电话:400-8377-020☑️☑️
编辑

☑️☑️招商中旅·观境售楼处电话:400-8377-020☑️☑️
整个户型是四开间朝南+南北通透的飞机户型。
编辑

编辑

在传统的四房领域,2房朝北几乎是逃不掉的问题,但在招商中旅·观境,做到了三间卧室朝南,并且主卧拥有一个约270度的主卧无柱转角飘窗。
编辑

☑️☑️招商中旅·观境售楼处电话:400-8377-020☑️☑️
整个户型的采光、通风、实际使用空间拉满。
细节方面,主卧套房设计,保证了私密性。主卫的双台盆设计更是相当贴心。能实现男女主人共同洗漱的温馨场景。
编辑

☑️☑️招商中旅·观境售楼处电话:400-8377-020☑️☑️
总的来说,从格调、定位、风格、用料、宜居性、社区配套的丰富性..各个角度来看,招商中旅·观境都能称得上是北境的TOP1。