中海恒昌玖里(售楼处)首页网站中海恒昌玖里 销售中心(营销中心)-中海恒昌玖里售楼处电话-户型-价格-开盘时间-楼盘详情-周边配套中海恒昌玖里 得房率

搜狐焦点宿州站 2025-09-10 11:21:05
用手机看
扫描到手机,新闻随时看

扫一扫,用手机看文章
更加方便分享给朋友

中海·恒昌玖里售楼处预约电话:400-8824-198

【中海·恒昌玖里】

傲踞上海核心风貌区

黄浦区新天地正芯 寸土寸金的城央烫金地脉

海·恒昌玖里售楼处预约电话:400-8824-198

建面约811-843㎡传世大宅

总价约3.39亿-3.41亿

地上3层,地下2层

花园面积约102-120㎡(赠送)

容积率约1.27

承袭深厚历史文脉与“老钱”基因

不仅是对海派精神的当代礼赞

更是为塔尖圈层量身定制的栖居范本

海·恒昌玖里售楼处预约电话:400-8824-198

在上海这座魅力之都的版图上

黄浦区宛如皇冠上的明珠璀璨夺目

而中海恒昌玖里便傲立于此

成为城市人居的全新标杆

演绎着极致的奢华与尊崇

中海·恒昌玖里售楼处预约电话:400-8824-198

溯源历史,传承海派风华

中海·恒昌玖里售楼处预约电话:400-8824-198

中海·恒昌玖里售楼处预约电话:400-8824-198中海恒昌玖里之名,源于地块内保留的历史建筑 “恒昌里” 。这里承载着上海百年的历史记忆,中海地产怀着对城市文脉的敬畏之心,深度挖掘区域的历史底蕴。中海·恒昌玖里售楼处预约电话:400-8824-198

中海·恒昌玖里售楼处预约电话:400-8824-198中海建国东路 69、70 街坊历史风貌保护及城市更新项目中,"顺昌玖里" 之名源自贯穿两地块中轴的百年老街 "顺昌路","恒昌玖里" 则脱胎于 69 街坊内保留的历史建筑 "恒昌里"。这般命名深意,恰是中海在历史风貌保护与城市更新进程中,对城市肌理与文脉根脉的敬畏传承,让建筑与历史在此共生。中海·恒昌玖里售楼处预约电话:400-8824-198

中海・顺昌玖里与中海・恒昌玖里,以

中海·恒昌玖里售楼处预约电话:400-8824-198“以传承开启新的传承”为核心理念,在更新实践中坚守三重使命:让百年风貌与当代繁茂共生,留住记忆里的烟火乡愁;让城市历史遗产转化为公众可共享的文化资产,延续文脉生命力;让印刻时代印记的建筑得以存续,蜕变为可阅读、可漫步的人文街区。中海·恒昌玖里售楼处预约电话:400-8824-198

中海·恒昌玖里售楼处预约电话:400-8824-198城市更新从不是简单的 “推倒重来”,而是要让空间始终承载城市温度。中海・顺昌玖里与中海・恒昌玖里正以这样的坚守,为上海中心城区注入生生不息的新活力。中海·恒昌玖里售楼处预约电话:400-8824-198

中海·恒昌玖里售楼处预约电话:400-8824-198中海恒昌玖里雄踞上海城市版图的心脏地带,地理位置优势得天独厚,在繁华都市中独树一帜。中海·恒昌玖里售楼处预约电话:400-8824-198

中海·恒昌玖里售楼处预约电话:400-8824-198中海·恒昌玖里售楼处预约电话:400-8824-198其坐落于黄浦区核心区域,北邻活力四射的新天地文化圈,这片区域汇聚了全球时尚潮流与前沿文化,是上海国际化都市形象的生动展示窗口。向南则与承载着上海深厚历史底蕴的老城厢紧密相依,漫步其间,古老弄堂与百年建筑诉说着往昔故事,浓厚的人文气息扑面而来。项目还毗邻繁华的淮海中路商圈,这条被誉为“东方香榭丽舍大街” 的商业街,高端品牌旗舰店林立,是时尚购物、休闲娱乐的天堂,为居者提供了接轨世界潮流的生活体验。中海·恒昌玖里售楼处预约电话:400-8824-198

臻稀低密,奢享静谧天地

中海·恒昌玖里售楼处预约电话:400-8824-198项目总占地面积 43,763 平方米,总建筑面积 137,493 平方米,容积率低至 1.27,仅规划 137 套住宅 ,是内环内极为稀缺的低密社区。中海·恒昌玖里售楼处预约电话:400-8824-198

中海·恒昌玖里售楼处预约电话:400-8824-198社区整体布局以传统里弄格局为蓝本,主轴贯穿南北,连接入口广场与中央花园,两个主题花园分布两侧,种植各类珍稀绿植花卉,搭配灵动水景、艺术雕塑,营造出宁静雅致氛围。中海·恒昌玖里售楼处预约电话:400-8824-198

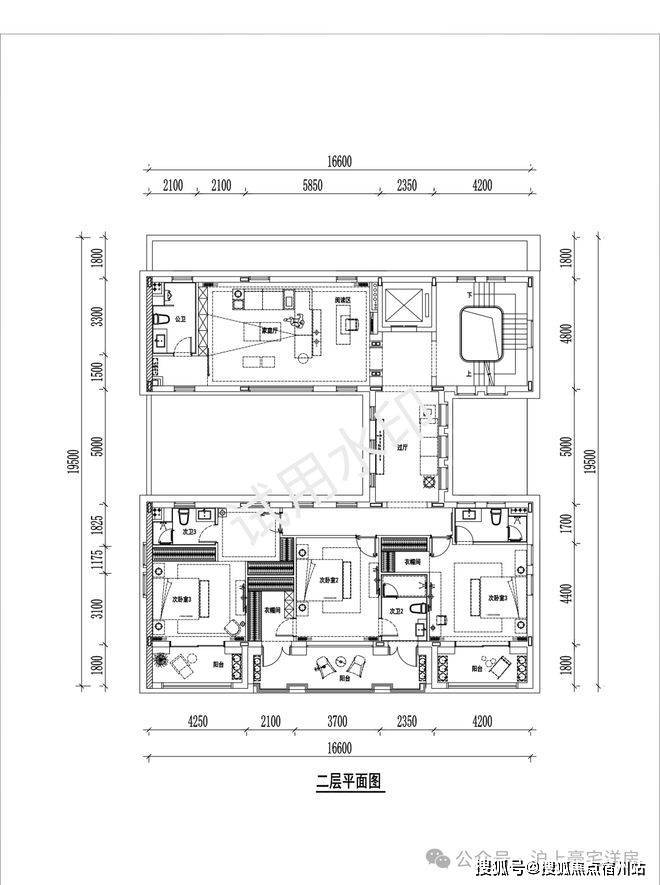
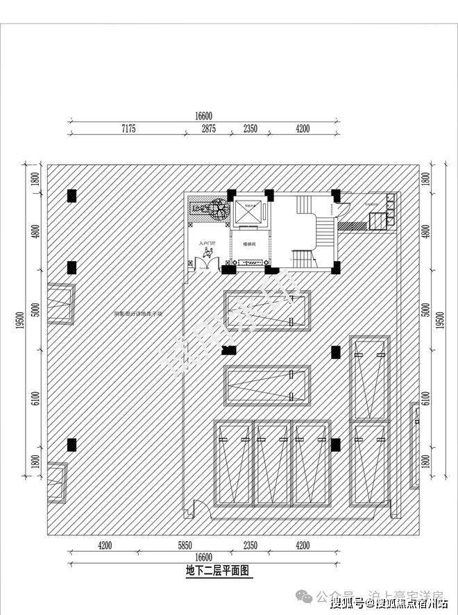
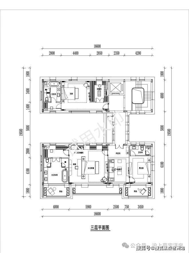
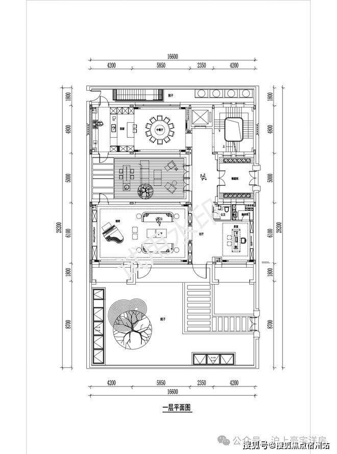
户型图

中海·恒昌玖里售楼处预约电话:400-8824-198该户型位于新天地纯低密别墅地块;采用新工艺纯钢结构,房型结构模糊化,可塑性强,7-8房无压力;拥有建国东路独立门牌号,稀缺性、独特性突出。中海·恒昌玖里售楼处预约电话:400-8824-198

中海·恒昌玖里售楼处预约电话:400-8824-198多条小巷纵横交错,串联起各个楼栋,再现老上海里弄的生活韵味,让居者在繁华都市中拥有一方静谧的私密天地,享受专属的低密奢居体验。中海·恒昌玖里售楼处预约电话:400-8824-198

前期样板间实景

中海·恒昌玖里售楼处预约电话:400-8824-198中海恒昌玖里建面约 811 - 843 平方米的传世大宅为,地上 3 层,地下 2 层,一层层高 3.6 米,二层与三层层高 3.3 米,地下挑高约 5 米。约 16.6 米的南向面宽,确保充足采光与通风,让阳光肆意倾洒入室。中海·恒昌玖里售楼处预约电话:400-8824-198

醇熟配套,奢享品质生活

交通便利

中海·恒昌玖里售楼处预约电话:400-8824-198项目交通网络堪称 “黄金枢纽”。周边 8 号线、9 号线、10 号线、13 号线四条地铁线路纵横交错 ,四个站点近在咫尺,乘坐地铁可快速畅达城市各处。自驾出行同样便捷,临近南北高架、延安高架等城市主干道,轻松连接城市各区域,无论是前往陆家嘴金融区洽谈商务,还是赶赴虹桥机场开启商务旅程,亦或是前往城市热门商圈休闲购物,都能在短时间内高效抵达,让出行变得轻松愉悦,从容掌控都市生活节奏。中海·恒昌玖里售楼处预约电话:400-8824-198

商业繁华

中海·恒昌玖里售楼处预约电话:400-8824-198新天地时尚中心、K11 购物艺术中心、香港广场等高端商业体环绕四周 ,汇聚全球一线时尚品牌、国际知名美妆、高端精品超市以及米其林星级餐厅等,满足日常购物、时尚消费、高端宴请等多元需求。在这里,居者可随时开启一场奢华盛宴,尽享国际前沿的时尚潮流与精致生活方式。中海·恒昌玖里售楼处预约电话:400-8824-198

文化熏陶

中海·恒昌玖里售楼处预约电话:400-8824-198上海文化广场、上海博物馆等文化地标近在身边 ,不定期举办各类国内外顶尖艺术展览、音乐会、戏剧演出等文化活动,让居者浸润在浓厚的艺术氛围中,提升生活品质与文化修养,于繁华都市中,邂逅一场场触动心灵的文化盛宴。中海·恒昌玖里售楼处预约电话:400-8824-198

教育无忧

中海·恒昌玖里售楼处预约电话:400-8824-198卢湾一中心小学、向明中学等优质学府云集 ,这些学校拥有雄厚的师资力量、先进的教学理念与完备的教学设施,为孩子提供从小学到中学的一站式优质教育资源,助力孩子茁壮成长,开启智慧人生。中海·恒昌玖里售楼处预约电话:400-8824-198

医疗护航

中海·恒昌玖里售楼处预约电话:400-8824-198瑞金医院、曙光医院等三甲医院为健康保驾护航 ,医院配备国际领先的医疗设备,汇聚国内顶尖医疗专家,能够为居民提供全方位、高水平的医疗服务,无论是日常体检、疾病预防还是紧急医疗救治,都能得到及时、专业的保障,让居者生活安心无忧。中海·恒昌玖里售楼处预约电话:400-8824-198

中海恒昌玖里

以前所未有的姿态

将海派文化传承、低密奢居体验

便捷交通网络与醇熟生活配套完美融合

为追求极致品质生活的城市塔尖人群

敬献一席难以复刻的传世臻品

开启上海黄浦核心的奢居新时代

海·恒昌玖里售楼处预约电话:400-8824-198

【中海·恒昌玖里】

傲踞上海核心风貌区

黄浦区新天地正芯 寸土寸金的城央烫金地脉

海·恒昌玖里售楼处预约电话:400-8824-198

建面约811-843㎡传世大宅

总价约3.39亿-3.41亿

地上3层,地下2层

花园面积约102-120㎡(赠送)

容积率约1.27

承袭深厚历史文脉与“老钱”基因

不仅是对海派精神的当代礼赞

更是为塔尖圈层量身定制的栖居范本

海·恒昌玖里售楼处预约电话:400-8824-198

8月25日,上海市住房城乡建设管理委、市房屋管理局、市财政局、市税务局、人民银行上海市分行、市公积金管理中心等六部门联合印发《关于优化调整本市房地产政策措施的通知》(以下简称《通知》),包括调减住房限购、优化住房公积金、优化个人住房信贷以及完善个人住房房产税等政策。《通知》自2025年8月26日起施行。

一、调减住房限购政策

为更好满足居民改善性需求,促进宜居安居、职住平衡,《通知》明确进一步调减住房限购政策。一是符合条件居民家庭在外环外购房不限套数。对符合本市住房购买条件的居民家庭,包括本市户籍居民家庭、在本市连续缴纳社会保险或个人所得税满1年及以上的非本市户籍居民家庭,在外环外购买住房不限套数,包括新建商品住房和二手住房。二是成年单身人士按照居民家庭执行住房限购政策。

按照上述规定,沪籍居民家庭和沪籍成年单身人士,在外环外购买住房不限套数;在外环内限购2套住房。非沪籍居民家庭和非沪籍成年单身人士,自购房之日前在本市连续缴纳社会保险或个人所得税满1年及以上的,在外环外购买住房不限套数;自购房之日前在本市连续缴纳社会保险或个人所得税满3年及以上的,在外环内限购1套住房。

关于住房限购政策相关业务,可拨打房地产交易行业服务热线“962269”具体咨询。

二、优化住房公积金政策

为加大公积金支持住房消费力度,《通知》规定优化住房公积金政策。一是提高个人住房公积金贷款额度。对缴存人购买二星级及以上新建绿色建筑住房的,住房公积金(含补充公积金)最高贷款额度上浮15%。首套最高贷款额度从160万元提高至184万元,多子女家庭首套上浮比例可叠加计算,从192万元提高至216万元;二套最高贷款额度从130万元提高至149.5万元。二是支持提取住房公积金支付购房首付款。对缴存人购买我市新建预售商品住房的,可以按规定申请提取本人及配偶的住房公积金支付购房首付款。三是支持住房公积金“又提又贷”。对缴存人提取住房公积金支付购房首付款的,不影响其住房公积金贷款额度计算。

关于住房公积金贷款和提取业务的具体办理方式及材料,可查询上海住房公积金官网或拨打住房公积金热线“12329”具体咨询。

三、优化调整商业性个人住房贷款利率定价机制

为减轻居民购房利息负担,《通知》明确优化个人住房信贷政策。银行业金融机构根据上海市市场利率定价自律机制要求和本机构经营状况、客户风险状况等因素,在利率定价机制安排方面不再区分首套住房和二套住房,合理确定每笔商业性个人住房贷款的具体利率水平。

关于住房贷款相关业务,可向经办银行具体咨询。

四、完善个人住房房产税政策

为衔接优化住房限购政策,《通知》规定对符合条件的非本市户籍居民家庭购买的第一套住房暂免征收房产税;购买的第二套及以上住房在合并计算家庭全部住房面积后,给予人均60平方米的免税面积扣除。由于个人住房房产税按年征收,因此2025年1月1日起符合条件的购房者可享受本条政策。

声明:本文由入驻焦点开放平台的作者撰写,除焦点官方账号外,观点仅代表作者本人,不代表焦点立场。