☑️☑️越秀外滩樾售楼处电话:400-8377-020☑️☑️ 内环内虹口北外滩
外滩仅1公里/陆家嘴1.5公里
【越秀·外滩樾】风貌别墅
建面约238/305/318/338㎡户型
附赠花园+露台 6.15米挑空层空间
仅48套房源 总价4000万~9000万
270度环幕玻璃+2500㎡顶奢会所
☑️☑️越秀外滩樾售楼处电话:400-8377-020☑️☑️

☑️☑️越秀外滩樾售楼处电话:400-8377-020☑️☑️
在顶豪圈层有一句话: 所谓家族的行宫,一定是要根植于土地之上的别墅!
如果说外滩代表了上海的过去,陆家嘴代表了上海的当下, 那么北外滩就代表了上海的未来。而 【越秀外滩樾】 就是将代表上海城市繁华的黄金三角,整个装进了自己的步行圈。
效果图

☑️☑️越秀外滩樾售楼处电话:400-8377-020☑️☑️
中国人对家族的情怀,亘古未变,而一套别墅,也早已成为家族意识传承的重要载体,同时担当着家族的荣耀。占位北外滩核心地段的越秀·外滩樾正是为49个传奇家族准备的行宫!
https://wxa.wxs.qq.com/tmpl/oy/base_tmpl.html
☑️☑️越秀外滩樾售楼处电话:400-8377-020☑️☑️
当然,除了地段和业态本身, 【越秀·外滩樾】 的收藏价值还来源于其注重居住舒适度的设计与无与伦比的尊崇服务。

☑️☑️越秀外滩樾售楼处电话:400-8377-020☑️☑️
效果图
项目基本信息
【项目名称】 越秀·外滩樾
【开发商】 上海漕越经济发展有限公司
【项目位置】 上海市·虹口区·梧州路
【项目类别】 70年产权住宅
【项目类型】 风貌别墅
【可售户数】 48套
【容积率】 约1.3

☑️☑️越秀外滩樾售楼处电话:400-8377-020☑️☑️

百年前的高端工艺元素的经典转译,让海派造诣世纪传承,于历史和未来之间收藏百年上海。

☑️☑️越秀外滩樾售楼处电话:400-8377-020☑️☑️
清水红砖:百年前先进舶来品代表,10种以上拼接工艺铺陈
装饰窗楣:同源中共二大会址、张爱玲故居,装饰主义经典元素
弧形韵线:邬达克式的建筑曲线,同源远东第一豪宅的优雅轮廓
海派山墙:带肩仿观音兜,中西文化融合的典藏之美

【越秀·外滩樾】是世界知名大师汇聚一堂的灵感结晶,比如项目的设计总顾问邀请了 程绍正韬 。他是 建筑室内设计之东方主义集大成者 ,致力于东方文化的坚守与创新,打破惯常的职业思维,将生活方式化作一种哲学态度,融入空间设计,让设计不止于作品,再比如项目还邀请了城市文化大师 李玮珉 。

☑️☑️越秀外滩樾售楼处电话:400-8377-020☑️☑️
程绍正韬,集文人、工业家、艺术家、设计师、哲学家、修行者身份于一身,建筑室内设计之东方主义集大成者,致力于东方文化的坚守与创新。他打破惯常的职业思维,将生活方式化作一种哲学态度,融入空间设计,让设计不止于作品。

李玮珉,撑起中国豪宅设计半壁江山,擅长为城市塑造文化符号建筑作品。他的作品更多用极简的方式来表明态度,崇尚简而高效的现代生活方式。庄重的建筑语汇,适时注入艺术、自然与美学,让空间充满想象力。

大师操刀,必然不同凡响。
首先 项目承袭了百年前的高端工艺元素,让海派传承得以延续。 将清砖立柱、古典门头、岩石山墙等经典海派建筑风貌转译和突破 ,更适配现代人居审美,于历史和未来之间收藏百年上海底蕴!

☑️☑️越秀外滩樾售楼处电话:400-8377-020☑️☑️
其次, 项目超越了以往风貌建筑的尺度感,创新了风貌规制,带来了 城心难得的双拼、三拼别墅! 大窗墙比大南向开间保证了极高的舒适度。 大面积运用奢石的外立面,则把名门望族的尊贵身份和非凡气度体现的淋漓尽致!

☑️☑️越秀外滩樾售楼处电话:400-8377-020☑️☑️
效果图
巷弄新生:跨越风貌豪宅正统,打造双拼、三拼、多联排别墅的天地私享
建筑新生:创新风貌规制,致微而筑的建筑腔调赏新
美学新生:转译远东第一豪宅立面美学,收藏名门望族生活
材质新生:百年红砖、釉面砖、印度进口幻彩红奢石运用,型制家族传承

☑️☑️越秀外滩樾售楼处电话:400-8377-020☑️☑️
最后, 项目社区配置的三处会所、泛会所空间合计 约2500㎡ ,包含私宴厅、恒温泳池、私人运动空间等内容,提供酒店级高奢服务!

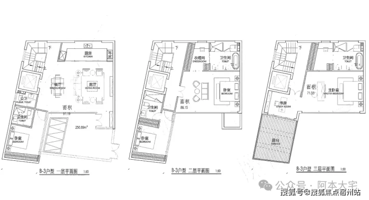
【越秀·外滩樾】项目将呈现48套低密风貌里弄住宅 (双拼/三拼),地上3层、地下2层,层高3.2-3.9米、地下挑空6.15米,户户带30-80平私家庭院、观景露台。建面约238平、305平、318平、338平米, 售价19.5万/平,总价4300-9000万

☑️☑️越秀外滩樾售楼处电话:400-8377-020☑️☑️


☑️☑️越秀外滩樾售楼处电话:400-8377-020☑️☑️


☑️☑️越秀外滩樾售楼处电话:400-8377-020☑️☑️

☑️☑️越秀外滩樾售楼处电话:400-8377-020☑️☑️
【41载越秀 | 千亿级开发商 与上海共卓越】
国内资产规模最大的地方驻港企业之一越秀集团
41载国匠越秀 千亿级开发商——越秀地产
中国第一代商品房缔造者
已进驻30多个核心城市
开发了300多个大型住宅和50多个大型商业物业
2024中国房企综合实力TOP9
(信息来源:亿翰智库)
https://wxa.wxs.qq.com/tmpl/oy/base_tmpl.html
☑️☑️越秀外滩樾售楼处电话:400-8377-020☑️☑️

项目区位配套
【越秀·外滩樾】 项目地块四至范围, 东至:梧州路,隔壁是中皇广场;西至:hk270B-02,隔壁就是1933老场坊;南至:周家嘴路 北至:柘皋路。

☑️☑️越秀外滩樾售楼处电话:400-8377-020☑️☑️
【一座码头 启航外滩百年世界史】
项目所在地北外滩,是百年前上海的“下海”地。作为上海开埠后第一座码头的诞生地,北外滩率先“开眼看世界”,海纳万国文化风潮,众多此后影响中国的创举在此诞生,是上海最早的“十里洋场”

☑️☑️越秀外滩樾售楼处电话:400-8377-020☑️☑️
(*示意图,图片来源于网络)
【一江一河 再立世界上海新传】
傲立“一江一河”交汇处(直线距离约1.1KM),未来将打造成为彰显上海城市核心竞争力的黄金水岸和具有国际影响力的世界级城市会客厅,出入之间,相逢城市高阶未来

(*示意图,图片来源于网络)
【北外滩 面向世界的上海新封面】
北外滩,与外滩、陆家嘴并称为上海的 “黄金三角” 。将以2座陆家嘴的商务体量规划,新天地2.0生活圈打造,成为上海跃升世界舞台的“中心发力”新引擎
☑️☑️越秀外滩樾售楼处电话:400-8377-020☑️☑️

(*示意图,图片来源于网络)
【中央商务区 未来上海腾飞引擎】
区域能级: 总开发面积约840万方,40栋甲级写字楼城市地标:480米浦西第一高楼,19栋摩天大楼集群金融产业:2100+家金融企业赋能,资产管理规模超8万亿元,位居全市第一航运格局:4500+家航运企业集聚(上港集团、中远海运等),打造国际航运中心全球贸易:2500+家贸易企业入驻(摩亚方舟、银联商务等)新兴产业:129家新增高新技术企业,113家市区科技小巨人企业(数据来源:上海市规划局《北外滩地区控制性详细规划》)

☑️☑️越秀外滩樾售楼处电话:400-8377-020☑️☑️
(*示意图,图片来源于网络)
距离外滩商圈仅约1公里
项目所在地北外滩,是百年前上海的“下海”地。作为上海开埠后第一座码头的诞生地,北外滩率先“开眼看世界”,海纳万国文化风潮,众多此后影响中国的创举在此诞生,是上海最早的“十里洋场”。

示意图,图片来源于网络
☑️☑️越秀外滩樾售楼处电话:400-8377-020☑️☑️
轨道交通方面: 项目位于虹口区嘉兴路街道,距离 地铁4、10、19号线换乘站海伦路站约600米 ,交通十分便捷。

交通路网示意图,仅供参考

☑️☑️越秀外滩樾售楼处电话:400-8377-020☑️☑️
4号线海伦路站
商业配套方面: 项目约2公里内,多元繁华构筑封面商业圈:北外滩商圈直线距离约500米,外滩商圈直线距离约1000米,陆家嘴商圈直线距离约1500米,瑞虹商圈直线距离约900米。

☑️☑️越秀外滩樾售楼处电话:400-8377-020☑️☑️
教育资源方面: 2km内就有 虹口区第二中心小学 、 华东师大一附中实验小学 、 华东师大一附初中 等优质配套。*施教区及就学政策以教育部门规划为准

项目核心推荐理由
☑️☑️越秀外滩樾售楼处电话:400-8377-020☑️☑️
【巷弄新生】
项目在规划设计中,充分尊重并保留场地原有的脉络和肌理,延续了原场地内“工”字形主巷道的格局,并通过工字型巷道,将社区划分为双拼和三联排,增强墅感,有天有地有露台,为风貌孤品提供优秀基因。
【拔楼造园】
在稀贵的场地内,项目在空间规划时选择主动拔掉一栋楼来造园,作为整个项目透气的“眼”;在此基础上,又往下深挖三层,创造出空间丰富的垂直山水庭院,围绕这个庭院又布置了层层递进的配套会所体系,打造出繁华闹市中的桃花源。
【三重会所】
社区仅49户,但却拥有三重,共约2500㎡的会所及泛会所配套空间,户均会所面积高达50㎡,三重会所三重功能属性,私密性层层递进。
【风貌传承】
项目的外立面特点可用“外旧里新”来概括,两者既有所区别,又形制统一。沿街建筑的“旧”,是溯源海派建筑的立面形态,保留优化代表性的建筑构件,形成连续、完整的海派石库门城市界面。内部建筑的“新”,则是在“旧”的基础上,发扬多元共融的海派文化优点,结合现代新生活的要求,设计了大面玻璃、金属线条等,创造出优雅而时尚、包容经典海派特色与现代居住理念的立面。
☑️☑️越秀外滩樾售楼处电话:400-8377-020☑️☑️

☑️☑️越秀外滩樾售楼处电话:400-8377-020☑️☑️
基础信息
【项目名称】越秀·外滩樾
【开发商】上海漕越经济发展有限公司
【项目位置】上海市·虹口区·梧州路235弄
【项目类别】70年产权住宅
【项目类型】风貌别墅
【容积率】约1.3
☑️☑️越秀外滩樾售楼处电话:400-8377-020☑️☑️

风貌之上 世界堂前
建面约238㎡—338㎡海派院墅
三里外滩 立传别墅
从你开启传承

☑️☑️越秀外滩樾售楼处电话:400-8377-020☑️☑️
【北外滩 面向世界的上海新封面】
北外滩,与外滩、陆家嘴并称为上海的“黄金三角”。将以2座陆家嘴的商务体量规划,新天地2.0生活圈打造,成为上海跃升世界舞台的“中心发力”新引擎


☑️☑️越秀外滩樾售楼处电话:400-8377-020☑️☑️
【中央商务区 未来上海腾飞引擎】
区域能级:总开发面积约840万方,40栋甲级写字楼
城市地标:480米浦西第一高楼,19栋摩天大楼集群
金融产业:2100+家金融企业赋能,资产管理规模超8万亿元,位居全市第一
航运格局:4500+家航运企业集聚(上港集团、中远海运等),打造国际航运中心
全球贸易:2500+家贸易企业入驻(摩亚方舟、银联商务等)
新兴产业:129家新增高新技术企业,113家市区科技小巨人企业
(数据来源:上海市规划局《北外滩地区控制性详细规划》)
☑️☑️越秀外滩樾售楼处电话:400-8377-020☑️☑️

(*示意图,图片来源于网络)

☑️☑️越秀外滩樾售楼处电话:400-8377-020☑️☑️
【立体交通 | 无界畅达世界 擎动城市脉搏】
约360米新建路隧道(直线距离),快速直达陆家嘴CBD;
约670米外滩隧道(直线距离),直达外滩金融商业街以及老码头;
约150米北横通道(直线距离)贯通全城,快速通达虹桥机场/虹桥火车站;
约2.4公里大连路隧道(直线距离),直达浦东东方路、世纪大道、八百伴商业圈。

(*交通路网示意图,仅供参考。本区位图仅用于本小区地理方位示意,非实际地图,相关信息并非按比例缩放。)
【核心商圈 | 高阶商业配套 国际摩登领潮】
商业配套方面项目约2公里内,多元繁华构筑封面商业圈
北外滩商圈直线距离约500米
外滩商圈直线距离约1000米
陆家嘴商圈直线距离约1500米
瑞虹商圈直线距离约900米
☑️☑️越秀外滩樾售楼处电话:400-8377-020☑️☑️

☑️☑️越秀外滩樾售楼处电话:400-8377-020☑️☑️
(*商圈距离示意图,仅供参考。本区位图仅用于本小区地理方位示意,非实际地图,相关信息并非按比例缩放。)

百年前的高端工艺元素的经典转译,让海派造诣世纪传承,于历史和未来之间收藏百年上海。

☑️☑️越秀外滩樾售楼处电话:400-8377-020☑️☑️

清水红砖:百年前先进舶来品代表,8种非遗拼接工艺铺陈
装饰窗楣:同源中共二大会址、张爱玲故居,装饰主义经典元素
弧形韵线:邬达克式的建筑曲线,同源远东第一豪宅的优雅轮廓
岩石山墙:巴洛克式带肩观音兜,中西文化融合的典藏之美
(*本图片仅为方案过程讨论稿,并非交付标准。)

☑️☑️越秀外滩樾售楼处电话:400-8377-020☑️☑️

程绍正韬,集文人、工业家、艺术家、设计师、哲学家、修行者身份于一身,建筑室内设计之东方主义集大成者,致力于东方文化的坚守与创新。他打破惯常的职业思维,将生活方式化作一种哲学态度,融入空间设计,让设计不止于作品。

☑️☑️越秀外滩樾售楼处电话:400-8377-020☑️☑️
李玮珉,撑起中国豪宅设计半壁江山,擅长为城市塑造文化符号建筑作品。他的作品更多用极简的方式来表明态度,崇尚简而高效的现代生活方式。庄重的建筑语汇,适时注入艺术、自然与美学,让空间充满想象力。

与国内大师合筑,从人本主义设计思路出发,用源自东方的设计理念真正理解风貌,理解当代生活方式诉求,为影响下一个百年。
☑️☑️越秀外滩樾售楼处电话:400-8377-020☑️☑️


☑️☑️越秀外滩樾售楼处电话:400-8377-020☑️☑️
巷弄新生:跨越风貌豪宅正统,打造双拼、三拼别墅的天地私享
建筑新生:创新风貌规制,致微而筑的建筑腔调赏新
美学新生:转译远东第一豪宅立面美学,收藏名门望族生活
材质新生:百年红砖、窑变砖、印度洋幻彩奢石运用,定制家族排场

“让空间回到质朴宁静的状态,那是可以自在欢喜地面对一切可能的地方。”三大空间,无处不在艺术藏品。匠造会客空间、泛会所、私宴厅等私享场域,让生活理想于此自在蔓延。

☑️☑️越秀外滩樾售楼处电话:400-8377-020☑️☑️
泳池 | 遨游画境,潜心之所
游泳池以罗马会场泳池为灵感,汲取《观瀑图》的山水意境,将古典与现代完美融合。池畔以大理石铺就,线条优雅如古罗马建筑的恢弘气势,而池中水波粼粼,光影交错间,水幕如瀑,营造出“人在画中游”的诗意境界。

☑️☑️越秀外滩樾售楼处电话:400-8377-020☑️☑️

山水庭院 | 山间光感,天地织境
山水庭院汲取《足立美术馆》的造境手法,以老石皮、百年古木原样搬运,重现山间岁月的自然痕迹,与庭院中的光影交织,仿佛将山间的自然采光与静谧之感搬入城市。阳光透过树梢洒落,石皮上的纹理在光影中若隐若现,宛如一幅流动的自然山水画卷。
(*本图片仅为方案过程讨论稿,并非交付标准。)
【42载越秀 | 千亿级开发商 与上海共卓越】
国内资产规模最大的地方驻港企业越秀集团
42载国匠越秀 千亿级开发商——越秀地产
中国第一代商品房缔造者
已进驻30多个核心城市
开发了300多个大型住宅和50多个大型商业物业
2024中国房企综合实力TOP9
(信息来源:亿翰智库)

全球地标打造者:广州国际金融中心高约440.75米,建成之时为全球10大超高层建筑之一,获得国际建筑界奥斯卡“英国菜伯金奖”。(此外,中国仅北京“鸟巢”和上海世博会英国馆荣获该奖项。)
豪宅基因始终传承:打造“广州第一富人区”二沙岛,屹立广州顶豪之列,整个二沙岛9个项目,有7个项目都是越秀开发,其中越秀宏城花园单价25万-40万/㎡,总价1-6亿,一房难求。

☑️☑️越秀外滩樾售楼处电话:400-8377-020☑️☑️


☑️☑️越秀外滩樾售楼处电话:400-8377-020☑️☑️

☑️☑️越秀外滩樾售楼处电话:400-8377-020☑️☑️


☑️☑️越秀外滩樾售楼处电话:400-8377-020☑️☑️


☑️☑️越秀外滩樾售楼处电话:400-8377-020☑️☑️


☑️☑️越秀外滩樾售楼处电话:400-8377-020☑️☑️

☑️☑️越秀外滩樾售楼处电话:400-8377-020☑️☑️


☑️☑️越秀外滩樾售楼处电话:400-8377-020☑️☑️


☑️☑️越秀外滩樾售楼处电话:400-8377-020☑️☑️


☑️☑️越秀外滩樾售楼处电话:400-8377-020☑️☑️

☑️☑️越秀外滩樾售楼处电话:400-8377-020☑️☑️
如果对项目有兴趣,欢迎点击下方专属看房报名通道。三万平方用专业角度,带您选优质好房。 在您通过小程序报名之前,请确保您已阅读并同意《用户服务协议》及《隐私政策》。在报名之后,我们将视为您已知晓。



☑️☑️越秀外滩樾售楼处电话:400-8377-020☑️☑️

☑️☑️越秀外滩樾售楼处电话:400-8377-020☑️☑️



☑️☑️越秀外滩樾售楼处电话:400-8377-020☑️☑️

☑️☑️越秀外滩樾售楼处电话:400-8377-020☑️☑️


☑️☑️越秀外滩樾售楼处电话:400-8377-020☑️☑️



☑️☑️越秀外滩樾售楼处电话:400-8377-020☑️☑️



☑️☑️越秀外滩樾售楼处电话:400-8377-020☑️☑️


☑️☑️越秀外滩樾售楼处电话:400-8377-020☑️☑️

☑️☑️越秀外滩樾售楼处电话:400-8377-020☑️☑️


☑️☑️越秀外滩樾售楼处电话:400-8377-020☑️☑️
示意图,图片来源于网络
生态资源方面: 2.5公里 北外滩滨江绿地(约800m直达) , 四川北路公园 、 和平公园 、 鲁迅公园 3大公园环伺,于滨江和城市低密绿芯之间,肇启当代诗意生活传序。

示意图,图片来源于网络
生活医疗方面: 地块紧邻 上海第一人民医院(三甲) ,1km左右就有集购物、餐饮、娱乐休闲、办公及服务式公寓为一体的综合商业体——瑞虹天地,商业面积55万方,包括太阳宫、月亮湾、星星堂、瑞虹坊四个部分。

在上海,能同时拥有「风貌稀缺」「滨江近距」「纯墅低密」三重标签的项目,屈指可数。
「越秀·外滩樾」——外滩源1.2公里内的纯风貌别墅社区,以约1.3容积率的低密尺度、49栋独栋格局,重塑塔尖人群的滨江风貌生活方式。
☑️☑️越秀外滩樾售楼处电话:400-8377-020☑️☑️
这不仅是一处住所,更是一种关于上海风貌与现代隐奢生活的再定义。

☑️☑️越秀外滩樾售楼处电话:400-8377-020☑️☑️
☑️☑️越秀外滩樾售楼处电话:400-8377-020☑️☑️
🏡 项目基础信息
项目名称:越秀·外滩樾
项目类型:纯风貌别墅
开发商:越秀地产(上海漕樾经济发展有限公司)
物业公司:越秀商管
交付时间:预计2026年底
交付标准:毛坯
总户数:共49栋(48栋可售)
占地面积:约1.08万㎡
建筑面积:约1.4万㎡(地上)
容积率:约1.3
层数:地上3层,地下2层
地下层高:B1约6.15m,B2约3.9m
车位配比:约2.75
物业费:约26.8元/㎡
均价:约23万元/㎡
总价区间:约4500万–9000万元
项目亮点:距外滩源约1.2公里,内环滨江稀缺新建风貌别墅

☑️☑️越秀外滩樾售楼处电话:400-8377-020☑️☑️
01

☑️☑️越秀外滩樾售楼处电话:400-8377-020☑️☑️
北外滩|世界级的上海新封面
越秀·外滩樾,坐落于上海北外滩板块——与外滩、陆家嘴并称为“黄金三角”的核心区域。
作为上海新一轮全球化的城市封面,这里将以 2座陆家嘴的商务体量 、 新天地2.0生活圈 重塑上海中心的世界级能级。
总开发体量 :约840万方
摩天集群 :480米浦西第一高楼 + 19栋摩天大楼
金融企业 :2100+家,总资产管理规模超8万亿元
航运产业 :4500+家航运企业汇聚
贸易总部 :2500+家全球贸易企业入驻
科技能级 :129家高新技术企业、113家科技小巨人
(数据来源:上海市规划局《北外滩地区控制性详细规划》)

02

☑️☑️越秀外滩樾售楼处电话:400-8377-020☑️☑️
三维立体交通|一桥连三地,一隧抵两岸
约360米 新建路隧道 → 快速直达陆家嘴CBD
约670米 外滩隧道 → 直通外滩及老码头
约150米 北横通道 → 连接虹桥枢纽、全城无界
约2.4公里 大连路隧道 → 直抵世纪大道与八百伴商圈
轨交便利 :地铁4/10号线海伦路站约850米,12号线国际客运中心站约500米

03

☑️☑️越秀外滩樾售楼处电话:400-8377-020☑️☑️
繁华商圈环伺|三公里内尽揽顶奢资源
北外滩商圈:约500米
外滩商圈:约1000米
陆家嘴商圈:约1500米
瑞虹商圈:约900米
同时近距白玉兰广场、瑞虹新城太阳宫、北外滩来福士等高端商业地标,
集购物、餐饮、文化、娱乐、艺术于一体, 奢享浦西的顶级国际生活圈 。

04

☑️☑️越秀外滩樾售楼处电话:400-8377-020☑️☑️
自然与人文|一江一河间的艺术生态
距离 北外滩滨江绿地 仅约800米
可眺望陆家嘴天际线
周边环绕 四川北路公园、和平公园、鲁迅公园 等多重绿意
绿地高低起伏,形成“依山傍水”的层次景观,通透、流动、轻快的城市画卷

05

☑️☑️越秀外滩樾售楼处电话:400-8377-020☑️☑️
教育与医疗|塔尖家庭的全龄配套
教育资源(约1公里范围内)
东余杭路第一小学、第二中心小学、四川北路第一小学(重点)
继光高级中学、澄衷中学(区重点)
华东师范大学一附中、市重点高中上海外国语大学附属外国语学校东校
医疗资源(3公里范围内)
新华医院(儿科)
复旦大学附属妇产医院(妇产科)
上海市第一人民医院(重症)
上海东方医院(血管外科)

☑️☑️越秀外滩樾售楼处电话:400-8377-020☑️☑️
06

风貌建筑 × 东方美学
百年前的海派工艺被重译于当代,构筑“风貌之上”的豪宅标本。
清水红砖 × 八种非遗拼接工艺
装饰窗楣 × 同源张爱玲故居
弧形韵线 × 邬达克式建筑曲线
岩石山墙 × 巴洛克与东方融合之美

07

☑️☑️越秀外滩樾售楼处电话:400-8377-020☑️☑️
大师共筑 · 东方人居典范
程绍正韬 × 李玮珉
东方美学与现代简约的双大师合作,
从人本主义出发,以“风貌的当代表达”打造别墅新语境。
巷弄新生:双拼、三拼天地私享
美学新生:远东第一豪宅立面再现
材质新生:百年红砖、窑变砖、幻彩奢石定制
空间新生:私宴厅、泛会所、艺术会客厅

☑️☑️越秀外滩樾售楼处电话:400-8377-020☑️☑️
🏞 山水庭院 · 天光泳池
山水庭院 :借鉴足立美术馆造园手法,移石入境、借光造景
天光泳池 :以罗马会场为原型,融合古典与山水诗意,
实现“人在画中游”的静谧境界

🏢 国匠越秀 · 与上海共卓越
42载越秀地产,中国第一代商品房缔造者,千亿级综合开发集团。
曾打造广州国际金融中心、二沙岛豪宅群等地标作品。
2024中国房企综合实力TOP9(数据来源:亿翰智库)

08

☑️☑️越秀外滩樾售楼处电话:400-8377-020☑️☑️
项目总结|风貌之上 世界堂前
建面约238–338㎡ 海派院墅
三里外滩,立传别墅
让风貌,成为家族传承的开端。

☑️☑️越秀外滩樾售楼处电话:400-8377-020☑️☑️


☑️☑️越秀外滩樾售楼处电话:400-8377-020☑️☑️

☑️☑️越秀外滩樾售楼处电话:400-8377-020☑️☑️



☑️☑️越秀外滩樾售楼处电话:400-8377-020☑️☑️


☑️☑️越秀外滩樾售楼处电话:400-8377-020☑️☑️
图源网络,仅供参考
地块西侧的1933老场坊,早前是上海工部局宰牲场;而如今,成为了众多文艺青年打卡拍照的必游胜地。此次也要求保留工部局旧址建面约1800㎡。
☑️☑️越秀外滩樾售楼处电话:400-8377-020☑️☑️

☑️☑️越秀外滩樾售楼处电话:400-8377-020☑️☑️
内环内虹口北外滩
外滩仅1公里/陆家嘴1.5公里
【越秀·外滩樾】风貌别墅
建面约238/305/318/338㎡户型
附赠花园+露台 6.15米挑空层空间
仅48套房源 总价4000万~9000万
270度环幕玻璃+2500㎡顶奢会所