实景赏鉴:
编辑

中海恒昌玖里售楼处电话:400-8377-020
编辑

中海恒昌玖里售楼处电话:400-8377-020
外立面效果图:
编辑

中海恒昌玖里售楼处电话:400-8377-020
【项目基本信息】
均价:31.8万/㎡
容积率:约1.27
总户数:137户
层数:地上3层,地下2层
层高:1F3.6米;2F-3F3.3米;地下约5米(挑高)
花园面积:约102-120㎡(赠送)
交付时间:2026年底
编辑

中海恒昌玖里售楼处电话:400-8377-020
编辑

中海恒昌玖里售楼处电话:400-8377-020
编辑

中海恒昌玖里售楼处电话:400-8377-020
基本参数:
地上面积:658.78㎡
地下面积:482㎡
花园面积:102㎡
南向面宽:约16.6m
报价:2.76亿
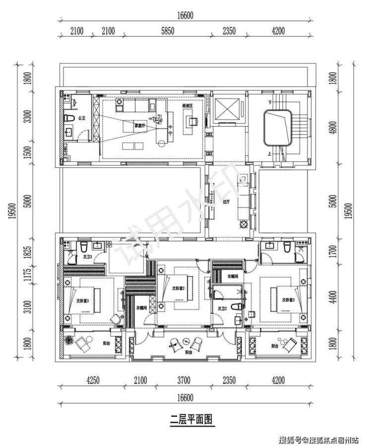
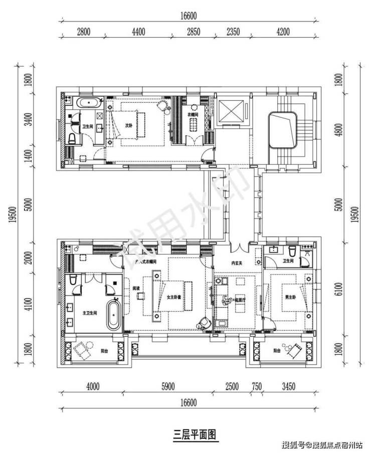
户型:
该户型位于新天地纯低密别墅地块
采用新工艺纯钢结构,房型结构模糊化,可塑性强,7-8房无压力
编辑

中海恒昌玖里售楼处电话:400-8377-020
编辑

中海恒昌玖里售楼处电话:400-8377-020
编辑

中海恒昌玖里售楼处电话:400-8377-020
编辑

中海恒昌玖里售楼处电话:400-8377-020
编辑

中海恒昌玖里售楼处电话:400-8377-020
德国SieMatic,“组合是一门艺术”,传统与现代、极繁与极简。CLASSIC系列采用了看似矛盾的元素来创造和谐整体,打破常规。

中海恒昌玖里售楼处电话:400-8377-020
▲SieMatic厨房与整体色调浑然一体,橱柜的框型门板与墙板、屋顶造型呼应,采用大比例花纹石材与玻璃橱柜搭配,营造出温馨的家庭气氛。优雅和对称布局是这个设计的特征,带来平静与平衡。

中海恒昌玖里售楼处电话:400-8377-020

中海恒昌玖里售楼处电话:400-8377-020
1F卫生间

起居室

中海恒昌玖里售楼处电话:400-8377-020
起居室

中海恒昌玖里售楼处电话:400-8377-020


中海恒昌玖里售楼处电话:400-8377-020
卧室


中海恒昌玖里售楼处电话:400-8377-020
卧室

⇀ For more 《芭蕾舞者在巴黎》MAGDALENA MARTIN

⇀ For more 《纽约暴风雪》GUILLAUME GAUDET

中海恒昌玖里售楼处电话:400-8377-020
⇀ For more 《白色无限竞速》LEYLA EMEKTAR

中海恒昌玖里售楼处电话:400-8377-020
⇀ For more 《西藏黄昏牧羊人》MATTHIEU RICARD

⇀ For more 《飞翔中的白鸽》NAIJI

中海恒昌玖里售楼处电话:400-8377-020

卫生间

中海恒昌玖里售楼处电话:400-8377-020
书房

中海恒昌玖里售楼处电话:400-8377-020

中海恒昌玖里售楼处电话:400-8377-020

中海恒昌玖里售楼处电话:400-8377-020
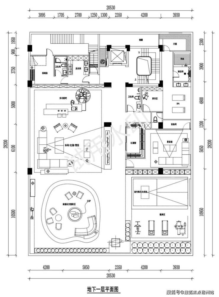
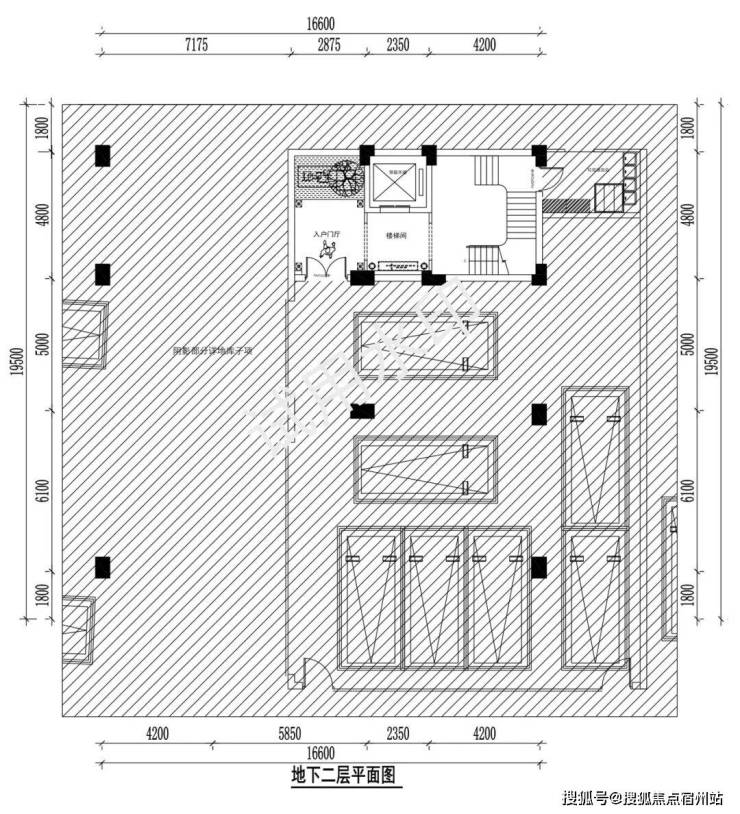
地下一层

地下一层中海恒昌玖里售楼处电话:400-8377-020

中海恒昌玖里售楼处电话:400-8377-020
地下一层的设计灵感来源于剧场,兼具休闲、娱乐、聚会、展演、收藏等功能,建筑面积约188m²的空间充满了无限可能。

中海恒昌玖里售楼处电话:400-8377-020
地下一层


中海恒昌玖里售楼处电话:400-8377-020
▲Occhio的Gioia lettura阅读灯,优雅的线条与做工是空间的点睛之笔。可调节的光线为家宅提供理想的照明条件,使每个角落都能充满温暖舒适。
▲ Occhio的Sento verticale幻影色壁灯,现代简约的设计融入整体,更通过精确的光线控制,为娱乐室增添温暖而富有层次的照明效果。

中海恒昌玖里售楼处电话:400-8377-020


中海恒昌玖里售楼处电话:400-8377-020
⇀ For more 《石库门门头》金选民

中海恒昌玖里售楼处电话:400-8377-020
⇀ For more 《永福里过街楼》金选民

中海恒昌玖里售楼处电话:400-8377-020
⇀ For more 《鹤鸣里148号》金选民

⇀ For more 《时光的记忆》金选民中海恒昌玖里售楼处电话:400-8377-020

中海恒昌玖里售楼处电话:400-8377-020

中海恒昌玖里售楼处电话:400-8377-020
酒窖

中海恒昌玖里售楼处电话:400-8377-020

中海恒昌玖里售楼处电话:400-8377-020
雪茄室
黄浦区新天地城央烫金地段
【中海·顺昌玖里】
【中海·恒昌玖里】
两个盘同步交叉低调开盘
约290-355-380-540㎡ 风貌别墅
样板房正式开放
可立即预约参观