☑️☑️上海壹号院售楼处电话:400-8377-020☑️☑️黄浦核心老城厢
全新烫金豪宅
【上海壹号院】风貌别墅
风貌别墅面积:250-900平㎡
主力户型350-600㎡
均价约30万/㎡
总价预计6000万-3亿
样板房已经开放预约
首开38套 先到先得 欢迎预约
☑️☑️上海壹号院售楼处电话:400-8377-020☑️☑️
编辑

☑️☑️上海壹号院售楼处电话:400-8377-020☑️☑️
上海壹号院风貌别墅
首批次推出38席
房源位于01 ,02, 03 组团区域
建面约250至900平风貌院墅
近期首次开放两套样板间
样板间约为370㎡和590㎡的两个户型
编辑

☑️☑️上海壹号院售楼处电话:400-8377-020☑️☑️
—— 预约看房 ——
☑️☑️上海壹号院售楼处电话:400-8377-020☑️☑️
编辑

编辑

☑️☑️上海壹号院售楼处电话:400-8377-020☑️☑️
01
项目信息
【上海壹号院】位于中华路以东、方浜中路以南、松雪街以西、复兴东路以北,是老黄浦区508-514街坊(亚龙地块)旧城区改造项目。前期高层已售罄,接下来主推风貌别墅。
编辑

☑️☑️上海壹号院售楼处电话:400-8377-020☑️☑️
设计方案如下:
编辑

编辑

☑️☑️上海壹号院售楼处电话:400-8377-020☑️☑️
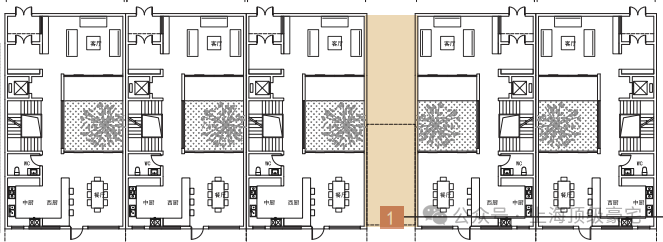
根据规划,项目总建筑面积约23万方,由6栋14-37层的高层住宅、部分改建保留的联排别墅、合院别墅以及部分配套用房组成。
编辑

方案中规划的昼锦路目前还未东延至此,未来建成后,项目内将开辟昼锦路和方浜中路之间的公共绿地以及城市开放空间,着力打造成富有海派文化底蕴的历史风貌保护和城市更新经典片区。
编辑

项目主要分两个地块,西区地块主打新建高层住宅,总计六幢,其中包含了4套保留改建的别墅产品。
编辑

☑️☑️上海壹号院售楼处电话:400-8377-020☑️☑️
编辑

编辑

☑️☑️上海壹号院售楼处电话:400-8377-020☑️☑️
北区地块区域主打保留建筑,基本为2-3F的联排和合院。
编辑

编辑

☑️☑️上海壹号院售楼处电话:400-8377-020☑️☑️
编辑

☑️☑️上海壹号院售楼处电话:400-8377-020☑️☑️
02
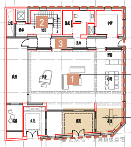
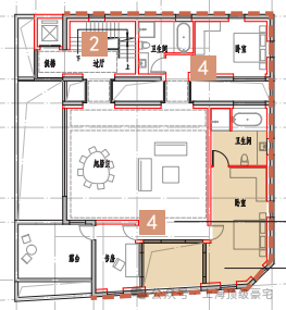
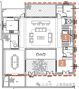
合院户型图
(户型图仅供参考,具体以开发商公示为准)
编辑

☑️☑️上海壹号院售楼处电话:400-8377-020☑️☑️
编辑

☑️☑️上海壹号院售楼处电话:400-8377-020☑️☑️
部分保留历史建筑的户型平面图👇
(双击可查看大图)
一层
编辑

二层
编辑

☑️☑️上海壹号院售楼处电话:400-8377-020☑️☑️
一层
编辑

☑️☑️上海壹号院售楼处电话:400-8377-020☑️☑️
二层
编辑

一层
编辑

☑️☑️上海壹号院售楼处电话:400-8377-020☑️☑️
二层
编辑

一层
编辑

☑️☑️上海壹号院售楼处电话:400-8377-020☑️☑️
二层
编辑

一层
编辑

☑️☑️上海壹号院售楼处电话:400-8377-020☑️☑️
二层
编辑

一层
编辑

☑️☑️上海壹号院售楼处电话:400-8377-020☑️☑️
二层
编辑

三层
编辑

☑️☑️上海壹号院售楼处电话:400-8377-020☑️☑️
一层
编辑

二层
编辑

三层
编辑

☑️☑️上海壹号院售楼处电话:400-8377-020☑️☑️
一层平面图
编辑

二层平面图
编辑

编辑

☑️☑️上海壹号院售楼处电话:400-8377-020☑️☑️
编辑

☑️☑️上海壹号院售楼处电话:400-8377-020☑️☑️
—— 预约看房 ——
☑️☑️上海壹号院售楼处电话:400-8377-020☑️☑️
上海壹号院风貌别墅
【体量】151套风貌
【本批次】第一批次,38套,分3个组团
【类型】纯合院风貌(毛坯交付)
【面积】250平-900平(主力户型350--600)
【均价】30万+,套均过亿
【户型】每套不同,107个户型(1字型、回字形、C字形、L型、H型……)
【风格】江南园邸、现代主义、街店式、近代装饰……多类型供选择
【层高】3.9/3.6/3.6(大户型为主) 3.6/3.3/3.3(小户型为主)
【赠送】花园、阳台、双露台、大面积地下室、阁楼闷顶高度不一
【巷道】组团,支巷道3米-4.5米
【物业】融创(暂定地上19.8元,地下10元,会所额外收费)
【交房时间】预计2027年12月
上海壹号院的风貌,根据目前仅有的资料,改良了很多:
1. 分支巷道拓宽至3-4米,诸多项目还停留在1-2米;
2. 阳台和露台用格栅确保私密性和开阔性,防止对视;
3. 立体住宅,分层内嵌,采光差的首次开创房子内部做天井,确保全户型全明、每个角落有光
4. 上海风貌层高最高的产品,很多户型层高:地下6.1米,一层3.9米,二层3.6米,三层3.6米
5. 外小内大,保护大户型隐私和品质;
6. 很多户型双露台,大户型2-4个花园
☑️☑️上海壹号院售楼处电话:400-8377-020☑️☑️
7. 壹号院一贯作风,外部点状承重,设计多样性
1) 层高惊艳,上海风貌目前基本都是3.6/3.3/3.3(当然壹号院也有部分是这种层高的),壹号院风貌面积大一点很多都是3.9米的层高,3.9/3.6/3.6,这个配置目前属顶配,地下室也是挑高6.1米,整体空间感尺度不错的;
2) 天井设计,这是上海风貌的首次尝试,部分户型为了达到每一层、每个功能间有好的光线,在整个房子内部,做个采光天井,虽然没看到实地,但还是震撼到了我;
3) 巷道不错,分支巷道能做到3-4.5米,间距可以的。
编辑

编辑

☑️☑️上海壹号院售楼处电话:400-8377-020☑️☑️
编辑

☑️☑️上海壹号院售楼处电话:400-8377-020☑️☑️
编辑

编辑

☑️☑️上海壹号院售楼处电话:400-8377-020☑️☑️
编辑

编辑

编辑

☑️☑️上海壹号院售楼处电话:400-8377-020☑️☑️
编辑

☑️☑️上海壹号院售楼处电话:400-8377-020☑️☑️
黄浦核心老城厢
全新烫金豪宅
【上海壹号院】风貌别墅
风貌别墅面积:250-900平㎡
主力户型350-600㎡
均价约30万/㎡
总价预计6000万-3亿
样板房已经开放预约
首开38套 先到先得 欢迎预约
上海壹号院·海派庭院别墅
新天地之上 百年传奇恒新之地
ONE CENTRAL PARK
☑️☑️上海壹号院售楼处电话:400-8377-020☑️☑️
编辑

☑️☑️上海壹号院售楼处电话:400-8377-020☑️☑️
上海壹号院·锦华里地处大新天地核心节点,既传承700年海派历史文化沉淀,同时链接历史与未来的黄金占位,见证百年繁华传奇永续。
编辑

◎ 咫尺新天地 蓝绿丝带上的关键节点
距离新天地直线距离约400米,作为蓝绿丝带规划上的关键节点,随着大新天地东进南拓战略逐步实施,通过水景、绿地和公共空间,串联新天地、豫园、外滩三大世界级商业版图。
未来,整个片区的商业规模将突破约28万方,商办总体量达到约150万方,商业配套、产业资源、生态规划的能级与量级得到新突破。预计未来围绕本地块约1.1平方公里内将吸引约7000个亿级家庭的聚集,成就上海乃至中国亿级家庭浓度最高的区域。
编辑

☑️☑️上海壹号院售楼处电话:400-8377-020☑️☑️
◎ 700年海派源点 百年恒贵之地
本案地处上海核心风貌区板块第二象限,约1km范围内有豫园、文庙、新天地等城市坐标,融汇东西文化,是上海最早集商贸、金融、文化于一体的政治、经济、文化中心。
作为上海中心城区12个历史文化风貌区之一,水系脉络润泽、华商名流与世家望族云集,街、巷、里、弄之间,蕴藏上海恒贵的人文记忆,其所代表的海派文化具有不可替代的独特性。
编辑

◎ 中信·新湖·融创 央企联袂匠著
上海壹号院由中信、新湖、融创 ,央企投资并控股,秉承央企优势资源和专业开发团队经验互补理念,多方强强联合。2025年更是以220+亿热销金额登顶全国单盘销冠(数据截止2025年9月)。
编辑

☑️☑️上海壹号院售楼处电话:400-8377-020☑️☑️
编辑

◎ 十余年深研 代表中国受邀参加威尼斯双年展
上海壹号院集萃中科院院士郑时龄、华东建筑设计研究院宿新宝等风貌专家团队以及gad蒋愈、CCD、无间等全球设计大师资源,历时10余年精耕细作。 2023 年未曾面世即受邀参加威尼斯双年展,以上海风貌保护的至高成就,代表中国向世界展示伟大城市风貌更新的成功典范。
编辑

☑️☑️上海壹号院售楼处电话:400-8377-020☑️☑️
编辑

编辑

◎ 中学为体 西学为用 打造海派建筑百科全书
坐落于荟萃海派先进建筑样式的“历史豪宅区”:这里毗邻中西文化的枢纽之地,建筑呈现中西文化融合、多元荟萃的风格,涵盖公馆、里弄的形态特征,糅合传统江南园邸、近代公馆等多元风格,呈现海纳百川的特点。
编辑

☑️☑️上海壹号院售楼处电话:400-8377-020☑️☑️
秉承以“最大化保留风貌肌理”为原则,在历史底纹之上打造新天地和风貌区里的当代上海故里。 通过保护修缮、保留改造、更新改建三大更新手法,萃取打造「江南园邸」「近代中西合璧」「近代装饰艺术」「现代主义」四大建筑风格,深度挖掘建筑基因,以专属建筑立面及设计语言,量身定制呈现 “一户一策” 的合院式居住体验。
编辑

◎ 海量海派装饰元素 溯源经典
萃取提纯地块原有海派建筑的符号,融合如山墙、卷草、拱门、窗花、雕花、门楣等百余个历史构件元素等,通过保留、转译等形式,实现海派符号的经典溯源,演绎每一栋建筑的风格和历史底色。
编辑

☑️☑️上海壹号院售楼处电话:400-8377-020☑️☑️
编辑

◎ 上海少有大合院体系风貌别墅
区别于市场上多数的行列式产品(统一制式排布),上海壹号院作为少有的大合院体系下的风貌庭院别墅区,原真保留了丰富的街巷生活肌理、多元化生活场景,以极具特色的建筑规划、景观庭院打造原汁原味的海派庭院生活。
编辑

☑️☑️上海壹号院售楼处电话:400-8377-020☑️☑️
▲大尺度的庭院空间 外紧内松
契合中国传统院落居住哲学理念,以“外紧内松”空间设计手法,对风貌别墅空间尺度进行当代拓新,让空间服务于生活。外紧-通过外部百年巷道肌理活化、建筑错落排布景筑交融,打造美而精的体验;内松-宅院内以多重庭院、立体花园、大落地窗等实现室内尺度拓新,给家人更多停留空间、打造建筑会呼吸的松弛感。
编辑

▲立体庭院 宅园合一的东方哲学
呼应刻在国人骨子里的庭院情节,户型设计中创造性的加入多重、立体花园概念(多重开放空间如庭院/露台/阳台/采光井等),庭院层层为退、与露台相呼应,在平面和空间上创造出多层次亲近自然的可能。
编辑

☑️☑️上海壹号院售楼处电话:400-8377-020☑️☑️
▲多重附赠空间及采光系统
在空间打造上,通过多重庭院及露台、地下室、阳台等多维空间,极大地拓展住宅的使用功能与体验。通过庭院、地下(采光井)、宅间(大面积玻璃窗、阳台、露台)等有机结合实现多重采光系统,最大化保障空间通透性、确保采光与通风,打造会呼吸的风貌墅。
编辑

▲面向未来百年的新天地门牌
在新天地这片土地之上,以极具稀缺的“独立门牌号”为建筑和宅院赋予独特的身份铭牌。以独立多重入户方式,注重归家仪式感打造和宅院私密性。多数合院除主入口外,次入口搭配庭院,出入口连接庭院,在丰富建筑空间层次的同时打造从“公共(街道)→ 半私密(庭院)→ 完全私密(室内)”的归家入户仪式感。
编辑

☑️☑️上海壹号院售楼处电话:400-8377-020☑️☑️
编辑

贯彻“中意西景、中正西融”景观理念,以中式花园隐居哲学核心,传承中式里弄记忆、融合西式花园情调。提取场地四种建筑和场域风格特征,营造中西风貌交叠的别墅花园景观,演绎当代海派风情里弄人居。
编辑

☑️☑️上海壹号院售楼处电话:400-8377-020☑️☑️
◎ 四重景观空间 层层递进的隐居哲学
从城市界面到节点空间,由大到小打造“四重空间感受”,营造中西和鸣的感官体验。从华而美的城市道路、糅而谐的景观轴线,美而精的归家巷弄、雅而巧的节点空间,每一处场景皆实现私密与艺术的交融,感受城市繁华与归家宁静的交叠。
编辑

☑️☑️上海壹号院售楼处电话:400-8377-020☑️☑️
◎ 中正西融 多重主题的海派花园景观
在内部景观的营造上,精心雕琢「藏幽望舒」、「暗香疏影」、「繁花浮动」 等多种绿化主题,实现了空间上的自然过渡,并通过多维度提取风貌意境,以现代造园手法融会贯通,打造和而不同的中西风貌交融的海派花园景观。
编辑

编辑

◎ 200+服务人员丨24H全天候守护丨专业古建维护
项目引入融创归心礼御高端服务体系,配置“社区运营官、园艺工程师、高级工程师和社区运营顾问”4个新工种,为生活提供全时守护。同时基于项目风貌保护特殊性,引入拥有古建养护经验的团队,以精细化维护、科学管养等理念实现风貌建筑每一处细节养护。
融创物业,在2024年外滩壹号院满意度达100%,更成为2025杭州亚运会官方服务商,以国际标准,兑现每一份生活承诺。
编辑

编辑

☑️☑️上海壹号院售楼处电话:400-8377-020☑️☑️
黄浦老城厢顶级豪宅
新湖&融创&中信 联袂打造
「上海壹号院」
38席位风貌别墅加推
建面约206-1000㎡合院别墅
均价30万/㎡
目前“样板间”开放中