宝山高境,3号线殷高西路站新盘「江湾鸿玺」即将入市!预计将推出套均200㎡大平层!
☑️☑️江湾鸿玺售楼处电话:400-8377-020☑️☑️

☑️☑️江湾鸿玺售楼处电话:400-8377-020☑️☑️
户型图如下:
(仅供参考,最终以实际为准)
建面约200m²4房户型

☑️☑️江湾鸿玺售楼处电话:400-8377-020☑️☑️
一房一价表如下:

☑️☑️江湾鸿玺售楼处电话:400-8377-020☑️☑️
说到高境,作为宝山近市中心的板块,一直以来缺乏新房,上一次主力供应要追溯到2015年的泰禾红御,目前该项目是高境乃至整个宝山标杆,部分房源挂牌价9万+/㎡。
回到江湾鸿玺,项目位于殷高路逸仙路路口,其实就是很多人说的高境欣苑二期,在高境欣苑中又开发了一栋楼。


☑️☑️江湾鸿玺售楼处电话:400-8377-020☑️☑️

首层为商业配置,未来将引入运动健身、休闲会馆、便利商超等功能设施,物业提供24H管家式服务。
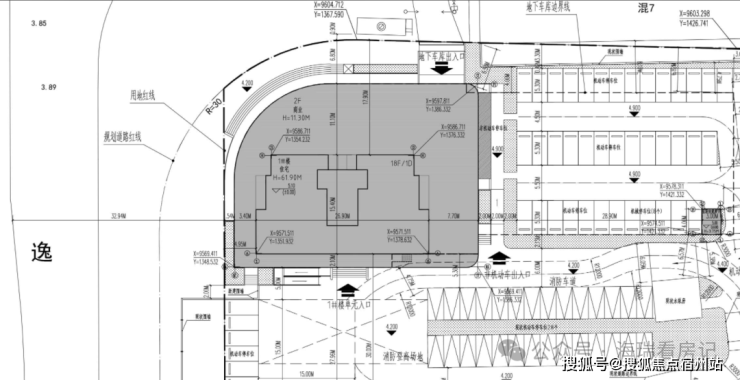
规划设计图:

☑️☑️江湾鸿玺售楼处电话:400-8377-020☑️☑️
我们放大看:这栋楼共18层,估计2梯2户,据悉首层为商业配置,将来可能引进运动健身、休闲会馆、便利商超等。
还有两套自持,所以可售为32套,户型为建面约200㎡大平层。

项目距离3号线殷高西路站仅100米,1公里直达18号线殷高路站,双轨并行锋速通达的时间效率;书香萦绕的教育高地,科创引领、产业先行的核心经济圈。此外,通过逸仙路高架,可以提升通行时效,快速连接五角场合生汇、百联又一城、万达广场、虹口龙之梦等中大型商业综合体。

☑️☑️江湾鸿玺售楼处电话:400-8377-020☑️☑️
生活配套成熟,项目西侧就是一个商场,吃喝玩乐都能满足, 新业坊·源创潮流、精致元素的加持也为板块注入更多活力。
殷高西路上还有永辉、长江国际、景瑞生活广场等,生活很方便。

☑️☑️江湾鸿玺售楼处电话:400-8377-020☑️☑️
另外,紧邻逸仙高架路+3号线,可能会有一定噪音,同时处于交通要道五岔路口,这里的车流量、人流量非常大,拥堵情况比较严重。
当下,房地产已步入自住改善的时代。
除了更大的居住空间、更高的居住品质、更好的装修标准等产品力的加强,改善客户想要买入核心地段,那真的要趁早了!
这不,机会来了!
江湾2.0稀缺宽邸大宅!
3号线殷高西路稀缺新盘——【江湾鸿玺】开盘热卖中!

☑️☑️江湾鸿玺售楼处电话:400-8377-020☑️☑️
江湾 ——这片历经千年沉淀的土地,始终是上海城市文明的重要注脚。
南宋初年,江湾镇以“铜江湾”的盛誉崛起,成为商贾云集的繁华市镇,青石板路上回响着岁月的足音。
时光流转至近代,这里又见证了城市发展的沧桑变迁,老厂房、石库门里弄等历史遗存,勾勒出独特的海派风情。
如今,在 “南北转型” 的战略机遇下,江湾迎来了 2.0时代 的华丽蜕变。
作为上海科创中心主阵地的重要组成部分,这里正以高新技术产业为引擎,吸引着科创人才与资本的集聚。
新江湾城国际住区的生态智慧底色,五角场科创商圈的创新活力,共同勾勒出江湾“历史与未来共生”的独特气质。
【江湾鸿玺】 落子于此, 既承接了千年古镇的人文厚度,又坐拥城市发展的时代红利,成为连接过去与未来的人居枢纽。

项目推出32席人居臻品
建面约200㎡新海派宽邸
过会均价7.69万/m²,总价约1420万起!
售楼处/样板房一经开放,每天来访人员络绎不绝,现场人声鼎沸,如此高的热度,妥妥的红盘预定!

☑️☑️江湾鸿玺售楼处电话:400-8377-020☑️☑️


☑️☑️江湾鸿玺售楼处电话:400-8377-020☑️☑️

☑️☑️江湾鸿玺售楼处电话:400-8377-020☑️☑️
为什么项目能受到市场如此的青睐,重要的一点就是超高的性价比!
上海中环沿线新房价格已全面跳涨:
徐汇长桥、杨浦滨江 破11万/㎡, 长宁天山 近12万/㎡, 闵行七宝 10万+/㎡……
未来地王扎堆 :静安大宁、浦东北蔡等地块楼面价屡创新高,中环即将进入“全盘10万+”时代!
【江湾鸿玺】建面约200㎡大平层总价仅1500万级,同等面积在内环需3000万+!
上海建面200㎡+二手房占比不足5%, 稀缺性+抗跌性双保险 !
“中环旁、装标顶配的大平层,未来再无此价!”
【江湾鸿玺】怎能错过!!!

☑️☑️江湾鸿玺售楼处电话:400-8377-020☑️☑️

☑️☑️江湾鸿玺售楼处电话:400-8377-020☑️☑️
户型图赏鉴
“换房就是换生活”,【江湾鸿玺】以200㎡的空间尺度,回应着当代家庭结构的变迁。在户型设计上,项目摒弃了传统户型的局促感,以 “类一梯一户”的配置,让归家充满仪式感。

☑️☑️江湾鸿玺售楼处电话:400-8377-020☑️☑️
建面约200㎡4房2厅3卫 户型,做到了 三开间朝南+主卧豪华套房设计+南北通透 ,保证每个家庭成员都能有自己独立的居住空间,私密性拉满。
LDKB客餐厅一体化设计 ,约50㎡超大方正空间,尺度不凡的客厅搭配宽景阳台,将生活的奢度打开!
阳台、客厅、餐厅紧密相连无界连通,空间感、功能性拉满!
主卧以豪华套间标准打造,配备独立步入式衣帽间以及双台盆,淋浴区/浴缸 双沐浴方式,实用性与豪华兼备。
该户型是“一步到位”的大4房,无论是功能性还是尺度感,是上海改善置换金字塔塔尖的存在,未来纵享长久板块发展红利!
项目高定奢标严选全球高端旗舰品牌,交付标准包括 弗兰卡、唯宝、耶鲁、汉斯格雅、大金、玫瑰岛、博世、书香门地 等国内外知名品牌,精致感和奢华感拉满。
这都是市面上10万/㎡+的豪宅用的。

项目使用 大金 的中央空调及地暖、 格力 空气能全屋循环热水系统、 滨特尔 的中央净水系统。
精雕铝板装甲入户门,配备耶鲁智能门锁。
玄关空间非常宽敞,配置有定制玄关柜,出入更具仪式感。

☑️☑️江湾鸿玺售楼处电话:400-8377-020☑️☑️
样板间实景图
客餐厅区域,餐厅、电视背景墙面都是石材的,地面是瓷砖铺就,配置有定制餐边柜、弗兰卡的水槽和龙头等。

样板间实景图
项目厨房使用 方太 的灶蒸烤一体机、吸油烟机 三件套交付,更有 弗兰卡 的水槽、龙头,定制橱柜, 诺贝尔 的地面、墙面,石英石台面等 。

☑️☑️江湾鸿玺售楼处电话:400-8377-020☑️☑️
样板间实景图
2个 博世 的内嵌冰箱都是交付标准,一个放在厨房,一个放在客餐厅位置,方便分类储存的需求。

样板间实景图
卧室墙面采用 局部墙布+局部硬包 ,地面是书香门地实木复合地板铺就。

☑️☑️江湾鸿玺售楼处电话:400-8377-020☑️☑️
样板间实景图
卫生间甄选 唯宝 的台下盆、 汉斯格雅 的龙头+恒温花酒, 玫瑰岛 的淋浴房, 科勒 的智能一体马桶+浴缸+浴缸龙头 等,生活质感肉眼可见。
更有众多人性化细节,包括加热毛巾架,淋浴屏,定制台盆柜+镜柜等,省去后期定制比价的烦恼。
卫生间地面是瓷砖铺就,台面都是石材的,做到整体美观和实用的结合。


☑️☑️江湾鸿玺售楼处电话:400-8377-020☑️☑️
样板间实景图
另外, 室内搭载罗格朗全屋智能系统 ,简化繁琐操作,拒绝科技污染,提供恰到好处的智慧家居解决方案。
社区规划
【江湾鸿玺】由 沪彭集团旗下的宝鸿房产 开发,是典型具有海派腔调的“小而精”的社区,品质更具确定性。
项目 对标常德公寓、武康大楼等一线城市地标 ,以新海派风格打造上海精致生活范本。

☑️☑️江湾鸿玺售楼处电话:400-8377-020☑️☑️
项目效果图过程稿,仅供参考,以实际发布为准
项目 地上+地下双精装大堂设计 ,为业主带来尊崇感、仪式感兼备的归家体验。
如果您是车行回家, 这个 “奢阔的地下车库” ,能给您更加极致的仪式感。
极具艺术感的精装车库, 星空顶+雪山银狐背景墙 ,打造一场视觉上的感官盛宴。


☑️☑️江湾鸿玺售楼处电话:400-8377-020☑️☑️
项目效果图过程稿,仅供参考,以实际发布为准
如果您是步行归家, 社区入户大堂完全对标5星级酒店。
约4.75米层高、约32㎡的精装大堂, 配置雪山银狐背景墙,踏入大门就能感受到满满的尊崇感。

项目效果图过程稿,仅供参考,以实际发布为准
大堂内配置 泛会所服务 ,底层意向配备咖啡厅、洗衣房、健身空间、美容服务等商服功能(配套商服意向业态,最终以实际为准),为业主提供更便捷精致的生活方式。
地下1层还设有健身会所 ,无需出门,就能满足业主的健身需求。

☑️☑️江湾鸿玺售楼处电话:400-8377-020☑️☑️
仅作示意,以最终交付为准
项目 搭载万物梁行高端品牌物业顾问 ,万科上海在地优势+戴德梁行国际化视野,提供 贴心管家式物业服务,7x24h全时守护。
生活配套
江湾鸿玺项目位于虹口、杨浦、宝山、静安四区交汇处,既承袭上海的人文厚度,亦坐享新江湾城国际住区与五角场科创商圈的当代红利。
项目交通优势明显:以 “三纵两横”高架路网 (逸仙路高架、南北高架、淞沪路-闸殷路通道;内环、中环)实现15分钟速达五角场、大宁商圈,30分钟贯通人民广场、陆家嘴等城市核心。中环北抬规划更将强化板块与浦东、虹桥的联动,兑现“北上海门户”的战略地位。
黄金动脉,通勤全城: 3号线殷高西路站:4站虹口足球场;18号线殷高路站:1站财大、2站复旦、7站杨浦滨江、9站陆家嘴;19/20号线(在建):直达前滩、世博、陆家嘴,换乘全城。
资源聚合 定义高阶生活
项目3公里半径内,商业、生态、教育、医疗资源形成“黄金生活闭环”。
商业能级跃升: 新业坊文创综合体、五角场商圈、大宁久光等多元消费场景,满足从日常到奢享的全维度需求。

☑️☑️江湾鸿玺售楼处电话:400-8377-020☑️☑️
生态绿洲环绕: 新江湾湿地公园、彩虹公园等构筑城市绿肺,新境地公园以工业遗存与智慧设施打造网红社交空间。
顶流教育环伺: 复旦、同济、上财三大学府书香,交大附中直线距离仅800米。
高端医疗护航: 同济大学附属上海市第四人民医院、岳阳医院、长海医院等构筑15分钟健康防护网,为品质生活提供坚实保障。

☑️☑️江湾鸿玺售楼处电话:400-8377-020☑️☑️