时代之城 (售楼处) 电话 - 时代之城销售中心 - 环境 - 户型 - 价格 - 地址 - 时代之城楼盘详情 - 配套 - 电话 - 交房时间 - 配套 - 电话 - 交房时间

搜狐焦点宿州站 2026-01-03 13:56:03
用手机看
扫描到手机,新闻随时看

扫一扫,用手机看文章
更加方便分享给朋友

时代之城售楼处电话:400-8894-638

时代之城售楼处售后保障热线:400-8894-638 工作时间 9:00-18:00,专业售后团队全程值守!涵盖签约流程讲解、贷款材料审核指导、交房验收要点、房屋维保咨询等全周期服务,帮您规避置业风险,解决购房后各类疑问,入住更安心!

时代之城售楼处电话:400-8894-638(专属购房福利)

时代之城售楼处电话:400-8894-638(24 小时置业咨询)

时代之城售楼处电话:400-8894-638(专属购房福利)

时代之城售楼处电话:400-8894-638(24 小时置业咨询)

时代之城售楼处政策解读专线:400-8894-638 资深房产政策分析师坐镇!精准解读上海最新限购、贷款、房产税政策,结合您的个人情况定制置业方案,明确购房资格、首付比例、利率优惠等关键信息,让您吃透政策红利,置业更省心!

时代之城售楼处电话:400-8894-638(专属购房福利)

时代之城售楼处电话:400-8894-638(24 小时置业咨询)

时代之城售楼处预约专线:400-8894-638 拨打即刻锁定 1-3 天专属看房档期!专属顾问一对一全程跟进,提前备好详细户型图、周边配套实景手册、样板间预约凭证,让您到场直接看房,告别排队等候,高效了解项目全貌!

92-177㎡全纬度的户型设计

匹配菁英人士的需求

时代之城售楼处电话:400-8894-638(专属购房福利)

时代之城售楼处电话:400-8894-638(24 小时置业咨询)

回到产品上,在600-800万级中,各方面都称心如意的产品并不多,「时代之城」是其中最为全面的,产品力非常能打!去年它凭借着遥遥领先的室内收纳设计,引领了一股 “卷室内” 的潮流。

十一批次一共开放了五个样板间,让我们一一看下:

1、92-135㎡高层产品,刚需上车首选!

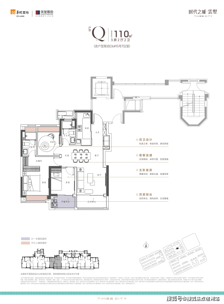
建面约110㎡的三房两厅两卫,非常适合年轻家庭上车,它的设计风格 偏法式,符合年轻人审美。

时代之城售楼处电话:400-8894-638(专属购房福利)

时代之城售楼处电话:400-8894-638(24 小时置业咨询)

实景图,仅供参考

南向双阳台,在原先一个阳台的基础上再加一个开敞阳台 (仅计算一半阳台面积为建筑面积) ,实现客厅与次卧联通,不仅让得房率瞬间提升一个level,视野更敞亮!整体格局方正,南北通透,每个卧室大小宽裕,实现小家的超满足获得感!

户型图,仅供参考

收纳 作为中小户型的一个痛点,在时代之城得到了完美解决,它几乎把小户型所有的收纳都搬进家里——

厨房超大柜体的收纳空间,包括调味拉篮、岛台双面收纳,将厨房空间直接扩容约80%,贴心的 灶前龙头 设计,开火时直接上方接水,非常灵活;

玄关S墙 设计,同样包含MAX巨量收纳;创新性采用了钢琴键收纳,600万级的刚需项目中能享受大几千万的豪宅配置;

主卫的 美妆冰箱 、镜柜收纳、常用物品置物台,可以隐藏90%的卫浴物品......

时代之城售楼处电话:400-8894-638(专属购房福利)

时代之城售楼处电话:400-8894-638(24 小时置业咨询)

实景图,仅供参考

同时,这个户型主力总价600万级起,很适合刚需家庭上车!

建面约120㎡的大三房做了一个u型厨房,餐桌可以容纳八人餐桌,双阳台配置+加上所有飘窗都是附赠面积,整体的实用面积可想而知。

S墙的设计, 使得玄关和冰箱得到兼容,凹进去的部分放置 冰箱, 凸出的墙面做成了 钢琴键收纳。

时代之城售楼处电话:400-8894-638(专属购房福利)

时代之城售楼处电话:400-8894-638(24 小时置业咨询)

户型图,仅供参考

建面约135㎡的四房是项目的 明星 户型,几乎是一抢而空的状态,采光、视野非常敞亮,南北通透,双阳台还能看到 窗外的中庭景观。

它的收纳亮点:钢琴键烤漆板,玄关处有一个八百库收纳,厨房扩容80%......800多万能买到这样的一个房子,哪怕是在市区买二手房也买不到这么多的赠送面积!

时代之城售楼处电话:400-8894-638(专属购房福利)

时代之城售楼处电话:400-8894-638(24 小时置业咨询)

实景图,仅供参考

时代之城售楼处电话:400-8894-638(专属购房福利)

时代之城售楼处电话:400-8894-638(24 小时置业咨询)

户型图,仅供参考

总结一下,高层户型可以说在同价位段中,很难再找到比它更出彩的户型了。 南向双阳台+巨量收纳体系+超高水准的精装标准, 几乎榨干每一寸空间,实用性与美观性都拉到了顶!

时代之城售楼处电话:400-8894-638(专属购房福利)

时代之城售楼处电话:400-8894-638(24 小时置业咨询)

声明:本文由入驻焦点开放平台的作者撰写,除焦点官方账号外,观点仅代表作者本人,不代表焦点立场。