闵行国际社区珍藏房源
屈指可数的原生态国际社区
【旭丽花园】
建面约456.6㎡独栋别墅
南北双客厅 入户挑空
室内车库 尊享居家新风尚
附赠花园400~600㎡环抱式花园
总价约:2100万/套起
坐拥前庭后院 享6房/8房套间
现房销售 款清交房 毛坯交付
☑️☑️旭丽花园售楼处电话:400-8377-020☑️☑️
编辑

☑️☑️旭丽花园售楼处电话:400-8377-020☑️☑️
项目基础信息
开发商:上海合裕房地产有限公司
项目地址:北松公路与花王路口
项目产权:1993年拿地 2006年竣工 产权70年
总占地:16万方
总建面:9.3万方
容积率:0.71
独栋面积:456.6㎡ (6房两厅4卫或者8房两厅5卫)
总价:2100万/套起
绿化率:40%
物业公司:上海环连脸物业
物业费:2块5
电:平每度0.617元 谷每度0.307元
水:每吨4.09元 燃气3元每立方
交付标准:款清交付 毛坯交房
☑️☑️旭丽花园售楼处电话:400-8377-020☑️☑️
编辑

☑️☑️旭丽花园售楼处电话:400-8377-020☑️☑️
【旭丽花园】(别名:维纳阳光)位于闵行马桥板块,北临天然河道,南临北松公路,西临华宁路,东临花王路; 项目项目占地16万㎡,建筑面积9.3万㎡,由300套双拼、独栋别墅组成。目前在售的是之前是开发商内部保留房源,16套双拼和2套小面积独栋产品。
编辑

【旭丽花园】别墅采用 新亚洲的建筑风格,一般采取了简单明快的造型,外立面采用磁砖和真石漆,外观庄重恢弘,美观大气,经久耐看。
编辑

☑️☑️旭丽花园售楼处电话:400-8377-020☑️☑️
【旭丽花园】别墅高达约40%的绿化率,除了小区内部一个超大公共花园,小区内还有阿波罗广场,维纳涌泉,粼波丽池等景观,另外在小区各处遍布有十年参天树木,绿树成荫,环境非常漂亮。
编辑

☑️☑️旭丽花园售楼处电话:400-8377-020☑️☑️
另外小区内还有 约2400㎡的超大会所,包含开放式透明大堂,专业健身房,透明室内泳池,桑拿吧,咖啡馆,便利店等健康休闲设施。
编辑

☑️☑️旭丽花园售楼处电话:400-8377-020☑️☑️
项目的双拼别墅面积约289㎡,花园面积约200㎡;独栋别墅面积约285-297㎡,花园面积约242-324㎡,户型方正大气、所有功能区都有,且都带有室内停车库,另外赠送的大花园,都是日常新房少有的。
编辑

☑️☑️旭丽花园售楼处电话:400-8377-020☑️☑️
项目在售房源详情
【旭丽花园】别墅区占地16万方,建筑面积9.3万方,由300套双拼、独栋别墅合成舒适别墅社区。 旭丽花园所有可售房源总计:大独栋19套
编辑

☑️☑️旭丽花园售楼处电话:400-8377-020☑️☑️
大独栋别墅:产证面积456㎡左右,赠送花园242㎡---657㎡左右,在售房源总价约2100万起步/套,房型为6房2厅4卫2室内车库或8房2厅5卫。
编辑

☑️☑️旭丽花园售楼处电话:400-8377-020☑️☑️
编辑

☑️☑️旭丽花园售楼处电话:400-8377-020☑️☑️
编辑

☑️☑️旭丽花园售楼处电话:400-8377-020☑️☑️
闵行区国际社区【旭丽花园】建面约456.6㎡花园独栋别墅!总价约2100万起!现房销售!
聚焦新房已关注
分享点赞在看已同步到看一看写下你的评论
视频详情
项目实景实景图▼
编辑

☑️☑️旭丽花园售楼处电话:400-8377-020☑️☑️
编辑

☑️☑️旭丽花园售楼处电话:400-8377-020☑️☑️
编辑

编辑

☑️☑️旭丽花园售楼处电话:400-8377-020☑️☑️
编辑

☑️☑️旭丽花园售楼处电话:400-8377-020☑️☑️
编辑

— 品鉴热线 —
☑️☑️旭丽花园售楼处电话:400-8377-020☑️☑️
项目区位配套
根据 “十三五规划”马桥将会打造成 “上海人工智能未来小镇”,紧邻龙湖天琅项目西部, 占地约10.4平方公里,以中部的北松公路为界,分为北部4.9平方公里的应用示范区(包括住宅、市政、医疗、商办、基础教育服务、福利、教育科研等用地)和南部5.5平方公里的产业园区。
编辑

☑️☑️旭丽花园售楼处电话:400-8377-020☑️☑️
马桥将迎来无数个 “全球第一”:比如 世界上第一个人工智能广场、第一个人工智能餐饮街、第一个人工智能公园、第一个人工智能定制公交、第一个人工智能大师湾、第一个人工智能创业街、第一个人工智能虚拟现实婚礼殿堂等……
大量高新技术产业和各种示范区将陆续入驻,同时也会吸引大批上下游产业落户马桥(比如互联网、硬件、芯片、计算机、医疗等等),继而带动整个产业链的发展。高量级企业的汇聚必将为马桥注入极强的产业动能,带来大量的工作机会,吸引高层次、高能力的企业精英,助力马桥成为“科技版的迪士尼和缩小版的雄安新区”,实现腾飞!
编辑

☑️☑️旭丽花园售楼处电话:400-8377-020☑️☑️
编辑

交通配套方面:离项目最近的是5号线北桥路站(步行约2.1KM),可以乘闵行5路, 莘金专线等公交车直达项目;自驾的话,项目旁边就是沪闵公路,嘉闵高架,沪金高速,虹梅高架,申嘉湖高速等主干道,到上海各区域都是非常便捷的。
编辑

☑️☑️旭丽花园售楼处电话:400-8377-020☑️☑️
在建中23号线东川路站3.6公里
编辑

☑️☑️旭丽花园售楼处电话:400-8377-020☑️☑️
编辑

商业配套方面:项目旁边就有在建的10万㎡龙湖天琅(步行约2.0KM),马桥满天星生活广场(步行约2.0KM),北桥菜市场(步行约2.1KM),新安农副产品市场(步行约2.1KM),在建30万㎡龙湖天钜(步行约3.4KM),碧江广场(步行约4.4KM),万达广场(步行约5.5KM)等商业配套,吃喝玩乐购样样都有。
编辑

☑️☑️旭丽花园售楼处电话:400-8377-020☑️☑️
教育资源方面:上海德威英国国际学校、上海德闳学校、斯代文森国际高中……
马桥公立学校:马桥强恕学校全校,闵行三中,闵行二中,上海交通大学附属第二中学,闵行四中;
马桥私立学校:马桥文莱外国语小学、文莱中学 ;上海复旦万科实验中学 、英国德威国际学校
马桥幼儿园:闵行区马桥镇元祥幼儿园(该幼儿是马桥镇政府于2010年新建的幼儿园。隶属于闵行区教育局、马桥镇地方两级管理单位,双方领导都很重视幼儿园未来的发展,2014年幼儿园已被评为上海市一级幼儿园。)、马桥启英幼儿园 。
编辑

☑️☑️旭丽花园售楼处电话:400-8377-020☑️☑️
医疗资源方面:项目附近就有马桥社区卫生服务中心(步行约1.7KM),复旦大学附属上海市第五人民医院(步行约4.4KM),闵行区肿瘤医院(步行约4.7KM)等医疗配套,为健康起到保驾护航的作用。
编辑

产业红利方面:上海人工智能机器人小镇—全球首个由AI规划推演的未来小镇,腾讯,阿里巴巴,百度人工智能板块聚集地。打造科技版迪士尼和缩小版雄安新区。
编辑

☑️☑️旭丽花园售楼处电话:400-8377-020☑️☑️
闵行国际社区珍藏房源
屈指可数的原生态国际社区
【旭丽花园】
建面约456.6㎡独栋别墅
南北双客厅 入户挑空
室内车库 尊享居家新风尚
附赠花园400~600㎡环抱式花园
总价约:2100万起/套
坐拥前庭后院 享6房/8房套间
现房销售 款清交房 毛坯交付
对项目有兴趣的朋友
扫码加微信预约看房
一对一贴心服务
1地段
☑️☑️旭丽花园售楼处电话:400-8377-020☑️☑️
交通方面:距离地铁5号线北桥站2.2公里、在建中23号线东川路站3.6公里;300米上嘉闵高架和申嘉湖高速。
编辑

商业方面:龙湖星悦荟+天街、万科商业街、马桥万达广场、颛桥万达广场、安缦酒店、旗忠网球中心、旗忠高尔夫俱乐部等。
编辑

☑️☑️旭丽花园售楼处电话:400-8377-020☑️☑️
教育方面:复旦万科实验中学,交通大学附属闵行实验学校12年制(在建,24年招生),马桥强恕学校,元祥幼儿园等等!马桥私立学校:马桥文莱外国语小学、文莱中学;上海复旦万科实验中学、英国德威国际学校。(免责声明:新房不承诺学区,具体学区划分以政府公示为准)
编辑

2产品
项目本次在售的双拼别墅面积约289㎡,花园面积约200㎡;独栋别墅面积约285-297㎡,花园面积约242-324㎡,户型方正大气、所有功能区都有,且都带有室内停车库,另外赠送的大花园,都是日常新房少有的。
编辑

☑️☑️旭丽花园售楼处电话:400-8377-020☑️☑️
【双拼】:产证面积289.7㎡ ,赠送花园200.3㎡,一房一价,房型为4房3厅4卫1室内车库。
编辑

编辑

☑️☑️旭丽花园售楼处电话:400-8377-020☑️☑️
【独栋】:产证面积456㎡左右,总价2700万左右,房型为5房3厅5卫2室内车库。
编辑

编辑

☑️☑️旭丽花园售楼处电话:400-8377-020☑️☑️
旭丽花园别墅高达约40%的绿化率,除了小区内部一个超大公共花园,小区内还有阿波罗广场,维纳涌泉,粼波丽池等景观,另外在小区各处遍布有十年参天树木,绿树成荫,环境非常漂亮。
编辑

编辑

☑️☑️旭丽花园售楼处电话:400-8377-020☑️☑️
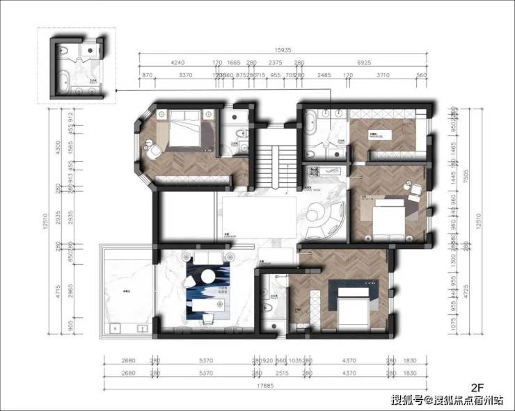
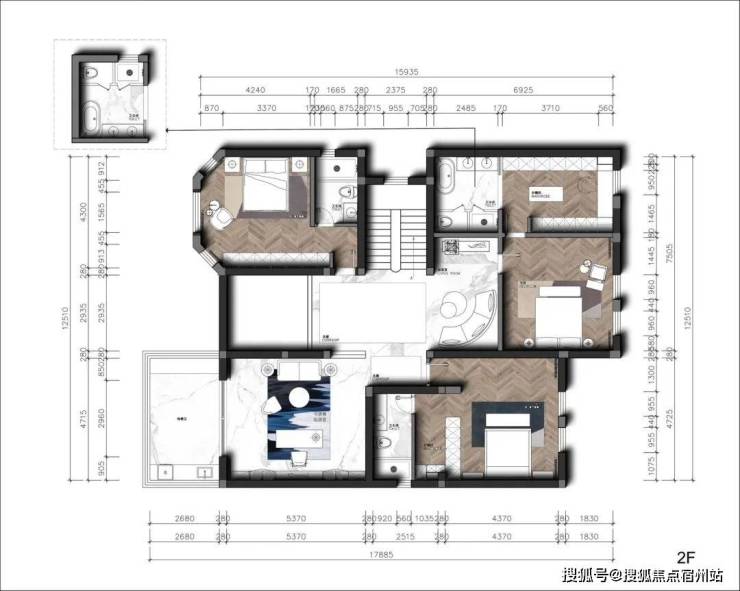
项目户型图
编辑

编辑

☑️☑️旭丽花园售楼处电话:400-8377-020☑️☑️
编辑

☑️☑️旭丽花园售楼处电话:400-8377-020☑️☑️
项目实景图
编辑

编辑

☑️☑️旭丽花园售楼处电话:400-8377-020☑️☑️
编辑

编辑

☑️☑️旭丽花园售楼处电话:400-8377-020☑️☑️
「旭丽花园」
(别名:维纳阳光)
建面约289㎡~456㎡双拼及大独栋
现房销售 即买即住
总价约:1500万~2000万

☑️☑️旭丽花园售楼处电话:400-8377-020☑️☑️

☑️☑️旭丽花园售楼处电话:400-8377-020☑️☑️
马桥将迎来无数个 “全球第一”:比如 世界上第一个人工智能广场、第一个人工智能餐饮街、第一个人工智能公园、第一个人工智能定制公交、第一个人工智能大港湾、第一个人工智能创业街、第一个人工智能虚拟现实婚礼殿堂等……

大量高新技术产业和各种示范区将陆续入驻,同时也会吸引大批上下游产业落户马桥(比如互联网、硬件、芯片、计算机、医疗等等),继而带动整个产业链的发展。高量级企业的汇聚必将为马桥注入极强的产业动能,带来大量的工作机会,吸引高层次、高能力的企业精英,助力马桥成为“科技版的迪士尼和缩小版的雄安新区”,实现腾飞!

☑️☑️旭丽花园售楼处电话:400-8377-020☑️☑️
☑️☑️旭丽花园售楼处电话:400-8377-020☑️☑️
旭丽花园(别名:维纳阳光)位于闵行马桥板块,北临天然河道,南临北松公路,西临华宁路,东临花王路; 项目项目占地16万㎡,建筑面积9.3万㎡,由300套双拼、独栋别墅组成。目前在售的是之前是开发商内部保留房源,16套双拼和2套小面积独栋产品。
【双拼】:产证面积289.7㎡ ,赠送花园200.3㎡,一房一价,房型为4房3厅4卫1室内车库。

☑️☑️旭丽花园售楼处电话:400-8377-020☑️☑️
【独栋】:产证面积456㎡左右,花园330-657㎡,总价1500万---2000万左右,房型为5房3厅5卫2室内车库。

☑️☑️旭丽花园售楼处电话:400-8377-020☑️☑️
交通配套:离项目最近的是5号线北桥路站(步行约2.1KM),可以乘闵行5路, 莘金专线等公交车直达项目;自驾的话,项目旁边就是沪闵公路,嘉闵高架,沪金高速,虹梅高架,申嘉湖高速等主干道,到上海各区域都是非常便捷的。

☑️☑️旭丽花园售楼处电话:400-8377-020☑️☑️
商业配套:项目旁边就有在建的10万㎡龙湖天琅(步行约2.0KM),马桥满天星生活广场(步行约2.0KM),北桥菜市场(步行约2.1KM),新安农副产品市场(步行约2.1KM),在建30万㎡龙湖天钜(步行约3.4KM),碧江广场(步行约4.4KM),万达广场(步行约5.5KM)等商业配套,吃喝玩乐购样样都有。

教育资源:
马桥公立学校:马桥强恕学校全校,闵行三中,闵行二中,上海交通大学附属第二中学,闵行四中;
马桥私立学校:马桥文莱外国语小学、文莱中学 ;上海复旦万科实验中学 、英国德威国际学校

☑️☑️旭丽花园售楼处电话:400-8377-020☑️☑️
☑️☑️旭丽花园售楼处电话:400-8377-020☑️☑️
医疗资源:项目附近就有马桥社区卫生服务中心(步行约1.7KM),复旦大学附属上海市第五人民医院(步行约4.4KM),闵行区肿瘤医院(步行约4.7KM)等医疗配套,为健康起到保驾护航的作用。

☑️☑️旭丽花园售楼处电话:400-8377-020☑️☑️