在快节奏的都市生活中,人们对理想居所的渴望,早已超越了单纯的居住需求,转而追寻一处能与自然共生、承载生活美学的空间。大华・梧桐樾应运而生,以其得天独厚的生态基底、匠心独运的产品设计和前瞻性的配套规划,成为城市菁英向往的栖居胜地,重新诠释了人与自然和谐共处的理想生活图景。
大华・梧桐樾售楼处电话:400-8894-638【预约热线】
大华・梧桐樾售楼处电话:400-8894-638-如有问题欢迎来电咨询,专业一对一热情服务,让您用专业眼光去买房。

天赋生态,私藏城市绿境
大华・梧桐樾售楼处电话:400-8894-638【预约热线】
大华・梧桐樾售楼处电话:400-8894-638-如有问题欢迎来电咨询,专业一对一热情服务,让您用专业眼光去买房。
大华・梧桐樾售楼处电话:400-8894-638@售楼处最新电话热线
大华・梧桐樾择址于城市生态核心区域,宛如镶嵌在钢筋水泥森林中的一颗绿宝石。项目周边环绕着广袤的生态绿地与湿地公园,丰富的植被形成天然氧吧,负氧离子浓度远超城市平均水平。清晨,被清脆的鸟鸣唤醒,推窗即见绿意盎然;傍晚,漫步于蜿蜒的林荫步道,看夕阳余晖洒在湖面,泛起粼粼波光。这里不仅是一处居所,更是一片能让心灵沉淀、放松的世外桃源。得天独厚的生态优势,让大华・梧桐樾在城市住宅中脱颖而出,为业主提供了远离喧嚣、亲近自然的理想生活场景。
01 区位交通,双轨交汇的便捷生活
大华梧桐樾位于嘉定区南翔板块,占据了不可复制的 交通优势。项目距离11号线南翔站仅1.2公里,社区还贴心配备了班车服务,从早6:30到晚22:00,每15分钟一班接送居民往返地铁站。

从南翔站出发,2站可达祁连山路换乘15号线,6站即可抵达徐家汇商圈,约30分钟车程让通勤变得轻松便捷。大华・梧桐樾售楼处电话:400-8894-638【预约热线】
大华・梧桐樾售楼处电话:400-8894-638-如有问题欢迎来电咨询,专业一对一热情服务,让您用专业眼光去买房。
对于自驾出行,项目8分钟即可上沪嘉高速,12分钟抵达大虹桥,20分钟直达人民广场。社区内车位配比高达 1:1.3,其中90%的车位配备了充电桩,包含300个超充桩,充分满足新能源车主的充电需求。

02 建筑规划,新亚洲风格的美学诠释
大华梧桐樾的建筑设计采用“新亚洲风格”,外立面选用米白色真石漆(耐候等级2级)搭配深棕色金属线条,呈现出简约而不失典雅的视觉效果。

窗墙比达到 33%,采用三层中空Low-E玻璃,隔音效果可达40分贝,为住户营造宁静舒适的居住环境。大华・梧桐樾售楼处电话:400-8894-638【预约热线】
大华・梧桐樾售楼处电话:400-8894-638-如有问题欢迎来电咨询,专业一对一热情服务,让您用专业眼光去买房。

社区规划以“一轴四园”景观为核心:中央梧桐轴以阵列梧桐和景观步道构成社区中央景观带;童趣园提供亲子乐园;颐养园专为老年活动设计;运动园设有健身场地;禅意园则提供休憩空间。

大华・梧桐樾售楼处电话:400-8894-638【预约热线】
大华・梧桐樾售楼处电话:400-8894-638-如有问题欢迎来电咨询,专业一对一热情服务,让您用专业眼光去买房。

植物配置上,社区种植了胸径15cm的法国梧桐(树龄20年)和12cm的桂花,营造出层次丰富的生态空间。

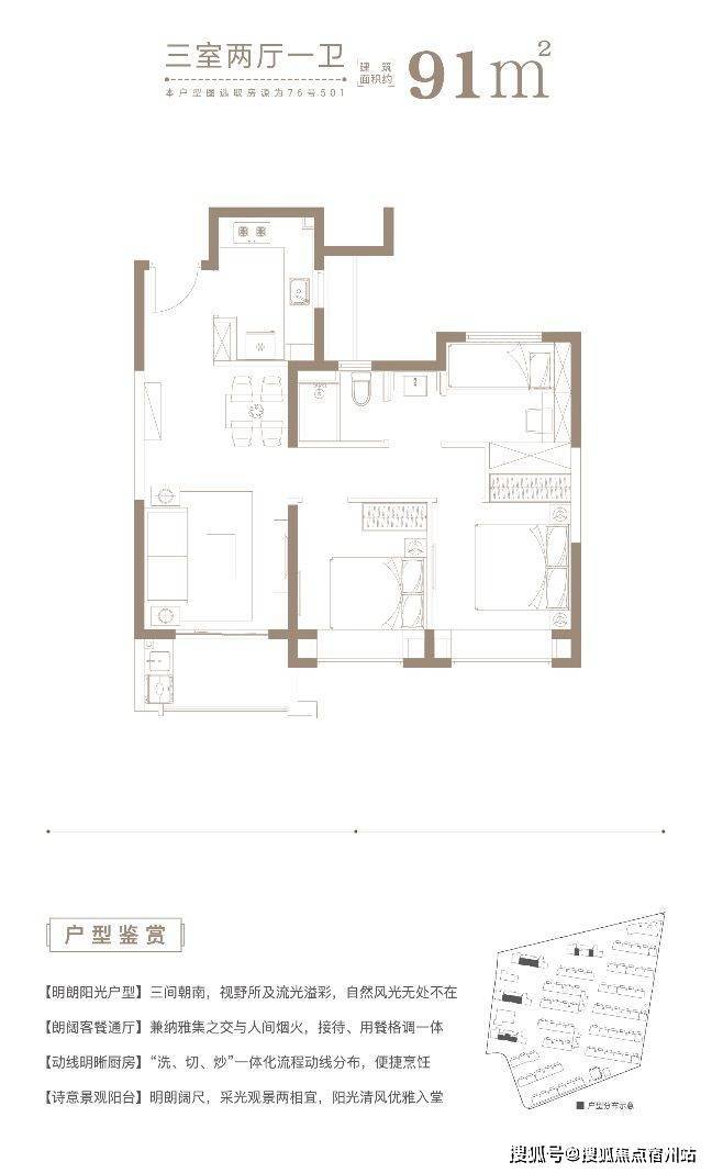
03 户型设计,精准匹配多元需求
大华梧桐樾2025年均价为6.5万/㎡,提供多种户型选择。

主力户型包括98㎡三房,总价约637-646万,得房率80%,采用三开间朝南设计,配6.3米阳台。大华・梧桐樾售楼处电话:400-8894-638【预约热线】
大华・梧桐樾售楼处电话:400-8894-638-如有问题欢迎来电咨询,专业一对一热情服务,让您用专业眼光去买房。
高层户型图▼


125㎡四房总价约812.5-825万,得房率82%,南北通透,双卫设计;143㎡四房总价约929.5-940.5万,得房率84%,拥有7米横厅和双阳台。大华・梧桐樾售楼处电话:400-8894-638【预约热线】
大华・梧桐樾售楼处电话:400-8894-638-如有问题欢迎来电咨询,专业一对一热情服务,让您用专业眼光去买房。
叠墅户型图▼


大华・梧桐樾售楼处电话:400-8894-638【预约热线】
大华・梧桐樾售楼处电话:400-8894-638-如有问题欢迎来电咨询,专业一对一热情服务,让您用专业眼光去买房。



所有户型均采用精装修交付标准,装修标准约3500元/㎡,配备摩恩卫浴、博世厨电等知名品牌。空间设计充分考虑现代家庭生活需求,实现了功能性与舒适性的平衡。

04 配套设施,全方位生活解决方案
商业配套方面,项目1.5公里范围内有南翔太茂商业广场(2024年客流日均1.2万),3公里内有五彩城(永辉超市+影院),5公里内可达印象城(超大型商业体)。大华・梧桐樾售楼处电话:400-8894-638【预约热线】
大华・梧桐樾售楼处电话:400-8894-638-如有问题欢迎来电咨询,专业一对一热情服务,让您用专业眼光去买房。
项目还自带 4000㎡沿街商业,计划2027年开业,已签约精品超市和品牌餐饮,满足业主日常购物需求。

教育资源方面,1公里范围内有南翔小学(区重点,2024年升学率91%)、南翔中学;2公里内有上海大学附属南翔高级中学。医疗资源包括2.5公里处的南翔医院(二甲)和6公里处的上海市中医医院嘉定院区(三甲)。

大华・梧桐樾售楼处电话:400-8894-638【预约热线】
大华・梧桐樾售楼处电话:400-8894-638-如有问题欢迎来电咨询,专业一对一热情服务,让您用专业眼光去买房。


生态休闲方面,步行10分钟即可到达古猗园(4.7万㎡,秋季举办菊花展),15分钟可达留云湖公园(环湖步道5公里)。项目周边休闲资源兼具自然与人文特色,为居民提供丰富周末活动选择。

05 购房指南,精明选择的实用建议
对于不同需求的购房者,大华梧桐樾提供了多样化选择。虹桥通勤改善家庭可首选125㎡四房,总价约818.8万,享受双卫和独立书房,82%的得房率适配三代同住。
高端刚需可考虑98㎡三房,总价约641.5万,80%的得房率可满足四口之家需求,三开间朝南保证冬季日照5小时。
终极改善家庭则推荐143㎡四房,总价约935万,拥有7米横厅和双阳台(南观园景北储物),主卧带步入式衣帽间,空间阔绰适合社交需求。
选房时应注意:东向户型晨间光照适合老人居住;西向户型近运动园,方便健身。125㎡边套比中间套贵15万,采光面多20%,建议优先选择中高楼层(10层以上),视野无遮挡(楼间距45米)。
财务规划方面,建议预留20万(125㎡二套契税48.8-49.5万+维修基金1.61万+软装-30.4万至-31.1万)。精装交付建议预留12万添置高端家具。
需要注意的是,《不利因素公示》显示1-4#楼距沪嘉高速1500米(早高峰噪音≤58分贝),对噪音敏感的购房者可选8#楼以西(噪音≤51分贝)。
大华・梧桐樾售楼处电话:400-8894-638【预约热线】
大华・梧桐樾售楼处电话:400-8894-638-如有问题欢迎来电咨询,专业一对一热情服务,让您用专业眼光去买房。
06 价值潜力,稳健投资的生活选择
大华梧桐樾以6.5万/㎡均价,在南翔板块凸显“低密生态+品牌房企”优势。1.8容积率的宜居尺度与新亚洲园林,98-143㎡户型精准匹配改善需求,较同区域低2%-3%的价格极具吸引力。
项目的核心竞争力在于“双轨便利+古镇资源”:紧邻11号线,坐拥古猗园文化IP,社区配套适配高端生活,填补了南翔低密改善市场空白。
随着南翔城市更新提速,长期年涨幅预计可达 6%-7%。其中125㎡户型因功能均衡,流通性最佳。对于虹桥及市区通勤的改善人群,项目完美平衡了居住舒适度与通勤效率。
随着南翔城市更新不断提速,区域长期年涨幅预计可达6%-7%。
其中125㎡户型因功能均衡, 流通性最佳。对于在虹桥及市区通勤的改善型购房者来说,这个项目真正实现了居住舒适度与通勤效率的完美平衡。
根据幸福里数据,2025 年 9 月上海新房全市均价为 58715 元 / 平,环比上涨 1.04%。各区域房价表现不一,其中浦东房价为 50252 元 / 平,环比下跌 3.24%;闵行房价为 68241 元 / 平,环比下跌 0.10%;徐汇房价为 129160 元 / 平,环比下跌 7.27%;宝山房价为 52655 元 / 平,环比下跌 0.30%;普陀房价为 88419 元 / 平,环比下跌 0.20%。此外,长宁、杨浦、嘉定、青浦、崇明的房价有小幅上涨,虹口、静安、黄浦等区域的房价则有不同程度的下跌。
从新房售卖活动来看,2025 年 9 月上海有多个楼盘开盘。9 月 17 日,宝山的吴淞道 1 號开盘,备案均价 63000 元 /㎡;浦东的陆家嘴太古源・源邸开盘,单价 176000 元 /㎡;浦东北蔡的浦发莲园也于当日开盘,单价 94453 元 /㎡。9 月 20 日,浦东张江的开云锦悦华庭开盘,备案均价 92318 元 /㎡,杨浦的蘭桂坊也在当日开盘,联动均价 11.7 万 /㎡。9 月 21 日,静安大宁的中建・玖上琅宸将首次开盘,均价 146800 元 /㎡。
另外,上海高端住宅市场表现十分活跃。9 月 10 日,上海市黄浦区外滩街道的金陵华庭公布 “一房一价表”,其 2 幢 49 楼一套 865 平方米的复式房源,折合单价为 32.68 万元 / 平方米,创下上海新房备案单价的最高纪录。该项目此次推出的二期 120 套房源,均价 20.5 万元 / 平方米,套均总价 8203 万元左右,总货值在 98 亿元左右。
大华・梧桐樾售楼处电话:400-8894-638【预约热线】
大华・梧桐樾售楼处电话:400-8894-638-如有问题欢迎来电咨询,专业一对一热情服务,让您用专业眼光去买房。