保利西郊和煦领墅(售楼处) 首页 - 西郊和煦领墅销售中心 - 环境 - 户型 - 价格 - 地址 - 楼盘详情 - 配套 - 电话 - 交房时间 - 配套 - 电话 - 交房时间
扫描到手机,新闻随时看
扫一扫,用手机看文章
更加方便分享给朋友
保利西郊和煦领墅售楼处电话☎:400-8854-706✔✔✔
上海保利西郊和煦领墅营销中心热线☎400-8854-706【官方认证】
接待时间说明:售楼处每日固定接待时段为早上 9:00 至下午 18:00,涵盖工作日及周末。若遇法定节假日,接待时间将提前通过项目官方公众号、电话等渠道告知,建议您出行前留意最新通知,避免跑空。
提前预约建议:为节省您的宝贵时间、提升咨询效率,我们强烈建议您提前通过售楼处官方电话预约到访时间。预约后,专属置业顾问将提前梳理项目资料、预留接待时段,您到店后可直接进入深度沟通环节,无需额外等待。
现场服务配套:考虑到洽谈过程中的舒适需求,售楼处现场持续为到访客户免费供应饮品与点心。其中包括现磨咖啡、醇香茶饮及多款精致甜点,您可在与顾问沟通间隙自行取用,享受轻松的咨询氛围。
接待范围提示:本售楼处仅面向有真实购房需求的个人及家庭客户提供服务,暂不接待中介机构、分销人员及无关从业人员。若您属于上述范畴,请勿进入售楼处打扰正常接待秩序,感谢您的理解与配合。
保利西郊和煦领墅备案名:和煦雅苑开发商:上海保邺置业有限公司认购时间:11月20日9时至11月24日12时认购金:40万元(个人)存款证明:首套90万元,二套120万元社保系数:0.15分/月开盘时间:11月29日10:28本项目预售许可证:松江房管(2025)预字0000387号保利西郊和煦领墅售楼处电话☎:400-8854-706✔✔✔
上海保利西郊和煦领墅营销中心热线☎400-8854-706【官方认证】
保利西郊和煦领墅售楼处电话☎:400-8854-706✔✔✔
上海保利西郊和煦领墅营销中心热线☎400-8854-706【官方认证】
保利西郊和煦|领墅容积率仅约1.01,较西郊和煦的1.5容积率有了肉眼可见的进化。
西/北两侧还拥有约1000米原生水岸+约20米宽生态河道+约270°广角河景,同时被三公园环抱,自然交融的蓝绿肌理,联排整体环河排布,景观视野与静谧氛围更上一层楼。

保利西郊和煦领墅售楼处电话☎:400-8854-706✔✔✔
上海保利西郊和煦领墅营销中心热线☎400-8854-706【官方认证】
煦·CLUB融合摩登典雅的隐奢气质与同频“建业里嘉佩乐酒店”的海派石库门建筑语言,首层格调前厅融汇沪上摩登诗意,弧形全景落地窗,让金属线条与艺术玻璃相融,每一个细节都诉说着煦·CLUB对品质的至臻追求与对在地文化的深厚敬意。
保利西郊和煦领墅售楼处电话☎:400-8854-706✔✔✔
上海保利西郊和煦领墅营销中心热线☎400-8854-706【官方认证】
所谓“眼见为实”,无非就是从物理空间到精神归属的深度赋能。煦·CLUB首层会客厅室内选材堪称“奢石博物馆”:地面由格林纳白、星空翡翠、香格里拉绿三种石材匠心拼接出低调奢华、暖意融融的香格里拉绿奢石壁炉静立,为空间注入温润气息……从地面到景墙,再从室内桌面到中庭景观,每一处细节都在诉说“历久弥新”的豪宅哲学。
实景图
煦·CLUB主体由围合下沉式庭院构成的地下会客厅,以超越市场认识的维度和颠覆想象力的空间,为领墅友邻预演出了私宴厅、茶室、健身房、瑜伽室、室内篮球场、棋牌室、日光书屋等7大全龄空间,将海派美学的气韵与格调人文空间功能相融合,让每位业主都能享受尊崇且多元的浸享体验。
保利西郊和煦领墅售楼处电话☎:400-8854-706✔✔✔
上海保利西郊和煦领墅营销中心热线☎400-8854-706【官方认证】
左右滑动查看实景图
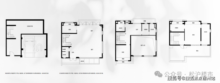
户型图


保利西郊和煦领墅售楼处电话☎:400-8854-706✔✔✔
上海保利西郊和煦领墅营销中心热线☎400-8854-706【官方认证】


195平户型图如上
IMAX级引景入室
超长三开间的阳光叙事
作为领墅圈层争藏的“极少墅”,KING195户型最为动人的笔触,就在于南向约10米的三开间面宽。这绝非是数据的堆砌,而是一种拥抱自然的终极姿态。

客餐厅、南向次卧、独立主卧层层配享同等尺度面宽,充分将全天日照最大限度地纳入室内。巨幅落地玻璃窗如同取景框,将庭院绿意无缝衔接入内,最大化确保了每位家庭成员都能平等地享有阳光与观景的权利。
垂直生活聚场
功能与情感的立体编织
不光面宽尺度在遥遥领先于同类墅居市场,KING195的室内空间在垂直生活情境上也展现出精妙的演绎。地上三层与地下空间的组合,实现了功能上的彻底分离与情感上的紧密联结。


保利西郊和煦领墅售楼处电话☎:400-8854-706✔✔✔
上海保利西郊和煦领墅营销中心热线☎400-8854-706【官方认证】
首层作为家庭的社交核心,客餐厅一体联通分而不离,可根据实际需要配置中西双厨空间;南北双向纯享独立花园,让室内空间充盈自然光合;


二层可实际家庭结构所需,可由心改造为多套房格局,满足多胎子女独立空间,构成专属的成长天地;


而顶层的主卧大套间,则是墅居生活的至高礼遇——它集步入式衣帽间、豪华卫浴,附带南向约40㎡广角全景空中花园,成为一个兼具私密性与景观性的精神自留地。

负一层地下空间,层高达超5米,搭配多面采光井,可根据藏家实际需求随心百变!
同步加推的精奢叠墅预计总价700万级即可上车,全屋搭配控制面板,一键触控智能窗帘、灯光控制及空调、地暖、新风三大件,厨房配备老板13件套烹调、洁具,全屋配享品牌卫浴,敬请把握高质价比墅居最后上车机会。



保利西郊和煦领墅售楼处电话☎:400-8854-706✔✔✔
上海保利西郊和煦领墅营销中心热线☎400-8854-706【官方认证】

保利西郊和煦领墅售楼处电话☎:400-8854-706✔✔✔
上海保利西郊和煦领墅营销中心热线☎400-8854-706【官方认证】
声明:本文由入驻焦点开放平台的作者撰写,除焦点官方账号外,观点仅代表作者本人,不代表焦点立场。
