国贸·海上原墅-售楼处首页-国贸·海上原墅-售楼处电话-开盘时间-国贸·海上原墅房价-户型-楼盘详情-周边环境-户型-价格-地址-楼盘详情-售楼处电话

搜狐焦点宿州站 2025-10-01 10:58:11
用手机看
扫描到手机,新闻随时看

扫一扫,用手机看文章
更加方便分享给朋友

国贸海上原墅售楼处电话:400-8873-708 上海松江广富林国贸海上原墅 售楼处电话☎:400-8873-708【售楼处预约热线】(一对一热情服务) 楼盘项目全面介绍,本电话为开发商提供线上售楼电话400-8862-334,楼盘项目全面介绍(包含楼盘简介,房价,价格,

国贸海上原墅售楼处电话:400-8873-708

上海松江广富林国贸海上原墅

售楼处电话☎:400-8873-708【售楼处预约热线】(一对一热情服务)

楼盘项目全面介绍,本电话为开发商提供线上售楼电话400-8862-334,楼盘项目全面介绍(包含楼盘简介,房价,价格,楼盘地址,户型图,交通规划,备案价,项目配套,楼盘详情,售楼处电话,最新消息,最新详情,周边配套,最新进展等详情咨询)

松江·新城低密度墅居

「国贸·海上原墅」四批次待购中!

加推141套约105-150㎡洋房/叠墅

9月27日已过会均价54667元/m²!

售楼处线上提前预约中!

编辑

2024年5月28日上海第二批次土拍中,国贸&松江交投以26.98亿元摘得该地块,成交楼面价28000元/㎡,溢价率0%。

编辑

项目四至东至辰晓路,西至龙源路,南至广轩路,北至骏安路。

编辑

项目容积率1.2,占地面积约8.03万方,计容面积约9.64万方;保障房占比5%,类型为公共租赁住房;中小套户型不得低于总住宅建筑面积的30%,全装修比例50%!指导价6.3万/㎡,装标要求不低于2500元/㎡!

编辑

从设计方案来看,该项目由9栋7-8F多层住宅、9栋4F多层住宅、12栋3F低层住宅、1栋8F保障房以及若干社区配套用房组成,共计规划778户(含保障房)。项目将推出洋房、叠墅、联排三种产品,其中洋房约381套,叠墅约132套,联排约162套,户型图即将发布!

编辑

最新消息!松江区广富林街道,国贸&松江交投广富林项目——【国贸海上原墅】两开两罄,三批次加推在即!

4月18日示范区开放,掀起参访热潮。

5月14日认筹开启,登顶松江,成为松江新城首个触发积分楼盘。

5月28日首开大捷,再度刷新松江顶流热度。

7月9日,项目二批次载誉开盘,推售房源2小时售罄!

作为2025年上海五大新城中唯一连续2次触发积分的项目,【国贸海上原墅】再度以瞩目上海的热度斩获二批次开盘大捷!炙热的目光在此交汇,倾赏的不只是墅居,更是一个时代的栖居理想。

作为广富林板块的“低密墅区标杆”,以产品力的全维进阶,重新定义松江改善人居天花板!

编辑

项目毗邻广富林文化遗址与G60科创走廊,既承接广富林历史文脉的纯粹基因,又融入松江产城融合的现代活力,周边松江印象城、松江大学城等优质文教氤氲,产业、商业、交通、生态、教育等城市资源汇聚,以根深叶茂的松江人文书写崭新的当代故事。

编辑

对话广富林4000年文明,项目提炼传统建筑形制,以艺术手法创作“新江南学院派”,向世界展现东方美学的昂扬姿态,汲取陆润玉“富林十景”的灵感来源,建构丰富景观园林和生活场景,重新定义“世外桃源、隐谧院落”的生活方式。

编辑

国贸地产的每一次落笔与营造,皆是为时代翘楚兑现“一生之宅”的美好承诺。

编辑

择址松江正核、广富林水岸,国贸地产携手松江交投带来约 1.2 容积率人文墅区,

提取《富林十景》的文化符号,以海上原墅造诣当代东方。

编辑

功法造极 对望江南屋宇:汲取古典建筑风格,运用艺术技巧打造“新江南学派建筑”,既与广富林文化精神相呼应,又向全球展示东方美学的自信风采

编辑

奢石定制 对望传统美学:精选自然石材,提炼出山门的精髓,融合传统色彩的精粹,展现山的青绿、水的绀碧、别墅的玄黑、绢的淡金,营造出富有文化气息的隐贵风格。

编辑

园中造园 对望富林十景:将《富林十景》中的山、水、茶、酒、舟、市等元素,整合进现代设计和项目场景构建。从入门的家门、流水的园林,到下沉的庭院、日常的会所,层层深入展现江南隐秘天堂。

编辑

新江南院墅 对望人居信仰:致力于深入研究产品,不断挑战设计的极限,秉承“洋房平墅化、叠院独立化、联排宽适化”的理念,打造代表城市文化的标志性作品。

洋房|平墅化空间:三叶草/四叶草户型、可分可合厅房、半开放式餐厨动线满足生活中亲密与独立关系的一体两面

编辑

叠院|独立化风景:独立电梯入户、极致窗墙比、扩大观景面以互不干扰的居住感受营造舒适生活状态

编辑

联排|宽适化布局:私密访巷动线、亲水庭院打造、独立院落区隔为每一户铺陈独属的诗酒茶亭

编辑

在上海楼市持续调整的背景下,项目逆势而上,三批次于8月21日开启认购,最终以超130%认购率触发积分制。至此,【国贸海上原墅】成为2025年上海罕见三触积分红盘!

9月7日,【国贸海上原墅】三批次盛大开盘,2个小时销售总金额超14亿,再次以璀璨高光领耀松江的独立行情。

本批次房源中,叠墅开盘售罄,洋房、联排少量房源在售!

编辑

最新消息!松江·新城「国贸·海上原墅」四批次加推141套约105-150㎡洋房/叠墅;9月27日已过会均价54667元/m²!售楼处线上火热预约中!

编辑

上海松江广富林国贸海上原墅

售楼处电话☎:400-8873-708【售楼处预约热线】(一对一热情服务)

楼盘项目全面介绍,本电话为开发商提供线上售楼电话400-8862-334,楼盘项目全面介绍(包含楼盘简介,房价,价格,楼盘地址,户型图,交通规划,备案价,项目配套,楼盘详情,售楼处电话,最新消息,最新详情,周边配套,最新进展等详情咨询)

即将入市户型图如下(仅供参考)

编辑

洋房平墅化:建面约108-124㎡精工洋房,以建面约124㎡四室洋房为例,超大餐客巨厅、独立主卧套房、独立书房,户型布局媲美平层别墅。可分可合厅房、全卧飘窗巧思,延伸日常生活的想象。

编辑

编辑

编辑

叠院独立化:建面约141-150㎡上下双叠,有别于市面上的6层叠墅,4层上下双叠居住舒适度更高,独立电梯入户、极致窗墙比设计,更加匹配世家的尊崇身份。

编辑

建面约150㎡下叠,一楼餐客横厅连通独立前庭,局部挑高设计,铺陈生活的礼序;二楼独立套房设计,三大卧室空间,三代同堂也能互不干扰。地下室约5.65米挑高,收藏时光馈赠的美好记忆。

编辑

建面约141㎡上叠,餐客横厅设计,会朋宴客尽显风范;上层空间连通露台,可以瑜伽健身、莳花弄草,丰盈生活的厚度;多重卧室设计,功能性更强、更实用。

编辑

编辑

编辑

编辑

编辑

编辑

编辑

编辑

编辑

上海松江广富林国贸海上原墅

售楼处电话☎:400-8873-708【售楼处预约热线】(一对一热情服务)

楼盘项目全面介绍,本电话为开发商提供线上售楼电话400-8862-334,楼盘项目全面介绍(包含楼盘简介,房价,价格,楼盘地址,户型图,交通规划,备案价,项目配套,楼盘详情,售楼处电话,最新消息,最新详情,周边配套,最新进展等详情咨询)

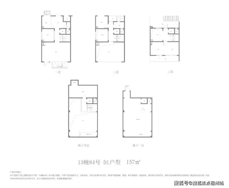
联排宽适化:建面约157-201㎡联排别墅,私密访巷动线、亲水庭院打造、独立院落区隔,为每一户铺陈独属的诗酒茶亭。庭、台、院、落,书写别墅有天有地的尊崇人生。

编辑

一楼客厅挑高设计,独立餐厅私享中庭花园景观,尽显大人物的显赫地位。

三楼主卧总统套房设计,连通超大露台,观云赏雨,摘星揽月,拉宽生活的想象空间。

地下室5.65米挑高,可根据业主偏好,规划设计桌球室、健身房、家庭影院等不同功能区,丰盈储藏空间,满足每一份收藏爱好。

编辑

编辑

所谓“无会所,不豪宅”。高阶会所是圈层进阶的社交场,更是分享志趣和品味的绝佳之处。然而,别说外环外新房,即使是大部分市区项目,也鲜有带高阶会所的;极个别有会所的项目,总价也在3000万级,上车门槛高不可攀。

国贸海上原墅作为广富林溯源之作,打造诗意会所空间,包含泳池、咖啡厅、私宴厅、下沉庭院、健身房等功能。并且引入黑松、山石、景墙、草坪等人文自然资源,呈现一处充满国风艺术感的社交场!

编辑

编辑

地块所在的广富林板块,本身的生态资源非常优秀!项目西侧一路之隔就是广富林文化遗址、广富林郊野公园、直线距离约1km+是辰山植物园,北面直线距离约3km是佘山国家森林公园、月湖雕塑公园等。

编辑

广富林公园 图源:上海松江

商业方面,项目周边涵盖了约60万方(数据来源:上海松江)综合性商业集群——松江万达、开元地中海、五龙广场、马利来广场......还有地标性商业松江印象城一期!更有印象城二期(待建成),一期+二期总商业体量将高达约40万方!

编辑

松江印象城一期 图源:上海松江

广富林的教育资源也相当丰富。项目周边落座了松江大学城、上海外国语大学松江外国语学校、上海外国语大学附属外国语学校松江云间中学、上海实验学校松江新城分校(规划中),还有华东政法附属学校、上师大附属学校、东华大学附属学校等丰富的教育资源。(注:本资料中学校信息仅作介绍不做入学承诺,项目对口学校最终以教育部门划分为准。)

编辑

松江新城 图源:航拍上海·松江篇

医疗方面,附近有上海市第一人民医院南院,为三甲综合性医院,以及养志康复医院、

编辑

第一人民医院南院 图源:上海松江

生态休闲:项目西侧一路之隔就是广富林文化遗址、广富林郊野公园、直线距离约1km+是辰山植物园,北面直线距离约3km是佘山国家森林公园、月湖雕塑公园等。

编辑

编辑

松江「国贸·海上原墅」加推约105-150㎡洋房/叠墅!均价54667元/m²!

上海松江广富林国贸海上原墅

售楼处电话☎:400-8873-708【售楼处预约热线】(一对一热情服务)

楼盘项目全面介绍,本电话为开发商提供线上售楼电话400-8862-334,楼盘项目全面介绍(包含楼盘简介,房价,价格,楼盘地址,户型图,交通规划,备案价,项目配套,楼盘详情,售楼处电话,最新消息,最新详情,周边配套,最新进展等详情咨询)

声明:本文由入驻焦点开放平台的作者撰写,除焦点官方账号外,观点仅代表作者本人,不代表焦点立场。