☑️☑️联仲都悦汇售楼处电话:400-8377-020☑️☑️🌟联仲都悦汇 三期联排别墅(住宅)
正旗忠·AI小镇旁 甄稀联列
📌:上海市闵行区中秀路101号
☑️☑️联仲都悦汇售楼处电话:400-8377-020☑️☑️

☑️☑️联仲都悦汇售楼处电话:400-8377-020☑️☑️
【开 发 商】联仲置业
【所属板块】闵行区旗忠板块
【建面】约262-305平
【容 积 率】1.0
【绿化率】35%
【物业公司】联仲物业
【物业费】8元/㎡
【产品类型】联排别墅
【预计交房时间】2025年12月
🍃在上海仅存的18块容积率低于0.2的独栋别墅用地中,有17块位于旗忠
🏠绿城玫瑰园:亚洲10大豪宅之一,0.18超低容积率,70%容积率,售价最高3亿元/套
🏠中星红庐:0.17超低容积率,70%绿化率,3千万级别独栋别墅
🏠御涛园:0.17超低容积率独栋别墅区,千万级别豪宅
⭐️联美地产集团
☑️☑️联仲都悦汇售楼处电话:400-8377-020☑️☑️
联美集团创立于1997年,是一家以实业为基础的大型集团性企业,涉及包括能源、地产、科创、产融在内的多个行业,并有多家A股上市企业;其中联美地产在虹桥核心区拥有约140万方商业融合地标--首位SHOWAY,以及36万方的精品商业中心--虹桥汇。
⭐️仲盛集团
自1989年7月进入房地产市场后,仲盛集团精耕古北,开发了一大批地产项目,包括古北新区的名都城、名都古北、翡翠名都、西郊花园别墅等,同时拥有大型丰富的开发商业中心的经验,如莘庄大型商业中心仲盛商业广场等。
项目距离嘉闵高架元江路出口约3公里,毗邻G15、S32等快速主动脉,速达大虹桥,畅享繁华都会生活节点。
☑️☑️联仲都悦汇售楼处电话:400-8377-020☑️☑️

☑️☑️联仲都悦汇售楼处电话:400-8377-020☑️☑️
🎾旗忠网球中心:占地约508亩,自2005年起承办上海ATP1000大师赛,天王费德勒数次在这里捧起奖杯
⛳️旗忠高尔夫球场:18洞各具特色,弧度优雅的果岭让挥杆倍增乐趣,各界沪上名流经常选择这里一展风姿
🏨养云安缦酒店:投资33个亿打造的中国四大安缦酒店之养云安缦,是除北京颐和园安缦、杭州法云安缦、丽江大研安缦之外,中国第四家顶级安缦酒店,往来无白丁,下榻皆贵胄,如星月映空一般,为板块赋予高贵夺目的气质
🏫项目周边拥有马桥文来外国语小学、400年历史的德威英国国际学校、闵行首个12年制的学校——上海交大附属闵行实验学校将提供从小学到高中毕业、全流程最领先的国际教育环境、同时还有两家知名的国际教育学府也在洽谈之中。
☑️☑️联仲都悦汇售楼处电话:400-8377-020☑️☑️

☑️☑️联仲都悦汇售楼处电话:400-8377-020☑️☑️
🌳拥有得天独厚的自然景观资源,有占地258亩的昆阳湖,有占地1800亩的马桥森林公园(规划中),超过约70%的绿化景观资源覆盖,空气中负氧离子含量约为市区1.5倍。 这里,奢藏着国际上海难觅的宁静洞天。
项目自带约10万方商业,为旗忠唯一的综合性商业配套,建立5-10分钟步行一站式生活圈,打造集高端生活、户外运动、商务办公为一体的高端商业中心,其多元化的业态结构,塑造国际社区生活方式,共创上海南部活力之城。
🛍️项目距离马桥万达广场约2.9公里,约4公里可达龙湖闵行星悦荟、满天星生活广场等超大体量商业综合体,感受世界潮流脉搏,尽享吃、喝、玩、乐、购缤纷业态。
🤖AI人工智能试验区落户旗忠所在马桥,面积约15.7平方公里,以人工智能云为载体,打造未来城市样本。未来,在科研办公、产业智造、品质居住、休闲空间的强力吸引下,这里将集聚“四智”产业、汇聚顶尖人才,一个布局合理、功能完善、安全绿色的现代化智能产业园区破壳而出。
🏠建筑延续现代法式风格,外立面全部采用干挂石材,选用更耐用、更美观的花岗岩,首次配备三玻两腔的门窗,更大程度的提升隔音、保温、隔热的效果。
☑️☑️联仲都悦汇售楼处电话:400-8377-020☑️☑️

☑️☑️联仲都悦汇售楼处电话:400-8377-020☑️☑️
🏠入口广场从139m²增加到580m²,景观绿化结合艺术的氛围打造了“U”型游园路径,九重秘境花园串联全区,游览花园、中心绿化带绿地率均明显提升,品质感翻倍。

☑️☑️联仲都悦汇售楼处电话:400-8377-020☑️☑️


☑️☑️联仲都悦汇售楼处电话:400-8377-020☑️☑️
🏠光是万物之源,联仲都悦汇“光合之墅”从充分利用光的角度出发,将传统“地下室”变为“光的主场”,打造地下室全时段采光,同时挑高6米,未来它可以是与生活对谈的私属茶室,也可是挥洒汗水的阳光健身房,亦或是孩子们梦想的萌发地。同时地下室直接入户,步步皆是温暖的仪式感。
🏠地上三层最多可以做五个房间,而且全部朝南,其中三个房间为套房设计。同时一楼餐客连厅打造约10.7米的巨幕面宽,无界延伸空间尺度,容纳大家族的闲情逸趣,既是谈笑风生的会客厅、亲朋好友欢聚的私家派对,也能做孩子肆意驰骋的童趣乐园。
最新消息,送100w装修!闵行·商墅 联仲·都悦汇 约310-411㎡法式商
墅!总价约1420万~1800
闵行·旗忠别墅富人区
【联仲·都悦汇】
建面310~411㎡商业联排别墅
法式干挂 地上三层 地下一层
带南北双花园90-300㎡
总价约:1420-1800万
实景现房 不限购 通燃气

☑️☑️联仲都悦汇售楼处电话:400-8377-020☑️☑️

☑️☑️联仲都悦汇售楼处电话:400-8377-020☑️☑️
对项目有兴趣的朋友,欢迎扫描下方二维码,
进入全网唯一官方预约通道
扫码报名或文末点击阅读原文
☑️☑️联仲都悦汇售楼处电话:400-8377-020☑️☑️
扫码预约看房请保持手机畅通
等待官方销售团队与您联系
感谢配合!
01.项目基本信息
【开发商】:上海联仲置业有限公司
【物业】:上海仲量联行物业管理公司
【容积率】:1.0
【绿化率】:35%
【车位比】:1:2.1
【物业费】:8元/㎡/月
【本次开盘】:14套
【物业类型】:商业联排别墅
【交付标准】:毛坯
【拿地时间】:2014年8月
【交房时间】:2023年6月
☑️☑️联仲都悦汇售楼处电话:400-8377-020☑️☑️

☑️☑️联仲都悦汇售楼处电话:400-8377-020☑️☑️
在售户型:建面约310-410平米,地上三层地下一层
(地上:一层层高3.6米/二层层高3.4米/三层层高3.4米/地下层高5.4米)
总价:约1400-1800万️
单价:约5万/平米
小区整体商业:10万方(在建)南北双花园90-300平
水电:商水&商电,电1.3元/度,水6元/吨
产权车位:约30万左右

☑️☑️联仲都悦汇售楼处电话:400-8377-020☑️☑️
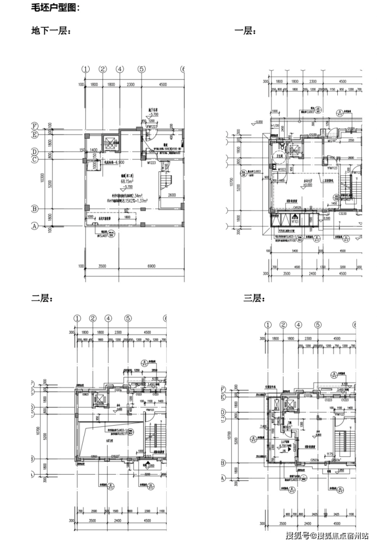
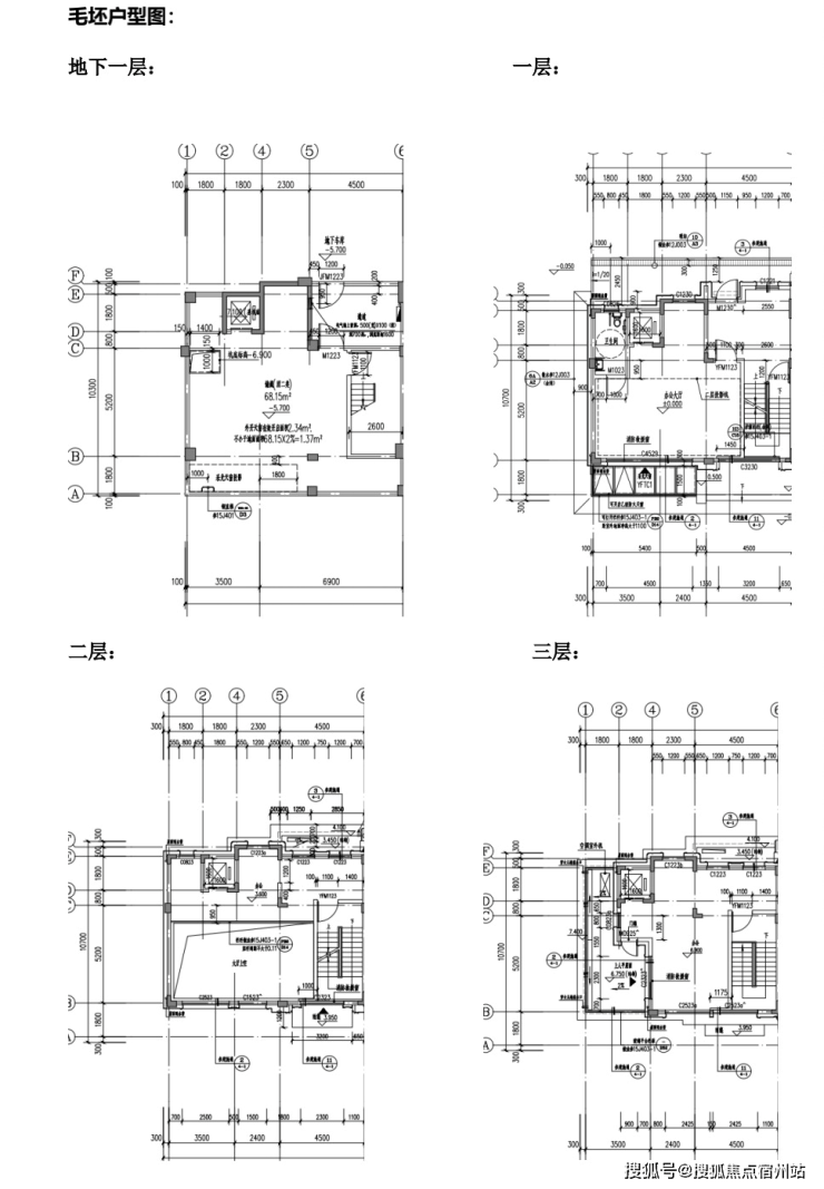
02.户型图及样板间照户
(特殊说明:户型朝向-上南下北)
☑️☑️联仲都悦汇售楼处电话:400-8377-020☑️☑️
约10.4米大面宽,面积达到55平
送电梯,北进门,南花园,超大地下室
客厅7米落地窗,采光明亮,尽显大气
约310平户型图▼

☑️☑️联仲都悦汇售楼处电话:400-8377-020☑️☑️
约378~420平户型图▼

☑️☑️联仲都悦汇售楼处电话:400-8377-020☑️☑️
约407~441平户型图▼

☑️☑️联仲都悦汇售楼处电话:400-8377-020☑️☑️
样板间效果图如下:

☑️☑️联仲都悦汇售楼处电话:400-8377-020☑️☑️

☑️☑️联仲都悦汇售楼处电话:400-8377-020☑️☑️
☑️☑️联仲都悦汇售楼处电话:400-8377-020☑️☑️


☑️☑️联仲都悦汇售楼处电话:400-8377-020☑️☑️



☑️☑️联仲都悦汇售楼处电话:400-8377-020☑️☑️


☑️☑️联仲都悦汇售楼处电话:400-8377-020☑️☑️

☑️☑️联仲都悦汇售楼处电话:400-8377-020☑️☑️
03.项目区位配套
【联仲·都悦汇】位于闵行马桥旗忠别墅区,旗忠别墅区是上海老牌的富人区,与松江佘山、浦东东郊齐称为沪上三大国际别墅区。上海仅存少量的容积率0.18以下超低密度居住用地中,大多数在马桥旗忠别墅区。

板块以低容积率、生态自然环境和高端国际品牌配置,2010年被列为上海第二批大型居住社区之一。总建面约33万方城市综合体联仲都悦汇位于旗忠板块正核心,紧临网球中心,超10万方市政绿化所环绕。

☑️☑️联仲都悦汇售楼处电话:400-8377-020☑️☑️
【联仲都悦汇】同样是低密度别墅区里的一员,背靠绿城玫瑰园,容积率低至1.0。项目贯穿了3条自然水系,分为ABCD四个地块,其中ABC为商住办综合地块,自带商业办公。

☑️☑️联仲都悦汇售楼处电话:400-8377-020☑️☑️
交通配套方面:项目距离嘉闵高架元江路出口3公里,毗邻G15、S32等快速主动脉,30分钟大虹桥,50分钟抵达浦东机场,快捷畅达全城。

地铁:5号线华宁路站,剑川路站
公交:马莘专线:联工路站,闵行19路:银春路华宁路站
高速:嘉闵高架、沪金高速、虹梅南路高架 沪昆高速、申嘉湖高速、沪闵高架
高铁:距离上海虹桥枢纽站(高铁、机场)约20km
未来规划:嘉闵线延伸段
☑️☑️联仲都悦汇售楼处电话:400-8377-020☑️☑️
(以上数据来源于高德地图)

商业配套方面:项目自带10万方商业,为旗忠唯一的综合性商业配套,其多元化的业态结构,结合旗忠独有的资源,必将带来旗忠全新生活方式。

☑️☑️联仲都悦汇售楼处电话:400-8377-020☑️☑️


生态资源方面:项目周边有马桥森林公园、旗忠高尔夫球场、旗忠网球中心、韩湘水博园、养云安缦酒店等。

☑️☑️联仲都悦汇售楼处电话:400-8377-020☑️☑️
教育资源方面:周边有复旦万科实验学校,德威英国国际学校、斯代文森国际高中、上海美高学校。 幼儿园:元祥幼儿园、富杰幼儿园启英幼儿园, 大学:上海交通大学、华东师范大学



☑️☑️联仲都悦汇售楼处电话:400-8377-020☑️☑️

☑️☑️联仲都悦汇售楼处电话:400-8377-020☑️☑️
☑️☑️联仲都悦汇售楼处电话:400-8377-020☑️☑️
闵行·旗忠别墅富人区
【联仲·都悦汇】
建面310~411㎡商业联排别墅
法式干挂 地上三层 地下一层
带南北双花园90-300㎡
总价约:1420-1800万
实景现房 不限购 通燃气