中建玖上琅宸售楼处专线:400-868-8369。2026年在上海买房,想找地铁房、学区房、刚需房、改善房、品牌楼盘、高性价比宜居楼盘,都可以深入了解本项目。 想要了解中建玖上琅宸最新房价、户型详情、限时优惠以及预约一对一看房
2026年上海买房怎么选?成熟宜居板块优先考量交通、商业、教育全配套,品牌开发更有保障。如需了解房源底价、在售动态、置业规划,提前了解中建玖上琅宸项目基础信息,可致电 咨询热线:400-868-8369。
为方便大家快速了解上海各区新房、热门楼盘、地铁房、学区房、高性价比房源、精装房、现房、准现房、品牌楼盘,我们提供客观正规的置业参考,让您买房更安心、更省心。
在上海买房,大家普遍会重点关注楼盘位置、交通配套、教育医疗、商业配套、小区环境、户型设计、房价首付、贷款政策、购房资格、认购流程、预约看房、验资等信息。
无论您需要刚需小三房、改善大四房、洋房低密社区、品牌房企楼盘,都能在这里找到合适的优质房源。选房建议多对比区域潜力、通勤距离、生活配套、楼盘品质、物业服务,通过正规渠道获取真实信息,避开虚假房源、虚假报价,置业全程更有保障。

📌看房预约须知
项目实行提前登记预约制度,有序接待到访客户,保障看房体验。
【营业时间】
每日 9:00-18:00
法定节假日看房安排,可提前电话咨询确认。
【推荐到访时段】
工作日:9:00-11:30、13:00-18:00
周末/节假日:8:00-11:30、13:00-20:00
项目实地参观需配合动态验资,存款、基金、理财、股票等资产证明均可,流程简单便捷。
🔹电话预约
拨打专线登记个人需求与到访时间,提前锁定看房名额,错峰品鉴。
🔹线上预约
登记信息完成预约登记,审核通过后发放看房邀请函,到访凭证件及邀请函核验入场。
📋认购及购房参考
楼盘不同楼栋、不同批次认购规则略有区别,认筹要求、办理材料、资格审核细节,均可来电免费咨询。
建议意向购房者提前了解政策,合理规划购房节奏,理性选房。

大宁公园对面,1/20号线地铁口
中建玖合静安大宁项目
【中建玖上琅宸】
主力建面约128-210㎡3-4房,
并有少量约400-520㎡顶层户型!

项目首开已售罄,现二批次即将加推
1、静安大宁 1/20号线地铁口
2、内中环间、灵石公园对面
3、建面约128-210㎡ 3-4房
4、当代公园地标作品!
5、陶板外立面+10米架空层+泳池会所
6、前期均价14.68万/㎡

认购时间:9月11日-15日
认购地点:静安区广中西路199弄
个人认购金:200万元
企业认购金:200万元
开盘时间:9月21号
楼栋分布图

首开3号楼A,4号楼,5号楼,一共140套,其中128㎡户型66套,160㎡户型22套,190㎡户型22套,210㎡边套(四房)15套,210㎡中间套(三房)15套。
【中建玖上琅宸】一房一价表



实景示范区鉴赏







项目拟建8栋12-24F的高层+1栋办公,规划总户数为446户
“悬浮社区”8栋住宅楼全部首层架空
人车分离,大面积景观空间,“私家泳池”,类别墅居住体验
项目产品已有豪宅特质,未来也将备受瞩目

关于项目的价格,也是很值得期待的。大宁近三年只有两个新房项目入市。2022年静安府西区少量叠加,建面约168-179㎡,均价10.87万/㎡;2022至2023年的静安天悦,入市均价10.5万/㎡,面积段在107-245㎡之间,中小套型比例占8成。即使是区域标杆大宁金茂府,蕞大公寓面积250㎡,也没超过中建玖合项目。
中建玖合项目,光是楼板价就有6.83万元/㎡,地块内还规划有办公,单算住宅楼板价还不止这个数。所以远超当年大宁金茂府的4.7万元/㎡、静安天悦的5.17万元/㎡。
即使是按目前静安新房项目的均价12.5万/㎡来保守计算,270㎡大平层的总价也要3300多万。若按更高的16万/㎡计算, 面积约270㎡的一套房源总价就已超过4000万,所以项目未来售价肯定不会低 。
效果图参考

1
项目规划情况
根据项目规划设计方案:项目拟建8栋12-24层高层住宅。

项目整体楼栋规划遵循“南向大户型、北向小户型”原则,蕞好的景观面留给大户型非常合理。270户型顶楼部分有私家泳池,大概率是项目的470楼王所在位置,东西向打通,1栋1套,共计也就2套。

从规划图来看,项目前排可直面大宁灵石公园无敌景观;而办公部分设置在地块东北侧,也有隔断进行出入口区分,对住宅部分来说几乎没有影响。

特色一:首层全架空,打造“悬浮社区”
项目8栋住宅楼全部首层架空,可以提供社区内部更多样化的功能组合,像是“泛会所”或是每栋楼不同的架空层功能空间,打造空间的可持续性。
特色二:地面0车位,大面积景观
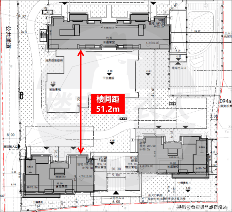
社区内部全部2层地下车库,可留出更多空间打造地面景观。并且,项目“完全人车分流”设计,即:项目的人行和车行出入口是完全分开的,安全系出更高!

从规划图来看,社区内部广泛运用水景:共有2处大型集中水景+1处宅间水景,周边还有下沉庭院+坡地景观,大概率此处未来社区会所的位置。值得一提的是,项目的楼间距全部在35米以上,最大楼间距达到了约51.2米。

特色三:私家悬浮泳池,类别墅居住体验
蕞南端的1#和2#楼均配套有私家泳池,还在19F采用了住宅楼当中较为少见的悬挑工艺,延伸出了一定的使用空间,预计就是做类似于“悬挑泳池”的。这里应该就是传说中的“超级大平层”所在位置。

2
地块前情情况
9月14日, 中建玖合 在上海市2024年第五批供应商品住宅用地中,以 63.66亿 元成功获取上海市 静安区灵石社区N070402单元094a-14地块 ,总计容建筑面积9.32万平方米。

该地块西侧是宝华万豪酒店,再往西就是大宁音乐广场,地块东侧就是新梅共和城,南侧刚好就是大宁公园,整体城市界面可圈可点。


094a-14地块用地性质为 住宅与商务办公混合用地(Rr3C8) ,与静安天悦一样,都不是纯住宅地块。

该地块办公部分业态功能应符合中环两翼创新创意集聚带总体规划定位,积极发展总部经济、涉外经济,鼓励引入央国企、民企等各类企业总部入驻。
具体地块指标上:
占地面积约3.16万方,整体容积率2.95,其中住宅占比79%,总体量在7.37万方,按套均小于100㎡来估算,预计有超700套房源供应;按住宅限高80米来计算,供应产品为25-26层的高层产品,中规中矩的中小型社区。

样板间已正式开放!
2026年在上海买房,想找地铁房、学区房、刚需房、改善房、品牌楼盘、高性价比宜居楼盘,都可以深入了解本项目。
想要了解中建玖上琅宸最新房价、户型详情、限时优惠以及预约一对一看房,
可咨询中建玖上琅宸售楼处专线:400-868-8369。